แลนด์มาร์ค แอท แกรนด์สเตชั่น บาย ไซมิส แอสเสท (Landmark At Grand Station By Siamese Asset) เป็นโครงการมิกซ์ยูส บนทำเลศักยภาพ ตรงข้ามแฟชั่นไอส์แลนด์ ใกล้รถไฟฟ้าสายสีชมพู สถานีวงแหวนรามอินทรา เพียง 400 เมตร ภายในห้องออกแบบเป็น 2 ชั้น เพดานสูง 4.15 เมตร เน้นความโปร่ง โล่ง พร้อมออกแบบห้องตามพฤติกรรมและไลฟ์สไตล์ที่แตกต่างกัน ไม่ว่าจะเป็นห้องพักสำหรับผู้สูงอายุ คนที่มีสัตว์เลี้ยงหรือห้องพักในรูปแบบ Co-living และห้องพักแบบมาตรฐาน ภายในโครงการครบครันด้วยสิ่งอำนวยความสะดวกทั้งพื้นที่พักอาศัย โรงแรม ร้านค้า ร้านอาหาร และสำนักงาน ราคาเริ่มต้นเพียง 2.90 ล้านบาท
สนใจ คอนโดฯ ในโครงการนี้? เลือกชม รายการประกาศ ราคาโดนใจ
ย้อนกลับไปในช่วงที่ยังไม่มีรถไฟฟ้าใต้ดิน ทำเล “รัชดาฯ – พระรามเก้า” ถือเป็นทำเลที่ผู้พัฒนาอสังหาริมทรัพย์ไม่ได้ให้ความสนใจมากนัก แต่ปัจจุบันเมื่อมีรถไฟฟ้าใต้ดินเปิดให้บริการ พื้นที่ที่เคยถูกมองข้ามก็กลายเป็นทำเลทองโซนตะวันออกที่เชื่อมต่อใจกลางเมืองกับกรุงเทพฯ รอบนอกเข้าด้วยกัน ในช่วงที่ผ่านมา โครงการรถไฟฟ้าใต้ดินได้ฉายสปอร์ตไลท์ และเข้ามามีบทบาทสำคัญที่เพิ่มสีสันเข้าสู่ย่านนี้ และดึงดูดให้ผู้พัฒนาทั้งรายเล็ก รายใหญ่เข้ามาปักธงโครงการใหม่ๆ มากมาย และหนึ่งในผู้ประกอบการรายย่อยอย่าง บริษัท วิษณี จำกัด ก็ไม่พลาดที่จะประลองสนามเพื่อร่วมชิงส่วนแบ่งการตลาดในทำเลนี้เช่นกัน หลังจากที่คว้าที่ดินขนาดย่อมในซอยรัชดาภิเษก 3 ก็เดินเครื่องพัฒนาโครงการ “เคส รัชดา” คอนโดมิเนียมโลว์ไรส์ที่ต้องการตอบโจทย์กลุ่มเป้าหมายคนเมืองโดยเฉพาะ ถึงแม้พื้นที่ในซอยจะมีแมนชั่น อาคาร หอพัก และประชากรส่วนใหญ่เป็นนักศึกษาและมนุษย์เงินเดือนก็ตาม แต่ช่องว่างที่ทางกลุ่มวิษณีมองเห็นและเข้ามาเติมเต็มคือกลุ่มคนในพื้นที่ที่ต้องการที่อยู่อาศัยในทำเลเดิมที่คุ้นเคย และเป็นเจ้าของได้ไม่ยาก
เจาะลึกข้อมูลโครงการ
ชื่อโครงการ: เคส รัชดา (Kes Ratchada)
ผู้พัฒนาโครงการ: บริษัท วิษณี จำกัด
ทำเลที่ตั้ง: ซอยสุทธิพร (รัชดาภิเษก ซอย 3)
เว็บไซต์: http://www.kesratchada.com
รายละเอียดโครงการ (ข้อมูล ณ 23 กันยายน 2558)
พื้นที่โครงการ: 196 ตารางวา
รูปแบบ: อาคารที่พักอาศัยสูง 8 ชั้น จำนวน 70 ยูนิต แบ่งออกเป็น Type A, Type B, และ Studio Room
พื้นที่ใช้สอย: สตูดิโอและ 1 ห้องนอน เริ่มต้น 26.75 – 41.25 ตร.ม. เป็นห้องแต่งครบ
กลุ่มเป้าหมาย: กลุ่มคนทำงาน, นักศึกษาจบใหม่
ระบบรักษาความปลอดภัย: กล้องวงจรปิด, พนักงานรักษาความปลอดภัย, เข้าออกอาคารด้วยระบบคีย์การ์ด
จุดเด่นของโครงการ: ใกล้สถานีรถไฟฟ้าใต้ดินพระราม 9, ห้างสรรพสินค้า อาทิ เซ็นทรัลพลาซา พระรามเก้า, ฟอร์จูน และเทสโก้ โลตัส, โรงแรมแกรนด์เมอร์เคียว, อาคารสำนักงาน G Land, อาคารสำนักงาน AIA, ตลาดหลักทรัพย์แห่ง ประเทศไทย
ส่วนกลาง: สระว่ายน้ำ, ฟิตเนส
เงินกองทุนส่วนกลาง: 500 บาท/ ตร.ม. (ชำระครั้งเดียว)
ค่าส่วนกลาง: 35 บาท/ ตร.ม./ เดือน (ชำระล่วงหน้า 1 ปี)
ค่าจอดรถรายเดือน: 400 บาท/ คัน (สิทธิ์ห้องละ 1 คัน ไม่ระบุช่องจอด)
สถานะการก่อสร้าง: เริ่มก่อสร้างกลางปี 2557
คาดว่าจะแล้วเสร็จ: ต้นปี 2559
เงื่อนไขการชำระเงิน: จอง 5,000 บาท ทำสัญญา 40,000 บาท, ผ่อนชำระ 10% (หักเงินจองและทำสัญญา)
ภาษีการขาย: ผู้ขายเป็นผู้รับผิดชอบภาษี ณ กรมที่ดิน
ค่าธรรมเนียมการโอน: ผู้ซื้อและผู้ขายรับผิดชอบฝ่ายละครึ่ง (ฝ่ายละ 1 %)
สถานะการขาย: 91%
ราคาเริ่มต้น: 2.1 – 3.3 ล้านบาท
ราคาเฉลี่ย: 85,000 บาทต่อตารางเมตร
รายละเอียดโครงการ
รีวิวภาพรวมโครงการ
เคส รัชดา คอนโดมิเนียมโลว์ไรส์ 8 ชั้น ภายใต้คอนเซ็ปต์ความเป็นส่วนตัวบนทำเลใจกลางเมือง ที่มาพร้อมห้องตกแต่งครบพร้อมอยู่ในสไตล์โมเดิร์น ไฮไลท์ของโครงการคือใกล้สิ่งอำนวยความสะดวกต่างๆ อาทิ ศูนย์การค้าเซ็นทรัลพระราม9, โรงแรมแกรนด์ เมอร์เคียว ฟอร์จูน, ฟอร์จูนทาวน์, อาคารสำนักงาน พร้อมสามารถเดินทางได้ไหหลายเส้นทาง จากโครงการสามารถออกสู่ถนนพระราม 9, อโศก, สุขุมวิท, ดินแดง ถึงแม้บรรยากาศโดยรอบโครงการจะเป็นพื้นที่ที่มีบ้านผู้อาศัยดั้งเดิมอยู่เป็นจำนวนมาก แต่เส้นทางเข้าออกโครงการจะมีเพียงผู้ที่อยู่ในซอยนี้ใช้เท่านั้นเพราะจะเป็นซอยตันซึ่งจะไม่มีผผู้ใช้รถใช้ถนนรายอื่นๆ มาใช้ร่วมด้วยแน่นอน
ที่ตั้งสำนักงานขาย
สำนักงานขายตั้งอยู่ฝั่งตรงข้ามกับตัวโครงการเลย มีที่จอดรถประมาณ 3-4 คัน ภายในสำนักงานมีที่นั่งรับรองแขกอยู่ 1 ชุด ซึ่งไม่มีโมเดลของโครงการเพราะมีห้องตัวอย่างอยู่ทางด้านขวามือเป็นห้องตัวอย่าง 1 Bedroom Type A2 ขนาด 32 ตร.ม.
ภาพรวมภายนอก
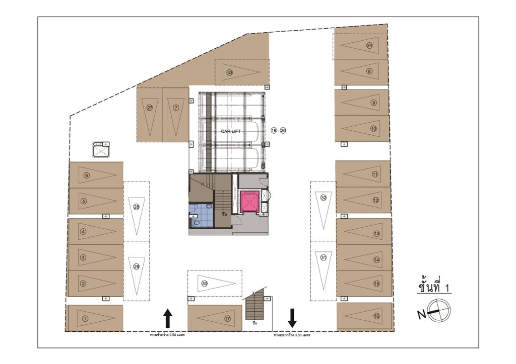
Floor Plan

ชั้น 1 ของโครงการเป็นพื้นที่จอดรถทั้งหมด ทางขวาของตัวลิฟท์ผู้โดยสาร จะมี Car Lift อยู่ซึ่งสามารถขึ้นสูงถึงชั้นสาม เพิ่มจำนวนการจอดรถได้อีก 9 คัน

ชั้น 2 จะมีส่วนกลางอยู่ ซึ่งเป็นสระว่ายน้ำกับฟิตเนส อำนวยความสะดวกด้วยห้องน้ำแยกชายหญิง แต่ยังไม่มีในส่วนห้องอาบน้ำ

ชั้น 3 มีส่วนที่ Car Lift ขึ้นลง หากระบบลิฟท์มีเสียงเตือนอาจมีเสียงรบกวนเล็กน้อย การจอดรถอัตโนมัติด้วยระบบไฮดรอลิก
รูปแบบห้อง (ตัวอย่างแปลนห้องที่ยังเหลือขายอยู่)
ห้อง Studio เริ่มต้นที่ 26.75 – 28.50 ตร.ม.
1 Bedroom Type A พื้นที่ใช้สอยเริ่มต้นที่ 30-35 ตร.ม.
1 Bedroom Type B พื้นที่ใช้สอยเริ่มต้นที่ 33.25-41 ตร.ม.
ภาพวิวจากชั้นแปดของตัวโครงการ

ภาพวิวโดยรอบของโครงการจะเห็นได้ว่าไม่มีตึกสูงอยู่รอบด้านมากนัก อีกทั้งพื้นที่รอบๆ ถูกพัฒนาหมดแล้ว ทำให้วิวระดับสายตาจากชั้น 8 นี้ มองออกไปได้ไกลและไม่มีสิ่งปลูกสร้างบดบังสายตา แต่หากมองจากมุมของผู้อยู่อาศัยชั้นล่างๆ ก็ยังมองเห็นวิวได้อยู่บ้าง เพราะนอกเหนือจากอาคารแมนชั่นที่สูงไม่เกิน 5-8 ชั้น ที่มีอยู่รอบโครงการประมาณ 2 อาคาร พื้นที่โดยรอบส่วนใหญ่ก็จะเป็นบ้านเดี่ยวที่มีความสูงไม่เกินสองชั้น
รีวิวภายในห้องตัวอย่าง Type A2 ขนาด 31.75 ตร.ม.

เคาน์เตอร์กว้างประมาณ 0.65 x1.70 ม. มี Hood & Hob 2 หัว มาพร้อมเครื่องดูดควัน เพิ่มพื้นที่จัดวางอุปกรณ์ทำครัวมากขึ้น ด้วยการออกแบบมาเพื่อคำนึงถึงการใช้สอยพื้นที่ได้มีประสิทธภาพมากที่สุด

ด้านขวามือของเคาน์เตอร์จะเป็นซิ้งค์ล้างมือและล้างอุปกรณ์ทำครัว ตรงกลางมีพื้นที่สำหรับเตรียมครัว ซิ้งค์น้ำและ Hob ที่ติดกับเคาน์เตอร์ช่วยประหยัดและเพิ่มพื้นที่ในการเตรียมครัว

อีกด้านถัดมาด้านขวา จะเป็นช่องใต้ซิงค์ล้างจ้านซึ่งยังสามารถเก็บอุปกรณ์น้ำยาทำความสะอาดและมีถังขยะติดอยู่ที่บานพับประตู

ระหว่างโซนครัวและห้องนอนมีประตูแบบเลื่อนคั่นกลางทำให้ห้องดูโปรงและกว้างขึ้น ประตูนี้สามารถใช้กุญแจล็อคเข้าออกเพื่อความเป็นส่วนตัวได้ หรือผู้ที่พักอาศัยสามารถติดฟิล์มเพื่อเพิ่มความเป็นส่วนตัวอีกชั้นก็สามารถทำได้

เตียงขนาด 5 ฟุต บริเวณพื้นที่ภายในส่วนของห้องนอนสามารถเปลี่ยนเป็นเตียงคิงไซส์ได้ตามสะดวก แต่ก็ขึ้นอยู่กับเลเอาท์ของห้องด้วย

หน้าต่างข้างเตียงเป็นหน้าต่างแบบบานเลื่อน 2 ตอน ซึ่งเป็นระบบตามมาตรฐทั่วไป แต่ทางโครงการก็มีเจ้าหน้าที่รักษาความปลอดภัย 24 ชม. พร้อมด้วยระบบกล้องวงจรปิดและคีย์การ์ดเข้าออก ในส่วนของม่านทางโครงการไม่ได้มีให้ เนื่องจากผู้อาศัยอาจแพ้ผ้าใยสังเคราะห์หรือผ้าขนสัตว์บางชนิด

ระเบียงอยู่ติดกับโซนครัวมีขนาด 1.00 x 2.65 ม. มีรั้วเหล็กกั้นความสูงประมาณ 120 ซม. พร้อมตัวตั้งวางคอมเพรสเซอร์แอร์

โซนพักผ่อน และโซนครัวกับนั่งเล่นจะถูกแบ่งโซนด้วยพื้นตามภาพ ฝั่งครัวจะใช้กระเบื้องแกรนิโต้ขนาด 60×60 ซม. ส่วนห้องนอนจะใช้ลามิเนตลายไม้หนาประมาณ 8 มม.
สิ่งที่จะได้รับจากโครงการ
พื้น: กระเบื้องแกรนิโต้ขนาด 60×60 ซม., ส่วนห้องนอนเป็นลามิเนตลายไม้หนาประมาณ 8 มม.
ผนัง: ปิดด้วยวอลล์เปเปอร์
พื้นจรดเพดาน: ความสูง 2.4 เมตร
ประตูห้อง: ประตู้ไม้ สามารถเปิดเข้าออกด้วยระบบมือ แบบคันโยก
เฟอร์นิเจอร์: Index หรือเทียบเท่า
เครื่องปรับอากาศ: LG หรือเทียบเท่า
สุขภัณฑ์: American Standard หรือเทียบเท่า
ชุดครัว: Starmark, Hob & Hood และเครื่องดูดควันเป็นของ Teka
การวางทิศทางห้อง
ทิศเหนือ: มีตึกเก่าสูงประมาณ 4 ชั้น เป็นหอพักของคนพื้นที่ดั้งเดิม ซอยทางด้านขวานี้เป็นซอยตัน
ทิศใต้: มีบ้านเดี่ยวคั่นกลางระหว่างโครงการกับแมนชั่นสูงไม่เกิน 5 ชั้น
ทิศตะวันออก: ด้านหลังโครงการเป็นแมนชั่นมีความสูงจำกัดไม่เกิน 7-8 ชั้น แต่หากมองในระดับสายตาจะมีความสูงไม่เท่ากับโครงการเคส รัชดา และมีระยะห่างที่สามารถมองออกไปในระยะไกลได้
ทิศตะวันตก: ด้านหน้าของโครงการ ฝั่งตรงข้ามเป็นบ้านเดี่ยวปลูกสร้างไม่เกินสองชั้น และมีโรงพิมพ์เก่าอยู่ด้านข้าง
สิ่งอำนวยความสะดวกภายในโครงการ
ลิฟท์: ลิฟท์โดยสารภายในอาคาร 1 ตัว, Car Lift 1 ตัว
ส่วนกลาง: สระว่ายน้ำ: ระบบเกลือ คลอรีน, ห้องออกกำลังกาย (Fitness), ที่จอดรถ, ในอนาคตอาจมีบริการรถรับส่งเข้า – ออกตัวโครงการ
ทําเล & การเดินทาง
วิเคราะห์ศักยภาพทำเล
นับตั้งแต่มีการขยายตัวรอบทิศทาง ไม่ว่าจะเป็นการย้ายมาของสำนักงานตลาดหลักทรัพย์แห่งประเทศไทย ช้อปปิ้งมอลล์ขนาดใหญ่อย่างเซ็นทรัลพระราม 9 หรือจะเป็นการเดินหน้าพัฒนาตึก “เดอะ ซูเปอร์ ทาวเวอร์” ที่จะกลายเป็นตึกที่สูงสุดในอาเซียนด้วยความสูง 125 ชั้น 615 เมตรจากพื้นดิน โดยแกรนด์ คาแนล แลนด์ หรือจีแลนด์ ล้วนเป็นปัจจัยที่ทำให้ย่านรัชดา-พระราม 9 พลิกโฉมสู่การเป็นทำเลเมืองที่คึกคักและยังมีแนวโน้มที่จะเป็นย่านธุรกิจแห่งใหม่ของกรุงเทพฯ อีกด้วย ถนนสายหลักของทำเลนี้คือถนนรัชดาภิเษกที่สามารถเชื่อมต่อกับถนนสายสำคัญหลายสายทั้งถนนพระราม 9, อโศก-ดินแดง สามารถไปได้ทั้งลาดพร้าวและรามคำแหงได้อย่างสะดวก แต่หากมองภาพรวมในช่วงเวลาเร่งด่วนผู้ใช้รถใช้ถนนอาจจะต้องพบกับปริมาณรถในระดับปรอทแดงซึ่งเป็นสาเหตุให้เกิดปัญหารถติดเป็นประจำ แต่ก็ยังมีทางออกด้วยบริการรถไฟฟ้าใต้ดิน นอกจากนี้มอเตอร์เวย์สายตะวันออกก็เป็นจุดสำคัญสำหรับเข้า-ออกนอกเมืองมุ่งตรงสู่สุวรรณภูมิและสามารถไปยังชลบุรีได้เลย ส่วนเรื่องราคาที่ทำเลย่านนี้แบ่งออกเป็นสองโซนคือโซนใกล้สถานีรถไฟฟ้า และโซนที่ห่างออกไปเกินกว่า 500 เมตร ราคาเฉลี่ยจะแตกต่างกันราวๆ 3 แสนบาทเลยทีเดียว
วิเคราะห์ทำเลที่ตั้งโครงการ
จากปากซอยรัชดาภิเษก 3 ถึงตัวโครงการมีระยะห่างประมาณ 800 ม. สองข้างทางเรียงรายไปด้วยร้านค้าร้านอาหารแทบจะตลอดทาง หากเดินเท้าเข้าสู่ตัวโครงการก็สามารถทำได้ ถึงแม้ว่าจะเป็นถนนสองเลนส์ ซึ่งระหว่างทางก็จะมีร้านกาแฟ ร้านอาหารอยู่มาก หรือการใช้บริการมอร์เตอร์ไซค์วินที่มีเป็นระยะๆ ตั้งแต่บริเวณสถานี MRT พระราม 9 ราคาค่าบริการจากสถานีถึงโครงการ 10 ถึง 20 บาท ภายในซอยไม่มีบริการรถสองแถว แต่ก็สามารถนั่ง แท็กซี่เข้ามาได้ปกติ หากมองในแง่ของความสะดวกสบายแล้วถือว่าเหมาะสมกับไลฟ์สไตล์คนทำงานและนักศึกษาไม่ว่าจะเป็นอาหารการกิน สถานที่แฮงค์เอ้าท์ที่อยู่ไม่ไกลจากโครงการมากไม่ว่าจะเป็นฟอร์จูน ทาวน์ เซ็นทรัลพระรามเก้า หรือเอสพลานาด รัชดา และในชั่วโมงเร่งด่วนก็ยังมีบริการคมนาคมอื่นๆ เป็นทางเลือกในเวลาที่เร่งรีบ เช่น รถตู้ประจำทาง ซึ่งก็มีให้เลือกมากกว่า 5 สาย หากจะมองในแง่ผู้อยู่อาศัยแล้วนั้น เรื่องการเดินทางมีใช่อุปสรรคสำคัญแต่อย่างใด
การเดินทาง
MRT
หากโดยสารด้วย MRT ลงที่สถานีพระราม 9 แล้วเดินออกมายังทางออกที่ 1 บริเวณอาคารฟอร์จูน ทาวน์ สามารถเรียกรถโดยสารต่อมุ่งตรงไปตามถนนแล้วเลี้ยวซ้ายเข้าซอยรัชดาภิเษก 3 ตรงไปตามทางข้ามสะพานข้ามคลอง เลี้ยวขวาซอยแรกซึ่งเป็นซอยสุทธิพรก็จะพบโครงการอยู่ประมาณกลางซอย หากเดินออก MRT ทางออกที่ 4 ก็จะเป็นทางออกไปยังเซ็นทรัลพระราม 9 จากสถานี MRT ไปถึงโครงการระยะห่างประมาณ 1.5 กิโลเมตร
รถยนต์
หากขับรถยนต์มาจากถนนพระราม 9 ต้องไปกลับรถบริเวณแยกเทียมร่วมมิตร หรือถ้าคุ้นเคยกับเส้นทางสามารถเลี้ยวเข้าซอยสรงปรางค์ ซึ่งเป็นซอยย่อยในรัชดาซอย 3 ก็สามารถทะลุเข้ามายังซอยรัชดาภิเษก 3 ได้
รถเมล์
จากเซ็นทรัลเวิลด์สามารถมาลงหน้า ฟอร์จูน ทาวน์ หรือ หน้าสถานฑูตจีน ได้ โดยขึ้นรถเมล์สาย 73, 73ก, 514
จากอนุสาวรีย์ชัยฯ สามารถมาลงหน้า ฟอร์จูน ทาวน์ หรือ หน้าสถานฑูตจีนได้ โดยขึ้นรถเมล์สาย 529, 172, 528

ตรงเข้ามาจะเจอสี่แยก ชะลอรถและระวังให้ดีเพราะไม่มีสัญญาณไฟ และมีรถวิ่งผ่านไปมาตลอดเวลาเนื่องสามารถลัดออกถนนใหญ่ได้
ตรงเข้าไปสัก 500 เมตร จะมีสะพานข้ามคลองเตี้ยๆ ข้ามคลองอยู่ ถึงแล้วให้เลี้ยวขวา เข้าซอยแรกได้เลย ภายในซอยเป็นซอยตันเงียบสงบ แต่มีวินมอเตอร์ไซด์อยู่กลางซอย

ทางเข้าโครงการสามารถเข้าได้หลักๆ 2 ทาง คือทางซอยสุทธิพรซึ่งเป็นซอยต่อจากซอยรัชดาภิเษก 3 หรือจะเข้าจากซอยรัชดาภิเษก 3 เลยก็ได้ แต่จะสะดวกกว่าหน่อยหากเข้าจากปากซอยรัชดา 3 เลย
สถานที่แนว Lifestyle
เซ็นทรัลพลาซา แกรนด์ พระราม 9
ฟอร์จูน ทาวน์
ศูนย์กลางแห่งวิวัฒนาการไอทีในย่านรัชดา แหล่งรวมไลฟ์สไตล์คนไอที ที่เต็มไปด้วยอุปกรณ์อิเล็กทรอนิกส์ครบครันทันสมัย พร้อม Food Mall กับบรรยากาศที่ผสมผสานระหว่าง Inter Brand กับรสชาติอาหารและบริการได้อย่างลงตัวภายใต้การบริหารงานของ บริษัท ซีพีแลนด์ จำกัด (มหาชน)
เอสพลานาดรัชดา
ศูนย์รวมไลฟ์สไตล์ความบันเทิงภายใต้แนวคิดแห่งศิลปะ 7 แขนง ที่ตอบโจทย์กลุ่มลูกค้าด้วยโรงภาพยนตร์ระดับเมกาเพล็กซ์ถึง 12 โรง รวมไปถึงโรงละครเมืองไทยรัชดาลัย เธียร์เตอร์, มิวสิคพลาซ่า, ลานโบว์ลิ่ง บลูโอริธึมแอนด์โบว์, อาร์ต อิน พาราไดซ์ พื่นที่แสดงภาพเขียนเสมือนจริงสำหรับคอศิลปะ แล้วยังมีท็อปส์ มาร์เก็ต แหล่งรวมวัตถุดิบสำหรับของกิน ของใช้ในชีวิตประจำวัน
บทวิเคราะห์
วิเคราะห์อัตรผลตอบแทนที่จะได้รับ
เนื่องจากพื้นที่โดยรอบเป็นหอพักและแมนชั่นเสียส่วนใหญ่ โดยที่บริเวณพื้นที่จะไม่มีด้านไหนที่ติดกับทางโครงการ เคส รัชดาเลย ส่วนอัตราค่าเช่ารายเดือนของแบบห้องทั้งหมดอยู่ที่ประมาณ 10,000 – 15,000 บาท หากต้องการซื้อเพื่อลงทุนโอกาสที่จะได้รับผลตอบรับมีค่อนข้างสูงแต่เนื่องจากเป็นโครงการที่อยู่ใกล้กับแหล่งออฟฟิศอยู่จำนวนมาก และเทรนของการอยู่คอนโดฯ เริ่มเป็นที่นิยม เชื่อว่ายังคงมีความต้องการในการเช่าห้องที่เป็นมาตรฐานคอนโดรองรับอยู่ แต่หากซื้อไว้อยู่เองแบบเป็นบ้านหลังที่สองที่อยู่ระหว่างสัปดาห์ สิ่งอำนวยความสะดวกที่อยู่รายรอบจะช่วยตอบโจทย์การอยู่อาศัยที่สะดวกสบายได้เป็นอย่างดี
เปรียบเทียบกับโครงการอื่น
Emerald Residence Ratchada
คอนโดมิเนียม ในการกำกับดูแลของบริษัท พีทีซี.คอนโด ตกแต่งพร้อมเฟอร์นิเจอร์ ความสูง 8 ชั้น พร้อมชั้นใต้ดิน 1 ชั้น จำนวน 2 อาคาร (อาคาร A และ B) และ คอนโดมิเนียม ตกแต่งพร้อมเฟอร์นิเจอร์ สูง 8 ชั้น จำนวน 1 อาคาร (อาคาร C) บนพื้นที่ 4-2-90 ไร่ จำนวน 635 ยูนิต มาพร้อมกับห้องแบบสตูดิโอ 1-2 ห้องนอน มีพื้นที่ใช้สอยเริ่มต้นตั้งแต่ 22.59 – 51.41 ตร.ม. ในราคาเริ่มต้น 2.39 ล้านบาท อยู่ที่ตารางเมตรละ 80,000++ สำหรับห้องขนาดเล็กสุด
Maestro 03 รัชดา-พระราม9
Maestro 03 โครงการคอนโดมิเนียมโลว์ไรส์ ความสูง 8 ชั้น ของค่ายเมเจอร์ ดีเวลลอปเมนท์ ประกอบด้วยอาคารพักอาศัยจำนวน 3 อาคาร อาคารละประมาณ 100 ยูนิต รวมกว่า 320 ยูนิต ตกแต่งแบบ Fully-furnished (ยกเว้นเครื่องใช้ไฟฟ้า) กับห้องชุดแบบ 1 ห้องนอน พื้นที่ 29 -41 ตร.ม. และ 2 ห้องนอน พื้นที่ 50 – 74 ตร.ม. บนเนื้อที่โครงการกว่า 3-0-18 ไร่ ราคาเริ่มต้นที่ 3.5 ล้านบาท อยู่ที่ตารางเมตรละ 120,000++ สำหรับห้องขนาดเล็กสุด
Chateau in Town รัชดา 10
ชาโตว์ อินทาวน์ รัชดา 10 คอนโดมิเนียมสไตล์ Low Rise ความสูง 8 ชั้น ของค่ายพระยาพาณิชย์ พร็อพเพอร์ตี้ ในเครือ CMC ตั้งอยู่ในซอยรัชดา 10 แยก 7 ห่างจากจากปากซอยรัชดา 100 เมตร, ใกล้ MRT สถานีศูนย์วัฒนธรรม พัฒนาบนเนื้อที่โครงการกว่า 0-3-14 ไร่ กับรูปแบบห้อง 1 ห้องนอน พื้นที่ใช้สอย 25-41 ตร.ม. และ 2 ห้องนอน พื้นที่ 47-52 ตร.ม. ในราคาเริ่มต้น 3.5 ล้านบาท ปัจจุอยู่ที่ตารางเมตรละ 140,000 สำหรับห้องพื้นที่ 30 ตร.ม.
สรุป
ในแง่ของทำเลที่ตั้งโครงการ “เคส รัชดา” ถือว่าเป็นพื้นที่พัฒนาเกือบสมบูรณ์แล้ว เนื่องจากบริเวณโดยรอบแทบไม่มีพื้นที่เปล่าเลย ส่วนใหญ่ทุกพื้นที่จะเป็นอาคาร หอพัก ไม่มีคอนโนมิเนียม ทาวน์โฮม หรือโครงการใหม่ๆ มากเท่าไหร่นัก จึงทำให้บริเวณทำเลนี้เหมาะสำหรับกลุ่มคนเมือง พนักงานออฟฟิศและนักศึกษา ความคึกคักระหว่างอาหารการกินและสถานที่ไลฟ์สไตล์ทำให้พื้นที่ใกล้เคียงบริเวณโครงการนี้ไม่เงียบแม้ยามค่ำคืนแต่จะแตกต่างกับพื้นที่ตั้งบริเวณโครงการซึ่งจะเหมาะกับการพักผ่อนที่ไม่มีเสียงรถในการสัญจรมารบกวน สำหรับการเดินทางก็ถือว่าสะดวก เพราะมีทางเข้าออกได้หลายทิศทาง แต่หากไม่ได้ไปไหนไกลแนะนำให้ใช้บริการขนส่งสาธารณะจะสะดวกสบายที่สุด
สำหรับรูปแบบโครงการนับว่าปรับสภาพอาคารให้เหมาะสมกับที่ดิน ขนาดห้อง 1 ห้องนอนจึงมีลักษณะที่ต่างกันไปตามรูปทรงอาคารการปรับพื้นที่ให้มีขนาดพื้นที่ใช้สอยที่เหมาะสมสำหรับผู้อยู่อาศัยแบบ 1 – 2 คน โดยที่ยังให้ความรู้สึกไม่แออัดมากนัก ภายในห้องนอนมีเฟอร์นิเจอร์ครบครันแบบ Fully Furnished ทั้งครัว โต๊ะอาหาร เตียง รวมทั้งสุขภัณฑ์ต่างๆ ที่มีเครื่องทำน้ำอุ่น หากต้องการทำงานภายในห้องพักก็สามารถทำได้ดีเพราะห้องถูกปรับให้มีแสงสว่างที่เหมาะสมกับการทำงาน โดยหน้าต่างและระเบียงเป็นกระจกใสบานใหญ่ซึ่งจะเวลาเปิดออกจะรู้สึกโปร่งและโล่งมากเลยทีเดียว โดยรวมแล้วถือว่าเป็นห้องที่ถูกจัดวางวัสดุต่างได้อย่างลงตัว และสามารถพักผ่อนได้อย่างเต็มที่
จากข้อมูลทั้งหมดคงบอกได้ว่า “เคส รัชดา” เป็นโครงการคอนโดมิเนียมที่เหมาะสำหรับผู้ที่กำลังมองหาห้องสำหรับ 1-2 คน ที่ต้องการความสะดวกสบายอยู่ในแหล่งชุมชนที่มีพรั่งพร้อมด้วยเรื่องสาธรณูปโภคครบครัน หากไม่ติดว่าชีวิตในเมืองต้องมีรถขับ หรือมีแผนจะขยายครอบครัว โครงการนี้ถือเป็นตัวเลือกแรกๆ เลยสำหรับผู้ที่มีกำลังซื้อ 2 – 3ล้าน ซึ่งเป็นตัวเลขระดับที่พนักงานหรือนักศึกษาจบใหม่พอที่จะมีกำลังซัพพอร์ตได้
เรื่องข้างต้นนี้เขียนโดย กิตติคม พจนี Content Writer DDproperty.com หากมีคำถามเพิ่มเติมสามารถติดต่อได้ที่ kittikom@ddproperty.com
สนใจ คอนโดฯ ในโครงการนี้? เลือกชม รายการประกาศ ราคาโดนใจ

























































