แลนด์มาร์ค แอท แกรนด์สเตชั่น บาย ไซมิส แอสเสท (Landmark At Grand Station By Siamese Asset) เป็นโครงการมิกซ์ยูส บนทำเลศักยภาพ ตรงข้ามแฟชั่นไอส์แลนด์ ใกล้รถไฟฟ้าสายสีชมพู สถานีวงแหวนรามอินทรา เพียง 400 เมตร ภายในห้องออกแบบเป็น 2 ชั้น เพดานสูง 4.15 เมตร เน้นความโปร่ง โล่ง พร้อมออกแบบห้องตามพฤติกรรมและไลฟ์สไตล์ที่แตกต่างกัน ไม่ว่าจะเป็นห้องพักสำหรับผู้สูงอายุ คนที่มีสัตว์เลี้ยงหรือห้องพักในรูปแบบ Co-living และห้องพักแบบมาตรฐาน ภายในโครงการครบครันด้วยสิ่งอำนวยความสะดวกทั้งพื้นที่พักอาศัย โรงแรม ร้านค้า ร้านอาหาร และสำนักงาน ราคาเริ่มต้นเพียง 2.90 ล้านบาท
สนใจ คอนโดฯ ในโครงการนี้? เลือกชม รายการประกาศ ราคาโดนใจ
ในขณะที่ตลาดของคอนโดมิเนียมมีการแข่งขันที่สูงมากขึ้น จากการพัฒนาผังเมืองเส้นทางคมนาคมของ Mass Transit ต่างๆ รอบเมือง บวกกับพื้นที่ที่ยังหลงเหลือให้พัฒนาตามจุดเชื่อมต่อสำคัญต่างๆ โดยเฉพาะแนวรถไฟฟ้าสายสีเขียวสายเดิมที่ในอนาคตจะได้รับอานิสงส์จากส่วนเชื่อมต่อขยายต่างๆ ด้วย ดังนั้นพื้นที่แนวรถไฟฟ้าส่วนใหญ่จึงถูกดึงมาใช้พัฒนาโครงการอสังหาริมทรัพย์ต่างๆ จนแทบไม่หลงเหลือ ดีเวลลอปเปอร์ชื่อดังหลายเจ้าจึงพยายามเฟ้นหาจุดเด่นที่มากกว่าโลเคชั่นติดรถไฟฟ้า และ แสนสิริ ก็เป็นอีกหนึ่งค่ายที่หันมาปรับกลยุทธ์การตลาดให้สอดคล้องกับสภาพเศรษฐกิจ และพื้นที่แนวรถไฟฟ้าที่ไม่ค่อยเหลือให้พัฒนา ด้วยการตอบสนองกลุ่มเป้าหมายที่ต้องการซื้อคอนโดมิเนียมเพื่ออยู่อาศัยจริงๆ โดยการดึงพื้นที่ที่มีดีมานด์ของการซื้อสูงพร้อมทั้งมีกำลังจ่ายไหวจากคนในพื้นที่บริเวณ “พหลฯ – ประดิพัทธ์” มาขยายพอร์ทแบรนด์เดอะ ไลน์ และปรับทัศนียภาพเชิงบวกให้กับถนนเส้นนี้ ปักหมุดโครงการใหม่อย่าง “เดอะไลน์ พหลฯ – ประดิพัทธ์” โชว์จุดเด่นความเป็นที่อยู่อาศัยอย่างแท้จริงกับโครงการคอนโดมิเนียมที่มาพร้อม คลับเฮ้าส์ ที่มีขนาดพื้นที่ใช้สอยใหญ่กว่า 32,000 ตร.ม. และพื้นที่ Co-Living-Space ที่เข้ามาตอบโจทย์คนที่กำลังมองหาบ้านแต่ยังคงใกล้ชิดกับทุกอริยาบถของวิถีชีวิตคนเมือง รวมไปถึงการเดินทางที่สามารถเชื่อมต่อกับรถไฟฟ้าสถานีสะพานควายได้ในระยะทางไม่เกิน 500 ม. และทางด่วนพิเศษศรีรัชที่เชื่อมต่อไปยังสถานที่สำคัญทุกทิศทาง โดยโครงการนี้จะเปิดตัวพร้อมกับ โครงการ เดอะไลน์ สุขุมวิท 101 ที่ช่วยตอกย้ำภาพลักษณ์การอยู่อาศัยของแบรนด์เดอะ ไลน์ ไห้ชัดเจนยิ่งขึ้น ซึ่งยังคงได้รับความร่วมมือจากพาร์ทเนอร์คู่ใจอย่าง บีทีเอส กรุ๊ป เช่นเดิม และออกมาในชื่อของ บริษัท บีทีเอส แสนสิริ โฮลดิ้ง ทเวลฟ์ จำกัด สำหรับ โครงการ “เดอะไลน์ พหลฯ – ประดิพัทธ์” กับห้องขนาดเริ่มต้นที่ 1 ห้องนอน 26.25 ตร.ม. ในราคา 3.55 ล้านบาท หรือประมาณ 150,000 บาท ต่อตร.ม.
เจาะลึกข้อมูลโครงการ
ชื่อโครงการ: เดอะไลน์ พหลฯ – ประดิพัทธ์ (The Line Phahon – Pradipat)
ผู้พัฒนาโครงการ: บริษัท บีทีเอส แสนสิริ โฮลดิ้ง ทเวลฟ์ จำกัด
ผู้ร่วมพัฒนาโครงการ: บริษัท บีทีเอส กรุ๊ป โฮลดิ้งส์ จำกัด (มหาชน) และ บริษัท แสนสิริ จำกัด (มหาชน)
ตัวแทนการขาย: บริษัท พลัส พร็อพเพอร์ตี้ จำกัด
ทำเลที่ตั้ง: ถนนประดิพัทธ์ แขวงสามเสนใน เขตพญาไท กรุงเทพมหานคร
เว็บไซต์: http://www.sansiri.com
โทร: 1685
อีเมล์: theline_pradipat@SANSIRI.com
รายละเอียดโครงการ (ข้อมูล ณ วันที่ 4 พฤศจิกายน 2559)
พื้นที่โครงการ: ประมาณ 5 ไร่
ลักษณะโครงการ: อาคารพักอาศัย สูง 46 ชั้น 1 อาคาร, คลับเฮ้าส์ สูง 2 ชั้น 1 อาคาร ทั้งหมด 981 ยูนิต
กลุ่มเป้าหมาย: กลุ่มคนพื้นที่ที่มีกำลังซื้อจากทั้งทางฝั่งสะพานควายและอารีย์
สถานะการก่อสร้าง: เริ่มก่อสร้างประมาณเดือนมกราคม 2560 คาดว่าจะแล้วเสร็จเดือนธันวาคม 2562
ลิฟท์: ลิฟท์โดยสาร 6 ตัว, ลิฟท์เซอร์วิส 1 ตัว
ที่จอดรถ: 49%
สิ่งอำนวยความสะดวก: อินเตอร์เน็ตไร้สาย, ส่วนสันทนาการและคลับเฮ้าส์, จุดบริการชาร์ตแบตเตอรี่ สำหรับรถยนต์พลังงานไฟฟ้า
ระบบรักษาความปลอดภัย: เจ้าหน้าที่รักษาความปลอดภัยตลอด 24 ชม., กล้องวงจรปิด 24 ชม.
สถานะการขาย: เปิดจอง 19 – 20 พฤศจิกายน 2559
เงื่อนไขการชำระเงิน:
| รูปแบบห้อง | ขนาด (ตร.ม.) | เงินจอง (บาท) | ทำสัญญา (บาท) | เงินดาวน์ (งวด) |
| 1 BR (1A – 1B) | 26.25 – 28.00 | 30,000 | 50,000 | 31 |
| 1 BR (1C – 1M) | 30.50 – 40.75 | 30,000 | 70,000 | 31 |
| 2BR | 51.50 – 67.00 | 80,000 | 120,000 | 31 |
| 3BR | 79.00 – 111.50 | 100,000 | 150,000 | 31 |
*โปรโมชั่น รับทันที iPhone7 หรือ ฟรี หรือเครื่องใช้ไฟฟ้าครบชุดเฉพาะในงาน Pre Sale เท่านั้น โดยได้เปิดให้ลูกค้าเข้าชมห้องตัวอย่างตั้งแต่วันนี้เป็นต้นไปที่ Sales Gallery ซึ่งเป็นที่ตั้งของโครงการ
เงินกองทุนสะสม: 500 บาทต่อตร.ม.
ค่าส่วนกลาง: 52 บาท ต่ อตร.ม. ต่อ เดือน
ราคาเริ่มต้น: 3.55 ล้านบาท
ราคาเฉลี่ย: 150,000 บาท ต่อ ตร.ม.
สามารถรับชมห้องตัวอย่างแบบ 360 องศาได้ที่นี่
รูปแบบห้อง
1 ห้องนอน 1 ห้องน้ำ พื้นที่ใช้สอย 26.25 – 28.50 ตร.ม.
1 ห้องนอน 1 ห้องน้ำ พื้นที่ใช้สอย 30.50 – 40.75 ตร.ม.
2 ห้องนอน 1 ห้องน้ำ พื้นที่ใช้สอย 51.50 – 51.75 ตร.ม.
2 ห้องนอน 2 ห้องน้ำ พื้นที่ใช้สอย 54.00 – 67.00 ตร.ม.
3 ห้องนอน 2 ห้องน้ำ พื้นที่ใช้สอย 79.00 – 111.50 ตร.ม.
รายละเอียดโครงการ
รีวิวภาพรวมโครงการ
โครงการถูกออกแบบมาภายใต้คอนเซ็ปต์ที่ว่า “Positivity is Everything” หากนำไปเปรียบเทียบกับโครงการรุ่นพี่อย่าง เดอะไลน์ อโศก – รัชดาฯ กับคอนเซ็ปต์ “Location is Everything” จะเห็นความแตกต่างของแนวความคิดได้อย่างชัดเจน โดยโครงการนี้อาจจะไม่ได้ชูจุดเด่นในเรื่องของโลเคชั่น แต่เลือกที่จะดึงความเป็นบ้านในเมืองออกมา โดยเน้นความสะดวกสบายภายในมากกว่าการใช้ชีวิตข้างนอก ด้วยการเน้นพื้นที่สีเขียว และเพิ่มความเป็นบ้านด้วยการส้รางคลับเฮ้าส์ขนาดใหญ่ที่ประกอบไปด้วยไฮไลท์ที่ตอบโจทย์กลุ่มคนที่ต้องการอยู่อาศัยเองอย่าง Co – Living Space โดยแบ่งออกเป็นพื้นที่ใช้สอยที่สามารถใช้พักผ่อนได้หลากหลาย อาทิ Co – Lifestyle พื้นที่พักผ่อนตามอัทธยาศัยที่เปิดให้ผู้อยู่อาศัยได้ใช้ชีวิตร่วมกัน หรือสวนสวยขนาดใหญ่ กับ THE SECRET GARDEN ประกอบกับ Co-Kitchen พื้นที่ปาร์ตี้บาร์บีคิว พร้อมอุปกรณ์จัดเตรียมอาหารครบครัน โดยคลับเฮ้าส์นี้ถูกแยกส่วนออกและมีพื้นที่ใช้สอยถึง 32,000 ตร.ม. ซึ่งผู้อยู่อาศัยที่อยู่ในอาคารจะได้รับความเป็นส่วนตัวอย่างเต็มที่ พร้อมกับได้รับความสะดวกสบายในจุดนี้ไปด้วย
นอกจากไฮไลท์ของโครงการแล้ว มาดูที่รายละเอียดของตัวโครงการ เริ่มจากภายนอก โครงการถูกออกแบบมาให้เน้นทัศนียภาพให้มีเอกลักษณ์จากสายตาภายนอกโครงการ ด้านหน้าโครงการจึงกว้างกว่า 90 ม. และล้อมรอบไปด้วยพื้นที่สีเขียว มองมาจากภายนอกจะเห็นตัวคลับเฮาส์ จะเป็นสวนสวยขนาดใหญ่ น้ำตก และต้นไม้ใหญ่ ก่อนที่จะเห็นตัวอาคาร ซึ่งโครงการเลือกใช้พันธ์ุไม้ที่ให้ความเป็นธรรมชาติ เปลี่ยนสีไปตามฤดูกาลอย่างต้นนางควัก และต้นชมพูพันทิพย์ที่จะออกสีชมพูในหน้าหนาว คลับเฮ้าส์กับตัวอาคารถูกออกแบบมาให้ลับสายตากัน ตัวอาคารจะใช้โทนสีขาวอบอุ่นตีเส้นกริดด้วยสีทองแดง ส่วนคลับเฮ้าส์จะเลือกใช้วัสดุอลูมิเนียมสีทองแดงที่มีดีไซน์เป็นฉลุวงกลมเน้นความหรูหรา นอกจากทางเข้าโครงการหลัก ด้านข้างโครงการจะมีประตูสำรอง สามารถเข้า – ออก ได้จากด้านข้างโดยใช้ระบบ Key Card ในการเข้าออกเพื่อความปลอดภัย

เมื่อเข้ามาในรั้วโครงการจะเห็นว่าโครงการถูกแบ่งออกเป็นสามส่วนหลักๆ หรือ ส่วนของสวนสวยขนาดใหญ่ คลับเฮ้าส์ที่ปัจจุบันเป็น Sales Gallery และพื้นที่ที่จะใช้พัฒนาอาคารที่อยู่อาศัย ภาพที่เห็นจะเป็นในส่วนของทางเข้า Sales Gallery ในปัจจุบัน

เมื่อเข้ามาด้านใน ส่วนที่เห็นในภาพจะเป็นส่วนของ Retail ในอนาคตทั้งหมด แต่ปัจจุบันถูกแบ่งออกเป็นสองส่วน คือจุดรับแขกประกอบด้วยโซฟาและที่นั่งหลายจุด ตกแต่งด้านในด้วยวัสดุลายไม้ พร้อมสร้างพื้นที่สีเขียวด้วยกระถางต้นไม้ตามจุดสำคัญ

อาคารคลับเฮ้าส์จะแบ่งออกเป็นสองชั้น โดยสามารถเดินขึ้นบันไดและเลือกใช้ลิฟท์ได้ เป็นฟังก์ชันสำหรับผู้สูงอายุ ถัดไปจากในส่วนนี้น่าจะเป็นในส่วนของห้องครัวรวมของลูกบ้านและพื้นที่ของลานบาร์บีคิว

บรรยากาศของสวนชั้นล่าง พื้นทางเดินเป็นแบบเรียบเสมอกัน เน้นฟังก์ชันครอบครัวตั้งแต่เด็กจนถึงผู้สูงอายุที่นั่งวีลแชร์

ภายในส่วนบริเวณด้านข้างรั้วโครงการ ออกแบบให้เป็นน้ำตกขนาดใหญ่ เน้นสถาปัตยกรรมแบบนูนต่ำนูนสูง สร้าง Texture ให้กับสวนสวยของโครงการ

ส่วนนี้จะเป็น Terrace ของคลับเฮ้าส์ ด้านในจะเป็นในส่วนของ Co Working Space แต่ปัจจุบันเป็นพื้นที่ของห้องตัวอย่าง
ภายในอาคารที่พักอาศัยมีความสูงที่ 46 ชั้น โดย Lobby อาคารภายในจะมีความสูงจากพื้นจรดเพดานที่ 9.5 ม. หรือ 3 ชั้น (Triple Volume Lobby) ตกแต่งผนังด้วยหินอ่อนนำเข้า เน้นความเป็นธรรมชาติด้วยลวดรายเส้นโค้งที่ตีกริดเป็นสีทองแดงหรือลายรอบอายุของต้นไม้ ชุดโซฟารับแขกมีผนังกั้นส่วนเพื่อความเป็นส่วนตัว ปรับเปลี่ยนฟังก์ชั่นเป็นที่นั่งคุย นั่งทำงานให้กับลูกบ้านได้ไปในตัว ภายในอาคารประกอบไปด้วยยูนิตที่พักอาศัยทั้งหมด 981 ยูนิต แต่มีลิฟท์โดยสารถึง 6 ตัว เฉลี่ยประมาณ 160 ยูนิตต่อตัว ซึ่งหากนำไปเปรียบเทียบกับโครงการคอนโดมิเนียมไฮไรส์ที่มียูนิตพอๆ กัน ลิฟท์ 6 ตัวกับยูนิตที่ 981 ถือว่าไม่หนาแน่นเกินไป ชั้นที่พักอาศัยทางเดินเป็นแบบ Double Corridor มียูนิตพักอาศัยทั้งสองฝั่งของทางเดิน แต่ละชั้นเฉลี่ยยูนิตที่ 29 ยูนิตต่อชั้น ความเป็นส่วนตัวในการเข้าออกห้องอาจจะน้อยลงไปบ้าง แต่ก็ถือเป็นเรื่องปกติของคอนโดมิเนียมไฮไรส์
สำหรับส่วนกลางภายในอาคารประกอบไปด้วยสระว่ายน้ำระบบเกลือที่ชั้น 9 มีทั้ง LAP POOL, LEISURE POOL, JACUZZI และ KID’S POOL และพื้นที่พักผ่อนรอบสระว่ายน้ำ รวมไปถึง ฟิตเนส ที่แยกห้องสำหรับเล่นเวทไว้อีกส่วน และตอบโจทย์การผ่อนคลายด้วย ห้องซาวน่า สตีม แยกหญิง ชาย ที่เอาเทคโนโลยีของหินมาลายัน หินซอล ที่ช่วยเรื่องบำบัดการหายใจมาเป็นตัวชูโรง ต่อมาที่ชั้น 35 มี KID’S YARD สนามเด็กเล่นที่มีดีไซน์เฉพาะอุปกรณ์สำหรับเด็ก ส่วนที่ชั้น 46 จะมี SKY LOUNGE ที่สามารถเทควิวเคลียร์ได้ 360 องศา ดีไซน์สูงโปร่งด้วยความสูงของพื้นจรดผนังที่ 6 ม. ตกแต่งผนังด้วยกระจกลายหินอ่อนที่สะท้อนทัศนียภาพจากภายนอกเข้ามาสู่ตัวอาคาร และยังมีสวนสวยแทรกตามชั้นอาคารบางชั้นเพื่อรองรับจำนวนยูนิตกว่า 981 ยูนิต
ผู้ออกแบบภายใน: บริษัท Bug Studio จำกัด บริษัทออกแบบภายในที่ก่อตั้งโดยนักออกแบบชื่อดังของไทย
ผู้ออกแบบภูมิทัศน์: LAB – Landscape Architects of Bangkok หนึ่งในผู้ออกแบบภูมิทัศน์ชั้นนำของประเทศไทย

โมเดลอาคารเป็นอัตราส่วน 1 ต่อ 125 จะเห็นว่าภายนอกของอาคารถูกออกแบบเป็นรูปตัว U ผสมกับตัว L ดังนั้น Layout อาคารจะมีทั้งยูนิตที่หันหน้าเข้าหากันแบบเยื้องๆ และยูนิตที่ไม่หันหน้าชนกับยูนิตใดเลย

จากมุมนี้จะเห็นว่าโครงการเพิ่มพื้นที่จอดรถและส่วนกลางสระว่ายน้ำที่ชั้นเก้าออกมา ไม่ให้เข้าไปอยู่ในส่วนของอาคารที่พักอาศัย เพื่อความเป็นส่วนตัวมากขึ้น

พื้นที่ดินของโครงการเป็นรูปตัว U ดังนั้นสองส่วนหลักก็คือ บริเวณคลับเฮ้าส์ และอาคารที่พักอาศัย โดยระยะห่างจากคลับเฮ้าส์กับตัวอาคารก็ห่างกันเพียงช่วงถนนที่รถเข้าออกโครงการเท่านั้นเอง
การวางทิศทางโครงการ
ทิศเหนือ: หากอาศัยอยู่ชั้นกลางๆ ถึงบนๆ หน่อย จะเป็นวิวเคลียร์แล้ว มองลงมาวิวที่สวยที่สุด คือ Hub บริเวณ จตุจักร ทั้งเส้นทางการเดินรถ BTS ทางด่วน และจะโดดเด่นมากในยามค่ำคืน
ทิศใต้: ด้านนี้วิวจะไม่เคลียร์ถึงแม้จะอยู่บนตึกสูงก็ตาม เพราะติดโครงการคอนโดมิเนียม ริทึ่ม พหลฯ – อารีย์ สูงราวๆ 50 ชั้น อยู่เยื้องๆ กับแนวที่ตั้งโครงการ ซึ่งเป็นอาคารเดียวที่บดบังทัศนียภาพบางส่วน ที่เหลือจะเป็นวิวเคลียร์
ทิศตะวันออก: ด้านนี้ที่ชั้น 1-8 จะถูกบล็อควิวด้วยอพาร์ทเม้นท์ 8 ชั้น ดังนั้นยูนิตที่พักอาศัยที่ชั้น 6-8 อาจจะโดนบล็อควิว แต่ถ้าขึ้นไปที่ชั้น 9 ซึ่งเป็นชั้นส่วนกลาง และยูนิตที่พักอาศัยบางส่วนจะเป็นวิวเคลียร์แล้ว

จากมุมนี้ทิศนี้จะเป็นวิวเคลียร์เหมือนกัน แต่ถ้าอยู่ชั้นไม่สูงมากก็จะมีอาคารบดบังวิวจากระดับสายตาอยู่บ้าง
ทิศตะวันตก: ด้านนี้จะถูกบล็อควิวโดยคอนโดลุมพินี สะพานควาย ต้องอาศัยอยู่ระดับชั้นที่ 27-28 ขึ้นไปเท่านั้น ถึงจะเห็นวิวเคลียร์ๆ
Master Plan

ที่ดินโครงการเป็นรูปตัว U แบ่งออกเป็นสองส่วนคือ ส่วนของคลับเฮ้าส์ และ อาคารที่พักอาศัย จาก Master Plan จะเห็นเลยว่าโครงการเน้นพื้นที่สีเขียวโดยมีสัดส่วนเป็นครึ่งต่อครึ่งของที่ดินโครงการเลย จะแบ่งออกเป็นพื้นที่สวนส่วนกลางด้านล่างสองส่วนคือบริเวณคลับเฮ้าส์ และ ด้านหน้าโครงการ ทำให้ผู้ที่มองมาจากด้านนอกที่ถนนประดิพัทธ์เห็นที่ดินตรงนี้เป็นพื้นที่สีเขียว อีกทั้งข้อดีอย่างหนึ่งในการเขยิบตัวยูนิตอาคารที่พักอาศัยไปด้านในก็คือลดมลภาวะทางด้านเสียงที่เกิดขึ้น ถึงแม้โดยรอบโครงการจะเต็มไปด้วยชุมชนดั้งเดิมก็ตาม แต่การออกแบบให้ยูนิตที่พักอาศัยเริ่มต้นที่ ชั้น 6 ประกอบกับความสูงล็อบบี้ที่กินพื้นที่ไปสามชั้นแล้ว ถือว่าจากอาคารปกติยูนิตที่พักอาศัยของโครงการนี้จะอยู่ที่ชั้น 10 นั่นเอง ถือเป็นการหลีกเลี่ยงการบล็อควิวของคอนโดไดมอนพาร์คทางทิศตะวันออกด้วย และลดมลภาวะต่างๆ ด้านนอกโครงการได้เป็นอย่างดี
Club House Plan
1st Floor

พื้นที่ชั้นแรกจะแบ่งออกเป็น 3 ส่วนหลักๆ ด้วยกัน คือส่วนที่เป็น Retail ซึ่งปัจจุบันเป็นโซนรับแขกสำหรับ Sales Gallery และพื้นที่สวนส่วนกลางติดกับคลับเฮ้าส์ รวมไปถึงพื้นที่ห้องครัวที่มีทั้งเคาน์เตอร์ครัว และอุปกรณ์ครบครัน โดยโครงการเลือกใช้วัสดุในครัวของ Gaggenau ตามมาตรฐานของโรงแรม 5 ดาว พร้อมลานบาร์บีคิวที่ให้ผู้อยู่อาศัยทุกคนได้ทำกิจกรรมร่วมกัน โดยจาก Layout ถูกแบ่งออกเป็นสัดส่วนชัดเจนระหว่างพื้นที่สร้างสรรค์กับพื้นที่พักผ่อน
2nd Floor

แปลนชั้นสองถูกแบ่งออกเป็น 2 ส่วนหลักๆ เช่นกัน โดยส่วนหลักของชั้นนี้จะเป็นพื้นที่ Co Working Space เป็นพื้นที่สีเขียวหากดูจากภาพรวมของโครงการ อารมณ์จะประมาณ Sales Gallery ณ ปัจจุบัน จากแปลนจะเห็นพื้นที่วงกลมตรงกลางพื้นที่ Co Working Space นั่นคือ Green Chandelier ขนาดใหญ่ ที่เข้ามาเติมเต็มความเป็นธรรมชาติ บนความหรูหรา ส่วนทางด้านขวามือของแปลนจะเป็นห้องดูหนังที่สามารถจัดสรรค์ฟังก์ชั่นให้เป็นห้องประชุมได้ ส่วนด้านบนเป็นบันไดวนขึ้นไปสู่ชั้นดาดฟ้าได้โดยส่วนกลางจะมีแค่ 3 ชั้น แต่ก็มีลิฟท์โดยสารหนึ่งตัวสำหรับลำเลียงผู้พักอาศัยไปทุกชั้น
Roof Top

ที่ชั้นดาดฟ้าของคลับเฮ้าส์โครงการจัดเป็นพื้นที่สีเขียวรูปตัว T ล้อมรอบไปด้วยต้นไม้ มีมุมพักผ่อนและสวนหย่อมขนาดไม่ใหญ่มาก บริเวณ Terrace ทางเดินที่เชื่อมต่อกับบันไดทางขึ้นมองลงไปจะเห็นลายละเอียดของ Texture ชั้นล่าง ฝั่งหนึ่งจะเป็นบ่อน้ำ ส่วนอีกฝั่งจะเป็นทางเดินชั้นล่าง ติดกับสวนสวยข้างคลับเฮ้าส์ สามารถเทควิวน้ำตกริมรั้วโครงการจากมุมนี้ได้เลย
Residential Floor Plan
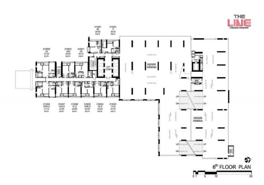
6th Floor

ยูนิตที่พักอาศัยเริ่มต้นที่ชั้น 6 ประกอบด้วยยูนิตพักอาศัย 11 ยูนิต ส่วนใหญ่จะเป็นห้อง Type 1 ห้องนอน ขนาด 33.50 ตร.ม. และมีห้องขนาดใหญ่ขนาด 51 ตร.ม. ขึ้นไป 2 ยูนิต ทางฝั่งทิศใต้ของโครงการ มีระเบียงห้องที่หันหน้าออกไปทางทิศตะวันออกซึ่งเป็นคลับเฮ้าส์ และทิศตะวันตกที่เป็นวิวที่เคลียร์ที่สุดรองลงมาจากทิศเหนือ บริเวณลิฟท์จะมีทางออกสองฝั่ง ฝั่งหนึ่งมีผนังกั้นพร้อมประตูกันส่วนออกไปทางยูนิตขนาด 33 ตร.ม. ขึ้นไป ส่วนอีกฝั่งเป็นทางเชื่อมติดต่อกับห้อง 36.25 ตร.ม. และมีห้องขนาด 28.50 ตร.ม. อยู่ติดกับบันไดหนีไฟ จากลานจอดรถชั้น 6-7 จะมีทางเชื่อมเข้าสู่ตัวอาคารได้เลย โดยใช้การเข้าออกระบบ Key Card ทั้งนี้โครงการมีที่จอดรถชั้นใต้ดินด้วยอีกหนึ่งชั้น
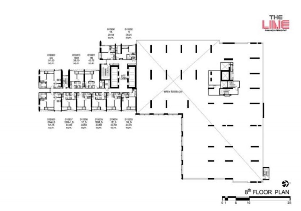
8th Floor

แปลนของชั้น 8 มีรูปร่างคล้ายกับแปลนของชั้น 6-7 แต่ในส่วนที่จอดรถจะเป็นงานระบบของส่วนกลางชั้น 9 และยังคงมีตำแหน่งของยูนิตต่างๆ เหมือนชั้น 6-7 รวมทั้งหมด 11 ยูนิตในชั้นนี้
9th Floor

ชั้น 9 ประกอบไปด้วยยูนิตทั้งหมด 22 ยูนิต ห้องทางฝั่งทิศใต้จะเป็นทางเดินคู่ขนานของยูนิตคือมียูนิตทั้งสองฝั่ง ส่วนห้องที่หันไปทางทิศตะวันตกและทิศเหนือของชั้นนี้จะเป็นทางเดินแบบ Single Corridor ฝั่งตรงข้ามห้องโครงการจะปิดผนังทึบ การเข้าออกส่วนกลางคือบริเวณทางเชื่อมที่เป็นสวน เข้าออกโดยการใช้ Key Card โดยห้องที่อยู่ใกล้กับทางเข้าส่วนกลางมากที่สุดคือ ห้อง 1 ห้องนอน ขนาด 33.50 ตร.ม. ซึ่งอาจจะวุ่นวายพอสมควร แต่ได้รับข้อดีจากตำแหน่งที่ใกล้กับส่วนกลางมากที่สุด ภายในส่วนกลางจะประกอบไปด้วย ห้องซาวน่า สตีม ห้องออกกำลังกาย ห้องฟรีเวทที่ปรับเปลี่ยนฟังก์ชันเป็นห้องโยคะได้ และสระว่ายน้ำ โดยห้องที่มีความเป็นส่วนตัวที่สุดของชั้นนี้คือบริเวณมุมขวาบนของแปลนคือห้องขนาดใหญ่ที่สุดของชั้นนี้เป็นห้อง 2 ห้องนอน ขนาด 65.50 ตร.ม.
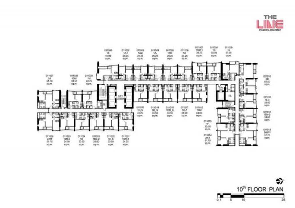
10th Floor

ขึ้นมาที่ชั้น 10 จะเป็นยูนิตที่พักอาศัยทั้งหมดไม่มีส่วนกลางแทรก ยูนิตส่วนใหญ่จะเป็นห้องขนาด 1 ห้องนอนขนาด 33 – 35 ตร.ม. โดยจะมียูนิตทางด้านล่างของโครงการที่ Layout เป็นรูปตัว U จะมองเห็นระเบียงกันได้แบบเยื้องๆ ห้องขนาดใหญ่สุดคือห้อง 2 ห้องนอน ขนาด 65.50 ตร.ม. ยังอยู่ตำแหน่งเดิมที่มุมขวาบนของแปลน และห้องขนาด 51.50 – 51.75 ยังอยู่ตำแหน่งด้านทิศใต้ของโครงการเช่นกัน โดย Floor Plan นี้จะเป็น Layout ของยูนิตแบบนี้ไปจนถึงชั้น 19, 20, 22, 25, 26, 27, 28, 31, 32, 33, 34 อาจจะมีการสลับสับเปลี่ยนตำแหน่งห้องขนาดประมาณ 26 – 33 ตร.ม. เล็กน้อยตามความเหมาะสม ยกเว้นที่ชั้น 11 ที่เป็นชั้นแรกที่มีห้องขนาด 111.50 ตร.ม. เพิ่มเข้ามาในตำแหน่งใกล้กับลิฟท์เซอร์วิสที่มีระเบียงหันไปทางตะวันออก
17, 23, 29th Floor

ที่ชั้น 17, 23, 29 ตำแหน่งห้องมีการเปลี่ยนแปลงเล็กน้อยเพราะมีห้องขนาด 111.50 แทรกเข้ามาบริเวณใกล้กับลิฟท์เซอร์วิส ระเบียงห้องหันออกไปทางทิศตะวันออก
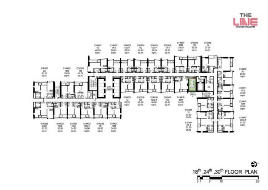
18, 24 ,30th Floor
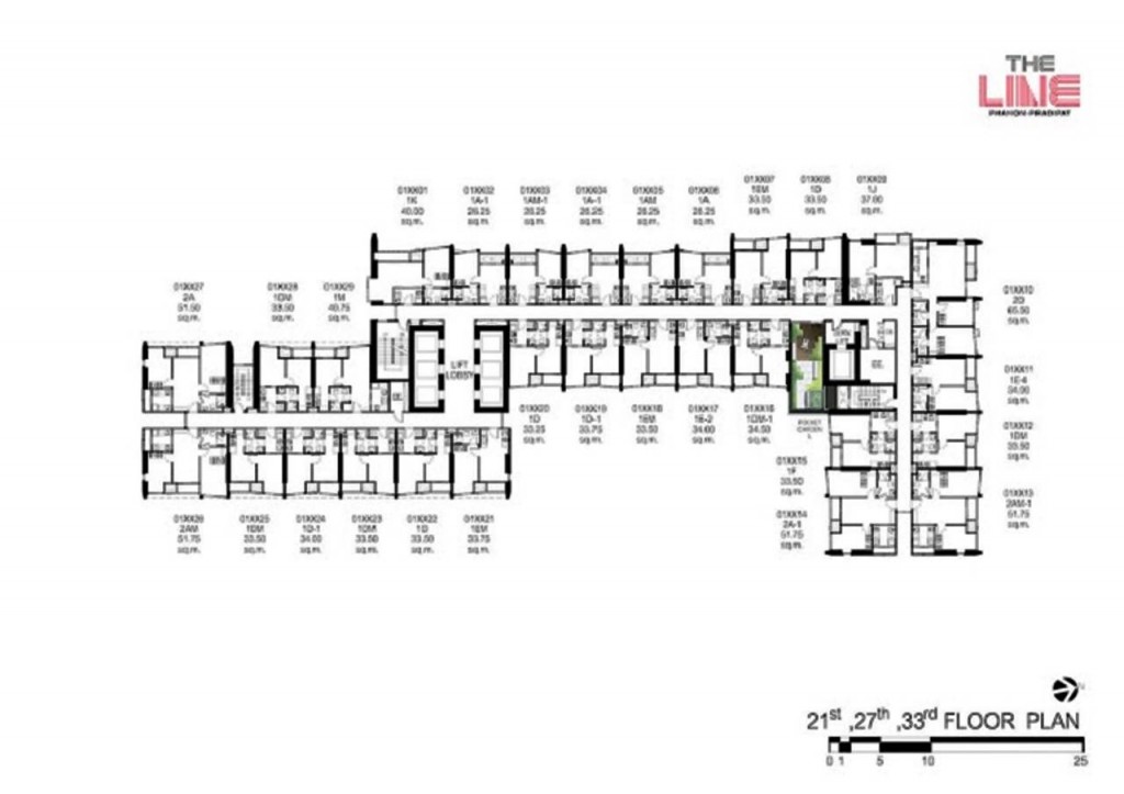
21, 27, 33th Floor

ส่วนในชั้น 18, 24 ,30 แปลนจะคล้ายๆ กับชั้น 10 แต่มีในส่วนของ Pocket Garden เพิ่มเข้ามา รวมไปถึงชั้น 21, 27, 33 ก็จะมี Pocket Garden เพิ่มเข้ามาแต่มีพื้นที่ใหญ่กว่าสวนชั้น 18, 24 ,30
35th Floor

ชั้น 35 ยูนิตที่อยู่ทางฝั่งซ้ายของลิฟท์จากแปลนถูกเปลี่ยนเป็นพื้นที่สนามเด็กเล่น ส่วนทางด้านขวาตำแหน่งห้องยังอยู่ในตำแหน่งเดิม มีการเปลี่ยนแปลงมุมขวาล่างของแปลนจากยูนิตที่อยู่อาศัย 4 ยูนิตให้เป็นห้องงานระบบ และแทรกห้องขนาด 111.50 ตร.ม.เข้าไปโดยหันหน้าระเบียงออกมาจากทิศตะวันออกที่ชั้นนี้และชั้น 41 โดยตำแหน่งห้องจะอยู่บริเวณลิฟท์เซอร์วิส เฉลี่ยยูนิตที่ชั้นนี้จะอยู่ที่ประมาณ 14 ยูนิตต่อชั้น มาที่ชั้น 36 – 44 ยูนิตก็จะเฉลี่ยอยู่ที่ประมาณ 14 ยูนิตเช่นกัน โดยจะตัดเอาแปลนที่เป็นสนามเด็กเล่นออกไป ส่วนชั้น 36 มุมขวาล่างจะเป็นงานระบบไม่มียูนิตเหมือนชั้น 35 แต่ที่ชั้น 37 ขึ้นไปจนถึง 44 แปลนงานระบบจะถูกเปลี่ยนเป็นห้องขนาด 33.50 ตร.ม. 2 ห้องอยู่ด้านบน และห้องขนาด 51.75 ตร.ม. อยู่ด้านล่างโดยหันหน้าระเบียงไปทางทิศเหนือและทิศใต้
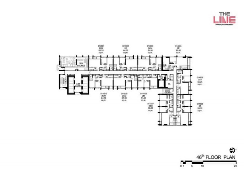
46th Floor

ที่ชั้น 45 – 46 ซึ่งเป็นชั้นบนสุด แปลนและตำแหน่งห้องจะคล้ายๆ กัน โดยโครงการเน้นสองชั้นนี้ให้เป็นห้องขนาดใหญ่ระดับ 64 ตร.ม. ขึ้นไป และมีห้องขนาดใหญ่สุด 3 ห้องนอนที่ 86 ตร.ม. อยู่ทางมุมขวาของแปลน ยูนิตเฉลี่ยชั้น 45 จะอยู่ที่ 11 ยูนิตต่อชั้น แต่ที่ชั้น 46 จะเหลือเพียง 10 ยูนิตต่อชั้น เนื่องจากพื้นที่ของอีกหนึ่งยูนิต ถูกเปลี่ยนเป็น Sky Lounge ขนาดประมาณ 80 ตร.ม.
Unit Layout

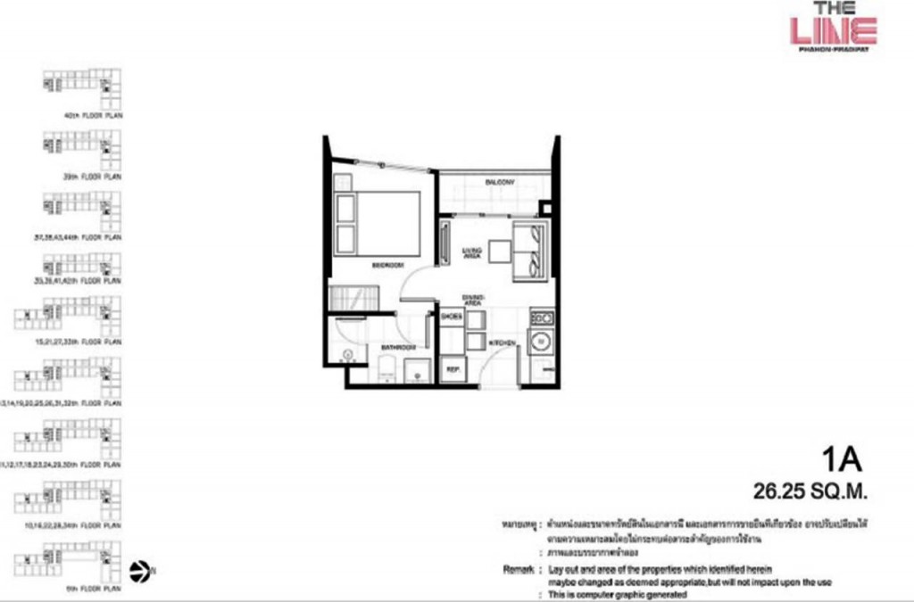
ห้องแบบ 1 ห้องนอน 1 ห้องน้ำ ขนาดเริ่มต้น 26.25 ตร.ม. มีให้เลือก Type เดียว โดยจากแปลน ถึงแม้ห้องจะดูเล็ก แต่ด้วยการออกแบบ Layout เป็นรูปสี่เหลี่ยมจตุรัสจึงวางผังโครงสร้างห้องง่าย โดยแบ่งเป็น 5 ส่วนหลักๆ ประกอบด้วยห้องครัวที่อยู่ติดกับปากทางเข้าห้อง และมีทั้งพื้นที่ของเคาน์เตอร์ครัว และพื้นที่วางโต๊ะอาหาร ถัดไปเป็นห้องนั่งเล่นที่มีขนาดพอกับห้องครัว และเชื่อมต่อกับระเบียงของห้อง ส่วนพื้นที่ใช้สอยทางฝั่งซ้าย แบ่งออกเป็นห้องนอนที่มีห้องในตัว พื้นที่ภายในห้องนอนไม่กว้างมากเรียกได้ว่าวางเตียงก็ไม่เหลือพื้นที่ให้เดินปลายเตียง แต่ก็ได้รับฟังก์ชันของพื้นที่ในส่วนอื่นๆ เพิ่มขึ้น

ห้องแบบ 1 ห้องนอนขนาด 33.50 -34.00 (S) คำว่า S ตัวนี้คือห้องที่มีกริลล์ทองแดงติดอยู่บริเวณระเบียง มีให้เลือกหลาย Type ทั้ง Type ที่ไม่มีกริลล์ทองแดง รวมไปถึงระเบียงที่มีให้เลือกทั้งแบบเชื่อมต่อกับห้องนอน และเชื่อมต่อกับห้องนั่งเล่น ซึ่ง Layout ของห้องขนาด 33.50 – 34.00 ตร.ม. ก็จะไปเพิ่มพื้นที่ของห้องนั่งเล่นแทน โดยสามารถวางโต๊ะทำงานหรือโต๊ะอาหารเพิ่มได้ รวมไปถึงพื้นที่ซักล้างเพิ่มบริเวณระเบียง

ห้อง 2 ห้องนอน 1 ห้องน้ำขนาด 51.50 ตร.ม. ห้องครัวจะถูกสร้างเป็นครัวปิด พร้อมกับ Yard หรือพื้นที่ซักล้างที่เชื่อมต่อกับห้องครัว พื้นที่ใช้สอยส่วนใหญ่ถูกจัดสรรให้เป็นในส่วนของห้องนั่งเล่นขนาดใหญ่ และ Master Bedroom ที่มีพื้นที่กว้างขวางขึ้น ส่วนระเบียงจะเชื่อมต่ออยู่กับห้องนั่งเล่น ห้องนอนที่ 2 จะมีความกว้างพอๆ กับ Master Bedroom แต่มีขนาดความยาวน้อยกว่า ฟังก์ชันพิเศษสุดสำหรับห้องนี้ก็คือ ประตูห้องน้ำที่สามารถเข้าได้สองทางจากโซนนั่งเล่นและ Master Bedroom

ห้องแบบ 3 ห้องนอน 2 ห้องน้ำ ห้องแบบนี้จะมีเพียง 6 ห้องทั้งโครงการ จะตั้งอยู่ตำแหน่งเดียวกันของทุกชั้น โดยจะอยู่ที่ชั้น 11, 17, 23, 29, 35 และ 41 พื้นที่ของห้องเป็นห้องหน้ากว้าง เน้นพื้นที่ใช้ซอยของห้องนั่งเล่น และ Master Bedroom ที่มีห้องน้ำในตัวขนาดใหญ่ มีฟังก์ชันอ่างล้างหน้าแบบ His & Her และอ่างอาบน้ำ พร้อมระเบียงที่เชื่อมต่อกับห้องนอน โดยห้องนอนที่ 2 และห้องนอนที่ 3 จะมีขนาดเท่าๆ กัน ไม่มีระเบียง โดยระเบียงหลักของห้องจะอยู่บริเวณห้องนั่งเล่น ครัวขนาดใหญ่เป็นครัวแบบปิดตีผนังกั้นห้องเป็นสัดส่วน มีพื้นที่ห้องเก็บของเพิ่มเติมซึ่งจะปรับใช้งานเป็นห้องพระหรือห้องอเนกประสงค์ต่างๆ ได้ โดยส่วนที่แตกต่างจาก Layout ห้องอื่นๆ มากที่สุดก็คือห้อง Type นี้จะมี Terrace ยื่นออกไปทางกาบขวาของแปลน เหมือน Foyer ของห้อง เนื่องจากอยู่บริเวณทางเข้า – ออก ห้อง ให้ความรู้สึกเหมือนอยู่บ้านเลย
สิ่งอำนวยความสะดวกภายในโครงการ
คลับเฮ้าส์
Lobby
สระว่ายน้ำพร้อมจากุซซี่ และสระเด็ก
สวนส่วนกลาง
สนามเด็กเล่น บนชั้น 35
ห้องพักผ่อนเอนกประสงค์ ชั้น 46
ฟิตเนส
ห้องสมุด
ห้องซักผ้า
Free Wi-Fi ที่คลับเฮ้าส์, Lobby และส่วนสันทนาการ
จุดบริการชาร์ตแบตเตอรี่ สำหรับรถยนต์พลังงานไฟฟ้า
Access Card
ระบบรักษาความปลอดภัย และ CCTV ตลอด 24 ชั่วโมง
รีวิวภายในห้องตัวอย่าง
สิ่งที่จะได้รับจากโครงการ
พื้น: พื้นห้องนอนเป็นลามิเนต, ห้องครัว ห้องน้ำ ระเบียงเป็นกระเบื้องแกรนิตโต้
ผนัง: ฉาบเรียบสีขาว
พื้นจรดเพดานความสูง: 2.7 ม.
เฟอร์นิเจอร์: Fully Furnished ได้รับ ชุดครัว, ตู้เสื้อผ้า, สุขภัณฑ์ (สามารถเลือกรับหรือไม่รับก็ได้)
เครื่องปรับอากาศ: Daikin ได้รับตามจำนวน ห้องนอน + ห้องนั่งเล่น
สุขภัณฑ์: อ่างล้างหน้า, โถสุขภัณฑ์, ก็อกน้ำ, ฝักบัว ของ Cotto
ชุดครัว: Hob & Hood ของ Mex
ห้องตัวอย่าง 1 ห้องนอน 1 ห้องน้ำ พื้นที่ใช้สอย 26.50 ตร.ม.

โครงการเลือกใช้กลอนประตูเป็นระบบดิจิตอลล็อค 4 ระบบ สามารถใช้ระบบไร้สาย ระบบตั้งรหัส ระบบคีย์การ์ด และล็อคระบบมือจากด้านในได้ เป็นดิจิตอลล็อคของ Yale

เมื่อเปิดประตูเข้าไปส่วนแรกจะเป็นห้องครัวที่แบ่งออกเป็นสองฝั่ง ด้านในเป็นพื้นที่ของห้องนั่งเล่น ซึ่งแบ่งโซนห้องอย่างชัดเจนด้วยการปูวัสดุพื้นคนละวัสดุกัน แต่ยังยึดโทนสีเดียวกันไว้

โครงการมอบชุดครัวให้ เป็นเคาน์เตอร์ครัวแนวยาว หน้าบานชั้นเก็บของลามิเนตลายไม้ ส่วนท็อปด้านบนที่เห็นเป็นสีขาวๆ เป็นกระเบื้องพอร์ซเลนหล่อแบบชิ้นเดียวมีความแข็งแรง ด้านล่างมีชั้นเก็บของ ช่องใส่เครื่องซักผ้าขนาดมาตรฐานแบบฝาหน้าที่ขนาดประมาณ 60×60 ซม. และช่องวางไมโครเวฟ

นอกจากเคาน์เตอร์ครัวโครงการมอบซิงค์ล้างจานของ Mex แบบไม่มีที่พักจาน พร้อมเตาสองหัวระบบสัมผัส และเครื่องดูดควันของ Mex โดยมีพื้นที่เตรียมครัวอยู่ตรงกลางเคาน์เตอร์มีขนาดใหญ่พอสมควร ผนังครัวเป็นวัสดุกระจกเคลือบสีดำ หรือ คัลเลอร์โคท มีผิวมันทำความสะอาดได้ง่าย ด้านบนจะเป็นชั้นเก็บของหน้าบานซาตินสีแชมเปญกันรอยนิ้วมือ

เนื่องจากซิงค์ล้างจานไม่มีที่พักจานด้านล่าง โครงการจึงมอบที่พักแก้วพักจานไว้ให้หลังซิงค์น้ำด้านบนตามภาพ

อีกหนึ่งฝั่งเป็นพื้นที่ใช้สอยของอุปกรณ์ไฟฟ้า และโต๊ะรับประทานอาหารแบบสองที่นั่ง หรือจะใช้ส่วนนี้เป็นส่วนเพิ่มเติมในการประกอบอาหารก็ได้

เมื่อพาดที่ปิดชั้นวางลงมาโต๊ะรับประทานอาหารจะถูกเปลี่ยนฟังก์ชันให้มีที่วางขาใต้โต๊ะได้ เพื่อความสะดวกในการรับประทานอาหาร

ถัดมาเป็นห้องนั่งเล่นขนาดไม่ใหญ่มาก แต่โครงการตกแต่งห้องตัวอย่างออกมาได้อย่างลงตัว ถัดไปด้านในสุดจะเป็นพื้นที่เชื่อมต่อไปสู่ระเบียงของห้อง

จากภาพจะเห็นว่าพื้นที่การวางโซฟาสามารถปรับเปลี่ยนเป็นโซฟาขนาด 3 ที่นั่งได้ หากไม่ได้ตกแต่งด้วยชั้นวางของด้านหลัง จะช่วยเพิ่ม Space ของระยะการดูทีวีให้ห่างออกไป และเลือกจอโทรทัศน์ขนาดใหญ่ขึ้นได้

ระยะห่างจากโซฟาถึงโทรทัศน์โครงการเลือกใช้โทรทัศน์แบบติดผนัง หากจะปรับโทรทัศน์ให้ใหญ่ขึ้นอาจติดปัญหาเรื่องผนังกั้นส่วนห้องนอนที่ยื่นออกมาไม่มากนัก แต่ก็พอที่จะติดตั้งโทรทัศน์ขนาด 43-50 นิ้วได้อยู่

ประตูบานเลื่อนกั้นส่วนของระเบียงเป็นวงกบอลูมิเนียมสีเข้ม กระจกลามิเนตสูงตั้งแต่พื้นจรดเพดาน จากในห้องมองออกไปก็จะเห็น Space เต็มๆ ของระเบียงเลย

แบบห้องจริงจะไม่ได้รับการบิวท์อินฝ้าตามภาพ แต่โครงการจะทำการเจาะร่องม่านไว้ให้ขึ้นไปสูงจากเพดานห้องอีก 10 ซม. เพื่อรักษาความสวยงามของห้อง แต่ไม่ได้มอบม่านให้

พื้นที่โดยรวมของระเบียงห้องขนาด 26.25 ตรม. โครงการจัดแต่งสวนกระบองเพชรเป็นไอเดีย โดยที่ยังเหลือพื้นที่ใช้สอยอีกพอสมควร พื้นระเบียงเป็นกระเบื้องแกรนิโต้ผิวด้าน

ที่กั้นตกเป็นกระจกลามิเนต สูงประมาณ 1.5 ม. มีราวจับเป็นอลูมิเนียมสีเงาลับกับเส้นกริดด้านนอกของตัวอาคาร

ด้านบนระเบียงมีฟังก์ชันพิเศษสำหรับวางคอมเพรสเซอร์แอร์ประมาณ 2 ตัว ส่วนที่รับน้ำหนักคอมเพรสเซอร์แอร์ไม่ใช่ตะแกรงเหล็กสีทองแดงแต่เป็นชั้นวางที่ถูกติดตั้งอีกที ดั้งนั้นไม่ต้องเป็นห่วงว่าคอมเพรสเซอร์แอร์จะตกลงมาเมื่อมีอายุการใช้งานนาน

จากมุมนี้จะเห็นว่าหากไม่ได้ติดทีวีไว้ที่ผนัง เลือกการใช้งานบนชั้นวางทีวี ก็ยังเหลือพื้นที่ติดตั้งชั้นวางได้สบาย

จากประตูทางเข้าห้องนอน ทางเดินอาจจะดูคับแคบไปหน่อยตามขนาดห้องที่เป็นห้องเริ่มต้น แต่ก็ยังดูเป็นสัดส่วนเดินเข้าเดินออกได้อยู่ หากเลือกโต๊ะกลางที่เล็กลงหน่อย หรือเอาเก้าอี้สำรองออกไปก็จะดุโล่งขึ้นทันที

ประตูห้องนอนติดเชิงบัวสีขาว วัสดุประตูที่โครงการมอบให้จะเป็นประตู HDF ไม้อัดแน่น ถ้าเป็นห้องจริงผนังจะเป็นสีขาวฉาบเรียบ

เมื่อนำเตียงมาวางจะเห็นได้เลยว่าพื้นที่ปลายเตียงไม่สามารถเดินได้แล้ว การขึ้น – ลง เตียงจึงทำได้เพียงฝั่งเดียว

ที่หัวเตียงโครงการติดปลั๊กไฟให้ทั้งสองด้าน จากการไม่เน้นพื้นที่ของห้องนอนที่กว้างนัก ห้องนอนจึงออกมาในรูปแบบของ Layout ห้องแบบยาว จากมุมนี้จึงจะเห็นว่าด้านข้างเตียงสามารถเลือกวางชั้นข้างเตียงได้ทั้งสองข้าง

อีกฝั่งของเตียงเป็นตู้เสื้อผ้าที่โครงการมอบให้ หน้าบานเป็นลามิเนตกับกระจกสีชาดำ ประตูเป็นแบบเปิดเข้า – ออก ซึ่งอาจจะเสียพื้นที่ในการใช้งานเล็กน้อยจากรัศมีประตูตอนเปิดใช้งาน

เมื่อเปิดประตูออกมาพื้นที่เก็บเสื้อผ้าจะออกมาตามภาพ พร้อมไฟ LED Auto ที่เปิดขึ้นตอนเปิดประตูตู้เสื้อผ้า

สามารถเปิดประตูด้านข้างออกมาได้ จะพบกระจกเงากับที่เก็บเครื่องประดับ ฟังก์ชันนี้ถูกออกแบบมาจากพื้นที่ห้องขนาดเล็ก และไม่สามารถหามุมวางโต๊ะเครื่องแป้งได้

ห้องขนาด 26.25 ตร.ม. มี Type ห้องให้เลือกลักษณะเดียวคือ ห้องน้ำของทุกห้องจะอยู่ในตัวห้องนอน เน้นโปรดักส์ห้องเป็นพื้นที่พักผ่อนมากกว่าพื้นที่รับแขก ตัวห้องน้ำถูกดร็อปพื้นลงไปตามภาพ ป้องกันน้ำไหลออกสู่ห้อง

ท็อปอ่างล้างหน้าเป็นวัสดุพอร์ซเลนหนา 12 มม. มีความแข็งแรงทนทาน ผนังด้านข้างโครงการติดตั้งระบบไฟไว้ให้เรียบร้อยแต่ไม่มีตัวครอบกันน้ำ

ก็อกน้ำเป็นหัวผสม H & C ติดตั้งเครื่องทำน้ำอุ่นให้เรียบร้อย พร้อมขอบด้านในที่กว้างพอสำหรับจะวางอุปกรณ์ในการอาบน้ำแต่งตัว

สุขภัณฑ์ที่โครงการมอบให้ เป็นโถสุขภัณฑ์แบบ 2 ชิ้น จุน้ำได้ 4.5 ลิตร อารมณ์ประมาณว่ากดน้ำ 1 ครั้งแล้วต้องรอบรรจุน้ำใหม่สักครู่ ถึงจะกดได้เต็มแรงเท่าเดิม

ถัดไปจากโถสุขภัณฑ์เป็นผนังที่ทำการดรอปเข้าไปให้เว้าเป็นช่องวางของ สามารถวางมือถือ หนังสือ พักไว้บนชั้นได้เมื่อทำธุระเสร็จ

Shower Box มีธรณีกั้นน้ำไหลยกสูงขึ้นมาตามภาพ ภายในห้องน้ำจะมี Floor Drain แบบซ่อนใต้พื้นสองจุด คือจุดอาบน้ำกับบริเวณพื้นที่ข้างๆ โถสุขภัณฑ์ บานกั้นโซนเป็นกระจกนิรภัย

หากเปรียบเทียบกับโครงการทั่วไปจะเห็นเลยว่าบานกระจกนิรภัยกั้นโซนของโครงการนี้นั้นจะหนากว่าที่อื่นๆ โดยอยู่ที่ประมาณ 10 มม.

โครงการมอบฟักบัวแบบปรับระดับน้ำให้ พร้อม Rain Shower ผนังของส่วนนี้จะเป็นหินลายที่นำเข้ามาจากประเทศสเปน
ห้องตัวอย่าง 1 ห้องนอน 1 ห้องน้ำ พื้นที่ใช้สอย 33.50 ตร.ม.

ห้องตัวอย่างขนาด 33.50 ตร.ม. เป็นห้อง Type 1DM_(S) ที่มีกริลเหล็กอยู่ด้านนอกที่กั้นตกระเบียง เป็นการดีไซน์เพื่อบดบังทัศนีภาพจากสายตาภายนอก

ทางเดินเข้าห้องประกอบไปด้วยห้องครัว และมีฟังก์ชันที่เพิ่มเข้ามาคือชั้นเก็บของ และตู้รองเท้า หากเปรียบเทียบกับห้องขนาด 26.25 จะเห็นว่าห้องครัวมีขนาดเล็กกว่า เพราะพื้นที่ใช้สอยส่วนใหญ่จะมาอยู่ที่ห้องนั่งเล่นกับห้องนอน

ด้านล่างตู้เก็บของเป็นช่องสำหรับวางเครื่องซักผ้าฝาหน้า แต่อาจจะใช้งานลำบากหน่อยเนื่องจากตำแหน่งตั้งอยู่บริเวณปากทางเข้าห้อง หากไม่ได้ติดตั้งเครื่องซักผ้าก็สามารถใช้สอยพื้นที่นี้เป็นที่เก็บของอย่างอื่นได้

เคาน์เตอร์ครัวส่วนใหญ่ที่โครงการมอบให้จะทำชั้นวางด้านบนให้ยื่นออกมา และอยู่ในสเปคที่สูงกว่าตู้เย็นขนาดประมาณ 9 คิวบ์ แบบหนึ่งประตู ดังนั้นเมื่อวางตู้เย็นจะเห็นพื้นที่ที่ใช้วางของบนตู้เย็นได้ตามภาพ

เหนือตู้เย็นเป็นชั้นวางของที่โครงการจัดสรรให้เป็นงานระบบไฟของในห้อง ถือเป็นการบดบังสายตาของคัทเอาท์และระบบไฟต่างๆ ไปในตัว

เคาน์เตอร์ครัวเป็นสเปคเดียวกับห้องขนาด 26.25 ตร.ม. แต่จะมีขนาดเล็กกว่าจากส่วนของที่วางตู้ซักผ้าที่หายไป

ด้านบนโครงการยังมีฟังก์ชั่นการใช้งานเหมือนสเปคเคาน์เตอร์ที่โครงการมอบให้ แต่ด้วยการที่โครงการเน้นห้องแบบนี้ไปที่พื้นที่ใช้สอยของส่วนอื่นๆ จึงทำให้พื้นที่เตรียมครัวลดน้อยลงด้วย แต่ทั้งนี้ห้องแบบนี้มีหลายรูปแบบ ต้องอยู่ที่ความชอบของผู้อาศัย

ภายในห้องน้ำประกอบไปด้วยสุขภัณฑ์พื้นฐาน แต่บริเวณพื้นที่รอบวงของโถสุขภัณฑ์จะกว้างกว่าพอสมควรหากเปรียบเทียบกับห้องขนาด 26.25 ตร.ม.

อ่างล้างหน้ายังท็อปด้วยพอร์ซเลนหนา สามารถวางของตามของอ่างได้ พร้อมติดตั้งระบบไฟให้ผนังด้านข้าง และมอบชั้นวางของที่เป็นกระจกเงาให้ตามสเปคของโครงการ

Shower Box มีขนาดประมาณ 120×80 ซม. ไม่ใหญ่มาก ยังคงลำบากสำหรับการใช้งานของคนตัวใหญ่ เนื่องจากประตูเป็นแบบเปิดเข้าจะต้องเสียพื้นที่ในการเปิดเข้าออกพอสมควร

กลับมาที่ห้องนั่งเล่นโครงการมอบประตูบานเลื่อนสามตอนให้เพื่อกั้นโซนห้องครัวกับห้องนั่งเล่นสำหรับห้อง Type นี้

โครงการเลือกวางโซฟาขนาด 3 ที่นั่ง แต่ยังเหลือพื้นที่ให้ใช้สอยอีก สามารถเลือกวางโซฟา L Sahpe 4-5 ที่นั่งได้สบายจากพื้นที่กว้างและยาวของห้องที่ใหญ่พอสมควร

ถัดมาเป็นมุมโต๊ะทำงานจะจัดให้เป็นโต๊ะอาหารก็ได้ หากอยากเปลี่ยน Layout การจัดวางห้อง ก็สามารถเขยิบพื้นที่พักผ่อนเข้ามา แล้ววางโต๊ะอาหารไว้ใกล้กับครัวก็ได้

บริเวณพื้นที่โต๊ะทำงานจะอยู่ติดกับบานกระจกแบบสูงตั้งแต่พื้นจรดเพดาน มีบานกระทุ้งแบบล็อคมือเปิดรับลมได้ตามภาพ ถึงแม้จะมีรัศมีในการเปิดอันน้อยนิดก็ตาม

ชั้นวางทีวีโครงการเลือกเฟอร์นิเจอร์ที่มี Texture แบบลอยตัวมาเป็นไอเดีย เพื่อทำให้ห้องดูกว้างขึ้นหากไม่ได้ใช้สอยอะไรกับชั้นตรงนี้ ไม่ตกแต่งเพิ่มติดโทรทัศน์ไว้ที่ผนังเฉยๆ คงทำให้ห้องดูโล่งโปร่งมากทีเดียว

จากมุมนี้จะเห็นว่าพื้นที่ห้องนอนเชื่อมต่อกับระเบียงด้านนอก แต่ทั้งนี้ผู้อยู่อาศัยสามารถเลือกได้ว่าจะให้ระเบียงอยู่ในห้องนอนหรือห้องนั่งเล่นสำหรับห้อง Type นี้

สำหรับ Type ห้องนี้ที่ระเบียงจะถูกตีฝ้าพนังไว้สูงกว่าห้องขนาด 26.25 ตร.ม. พื้นที่ในการวางคอมเพรสเซอร์แอร์จึงถูกย้ายมาที่ด้านข้าง พร้อมกับกั้นโซนด้วยตะแกรงลูกกรงเหล็ก

ด้านในเป็นโต๊ะเครื่องแป้งพร้อมกระจกเงาขนาดประมาณ 1 ที่ใช้งาน บานกระจกเงาสามารถเปิดออกเพื่อเก็บเครื่องสำอางค์ได้
ห้องตัวอย่าง 2 ห้องนอน 1 ห้องน้ำ พื้นที่ใช้สอย 51.50 ตร.ม.

พื้นที่ส่วนแรกเมื่อเปิดประตูเข้ามาจะเป็นพื้นที่ของโต๊ะรับประทานอาหารขนาดใหญ่ ที่แยกออกมาจากส่วนของห้องครัวปิด

พื้นที่ขนาดใหญ่ส่วนนี้สามารถวางโต๊ะอาหารขนาดใหญ่ได้ถึง 4 ที่นั่ง โดยเหลือพื้นที่ให้เสิร์ฟอาหารรอบโต๊ะได้

ทางด้านซ้ายมือของห้องเป็นในส่วนของห้องครัวปิด และห้องนอนที่ 2 ก่อนเข้าห้องครัวมีพื้นที่สำหรับวางชั้นวางของซึ่งเป็นเฟอร์นิเจอร์ที่โครงการมอบให้ สามารถเลือกรับหรือไม่รับก็ได้

ชั้นเก็บของที่โครงการมอบให้ด้านล่างจะเป็นชั้นวางรองเท้า ด้านบนเป็นช่องเก็บของที่มีล็อคจัดวางไว้ให้เก็บของจุกจิกได้ พร้อมบานกระจกสำหรับแต่งตัวในโซนนี้ สามารถใช้มุมนี้เป็นโต๊ะเครื่องแป้งได้อีกหนึ่งจุด

ถัดมาเป็นพื้นที่ภายในห้องครัว เป็นครัวปิดมีบานประตูกั้นสองตอน บานกระจกเป็นแบบโปร่งใส สามารถมองทะลุกันได้ แบ่งเคาน์เตอร์ครัวเป็นสองฝั่ง เพื่อความสะดวกในการใช้งาน

ทางฝั่งขวามือจะเป็นโซนประกอบอาหาร มีเพียงเตาไฟฟ้าสองหัว ที่เหลือเป็นพื้นที่เตรียมครัวขนาดใหญ่ ฟังก์ชันการใช้งานของเคาน์เตอร์เป็นมาตรฐานเดียวกันกับทุกห้อง

ด้านล่างเคาน์เตอร์ครัวฝั่งขวามีทั้งช่องเก็บเครื่องซักผ้า และช่องวางไมโครเวฟขนาดมาตรฐานทั่วไป ที่เหลือเป็นชั้นวางของวางจาน

โครงการยังคงออกแบบชั้นวางของด้านบนให้ลับกับขนาดพื้นที่วางตู้เย็น โดยเหลือพื้นที่ให้วางของบนตู้เย็นได้ จากภาพน่าจะเป็นตู้เย็นขนาดประมาณ 9-11 คิวบ์ แบบประตูเดียว ส่วนงานระบบไฟก็จะอยู่ในชั้นด้านบนตู้เย็น

ห้องครัวมีพื้นที่เชื่อมต่อติดกับ Yard มีขนาดไม่ใหญ่มากถูกออกแบบมาให้เป็นพื้นที่ซักล้าง หรือตากผ้ามากกว่าจะเป็นระเบียงชมวิว

เมื่อออกมาจากห้องครัว ถัดมาจากโซนรับประทานอาหารจะเป็นห้องนั่งเล่น โครงการจัดสรรห้องนั่งเล่นด้วยโซฟาขนาด 3-4 ที่นั่ง โดยยังเหลือพื้นที่ให้วางชุดโซฟาขนาดใหญ่กว่านี้ได้สบาย

ชั้นวางทีวีที่โครงการจัดสรรเป็นไอเดียมีขนาดกว้างประมาณ 60 ซม. โครงการเลือกติดทีวีแบบแขวนผนัง เพื่อช่วยลดระยะห่างจากสายตาให้เพิ่มขึ้น ถัดไปจากมุมนี้จะเป็นพื้นที่ของระเบียงที่เชื่อมต่อกับห้องนั่งเล่น

ระเบียงของห้องขนาด 2 ห้องนอนมีขนาดยาวมาก ประตูบานเลื่อนจึงมีขนาดหน้าบานถึง 3 ตอน และมีฟังก์ชันของพื้นระเบียงจรดฝ้าที่สูงโปร่ง โดยแบ่งแยกโซนเก็บคอมเพรสเซอร์แอร์มาไว้ที่ด้านข้างระเบียง

ฝั่งตรงข้ามห้องครัวเป็นในส่วนของห้องน้ำที่สามารถเดินเข้าห้องน้ำได้จากทาง Master Bedroom และส่วนกลางของห้อง ทางขวามือจะเป็นประตูห้องน้ำ ทางซ้ายเป็น Master Bedroom

โถสุขภัณฑ์ตั้งอยู่ในตำแหน่งระหว่างห้องอาบน้ำกับอ่างล้างหน้า พื้นที่จึงถูกจำกัดพอควร แต่ก็มีรัศมีที่กว้างพอสำหรับการใช้งานทุกอริยาบถ

พื้นที่อาบน้ำไม่กว้างมากนัก รวมไปถึงบานประตูที่มีรัศมีเปิดที่กว้างกว่าห้องอื่นๆ การใช้งานสำหรับคนตัวใหญ่อาจจะต้องหลบมุมเล็กน้อยเพื่อปิดประตูกลับไป ส่วน Floor Drain เป็นแบบซ่อนใต้พื้นและกันกลิ่น

ขนาดห้องนอน Master Bedroom ไม่ใหญ่มาก แต่ก็จัดสรรฟังก์ชันสำหรับห้องนอนมาให้อย่างครบครัน ไม่ว่าจะเป็นห้องน้ำในตัว ห้องแต่งตัว และห้องนอนที่สามารถวางเครื่องนอนขนาดคิงไซส์ได้

เข้ามาในห้องนอนที่สองโครงการจัดสรรให้เป็นห้องสำหรับเด็กๆ พื้นที่ไม่ใหญ่มาก แต่สามารถวางเตียงเดี่ยวได้ โดยเหลือพื้นที่ให้วางโต๊ะทำงาน และชั้นหนังสือ

บริเวณปลายเตียงสามารถวางตู้เสื้อผ้าได้ แต่จากภาพอาจจะต้องปรับเปลี่ยนเป็นตู้แบบประตูเลื่อน เพื่อความสะดวกในการใช้งาน
ทําเล & การเดินทาง
ศักยภาพทำเล
เนื่องจากตัวโครงการตั้งอยู่ห่างจาก BTS สถานีสะพานควายประมาณ 500 ม. ศักยภาพทำเลที่สำคัญจึงตกไปอยู่บริเวณจุดเชื่อมต่อของ สะพานควาย – ประดิพัทธ์ ซึ่งเป็นจุดศูนย์กลางของเส้นทางคมนาคมไปสู่สถานีกลางบางซื่อ รวมถึงย่านธุรกิจของย่านนี้อย่างบริเวณอารีย์ ถึงแม้บริเวณนี้จะไม่ได้ถูกนำไปเปรียบเทียบกับจุดที่เป็น CBD ของกรุงเทพอย่าง สีลม-สาทร หรือบริเวณสุขุมวิทก็ตาม แต่หากมองลึกลงบริเวณนี้เป็นทำเลที่ซ่อนศักยภาพเอาไว้มากมาย และในปัจจุบันก็กำลังมีการพัฒนาเติบโตขึ้นเป็นลำดับ ซึ่งจากแนวโน้มของที่ดินใจกลางเมืองอย่างสุขุมวิทเป็นต้น ณ ปัจจุบัน สามารถเรียกได้ว่ามีราคาสูงเกินกว่าจะพัฒนาโครงการที่อยู่อาศัยให้ขายออกได้ง่ายๆ แล้ว รวมไปถึงที่ดินที่ไม่หลงเหลือให้ต่อยอดความเจริญเติบโตอีกแล้ว ทำให้ทำเลที่แอบซ่อนความเจริญอยู่อย่างโซนหมอชิต – สะพานควาย – ประดิพัทธ์ ถูกดีเวลล็อปเปอร์ต่างๆ จับตามากขึ้น จากอานิสงส์ต่างๆ ดังนี้

ภาพ via daily.rabbitstatic.com
หากมองในแง่ของทำเลศักยภาพด้านการคมนาคมสิ่งที่น่าสนใจที่สุดก็คือเส้นทางคมนาคมของ Mass Transit อย่าง BTS และ MRT โดยบริเวณที่เป็นฮับเชื่อมต่อของบริเวณนี้คือช่วง หมอชิต – จตุจักร ที่เป็น Interchange เชื่อมต่อกันระหว่าง BTS และ MRT โดยในอนาคต บริเวณ BTS สถานีหมอชิตจะมีส่วนต่อขยายรถไฟฟ้าออกไปอีก ประมาณ 19 กม. คือช่วงหมอชิต – สะพานใหม่ – คูคต โดยคณะรัฐมนตรีได้มีมติเห็นชอบให้ รฟม. ดำเนินการก่อสร้างโครงการรถไฟฟ้าสายสีเขียวในปี 2551 ที่ผ่านมา ซึ่งตามแผนจะเกิดขึ้นแน่นอนโดยมีระยะเวลานานจนถึงปี 2563 กว่าจะเปิดใช้บริการ
นอกจากนี้สถานีกลางบางซื่อเองก็เป็นอีกหนึ่งจุดที่จัดเต็มการเชื่อมต่อในอนาคตจากโครงการรถไฟฟ้า สายสีแดง บางซื่อ-รังสิต, บางซื่อ-ตลิ่งชัน, Airport Link บางซื่อ-พญาไท สายสีน้ำเงิน บางซื่อ-ท่าพระ บางซื่อ-ราษฎร์บูรณะ และรถไฟฟ้าความเร็วสูง นอกจากนั้นยังมีรถไฟจากต่างจังหวัดในทุกทิศ เป็นรถไฟฟ้าชานเมือง รถไฟทางไกล บริเวณนี้ เรียกได้ว่าในอนาคตจะเป็นศูนย์กลางของการเดินทางไปยังทุกภูมิภาค และจะเปิดให้บริการจริงราวๆ ปี 2562

ภาพ via iammrmessenger.com
อีกหนึ่งเรื่องที่จะเข้ามาช่วยซัพพอร์ทด้านการเดินทางก็คือทางเชื่อมใต้ดินที่ตามแผนงานของรัฐได้ออกแบบการเชื่อมต่อ 3 สถานี คือ สถานีกลางบางซื่อ, รถไฟฟ้าใต้ดินสถานีกำแพงเพชร และรถไฟฟ้าใต้ดินสถานีจตุจักร ซึ่งเป็นจุดเดียวกับสถานีรถไฟฟ้าบีทีเอสหมอชิต และจะมีพลาซ่า 3 ชั้นที่รวมรวบสิ่งอำนวยความสะดวกไว้บริการ โดยชั้นแรกจะเป็นในส่วนของชอปปิ้งมอลล์ ชั้นที่ 2 เป็นโซนเอนเตอร์เทนเมนท์ และชั้นที่ 3 จะเป็นที่จอดรถใต้ดิน รวมไปถึงเส้นทาง BRT สายใหม่ที่มีระยะทางรวมกว่า 10.3 กิโลเมตร โดยมีแนวเส้นทางวิ่งเป็นวงกลม จากสถานีกลางบางซื่อ ผ่านรถไฟฟ้าบีทีเอสและรถไฟฟ้าใต้ดินที่ สถานีจตุจักร ห้างเซ็นทรัล ลาดพร้าว อาคารเอนเนอร์ยี่คอมเพล็กซ์ โครงการพัฒนาย่าน กม.11 มาสิ้นสุดที่สถานีจตุจักรของรถไฟสายสีแดง (บางซื่อ-รังสิต) โดยรูปแบบก่อสร้างจะเป็นโครงสร้างยกระดับ 3.14 กิโลเมตร แบ่งการพัฒนาออกเป็นสองช่วง และจะเริ่มมีการพัฒนาส่วนแรกในปี 2560 นี้ มูลค่าลงทุน 3,793.6 ล้านบาท

ภาพ via sirat-orr.com
สุดท้ายเป็นโครงการก่อสร้างทางพิเศษสายศรีรัช-วงแหวนรอบนอก ด่านขึ้น-ลงกำแพงเพชรที่เป็นจุดที่เชื่อมต่อกับทางพิเศษศรีรัชในปัจจุบัน ซึ่งเปิดใช้บริการเมื่อเดือน ต.ค. ที่ผ่านมา เป็นทางยกระดับ 6 จราจร เริ่มจากถนนกาญจนาภิเษก ขนานรถไฟฟ้าชานเมืองสายสีแดง บางซื่อ-ตลิ่งชัน ยาว 16.7 กม.
จากข้อมูลที่กล่าวมาทั้งหมดจะเห็นได้ว่า ณ อนาคตบริเวณ สะพานควาย – ประดิพัทธ์ จะเป็นจุดเชื่อมต่อที่สำคัญของ Hub ขนาดใหญ่ของเส้นทางคมนาคมอย่าง หมอชิต – บางซื่อ เนื่องจากเป็นจุดเชื่อมต่อที่ใกล้ที่สุด และจากอานิสงส์ของผังเมืองกรุงเทพมหานครที่วางพื้นที่สะพานควาย – ประดิพัทธ์ ให้เป็นผังเมืองสีน้ำตาลและสีแดงสักส่วนใหญ่หรือพูดง่ายๆ ว่าถูกกำหนดให้เป็นพื้นที่เพื่อการพาณิชยกรรม สามารถก่อสร้างอาคารขนาดสูงและใหญ่ได้อย่างเต็มที่ ไม่ว่าจะเป็นอาคารสำนักงาน ศูนย์การค้าหรือคอนโดมิเนียม โดยเฉพาะถนนประดิพัทธ์ที่เป็นผังเมืองสีแดงและให้ใช้ประโยชน์บนพื้นที่ได้อย่างเต็มที่ ซึ่งหากย้อนกลับมาดูที่ตัวโครงการของ เดอะไลน์ พหลฯ – ประดิพัทธ์ ที่ความสูง 46 ชั้น จนเรียกได้ว่าเกือบสูงที่สุดในถนนประดิพัทธ์ก็ว่าได้ ก็แสดงให้ถึงแนวการพัฒนาที่ชัดเจน หากในอนาคตภาครัฐสามารถพัฒนา หมอชิต – จตุจักร ให้เป็นศูนย์กลางการคมนาคมที่ใหญ่ที่สุดในกรุงเทพฯ ได้ จากเดิมที่เป็นแหล่งกระจุกตัวของกระทรวงต่างๆ และแหล่งงานของข้าราชการอยู่แล้ว เชื่อว่าการพัฒนาทางภาคธุรกิจ อาทิ อาคารสำนักงาน และสิ่งอำนวยความสะดวกต่างๆ ก็จะตามมาในไม่ช้า ซึ่งหากทั้งทางภาครัฐและเอกชนผนวกรวมกันบนพื้นที่นี้ ย่อมเป็นผลกระทบทางด้านดีสำหรับโครงการที่อยู่อาศัยแนวดิ่งอย่างคอนโดมิเนียมแน่นอน โดยจากการสำรวจพื้นที่ถึงจะไม่มีพื้นที่เปล่าให้พัฒนา แต่บริเวณถนนประดิพัทธ์เองทั้งสองแนวถนนเต็มไปด้วยอาคารพาณิชย์เก่า ตึกแถว ที่มีอายุการใช้งานมานาน ประกอบกับราคาค่าที่ที่ยังไม่สูงมาก ทำให้เหล่าดีเวลลอปเปอร์มองเห็นโอกาสที่จะซื้อที่ดินต่อ เก็บไว้ในแลนด์แบงค์และพัฒนาเป็นโครงการที่อยู่อาศัยในอนาคตได้ต่อไป จากภาษีในแง่ดีต่างๆ ที่กล่าวมาทั้งหมด
ทำเลที่ตั้งโครงการ

แผนที่ตั้งโครงการ พิกัด 13.790743, 100.546086
โครงการตั้งอยู่ระหว่างซอยประดิพัทธ์ 19 และซอยประดิพัทธ์ 21 ติดกับถนนใหญ่มี 4 เลน สามารถวิ่งไปทางซ้ายและขวาได้ โดยจากหน้าโครงการหากเลี้ยวซ้ายประมาณ 170 ม. จะมุ่งไปสู่แยกสะพานควาย เลี้ยวขวาไปอีกประมาณ 500 ม. จะพบกับ BTS สะพานควายทางออกที่หนึ่ง โดยบริเวณแนวรถไฟฟ้าตั้งแต่สถานีอารีย์ จนไปถึงสะพานควายจะถูกจัดให้เป็นพื้นที่สีน้ำตาล และบริเวณถนนประดิพัทธ์ ส่วนที่ใก้ลกับแยกสะพานควายที่ตั้งโครงในรัศมี 300 – 500 ม. ก็จะติดผังเมืองสีแดงไปด้วย ดูได้จากอาคารอสังหาริมทรัพย์ที่กระจุกตัวอยู่บริเวณนั้น ซึ่งประกอบไปด้วย ศูนย์การศึกษาปัญญาภิวัฒน์ โรงแรมอลิซาเบธ โครงการคอนโดฯ ลุมพินี เพลส พหล – สะพานควาย เป็นต้น ซึ่งล้วนแต่เป็นอาคารสูง รวมไปถึงอาคารอื่นๆ ที่มีความสูงเกิน 8 ชั้นขึ้นไป
นอกจากนั้นบริเวณถนนประดิพัทธ์ส่วนที่ใกล้กับแยกสะพานควายเอง ก็ยังเหลือพื้นที่สำหรับพัฒนาต่อยอดเป็นอาคารได้ทั้งสองฝั่ง เนื่องจากพื้นที่ส่วนใหญ่เป็นอาคารพาณิชย์เก่าหลายจุด และสามารถใช้ประโยชน์บนพื้นที่สีแดงเพื่อการพาณิชยกรรมได้อย่างเต็มที่ในอนาคต หากมีการซื้อขายเปลี่ยนมือกัน
ส่วนถ้าออกมาจากโครงการแล้วมุ่งหน้าไปทางขวาก็จะเข้าไปสู่โซนของแหล่งงานข้าราชการ อาทิ สำนักงานปฏิรูปที่ดินเพื่อเกษตรกรรม สำนักงานเลขาธิการสภาผู้แทนราษฎร ที่ประมาณ 800 ม. จะมุ่งหน้าตรงไปสู่แยกประดิพัทธ์ – พระราม 6 และเชื่อมต่อสู่ทางด่วนพิเศษศรีรัชได้ หรือออกไปทางถนนวิภาวดีได้
จากการสำรวจพื้นที่ในปัจจุบันตลอดแนวเส้นทางจากสถานีสะพานควาย และถนนประดิพัทธ์ จะเป็นตึกแถว และอาคารพาณิชย์ตลอดเส้นทาง ทั้งทำธุรกิจค้าขาย รวมไปถึงร้านอาหาร สตรีทฟู้ดส่งผลให้ย่านนี้มีความคึกคักตลอดทั้งวัน เรื่องความสะดวกในการหาของกินจึงพูดได้เลยว่า แค่เดินออกมาจากโกโครงการก็มีให้เลือกสรรเป็นสิบ ยี่สิบร้านเลยทีเดียว
หากย้อนกลับมาที่สถานีอารีย์ก็จะเป็นแหล่งรวมไลฟ์สไตล์ยุคใหม่ ประกอบกับแหล่งงานขนาดใหญ่บนทำเลนี้ โดยสามารถเชื่อมต่อจากสถานีสะพานควายไปสู่อารีย์เพียงสถานีเดียว หรือจะเดินทางด้วยบริการขนส่งมวลชนก็ใช้เวลาไม่มาก ในแง่ของสิ่งอำนวยความสะดวกอื่นๆ ก่อนถึงบริเวณแยกสะพานควายก็จะมีบิ๊กซี สะพานควาย ที่ตั้งอยู่ห่างจากโครงการประมาณ 400 เมตร และถ้าเลยแยกสะพานควายไปก็จะเป็น วิลล่า มาร์เก็ต บริเวณพหลโยธิน ซอย 8 อยู่ห่างจากโครงการประมาณ 800 เมตรซึ่งถือเป็นพื้นที่ไลฟ์สไตล์ยอดนิยมในย่านนี้เลยทีเดียว รวมถึงมีโรงพยาบาลเปาโลเมโมเรียล ที่อยู่ห่างโครงการประมาณ 400 เมตร
องค์ประกอบทั้งหมดนี้ถือเป็นอีกส่วนที่เป็นตัวชูโรงให้ที่ตั้งของโครงการเหมาะแก่การอยู่อาศัยเป็นอย่างยิ่ง และการที่บริเวณถนนประดิพัทธ์เป็นพื้นที่ชุมชนขนาดใหญ่ ก็ยิ่งทำให้เกิดการพัฒนาปัจจัยพื้นฐานขึ้นเรื่อยๆ รวมไปถึงไลฟ์สไตล์ให้เกิดขึ้นอยู่อย่างต่อเนื่อง
ทั้งนี้จากการลงพื้นที่จริงและสอบถามคนพื้นที่ จะพบว่าคนในพื้นที่ส่วนใหญ่มีความติดพื้นที่มาก เนื่องจากเชื่อมต่อกับสิ่งอำนวยความสะดวกได้ง่าย และถนนประดิพัทธ์เองก็มีการพัฒนาไปตามลำดับเรื่อยๆ ในระยะเวลาที่ผ่านมา
“ที่นี่เปิดมากว่า 20 ปี ซึ่งทางเราก็มีการเปลี่ยนมือ และมีการปล่อยเช่า ซึ่งก็ได้รับความนิยมอยู่ตลอด ส่วนใหญ่คนที่เช่าก็ทำงานกันแถวๆ นี้ เพราะเดินทางสะดวกขับรถไปนิดเดียวก็ถึงที่ทำงาน ถ้าใครไม่มีรถก็เดินไปขึ้น BTS สถานีสะพานควาย ประมาณ 500 เมตร หรือจะนั่งวินมอเตอร์ไซค์ก็แค่ 15 บาท อีกทั้งเรื่องอาหารการกินก็มีขายกันตั้งแต่เช้าจนถึงเย็น มีของให้เลือกกินหลากหลาย ซึ่งส่วนใหญ่ก็เป็นเจ้าเก่าดั้งเดิมที่ทำขายมานานอย่างที่เห็นเรียงรายอยู่ตลอดสองข้างทาง” คุณหญิง เจ้าหน้าที่ดูแลโครงการคอนโดมิเนียม Diamond Park กล่าว
“ผมทำมาหากินแถวนี้มาไม่ต่ำกว่า 20 ปี เมื่อก่อนแถวนี้ถือเป็นย่านที่รุ่งเรื่องมาก มีเงินสะพัดวันๆ หลายล้านก็ว่าได้ เพราะเป็นชุมชนขนาดใหญ่มีการค้าขายอยู่ตลอด ส่วนตอนกลางคืนแถวนี้ก็เป็นสถานบันเทิง ซึ่งก็เป็นที่รู้จักกันดีสำหรับนักท่องราตรี แต่เดี๋ยวนี้มันดูซบเซามาก หลายๆ ร้านก็เริ่มปิดตัว ดึกๆ แถวนี้ไม่ค่อยคึกคักเหมือนเมื่อก่อน แต่แถวนี้มีคนมาอยู่เยอะขึ้น ส่วนใหญ่ก็เป็นพนักงานออกฟิศจากที่เห็นอยู่ทุกวัน” พี่ศักดิ์ ซึ่งเปิดร้านซ่อมนาฬิกาอยู่ในย่านนี้ กล่าว

ฝั่งซ้ายจะเป็นฝั่งขาออกที่จะไปสู่ลาดพร้าว การจราจรจะค่อนข้างหนาแน่นในช่วงเย็น ฝั่งขวาจะเป็นขาเข้าซึ่งจะมีการจราจรหนาแน่นในช่วงเช้า

ภายในถนนประดิพัทธ์จะเป็นย่านที่มีการประกอบธุรกิจอย่างหลากหลาย ไม่ว่าจะเป็นร้านยา ร้านอาหาร หรือสิ่งอำนวยความสะดวกต่างๆ

บริเวณหน้าปากซอยประดิพัทธ์ 21 มีบริการวินมอเตอร์ไซค์ หากไป BTS สะพานควายจะอยู่ที่ราคาไม่เกิน 15 บาท หากไปทาง BTS อารีย์ก็จะอยู่ที่ราคา 25-30 บาท

ถัดมาเป็นด้านหน้าโครงการมีขนาดด้านหน้ากว้างถึง 90 ม. โดดเด่นไปด้วยภูมิทัศน์ของพื้นที่สีเขียว และดีไซน์ของตัวคลับเฮ้าส์

บรรยากาศภายในซอยประดิพัทธ์ 19 จะดูเป็นส่วนตัวกว่าซอยอื่น เพราะส่วนใหญ่ภายในซอยจะเป็นบ้านเดี่ยวและอาคารพาณิชย์ดั้งเดิมสูงไม่เกิน 4 ชั้น
การเดินทาง

เส้นทางที่ 1 จาก อนุสาวรีย์ชัยสมรภูมิ วิ่งไปตามเส้นพหลโยธิน มุ่งหน้าตรงไปยังสี่แยกสะพานควาย ประมาณ 2.9 กม. จากนั้นให้เลี้ยวซ้ายเข้าสู่ถนนประดิพัทธ์ ตรงไปอีกประมาณ 170 เมตร จะถึงซอยประดิพัทธ์ 20 ซึ่งโครงการจะตั้งอยู่ฝั่งตรงข้าม โดยจะอยู่ระหว่างซอยประดิพัทธ์ 19 และซอย 21

เส้นทางที่ 2 จาก ถนนวิภาวดีรังสิต เลี้ยวซ้ายเข้าสู่ถนนสุทธิสารวินิจฉัย ตรงไปตามทางประมาณ 1.5 กม. จะถึงแยกสะพานควาย มุ่งหน้าตรงเข้าสู่ถนนประดิพัทธ์ ตรงไปอีกประมาณ 170 เมตร จะถึงซอยประดิพัทธ์ 20 ซึ่งที่ตั้งโครงการจะอยู่ฝั่งตรงข้าม โดยจะอยู่กึ่งกลางระหว่างซอยประดิพัทธ์ 19 – 21

เส้นทางที่ 3 ห้าแยกลาดพร้าว วิ่งไปตามเส้นพหลโยธิน มุ่งหน้าแยกสะพานควาย ประมาณ 2.5 กม. เมื่อถึงแยกสะพานควายให้เลี้ยวขวา มุ่งหน้าตรงเข้าสู่ถนนประดิพัทธ์ ตรงไปอีกประมาณ 170 เมตร จะถึงซอยประดิพัทธ์ 20 ซึ่งที่ตั้งโครงการจะอยู่ฝั่งตรงข้าม โดยจะอยู่กึ่งกลางระหว่างซอยประดิพัทธ์ 19 – 21
ทางพิเศษศรีรัช (ทางด่วนยมราช)

หากมาจากทางพิเศษศรีรัชหรือบริเวณทางขึ้นยมราช ให้เบี่ยงซ้ายเข้าช่องทางที่มุ่งหน้าไปสู่ดินแดง – ถนนพระราม 9

เมื่อลงทางออกพระราม 6 ให้ตรงเรียบทางด่วนมาเรื่อยๆ จะพบกับ แยกประดิพัทธ์ – พระราม 6 ให้เลี้ยวขวาเพื่อเข้าสู่ถนนประดิพัทธ์
ระบบขนส่งสาธารณะรอบโครงการ
BTS สถานีสะพานควาย (ประมาณ 0.5 กม.)

หากมาจาก BTS ให้ลงสถานีสะพานควายทางออกที่หนึ่ง จากนั้นเดินย้อนขึ้นไปทางถนนประดิพัทธ์สักประมาณ 500 ม. ให้เลี้ยวขวาตรงไปอีกประมาณ 170 ม. จะพบโครงการอยู่ทางขวามือ
MRT สถานีกำแพงเพชร (ประมาณ 0.8 กม.) สถานีบางซื่อ (ประมาณ 1.6 กม.) สถานีสวนจตุจักร (ประมาณ 1.6 กม.)
สถานีรถไฟ ชุมทางบางซื่อ (ประมาณ 1.7 กม.)
ทางด่วน: ทางพิเศษศรีรัช จุดขึ้น-ลงทางด่วนกำแพงเพชร (2.3 กม.โดยประมาณ) และจุดขึ้น-ลงทางด่วนอนุสาวรีย์ชัยฯ (3 กม.โดยประมาณ)
สถานที่แนวไลฟ์สไตล์
เนื่องจากบริเวณถนนประดิพัทธ์ถือเป็นซอยที่เป็นแหล่งรวบรวมโรงแรมชั้นนำเอาไว้ เพื่อรองรับนักท่องเที่ยวชาวต่างชาติ แต่ด้วยพื้นที่ที่ห่างจากรถไฟฟ้าในระยะ 500 ม. จึงทำให้สิ่งอำนวยความสะดวกต่างๆ ออกมาในรูปแบบของสตรีทฟู้ด รวมไปถึงห้างร้าน ธนาคาร ร้านสะดวกซื้อต่างๆ ตลอดแนวซอย ดังนั้นในยามค่ำคืนบนถนนแห่งนี้จะกลายเป็นตลาดขนาดย่อมที่รวมรวมของกินทั่วสารทิศเอาไว้ โดยมีไฮไลท์ของไลฟ์สไตล์อย่าง โครงการ Community Mall ใหม่ล่าสุดอย่าง AQUA ที่รวบรวมไลฟ์สไตล์แฟชั่น อาหาร และสิ่งอำนวยความสะดวกทุกอย่างไว้อย่างครบครันบนถนนประดิพัทธ์
ส่วนแหล่งรวมไลฟ์สไตล์ประเภทห้างสรรพสินค้า และแหล่งแฮงเอาท์ยามค่ำคืนส่วนใหญ่ก็จะถูกเขยิบออกไปบนพื้นที่ที่มีผู้อยู่อาศัยหนาแน่นอย่างย่านสะพานควาย ซึ่งไม่ไกลจากที่ตั้งโครงการนัก โดยมีสองจุดให้เลือกทั้งทางฝั่งอารีย์ และสะพานควาย – จตุจักร อาทิ La Villa Aree และร้านอาหารชื่อดังมากมายที่กระจุกตัวอยู่ในย่านอารีย์ ทางฝั่งสะพานควายก็จะเป็น ตลาดนัดสวนจตุจักร, JJ Green, Union Mall, ตลาด อ.ต.ก. รวมไปถึงเซ็นทรัล ลาดพร้าวก็อยู่ในหนึ่งห้างสรรพสินค้าที่สามารถเดินทางไปจากโครงการได้สะดวก
โครงการ Aqua ประดิพัทธ์
สถานที่สำคัญรอบโครงการ
ห้างสรรพสินค้า
บิ๊กซี สะพานควาย (0.4 กม.)
วิลล่า มาร์เก็ต พหลโยธิน ซอย 8 (ประมาณ 0.8 กม.)
เจ เจ มอลล์ (1.4 กม.)
ยูเนี่ยนมอลล์ (3.7 กม.)
เซ็นทรัล ลาดพร้าว (4.2 กม.)
สถานพยาบาล
โรงพยาบาลเปาโลเมโมเรียล (ประมาณ 0.4 กม.)
โรงพยาบาลสัตว์ประดิพัทธ์ (ประมาณ 0.5 กม.)
โรงพยาบาลปราบวัณโรค (ประมาณ 0.6 กม.)
โรงพยาบาลโรคปอดกรุงเทพ (ประมาณ 0.6 กม.)
โรงพยาบาลวุฒิสมเด็จย่า (ประมาณ 0.6 กม.)
โรงพยาบาลศูนย์มะเร็งกรุงเทพ (ประมาณ 1.3 กม.)
สถานศึกษา
โรงเรียนอนุบาลบ้านแก้ว (0.4 กม.)
โรงเรียนรุจิเสรีวิทยา (0.9 กม.)
โรงเรียนวัดไผ่ตัน (0.6 กม.)
มหาวิทยาลัยศรีปทุม พญาไท (1.3 กม.)
สถานที่สำคัญอื่นๆ
สถานีตำรวจนครบาลบางซื่อ (0.4 กม.)
ธนาคาร กรุงศรีอยุธยา จำกัด สาขาสะพานควาย (0.4 กม.)
บทวิเคราะห์
วิเคราะห์อัตราผลตอบแทนที่จะได้รับ
เดอะไลน์ พหลฯ – ประดิพัทธ์ ถือเป็นหนึ่งในโครงการคอนโดมิเนียมแรกที่เข้ามาตั้งอยู่ในถนนประดิพัทธ์ โปรดักส์ของโครงการจึงเน้นการอยู่อาศัยจริงมากกว่าลงทุน แต่ทั้งนี้ก็ไม่ได้หมายความว่าจะลงทุนไม่ได้ เพราะดีมานด์จากผู้เช่าที่เป็นพนักงานจากแหล่งงานทางด้านอารีย์ จตุจักร – หมอชิต ยังมีมากโขอยู่ แต่กลุ่มเป้าหมายการลงทุนจากดีมานด์เช่าน่าจะเป็นกลุ่มพนักงานข้าราชการจากฝั่งถนนพระราม 6 – วิภาวดีมากกว่า เพราะเป็นกลุ่มคนที่มีรายได้สูงจากตำแหน่งหน้าที่การงาน และมีกำลังเช่าไหวจากปัจจัยราคาเริ่มต้นที่ 150,000 บาทต่อตร.ม. ซึ่งเรทค่าเช่าของพื้นที่บริเวณรี้ จะอยู่ที่ประมาณ 500 บาท ต่อ ตร.ม. หากนำมาคิดเป็นค่าเช่าของห้องขนาดเริ่มต้นที่ 26.25 ตร.ม. โดยยังไม่รวมค่าบำรุงรักษาต่างๆ ก็จะตกอยู่ที่ราวๆ 13,000 บาทเลยทีเดียว ด้วยราคาที่เริ่มต้นที่สูงพอสมควร หากจะบอกว่าเป็นราคาในอนาคตก็ไม่แปลก เพราะวันข้างหน้าโครงการจะได้รับอานิสงส์ต่างๆ จากทางฝั่งสะพานควาย – หมอชิตที่กำลังพัฒนาเป็น Hub ขนาดใหญ่ นอกจากนั้นสิ่งที่จะได้รับมากกว่าโลเคชั่นตรงนี้ก็คือเรื่องของส่วนกลางอย่าง คลับเฮ้าส์ ที่สร้างขึ้นมาเพื่อเปลี่ยนคอนโดมิเนียมในเมืองให้กลายเป็นบ้านดีๆ นี่เอง และโปรดักส์ก็ทำออกมาได้ถูกใจกลุ่มคนในพื้นที่ โดยมีให้เลือกตั้งแต่ระดับห้อง 26.25 ตร.ม. ไปถึงห้องขนาดใหญ่ที่ 111.50 ตร.ม. ที่สามารถรองรับครอบครัวใหญ่ได้เลย ดังนั้นผลตอบแทนที่จะได้รับจริงๆ ก็คงเป็นผลพลอยได้ของราคาที่จะพุ่งขึ้นไปจากอานิสงส์ต่างๆ บริเวณแยกสะพานควาย และภายในถนนประดิพัทธ์ที่มีการลงทุนด้านอสังหาริมทรัพย์เรื่อยมา ประกอบกับผังเมืองสีแดงที่ช่วยเอื้ออำนวยให้มีผู้พัฒนาหลั่งไหลเข้ามา สำหรับใครที่ซื้อเพื่ออยู่อาศัยระยะยาวก็สามารถขายต่อในราคาที่เพิ่มขึ้นได้สบายๆ ในอนาคตข้างหน้าที่องค์ประกอบทุกอย่างครบครัน
เปรียบเทียบกับโครงการอื่น
| ชื่อโครงการ | ยูนิต | พื้นที่ใช้สอย | ราคาเฉลี่ย | ราคาขาย |
| เดอะไลน์ พหลฯ – ประดิพัทธ์ | 1 ห้องนอน 1 ห้องน้ำ | 26.25 ตร.ม. | 150,000 บาท | 3.55 ล้านบาท |
| ดิ เอดิเตอร์ สะพานควาย | 1 ห้องนอน 1 ห้องน้ำ | 27.21 ตร.ม. | 150,000 บาท | 4.29 ล้านบาท |
เปรียบเทียบโครงการ
ดิ เอดิเตอร์ สะพานควาย (The Editor Saphan Khwai) ชมรีวิวโครงการนี้..
ผู้พัฒนาโครงการ: บริษัท พฤกษา เรียลเอสเตท จำกัด (มหาชน)
ทำเลที่ตั้ง: ถนนพหลโยธิน แขวง สามเสนใน เขต พญาไท กทม
พื้นที่โครงการ: โดยรวมประมาณ 1 ไร่ 1 งาน 73 ตารางวา
รูปแบบ: คอนโดมิเนียมความสูง 24 ชั้น 1 อาคาร จำนวน 240 ยูนิต
กลุ่มเป้าหมาย: กลุ่มคนรุ่นใหม่ อายุ 25 – 40 ปี
สถานะก่อสร้าง: สร้างเสร็จพร้อมเข้าอยู่
ระบบความปลอดภัย: Access Key Card เจ้าหน้าที่รักษาความปลอดภัย และกล้องวงจรปิดตลอด 24 ชั่วโมงส่วน
ที่พักอาศัย: เริ่มตั้งแต่ชั้น 7 – 22 ส่วนกลาง: แบ่งออกเป็น ชั้น 23 (Exclusive Modernist Lounge, Blue Horizon Pool, Club Vital Fitness, Wisdom Library และ Squash) และชั้น 24 (Sky Arena Amphitheatre และ Serenity Yoga)
ลิฟท์: ลิฟท์โดยสาร 2 ตัว ลิฟท์บริการ 1 ตัว
ที่จอดรถ: อาคารจอดรถ 6 ชั้น (คิดเป็น 55 % รวมซ้อนคัน)
สถานะการขาย: วันที่ 9 สิงหาคมนี้ เตรียมพบกับ Open House Party เปิดตัว Sky Facility บนชั้น 23 พร้อมรับส่วนลดพิเศษ
เงินกองทุนสะสม (Sinking fund): 500 บาท / ตร.ม. ค่าส่วนกลาง: 60 บาท / ตร.ม.
ราคาเริ่มต้น: 4.29 ล้านบาท / ยูนิต
ราคาเฉลี่ย: 150,000 บาท / ตร.ม.
รูปแบบห้อง: ตกแต่งแบบ Fully Furnished
1 ห้องนอน 1 ห้องน้ำ 27.21 – 45.91 ตารางเมตร
2 ห้องนอน 1 ห้องน้ำ 52.19 ตารางเมตร
สรุป
ไฮไลท์ของ โครงการ เดอะไลน์ พหลฯ – ประดิพัทธ์ คือ เป็นโครงการคอนโดมิเนียมแรกที่มีคลับเฮ้าส์เข้ามาช่วยเติมเต็มส่วนกลาง และรองรับอยู่นิตกว่า 981 ในโครงการ ซึ่งถือว่าไม่ได้น้อยเลย แต่รูปแบบโครงการก็สามารถเพิ่มเติมส่วนต่างๆ ที่สามารถตอบโจทย์กลุ่มลูกค้าได้ โดยลูกค้าส่วนใหญ่ที่เข้ามาชมโครงการจะเป็นกลุ่มคนในพื้นที่ที่มีกำลังจ่ายไหว และคิดว่าที่นี้คือบ้านหลังที่สองหรือที่พักพิงอาศัยของลูกหลานในอนาคต จากทำเลที่ยังคงเป็นจุดเชื่อมต่อไปยังสถานที่สำคัญต่างๆ ได้ รวมไปถึงแนวถนนประดิพัทธ์ที่ครบครันไปด้วยสาธารณูปโภค และสิ่งอำนวยความสะดวกต่างๆ หากเป็นคนในพื้นที่ก็จะรู้ดีว่าที่ตรงนี้มีการเปลี่ยนแปลงไปในทางที่ดีขึ้นอยู่ตลอดเวลา ด้วยอานิสงส์หลักๆ น่าจะมาจากปัจจัยด้านนอก และผังเมืองที่เป็นที่อยู่อาศัยหนาแน่นและประกอบพาณิชยกรรมสร้างอาคารตึกสูงได้เรื่อยๆ
นอกจากนั้นจากความที่ถนนประดิพัทธ์ถือเป็นถนนที่รวบรวมโรงแรมชั้นนำเอาไว้ และมีการไหลเวียนของนักท่องเที่ยวชาวต่างชาติอยู่เป็นประจำ รวมไปถึงชาวต่างชาติที่เข้ามาทำงานในประเทศไทย และกำลังมองหาพื้นที่ส่วนตัวในการอยู่อาศัย ตรงนี้โครงการก็อาจดึงดีมานด์กลุ่มนี้ให้เข้ามาได้ในแง่ของการลงทุน รวมไปถึงการซัพพอร์ทของตัวแบรนด์ เดอะไลน์ ที่เน้นการขายกับต่างชาติด้วย จึงไม่ยากเลยที่โครงการจะ Sold Out ในเวลาที่รวดเร็ว โดยปัจจุบันห้องขนาดใหญ่ที่สุดอย่างห้อง 3 ห้องนอน 111.50 ตร.ม. ที่เพียง 6 ห้องโดยมีราคาเริ่มต้นประมาณ 17 ล้าน ก็ถูกปล่อยออกไปแล้วกว่าครึ่ง
ทั้งนี้เองการที่แสนสิริเข้ามาจับกลุ่มผู้ที่อยู่อาศัยเองเป็นส่วนใหญ่ ถือเป็นจุดเด่นของแสนสิริ เพราะสามารถตอบโจทย์กลุ่มคนเหล่านั้นได้จริง ซึ่งหากเทียบกับโครงการระดับเดียวกันของผู้พัฒนาอื่นๆ สิ่งที่จะได้รับจากแสนสิริ ณ ปัจจุบันก็คือ Detail รายละเอียดต่างๆ ทั้งส่วนกลาง อาคาร ภายในห้อง ไม่ว่าจะเป็นระบบท่อน้ำร้อนที่ติดตั้งซ่อนผนังมาให้แบบไม่เห็นรอยต่อเลยด้วยซ้ำ ถ้าสังเกตุให้ดีจากโครงการ เดอะ ไลน์ ที่ผ่านๆ มา จะเห็นเลยว่า Corridor หรือทางเดินเข้าห้องจะมี Floor Drain ตามจุดสำคัญเพื่อป้องกันน้ำขัง หรือพายุเข้าที่ซัดน้ำเข้ามาบริเวณทางเดินและไม่ให้ไหลเข้าไปสู่ยูนิตต่างๆ ซึ่งโครงการอื่นๆ อาจจะใช้วิธียกพื้นห้องขึ้นไปอีกระดับ แต่ทั้งนี้แสนสิริเองก็ทำเช่นนั้น และเก็บรายละเอียดอีกขั้นด้วยการป้องกันน้ำไหลดังกล่าว
รวมไปถึงดีไซน์ภายในห้องเอง เฟอร์นิเจอร์ หรืออุปกรณ์ที่โครงการมอบให้จะเป็นลักษณะที่มีฟังก์ชั่นแฝงในการใช้งานไม่ว่าจะเป็นโต๊ะอาหาร ครัว ตู้เสื้อผ้า ก็ตาม เรียกได้ว่าตอนที่ไปเข้าชมห้องขนาดเริ่มต้นที่ 26.25 ตร.ม. ก็สัมผัสได้ถึงความเป็นบ้าน คนที่คิดว่าห้องขนาดไม่ถึง 30 ตร.ม. ต้องมีเพียงห้องนอน ห้องนั่งเล่น กับห้องครัว ไม่สามารถจัดวางโต๊ะอาหาร โต๊ะเครื่องแป้ง และอื่นๆ ได้แล้ว จะต้องเปลี่ยนความคิดใหม่กับแบรนด์แสนสิริในยุคนี้ เพราะทางโครงการได้มอบฟังก์ชันต่างๆ เหล่านี้มากับ เฟอร์นิเจอร์แบบ Fully Furnish ที่โครงการมอบให้แล้ว โดยเฉพาะ ระบบดิจิตอล ล็อค 4 ระบบ ที่ใช้ได้ทั้งระบบไร้สาย Bluetooth, ตั้งรหัส PIN, Key Card และระบบล็อคมือ เรียกว่าโครงการจัดเต็มมาให้บนฐานราคาที่ยังรับได้ สำหรับใครที่ไม่ได้เน้นโลเคชั่นว่าจะต้องเป็นโครงการที่ติดรถไฟฟ้า แต่หันมามองที่ภาพรวม Spec ภายในโครงการ ส่วนกลางที่เพียงพอต่อยูนิตเกือบพัน ก็สามารถนำข้อมูลนี้ไปตัดสินใจในการซื้อได้ แต่หากใครที่ยังชอบไลฟ์สไตล์ที่แนวรถไฟฟ้าอยู่โครงการนี้คงยังไม่ตอบโจทย์เท่าไหร่ในแง่ของฐานราคา 3.55 ล้านบาท ที่ยังคงเอาราคาระดับนี้ไปเปรียบเทียบกับคอนโดมิเนียมติดแนวรถไฟฟ้าในเมืองได้อยู่
สนใจ คอนโดฯ ในโครงการนี้? เลือกชม รายการประกาศ ราคาโดนใจ
































































































































