แลนด์มาร์ค แอท แกรนด์สเตชั่น บาย ไซมิส แอสเสท (Landmark At Grand Station By Siamese Asset) เป็นโครงการมิกซ์ยูส บนทำเลศักยภาพ ตรงข้ามแฟชั่นไอส์แลนด์ ใกล้รถไฟฟ้าสายสีชมพู สถานีวงแหวนรามอินทรา เพียง 400 เมตร ภายในห้องออกแบบเป็น 2 ชั้น เพดานสูง 4.15 เมตร เน้นความโปร่ง โล่ง พร้อมออกแบบห้องตามพฤติกรรมและไลฟ์สไตล์ที่แตกต่างกัน ไม่ว่าจะเป็นห้องพักสำหรับผู้สูงอายุ คนที่มีสัตว์เลี้ยงหรือห้องพักในรูปแบบ Co-living และห้องพักแบบมาตรฐาน ภายในโครงการครบครันด้วยสิ่งอำนวยความสะดวกทั้งพื้นที่พักอาศัย โรงแรม ร้านค้า ร้านอาหาร และสำนักงาน ราคาเริ่มต้นเพียง 2.90 ล้านบาท
หลังจากที่ อดามัส เรียล เอสเตท จำกัด เปิดตัวโครงการ ไวโอ แคราย โครงการคอนโดมิเนียม Low rise ยูนิตกระทัดรัดติดแนวรถไฟฟ้าสายสีม่วง สถานีศูนย์ราชการนนทบุรี ซึ่งเป็นสถานีอินเตอร์เชนจ์ ที่สามารถต่อไปยังสายสีชมพู ช่วงแคราย – มีนบุรี กับจุดเด่นลงจากสถานีก็ถึงหน้าโครงการ ส่งผลให้ยอดขายทะลุไปกว่า 90% ภายในเวลาไม่นาน ด้วยแลนด์แบงก์ที่มีอยู่ในมือ อดามัส เรียล เอสเตท จึงไม่รอช้าส่ง “ไวโอ แคราย 2” (Vio Khaerai 2) ลงสนามเพื่อสนองดีมานด์ที่มีอยู่อย่างต่อเนื่องบนทำเลศักยภาพแห่งนี้ ซึ่งเราก็ไม่พลาดที่จะมารีวิวโครงการนี้กันแบบเจาะลึก
เจาะลึกข้อมูลโครงการ (ข้อมูล ณ วันที่ 26 ตุลาคม 2558)
ชื่อโครงการ: ไวโอ แคราย 2 (Vio Khaerai 2)
ผู้พัฒนาโครงการ: บริษัท อดามัส เรียล เอสเตท จำกัด
ที่ตั้ง: ถนนรัตนาธิเบศร์ ซอยรัตนาธิเบศร์ 3 ตำบลตลาดขวัญ อำเภอเมืองนนทบุรี จังหวัดนนทบุรี
เว็บไซต์โครงการ: www.viocondo.com
โทร: 02-526-8181-2
รายละเอียดโครงการ
ลักษณะโครงการ : อาคารชุดพักอาศัย Low rise ความสูง 8 ชั้น จำนวน 1 อาคาร รวม 122 ยูนิต
เนื้อที่โครงการ: 0-3-10 ไร่
ที่จอดรถ: คิดเป็น 40 %
ลิฟท์: ระบบลิฟท์ ล็อคชั้น
ระบบรักษาความปลอดภัย: รปภ. 24 ช.ม.
ระบบล็อคประตู digital door lock
สิ่งอำนวยความสะดวก: ฟิสเนต สระว่ายน้ำลอยฟ้าระบบเกลือ สวนสาธารณะลอยฟ้า
สถานะการขาย: 50 % (ณ วันที่ 26 ตุลาคม 2558)
เปิดขาย: ปลายปี 2557
ก่อสร้างโดย: บริษัท ฟายน์ โฮม แอนด์ แอสโซซิเอท จำกัด
กำหนดก่อสร้างแล้วเสร็จ : กรกฏาคม 2559
ราคาเช่าเริ่มต้น: 8,000 บาท/ เดือน หรือ 300 บาท/ ตารางเมตร/ เดือน
เงื่อนไขการชำระเงิน: เงินจอง 10,000 บาท เงินทำสัญญา 20,000 บาท ค่างวด 9,000 x 6 งวด งวดพิเศษ 25,000 x 2งวด
เงินกองทุนสะสม: 500 บาท/ ตารางเมตร
ค่าส่วนกลาง: 40 บาท/ตารางเมตร /เดือน
ราคาขายเริ่มต้น: 1.45 ล้านบาท
ราคาขายเฉลี่ย: 62,000 บาท/ ตารางเมตร
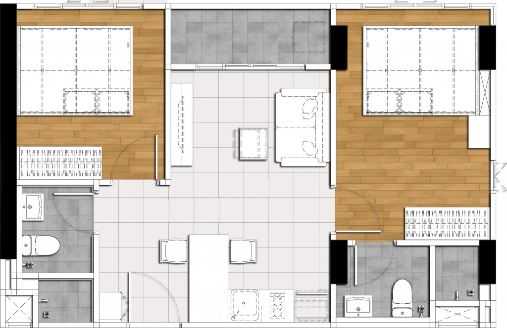
รูปแบบห้องทั้งหมด: ตกแต่งแบบ Fully-furnished
ความสูงพื้นจรดเพดาน: 2.4 เมตร
ลักษณะห้องชุด: ขนาดเริ่มต้นที่ 26.20 – 48.30 ตร.ม.
รูปแบบห้องชุด Type A One Bedroom 26.20 sq.m., Type B One Bedroom 34.20 sq.m. Type C: Two Bedroom 48.30 sq.m
รายละเอียดโครงการ
รีวิวภาพรวมโครงการ
ไวโอ แคราย 2 ตั้งอยู่ในซอยรัตนาธิเบศร์ 3 ห่างจากรถไฟฟ้าสายสีม่วง สถานีศูนย์ราชการนนทบุรี ประมาณ 350 เมตร บริเวณปากซอยมีร้านสะดวกซื้ออย่าง เซเว่น อีเลฟเว่น ทำให้หมดห่วงได้ในเรื่องของกิน-ของใช้ มีวินมอเตอร์ไซค์อยู่หน้าปากซอย หรือใครที่ไม่มีรถและไม่อยากนั่งมอเตอร์ไซค์ ทางโครงการก็มีบริการ Shuttle bus ไว้คอยรับ-ส่งลูกบ้านในช่วงเช้าเวลาเร่งด่วน แม้ถนนภายในซอยเป็นถนนสองเลนซึ่งอาจจะส่งผลให้การสัญจรคับคั่งบ้างเล็กน้อยเป็นบางเวลา แต่ซอยนี้ก็ถือว่าเป็นซอยทางลัดที่สามารถทะลุออกไปได้หลายเส้นทาง ไม่ว่าจะไปยังซอยเรวดี 11 เลี้ยวขวาออกไปยังถนนเลี่ยงเมืองนนทบุรี หรือจะเลี้ยวซ้าย ออกไปยังเส้นติวานนท์ ก็ได้
Master Plan
สิ่งอำนวยความสะดวก
Type Room
รีวิวภายในห้องตัวอย่าง
ทําเล & การเดินทาง
วิเคราะห์ศักยภาพทำเล
จากแผนพัฒนารถไฟฟ้าทั้งเก่า และใหม่ ส่งผลให้ตลอดแนวรถไฟฟ้าสายสีม่วง (บางซื่อ-บางใหญ่) ระยะทาง 23 กิโลเมตร รวม 16 สถานี มีโครงการคอนโดมิเนียมสะสมตั้งแต่ปี 2551 ไม่ต่ำกว่า 30,000 ยูนิต ส่วนทำเล ถ.รัตนาธิเบศร์ ก็เป็นพื้นที่ที่ได้รับความสนใจจากเหล่าดีเวลลอปเปอร์น้อยใหญ่ไม่น้อย เนื่องจากราคาต่อตารางเมตรที่ถูกกว่าช่วงต้นสาย ประกอบกับมีสถานที่สำคัญอยู่หนาแน่น มีสิ่งอำนวยความสะดวก และพื้นที่ไลฟ์สไตล์หลายเเห่ง ทำให้ตั้งแต่แยกแคราย จนไปถึงสามแยกบางใหญ่ มีโครงการผุดขึ้นหลายสิบโครงการจากที่เห็น และถึงแม้ว่าจะมีซัพพลายของคอนโดฯ หลายหมื่นยูนิตที่จ่อคิวสร้างเสร็จอยู่ แต่หลายๆ เจ้าก็ยังมั่นใจในศักยภาพของทำเลแนวรถไฟฟ้าสายนี้ เพราะเชื่อว่าหลังจากที่รถไฟฟ้าเปิดให้บริการช่วงปี 59 จะช่วยให้ดีมานด์ที่อยู่อาศัยในย่านนี้คึกคักยิ่งขึ้น
วิเคราะห์ศักยภาพทำเลโครงการ
แม้ว่าโครงการ ไวโอ แคราย 2 จะตั้งอยู่ในซอยรัตนาธิเบศร์ 3 ซึ่งอยู่ฝั่งตรงข้ามกับโครงการแรกที่อยู่ซอยรัตนาธิเบศร์ 10 ทำให้มีจุดเด่นคล้ายๆ กับโครงการแรก คืออยู่ใกล้กับแนวรถไฟฟ้าสายสีม่วง สถานีศูนย์ราชการนนทบุรี ซึ่งเป็นสถานี อินเตอร์เชนจ์ ที่สามารถต่อไปยังสายสีชมพู ช่วงแคราย – มีนบุรี แต่จะมีข้อด้อยกว่าโครงการแรกนิดหน่อยก็ในเรื่องของที่ตั้งโครงการเนื่องจากไม่ได้อยู่ปากซอยเหมือนโครงการแรก แต่จะอยู่ลึกเข้ามาในซอยรัตนาธิเบศร์ 3 ประมาณ 400 เมตร ทำให้ทางโครงการทำราคาต่อตารางเมตรถูกลงกว่าโครงการแรกถึง 14,000 บาทต่อตารางเมตร ทำให้เรื่องที่ต้องเข้าไปในซอยเป็นเรื่องที่รับได้ หากใครต้องการซื้อห้องชุดในราคาที่ถูกลงมา
การเดินทาง
รถยนต์ส่วนตัว
เส้นทางที่ 1: หากมาจากแยก ม.เกษตรฯ ให้มุ่งตรงผ่านแยกพงษ์เพชร ตรงผ่านไปแยกแครายสักพักจะมองเห็นรถไฟฟ้าสถานีศูนย์ราชการนนทบุรี ให้เตรียมชิดซ้ายเข้าซอยรัตนาธิเบศร์ 3 ตรงเข้าไปในซอยประมาณ 300 เมตร จะถึงโครงการซึ่งอยู่ทางซ้ายมือ
เส้นทางที่ 2: หากมาจากหลักสี่ ให้วิ่งถนนเส้นแจ้งวัฒนะตรงมายังห้าแยกปากเกร็ด ถึงห้าแยกปากเกร็ดให้เลี้ยวซ้าย ตรงมายังแยกแคราย ถึงแยกแครายให้เลี้ยวขวา ขับไปสักพักจะมองเห็น รถไฟฟ้าสถานีศูนย์ราชการนนทบุรี ให้เตรียมชิดซ้ายเข้าซอย รัตนาธิเบศร์ 3 ตรงเข้าไปในซอยประมาณ 300 เมตร จะถึงหน้าโครงการ ซึ่งอยู่ทางด้านซ้ายมือ
เส้นทางที่ 3: หากมาจาก Sales Gallery (แยกติวานนท์) ให้กลับรถ มุ่งตรงไปยังแยกแคราย ให้เตรียมชิดซ้ายเข้าซอยรัตนาธิเบศร์ 3 ตรงเข้าไปในซอยประมาณ 300 เมตร จะพบโครงการอยู่ทางซ้ายมือ
เส้นทางที่ 4: หากมาจาก Sales Gallery (ทางลัด) เลี้ยวซ้ายเข้าถนนติวานนท์ ซอย 1 (เรวดี) แล้วเลี้ยวขวาเข้าซอยเรวดี 11 ตรงไปประมาณ 300 เมตร โครงการอยู่ทางขวามือ
BTS
จากรถไฟฟ้าสายสีม่วง ลงสถานีศูนย์ราชการนนทบุรี (บางซื่อ-บางใหญ่)
จากรถไฟฟ้าสายสีชมพู ลงสถานีศูนย์ราชการนนทบุรี (แคราย – มีนบุรี)
สถานที่แนว Lifestyle
เทสโก้ โลตัส แคราย
เอสพลานาด ซีนีเพล็กซ์ งามวงศ์วาน-แคราย
พันทิพย์ งามวงศ์วาน
เดอะมอลล์ งามวงศ์วาน
บทวิเคราะห์
วิเคราะห์อัตราผลตอบแทนที่ได้รับ
จากราคาเฉลี่ยของการปล่อยเช่าเริ่มต้นที่ 8,000 บาท/ เดือน หรือ 300 บาท/ ตารางเมตร/ เดือน และเมื่อเทียบกับโครงการแรกก็ถูกว่าอย่างเห็นได้ชัด เหมาะมากสำหรับคนที่เช่าอพาร์ทเมนต์อยู่ เพราะถ้าลองคำนวณดู หากค่าเช่าห้องเริ่มต้นเดือนละ 5,000 บาท บวกค่าน้ำค่าไฟของหอที่มีเรทที่สูงกว่า เดือนหนึ่งก็ค่าใช้จ่ายก็ตกอยู่ประมาณ 8,000 บาทอยู่ดี เมื่อรวมสิ่งอำนวยความสะดวกต่างๆ ที่ทางคอนโดฯ มีให้แถมยังได้ห้องเป็นของตัวเองอีกก็ถือว่าคุ้มกว่าเห็นๆ หากจะซื้อเพื่อการลงทุน หรือปล่อยให้คนอื่นเช่าก็ถือว่าความเสี่ยงต่ำ เนื่องจากไม่มีโครงการคอนโดระดับราคานี้ เป็นคู่แข่งมากในพื้นที่ ประกอบกับเป็นโครงการที่อยู่ใกล้กับแหล่งงานอย่างศูนย์ราชการ และการที่จะเป็นสถานีอินเตอร์เชนจ์ในอนาคต ทำให้มีดีมานด์ที่จะมาเช่าในโครงการแน่
เปรียบเทียบกับโครงการอื่น
ไวโอ แคราย (Vio Khaerai)
ผู้พัฒนาโครงการ บริษัท อดามัส เรียล เอสเตท จำกัด ที่ตั้งโครงการ ถ.รัตนาธิเบศร์ (ซ.รัตนาธิเบศร์ 10) ลักษณะโครงการอาคารชุดพักอาศัย Low rise ความสูง 8 ชั้น จำนวน 1 อาคาร รวม 125 ยูนิต เนื้อที่โครงการ 0-3-87 ไร่ รูปแบบห้องทั้งหมดตกแต่งแบบ Fully-furnished ราคาขายเริ่มต้น: 2.4 ล้านบาท ราคาขายเฉลี่ย: 76,000 บาท/ ตารางเมตร
เดอะ ไพรเวซี ติวานนท์ (The Privacy Tiwanon)
บริษัท พฤกษา เรียลเอสเตท จำกัด (มหาชน) คอนโด Low Rise 2 อาคาร 7 ชั้น อาคารละ 78 ยูนิต รวม 156 ยูนิต ยูนิตต่อขั้นสูงสุด 13 ยูนิต ที่ตั้งโตรงการซอยติวานนท์ 50 ขนาดที่ดิน 1-3-48.7 ไร่ ลักษณะห้องชุด 1 ห้องนอน ขนาด 28-33 ตารางเมตร และ 2 ห้องนอน ขนาด 50 ตารางเมตร ราคาเริ่มต้นประมาณ 1.35 ล้านบาท ราคาเฉลี่ยต่อตารางเมตร 48,300 บาท
ศุภาลัย ลอฟท์ @ สถานีแคราย (Supalai Loft @ Khaerai Station)
เจ้าของโครงการ ศุภาลัย อาคารชุดพักอาศัย สูง 33 ชั้น (รวมดาดฟ้า 1 ชั้น) 1 อาคาร 33 ชั้น จำนวนห้อง 422 ยูนิต ร้านค้า 2 ยูนิต ที่ตั้งโครงการ ถนนติวานนท์ (ติดซอยติดวานนท์ 32) เนื้อที่ทั้งหมด2-0-34.5 ไร่ ลักษณะห้องและขนาดห้องStudio : 32.35 ตร.ม., 1 Bedroom : 47-49 ตร.ม. ,2 Bedrooms : 56.5-68.00 ตร.ม. Pre-Sales 16-18 ต.ค. 58 ราคาเริ่มต้น 1 ล้านกว่าบาท
สรุป
ไวโอ แคราย 2 ทำราคาได้ดีมากเมื่อวัดจากโครงการบนทำเลใกล้เคียงกันกับราคาขายเริ่มต้นล้านต้นๆ แม้วูบแรก ถ้าให้พูดตรงๆ เชื่อว่าหลายคนคงความรู้สึกมีอคติกับโครงการที่ราคาถูกมากๆ เพราะคิดว่าก็คงไม่ต่างจากแบรนด์ใหญ่ๆ เจ้าตลาดทำที่เน้นจุดขายในเรื่องของราคาที่ถูกๆ ยูนิตเยอะๆ มีพื้นที่ใช้สอยภายในห้องจำกัด ออกแนว “แฟลตของคนรุ่นใหม่” ที่มีไว้ให้คนชอบความคุ้มค่า หากเมื่อเทียบราคาต่อตารางเมตรอาจจะไม่คุ้มจริง ซึ่งก็คงไม่ต่างกัน
แต่เมื่อได้ลงพื้นที่ไปดูห้องตัวอย่าง ถ่ายรูปทุกซอกทุกมุม เห็นทั้งการตกแต่งจริงของห้อง วัสดุต่างๆ ที่ใช้ถือว่าสมราคา ภายในห้องถูกออกแบบให้เป็นสัดส่วนเหมาะกับการใช้งานจริง พูดง่ายๆ ว่าถ้าคุณเสียค่าเช่าห้องอยู่ทุกเดือนไม่ต่ำกว่า 5,000 บาทต่อเดือน ซื้อคุ้มกว่าเห็นๆ ไม่จำเป็นต้องเชื่อในสิ่งที่บอก เพราะสิบปากว่าไม่เท่าตาเห็น มีแต่ตัวคุณเองที่จะบอกกับคุณได้ว่า ไวโอ แคราย 2 เหมาะกับคุณหรือเปล่า?




































































