คอนโดเลี้ยงสัตว์ได้ เอาใจทาสแมวหรือทาสหมา ที่อยากพาเพื่อนแสนรู้เหล่านี้ไปอยู่ในห้องชุดสุดหรู กับ 15 โครงการคอนโด ทำเลสุดว้าว ที่อนุญาตให้เลี้ยงสัตว์ได้
หลังจากประสบความสำเร็จกับการพัฒนาโครงการคอนโดมิเนียมนำร่องในแบรนด์ “เดอะทีค” อย่าง เดอะ ทีค บางนา-ตราด 13 ที่สามารถปิดการขายไปเรียบร้อยแล้ว คราวนี้ แอลเคเอช ดีเวลอปเมนท์ กลับมาอีกครั้งกับโครงการ “เดอะ ทีค พัฒนาการ-ทองหล่อ” โดยคราวนี้หันมาจับทำเลบริเวณต้นถนนพัฒนาการซึ่งเชื่อมต่อกับย่านที่ถือเป็นฟันเฟืองเศรษฐกิจของกรุงเทพฯอย่างเอกมัย-ทองหล่อ อันเฟื่องฟูไปด้วยบริษัทต่างๆอีกทั้งยังเป็นแหล่งรวมความสะดวกบายตอบโจทย์ไลฟ์สไตล์และการอยู่อาศัยของคนเมือง แต่ด้วยปัจจัยด้านราคาของที่อยู่อาศัยในย่านนี้ที่นับวันพุ่งสูงมาก สวนทางกับซัพพลายในตลาด ทำให้ทำเลรองอย่างพัฒนาการได้รับความสนใจทั้งจากผู้ประกอบการและผู้ซื้อ โดยมีจุดขายคือที่อยู่อาศัยในทำเลเมืองกับราคาที่จับต้องได้มากขึ้น
เจาะลึกข้อมูลโครงการ (ข้อมูล ณ วันที่ 1 ต.ค. 2558)
ชื่อโครงการ: เดอะ ทีค พัฒนาการ-ทองหล่อ (The Teak Phattanakarn-Thonglor)
ผู้พัฒนาโครงการ: บริษัท แอล เค เอช ดีเวลลอปเม้นท์ จำกัด
ทำเลที่ตั้ง: ซอยพัฒนาการ 10/1 ถนนพัฒนาการ แขวงสวนหลวง เขตสวนหลวง
เว็บไซต์: www.theteakcondo.com/phattanakarn
รายละเอียดโครงการ
พื้นที่โครงการ: 285 ตารางวา
รูปแบบ: คอนโดมิเนียมแบบ Low-rise ความสูงแปดชั้น จำนวน 79 ยูนิต
กลุ่มเป้าหมาย: กลุ่มคนทำงานที่ต้องการความสงบและนักลงทุนที่กำลังมองหาคอนโดในราคา presales
สถานะก่อสร้าง: เริ่มก่อสร้างประมาณเดือนมีนาคม 2558 แล้วเสร็จประมาณเดือน มิถุนายน 2559
ระบบความปลอดภัย: digital door locks, ระบบคีย์การ์ด, เจ้าหน้าที่รักษาความปลอดภัย และกล้องวงจรปิด (CCTV) ตลอด 24 ชั่วโมง
ส่วนที่พักอาศัย: ชั้น 2-8 จำนวน 11 ยูนิตต่อชั้น
พื้นที่ส่วนกลาง: ล็อบบี้, สระว่ายน้ำขนาด 12×5 เมตร บริเวณชั้น 1, ฟิตเนสบริเวณชั้น 2
สถานะการขาย: ขายไปประมาณ 50%
เงินกองทุนสะสม: 500 บาท/ตารางเมตร (ชำระครั้งเดียว ณ วันโอนกรรมสิทธิ์)
ค่าส่วนกลาง: 40 บาท/ตารางเมตร/ เดือน
ราคาเริ่มต้น: 2.54 ล้านบาท/ ยูนิต
ราคาเฉลี่ย: 81,000 บาท/ตารางเมตร
รายละเอียดโครงการ
รีวิวภาพรวมโครงการ
เพื่อตอบโจทย์หนุ่มสาวชาวเมืองสมัยใหม่ที่ชอบกลิ่นไองานสถาปัตยกรรมที่ผสมผสานกันระหว่างความเรียบง่ายและความทันสมัยเข้าไว้ด้วยกัน (Urban Loft Design – เออบัน ลอฟท์ ดีไซน์) ทางโครงการได้นำรูปแบบการตกแต่งลักษณะนี้มาใช้ โดยไสตล์การตกแต่ง “ลอฟท์” นั้นได้แรงบันดาลใจมาจากอดีตที่ชาวไร่ประยุกต์โรงนาของตัวเองให้กลายเป็นสตูดิโอในการทำงาน โดยงานสถาปัตยกรรมลักษณะนี้จะเน้นที่ความเรียบง่ายผนวกกับลูกเล่นการตกแต่งที่ทันสมัยเข้าไว้ด้วยกันก่อให้เกิดความเรียบง่ายที่ชมเท่าไรก็ไม่เบื่อ ถึงแม้เนื้อที่ของโครงการจะไม่กว้างมากนัก (ประมาณ 285 ตารางวา) แต่ด้วยลักษณะการออกแบบไสตล์นี้ทำให้ตัวโครงการดูกว้างและปลอดโปร่งอีกทั้งยังถูกเสริมด้วยความร่มรื่นจากพุ่มไม้ที่กระจายไปทั่วรอบตัวอาคาร (Pocket Garden – พ็อคเกต การ์เด้น) ตัวอาคารถูกออกแบบมาให้ถูกจัดวาง
ในลักษณะตอนลึกซึ่งดูผิวเผินอาจจะดูเล็กเมื่อมองดูจากทางด้านหน้าแต่หากได้เข้าไปยังในตัวอาคารจะไม่รู้สึกแคบอย่างที่คิด ซึ่งถือเป็นคุณสมบัติพิเศษของการดีไซน์ไสตล์ลอฟท์ที่สามารถประยุกต์การออกแบบกับพื้นที่แคบให้ดูโปร่งและกว้างขวางเมื่อก่อสร้างออกมา
รูปจำลองโครงการ
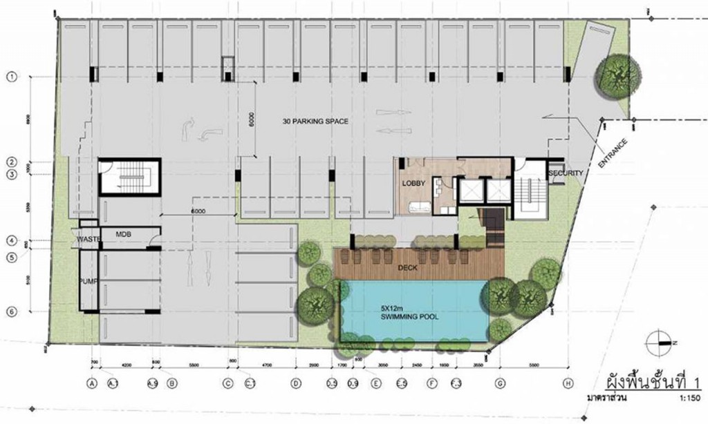
แบบแปลนชั้นต่างๆของอาคาร
ในส่วนของชั้น 1 เมื่อเดินเข้ามาในตัวอาคารจะเป็นส่วนของล็อบบี้ทางฝั่งซ้าย โดยผู้ที่สนใจจะใช้บริการสระว่ายน้ำสามารถเข้าผ่านทางล็อบบี้ได้เลย สระว่ายน้ำมีขนาด 12×5 เมตร
ที่จอดรถจะอยู่บริเวณชั้น 1 เช่นกัน โดยโครงการจัดสรรพื้นที่ไว้ให้ราว 45% (ในกรณีจอดไม่ซ้อนคัน) และ 60% (ในกรณีจอดซ้อนคัน) ของพื้นที่ชั้นทั้งหมด ซึ่งถือว่าเยอะมากหากเทียบกับคอนโดมิเนียมรูปแบบ Low-rise สำหรับโควต้าที่จอดรถให้สิทธิ 1 คันต่อ 1 ยูนิต แต่ในบางครั้งอาจจะสามารถอะลุ่มอล่วยให้จอดมากกว่าหนึ่งคันได้ด้วยพื้นที่จอดรถที่กว้างขวาง (ในกรณีจอดไม่ประจำ)
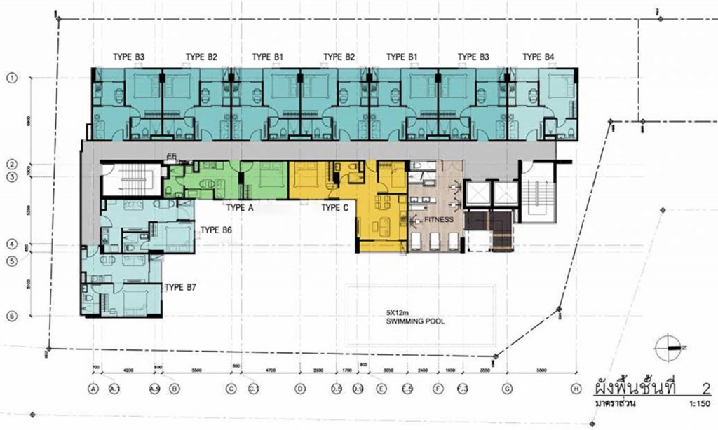
ชั้น 2 จะเป็นส่วนของห้องชุดพักอาศัย ประกอบไปด้วยประเภทของห้องที่คละกัน (Type A: 27 ตารางเมตร จำนวน 1 ห้อง, Type B: 31 ตารางเมตร จำนวน 9 ห้อง, Type C: 45 ตารางเมตร จำนวน 1 ห้อง) ในชั้น 2 นี้จะไม่ใช่พื้นที่สำหรับพักอาศัย 100 % เพราะทางโครงการได้จัดวางบริการฟิตเนสไว้ในส่วนทางทิศตะวันออกของชั้น (ใกล้กับลิฟท์)
ในส่วนของชั้น 3-4 จะมีรูปแบบแปลนชั้นในลักษณะเดียวกันและประกอบด้วยประเภทของห้องที่คละกัน (Type A: 27 ตารางเมตร จำนวน 1 ห้อง, Type B: 31 ตารางเมตร จำนวน 9 ห้อง, Type C: 45 ตารางเมตร จำนวน 1 ห้อง) โดยลิฟท์บริการจะอยู่ทางฝั่งด้านทิศตะวันออกของชั้น
ประเภทของห้องชุดในโครงการนั้นอิงจากผลการศึกษาดีมานด์ของของผู้อยู่อาศัย โดยประเภทที่ได้รับความนิยมมากที่สุดได้แก่ Type B พื้นที่ 31 ตารางเมตร โดยมีจำนวนถึง 68 ยูนิตจากจำนวนห้องชุดทั้งหมด 79 ยูนิต คิดเป็น 86 % ของจำนวนห้องทั้งหมดของโครงการ
รูปแบบของห้อง
ประเภทห้องที่เปิดขายอยู่: Type B และ Type D
ประเภทห้องที่ขายหมดแล้ว: Type A และ Type D
ประกอบด้วย:
-1 ห้องนอน
-1 ห้องนั่งเล่น
-1 ห้องครัว
– ระเบียง
ห้อง Type A ถือเป็นรูปแบบห้องที่มีขนาดเล็กที่สุดของโครงการ (27 ตารางเมตร) และถูกจัดวางไว้ทุกชั้น ในส่วนพักอาศัยโดยถูกออกแบบให้อยู่ในลักษณะตอนยาวเดียวเชื่อมต่อกันระหว่างสามห้อง (ห้องนอน, ห้องนั่งเล่นและห้องน้ำ) โดยมีระเบียงขนาดความยาว 2.24 เมตร กว้าง 0.64 เมตร (รวมพื้นที่กั้นคอมเพรสเซอร์เครื่องปรับอากาศ) อยู่ติดกับห้องครัว โดยห้องมาในแบบ fully furnished เรียบร้อยแล้ว
ด้วยจำนวนห้อง Type A ที่มีน้อย (7 ห้องจากจำนวนห้องทั้งหมด 79 ห้อง) ทำให้ถูกขายไปหมดแล้ว
ประกอบด้วย:
-1 ห้องนอน
-1 ห้องนั่งเล่น
-1 ห้องครัว
– ระเบียง
รีวิวภายในห้องชุด
บรรยากาศภายในของห้อง Type B

ด้วยลักษณะการออกแบบห้องครัวที่ดูโปร่งสามารถจัดวางโต๊ะรับประทานอาหารสำหรับสองที่นั่งได้ (ผู้ซื้อจะได้งาน built-in แถมมากับตัวห้อง)

ส่วนของพื้นที่นั่งเล่นตั้งอยู่ติดกับห้องครัวโดยมีประตูสไลด์กระจกกั้นไว้ สาเหตุที่ใช้กระจกสามตอนเพราะจะทำให้สามารถเปิดได้กว้างขึ้น อีกทั้งกระจกยังเป็นตัวกันไอร้อนจากห้องครัวเข้ามายังฝั่งห้องนั่งเล่น

การออกแบบในเรื่องการจัดวางทีวีในห้องนั่งเล่นนั้นถูกออกแบบมาให้สามารถติดตั้งทีวี (ลักษณะจอแอลซีดีขึ้นไป) ได้ไปจนถึงขนาด 70 นิ้ว

จุดที่ผู้สนใจในห้อง Type B ชอบกันมากคือระเบียงส่วนตัวที่อยู่ติดกับห้องครัวซึ่งสามารถเดินออกไปชมวิวภายนอกตัวอาคารได้จากบริเวณนี้ (ขนาดของระเบียง: กว้าง 0.95 เมตร ยาว 2.4 เมตร)

การออกแบบห้องนอนโดยใช้ไสตล์ลอฟท์ช่วยปรับพื้นที่ให้ดูกว้างและโปร่งสบายขึ้นขึ้น พร้อมทั้งพื้นที่ระยะห่างระหว่างตัวเตียงกับชั้นวางทีวีที่พอดีสามารถเดินผ่านได้อย่างสบาย

ถึงแม้ขนาดของห้องจะมีพื้นที่โดยรวมอยู่ที่ 31 ตารางเมตรแต่ด้วยวิธีการติดตั้งผนังห้องกระจกอยู่ที่บริเวณมุมท้ายของห้องนอนติดกับระเบียงสวนเพื่อรับแสงธรรมชาติเข้ามาช่วยปรับให้ห้องดูสว่างตา

บริเวณหัวเตียงทางโครงการทำการติดตั้งปลั๊กเอ้าท์เล็ทไว้เพื่อความสะดวกสบายและรองรับการใช้งานของผู้อยู่อาศัย

ตู้เสื้อผ้างาน built-in จะถูกติดตั้งไว้บริเวณขวามือของเตียงพร้อมทั้งมีพื้นที่ให้สำหรับผู้ที่ชื่นชอบการแต่งตัว

สำหรับสุขภัณฑ์ในห้องน้ำทางโครงการเลือกใช้แบรนด์ American Standard ทั้งหมด (ทางโครงการมีที่ฉีดชำระติดตั้งไว้ให้) โดยอ่างล้างหน้าและโถรองนั่งจะใช้กระเบื้องเนื้อโทนสีขาวสะอาดตา
ประกอบด้วย:
-1 ห้องนอนใหญ่
-1 ห้องนอนเล็ก
-1 ห้องนั่งเล่น
-1 ห้องครัว
-ระเบียงส่วนตัว
ห้อง Type C จะถูกจัดวางไว้ทุกชั้นในส่วนพักอาศัยโดยจะมีชั้นละ 1 ห้อง ห้อง Type C จะมีขนาดใหญ่กว่าห้อง Type A และ B (45 ตารางเมตร) โดยจะประกอบด้วย: 1 ห้องนอนใหญ่, 1 ห้องนอนเล็ก, 1 ห้องนั่งเล่น (ส่วนห้องครัวจะอยู่ด้านหลังของห้อง), 1 ห้องน้ำ และระเบียงขนาดความกว้าง 0.95 เมตร ยาว 4 เมตร
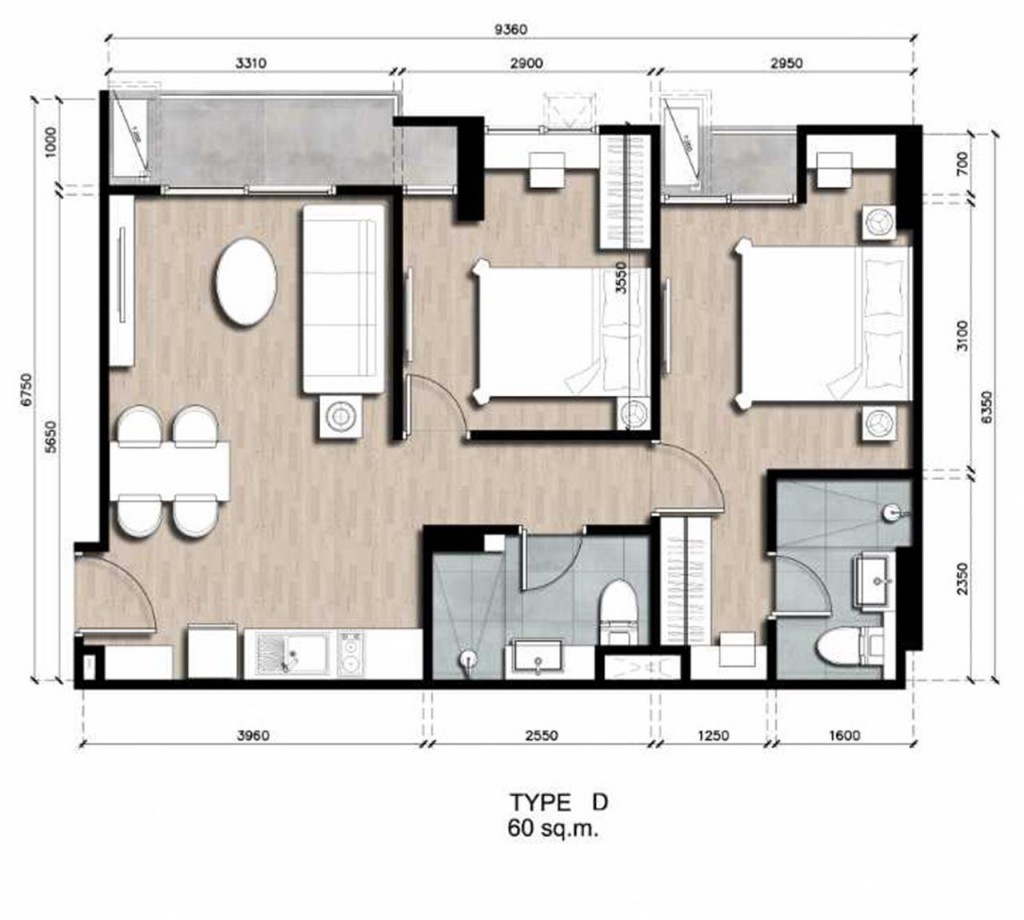
ประกอบด้วย:
-2 ห้องนอน
-2 ห้องน้ำ
-1 ห้องนั่งเล่น
-1 ห้องครัว
ห้อง Type สุดท้ายนี้จะถูกจัดวางไว้ เฉพาะชั้น 5-8 เท่านั้นโดยจะมีเพียงแค่ชั้นละหนึ่งห้องอยู่ทางริมฝั่งซ้ายมือสุดของชั้น ห้อง Type D คือห้องที่มีขนาดใหญ่ที่สุดของโครงการ (60 ตารางเมตร) ประกอบด้วย: สองห้องนอนใหญ่พร้อมระเบียงขนาดเล็กทางฝั่งห้องนอนใหญ่ฝั่งในสุด, สองห้องน้ำ, หนึ่งห้องนั่งเล่นและห้องครัว (ใช้พื้นที่เดียวกัน) พร้อมด้วยระเบียงใหญ่ที่อยู่ติดกับห้องนั่งเล่น (กว้าง 1 เมตร ยาว 3.31 เมตร)
ด้วยจำนวนห้องที่น้อยเพียงสี่ห้องจากจำนวนห้องทั้งหมด 79 ห้อง ทำให้ห้อง Type D ถูกขายไปหมดเป็นที่เรียบร้อยแล้ว
ทําเล & การเดินทาง
วิเคราะห์ทำเลถนนเส้นพัฒนาการ
จากที่เกริ่นข้างต้นจะเห็นว่าตัวโครงการเดอะทีค พัฒนาการ-ทองหล่ออยู่ใกล้กับจุดยุทธศาสตร์ทางเศรษฐกิจที่สำคัญแห่งหนึ่งของกรุงเทพฯ อีกทั้งบริเวณต้นถนนพัฒนาการมีปริมาณสินค้าประเภทคอนโดมิเนียมยังไม่สูงมากนัก
โครงการตั้งอยู่ในทำเลที่ถือว่าเดินทางสะดวกสบาย เข้าถึงเส้นทางขนส่งมวลชนอย่างรถไฟฟ้าบีทีเอสได้ง่าย อีกทั้งยังอยู่ในจุดที่สามารถเชื่อมต่อไปยังจุดสำคัญต่างๆในกรุงเทพฯ ได้ อาทิ อโศก, พระโขนง (ซึ่งสามารถทะลุไปยังถนนพระรามสี่ได้) รวมทั้งเส้นอ่อนนุช (ซึ่งเป็นเส้นทางออกไปยังบางนา-ตราด) และที่สำคัญสำหรับนักธุรกิจ, นักท่องเที่ยวและพนักงานสายการบินที่ต้องเดินทางไปยังสนามบินสุวรรณภูมิบ่อยครั้ง โครงการยังอยู่ใกล้กับ แอร์พอร์ตเรลลิงค์สถานีรามคำแหง ซึ่งสามารถพาคุณไปยังสนามบินที่ใหญ่ที่สุดในประเทศได้ภายในระยะเวลาเพียง 20 นาที อีกทั้งยังอยู่ใกล้กับจุดขึ้น-ลง ทางด่วนรามอินทรา-อาจณรงค์ ส่วนไฮไลท์สำคัญคงต้องยกให้การที่อยู่ใกล้กับ ทองหล่อ-เอกมัย ย่านที่เป็นแหล่งรวมบริษัททั้งไทยและเทศ (โดยเฉพาะญี่ปุ่น) และศูนย์การค้าสำหรับไลฟ์ไสตล์คนเมืองที่เรียงรายกันในย่านนี้อาทิ เจ อเวนิว, เกตเวย์ เอกมัย, เมเจอร์ สุขุมวิท อีกทั้งร้านค้า ร้านอาหาร-เครื่องดื่ม ไปจนถึงแหล่งแฮงค์เอาท์เก๋ๆ อีกมากมาย (โดยเฉพาะในเส้นทองหล่อ)
วิเคราะห์ทำเลที่ตั้งโครงการ
ในอนาคตข้างหน้าจะมีการเกิดขึ้นของโครงการรถไฟฟ้าสีเหลืองซึ่งจะเป็นจุดเชื่อมต่อจากช่วงรัชดาลาดพร้าว (โครงการรถไฟฟ้าสายสีน้ำเงิน) มายังช่วงพัฒนาการ (สามารถขึ้นที่สถานีลาดพร้าวเพื่อมาลงสถานีพัฒนาการได้) อีกทั้งโครงการรถไฟฟ้าสายสีเหลืองจะเป็นจุดเชื่อมต่อไปยังโครงการขนส่งมวลชนอีก 4 สายคือ สายสีเทาของกรุงเทพ สายสีส้มบริเวณทางแยกลำสาลี รถไฟเชื่อมต่อท่าอากาศยาน (Airport Rail Link) บริเวณทางแยกต่างระดับพระราม 9 และสายสีเขียว ช่วงแบริ่ง-สมุทรปราการ ที่สถานีสำโรง
การเดินทาง
ตัวสำนักงานขายจะตั้งอยู่ที่ตัวโครงการเลย คือบริเวณต้นซอยพัฒนาการ 10/1 สำหรับผู้ที่สนใจสามารถเดินทางมายังสำนักงานขายได้โดย:
รถไฟฟ้าบีทีเอส
โดยลงสถานีพระขโนงหลังจากนั้นทำการต่อรถโดยสารรับจ้าง (มอเตอร์ไซค์หรือแท็กซี่) โดยสามารถเลือกเข้าได้ทั้งซอยสุขุมวิท 71 (ซอยปรีดีพนมยงค์) แล้วเลี้ยวขวาที่แยกคลองตันเพื่อเข้ามายังถนนพัฒนาการ (หากมาเส้นนี้ตัวสำนักงานจะอยู่ฝั่งตรงข้ามซึ่งต้องทำการกลับรถ) และสามารถเลือกเข้าทางซอยสุขุมวิท 77 แล้วเลี้ยวซ้ายเข้าซอยอ่อนนุช 17 เพื่อมายังถนนพัฒนาการโดยจะทะลุออกมาทางซอยพัฒนาการ 20 (หากมาเส้นนี้ตัวสำนักงานจะอยู่ฝั่งเดียวกัน)
รถยนต์ส่วนตัว
สำหรับการเดินทางในครั้งนี้เราเริ่มต้นจากทางด่วน อาจณรงค์-รามอินทรา วิ่งมายังเส้นทาง ดินแดง-บางนา-ตราด แล้วลงป้าย พัฒนาการ เลี้ยวมาทางขวามือเล็กน้อยจะเจอสำนักงานขายตั้งอยู่ทางฝั่งซ้ายมือ
สถานที่แนว Life Style
ย่านนี้ถือได้ว่าอยู่ค่อนข้างใกล้กับย่านทองหล่อ-เอกมัย ซึ่งเป็นศูนย์รวมบริษัทในสาขาธุรกิจต่างๆอีกทั้งยังเป็นศูนย์รวมตัวกันของวัยรุ่นและวัยทำงานหลังยามเย็นที่ต้องการผ่อนคลายหลังจากเรียนหรือทำงานมาทั้งวัน ประกอบไปด้วยห้างสรรพสินค้าและ community malls สุดฮิปมากมาย ทำเลนี้สามารถตอบโจทย์สำหรับผู้ที่ชอบดื่ม, ช็อปปิ้ง หรือแม้กระทั่งจำเป็นที่จะต้องติดต่อคุยงานในย่านธุรกิจนี้เป็นประจำได้
บทวิเคราะห์
วิเคราะห์ผลตอบแทนที่ได้รับ
เนื่องด้วยจำนวนอุปทานและอุปสงค์ที่ไล่เลี่ยกันในเรื่องคอนโดมิเนียมทางฝั่งย่านทองหล่อ-เอกมัย สร้างผลกระทบที่ดีมายังฝั่งบริเวณใกล้เคียงซึ่งหนึ่งในนั้นก็คือโครงการในย่านพัฒนาการ อีกทั้งช่วงนี้ถือว่าเป็นช่วงเวลาที่น่าจับโครงการนี้มาลงทุนเพื่อทำการเก็งกำไรในอนาคตเพราะยังอยู่ในช่วงของการ presales ซึ่งราคาจะถูกอัพทะยานสูงขึ้นอย่างแน่นอนหลังจากการก่อสร้างเสร็จ
เปรียบเทียบกับโครงการอื่น
1. เอ สเปซ มี สุขุมวิท 77
เจ้าของโครงการ เอ สเปซ มี สุขุมวิท 77 คือ บริษัท อารียา พรอพเพอร์ตี้ จำกัด (มหาชน) เนื้อที่โครงการโดยประมาณ 19 ไร่ มีลักษณะเป็นอาคารคอนโดมิเนียมแปดชั้น (โลว์ ไรส์) มีขนาดของห้องชุดตั้งแต่ 28.13 ตารางเมตร จนถึง 35.24 ตารางเมตร แต่มีจำนวนหลายอาคารอยู่ในบริเวณโครงการถึงเจ็ดอาคาร (1600 ยูนิต) ราคาเริ่มต้นประมาณที่ 87,399 บาท/ตารางเมตร
ที่มารูปโครงการ:
2. เดอะ รูม สุขุมวิท 79
เจ้าของโครงการ เดอะ รูม สุขุมวิท 79 คือ บริษัท แลน แอนด์ เฮาส์ จำกัด (มหาชน) เนื้อที่โครงการโดยประมาณสี่ไร่ ลักษณะตัวอาคารคอนโดมีเนียมจัดเป็นแบบโลว์ไรส์ด้วยจำนวนแปดชั้นต่อหนึ่งอาคาร มีขนาดห้องชุดคือ 38 และ 58 ตารางเมตร ยูนิตรวมโครงการ 343 ยูนิต ราคาเริ่มต้นที่ 91,632 บาท/ตารางเมตร
ที่มารูปของโครงการ:
3. ลุมพินี วิล พัฒนานาการ-อ่อนนุช
เจ้าของโครงการ ลุมพินี วิล พัฒนานาการ-อ่อนนุช คือ บริษัท แอล พี เอ็น ดีเวลลอปเมนท์ จำกัด (มหาชน) เนื้อที่โครงการโดยประมาณ 15 ไร่ ลักษณะตัวอาคารคอนโดมีเนียมจัดเป็นแบบโลว์ไรส์ด้วยจำนวนแปดชั้นต่อหนึ่งอาคาร รูปแบบห้องชุดขนาด 22.5 – 35 ตารางเมตร ยูนิตรวมโครงการ 1,594 ยูนิต ราคาเริ่มต้นที่ 66,222 บาท/ตารางเมตร
ที่มารูปของโครงการ:
สรุป
โครงการ เดอะ ทีค พัฒนาการ-ทองหล่อ สามารถตอบโจทย์สำหรับผู้ที่ชอบความเป็นส่วนตัวเนื่องด้วยจำนวนยูนิตที่น้อยและไม่ได้อยู่ในย่านแออัด และไม่ไกลจากใจกลางย่านธุรกิจ โดยใช้เวลาประมาณ 5-10 นาทีสามารถเดินทางถึงย่านเอกมัย-ทองหล่อได้ (โดยขึ้นจากสถานีพระขโนงของโครงการรถไฟฟ้าสายสีเขียว) สำหรับผู้ที่ต้องเดินทางไปยังสนามบินบ่อยครั้ง โครงการอยู่ห่างจากแอร์พอร์ตเรลลิงค์ สถานีรามคำแหง ประมาณ 500 เมตร โดยท่านสามารถใช้บริการแอร์พอร์ตเรลลิงค์เพื่อต่อไปยังสนามบินสุวรรณภูมิใช้เวลาเพียง 20 นาที และสำหรับนักลงทุนที่ต้องการลงทุนในด้านอสังหาริมทรัพย์โครงการนี้ถือว่าราคายังอยู่ในระดับเหมาะสม ด้วยอัตราเงินเฟ้อและศักยภาพของทำเลที่กำลังได้รับการพัฒนาจะสามารถผลักราคาโครงการให้สูงขึ้นหลังจากสร้างเสร็จได้



























