แลนด์มาร์ค แอท แกรนด์สเตชั่น บาย ไซมิส แอสเสท (Landmark At Grand Station By Siamese Asset) เป็นโครงการมิกซ์ยูส บนทำเลศักยภาพ ตรงข้ามแฟชั่นไอส์แลนด์ ใกล้รถไฟฟ้าสายสีชมพู สถานีวงแหวนรามอินทรา เพียง 400 เมตร ภายในห้องออกแบบเป็น 2 ชั้น เพดานสูง 4.15 เมตร เน้นความโปร่ง โล่ง พร้อมออกแบบห้องตามพฤติกรรมและไลฟ์สไตล์ที่แตกต่างกัน ไม่ว่าจะเป็นห้องพักสำหรับผู้สูงอายุ คนที่มีสัตว์เลี้ยงหรือห้องพักในรูปแบบ Co-living และห้องพักแบบมาตรฐาน ภายในโครงการครบครันด้วยสิ่งอำนวยความสะดวกทั้งพื้นที่พักอาศัย โรงแรม ร้านค้า ร้านอาหาร และสำนักงาน ราคาเริ่มต้นเพียง 2.90 ล้านบาท
บางซื่อ – เตาปูน ถือเป็นทำเลที่น่าจับตามองมากในปัจจุบัน เนื่องจากเป็นที่ตั้งของสถานีรถไฟฟ้าที่มีไว้เปลี่ยนถ่ายเส้นทางระหว่างสายสีม่วงกับสีน้ำเงิน หรือ ที่เราเรียกกันว่า Interchange
อีกทั้งลักษณะของพื้นที่ ยังประกอบด้วยชุมชนเก่าแก่ที่มีสภาพแวดล้อมน่าอยู่ เรียบง่าย และอุดมสมบูรณ์ ครบครันทั้งตลาด ห้างสรรพสินค้า ร้านอาหารแบบดั้งเดิมขึ้นชื่ออายุหลายสิบปีไปจนถึงร้านอาหารเปิดใหม่สุดชิคสำหรับวัยรุ่น แถมยังเต็มไปด้วยโรงเรียน มหาวิทยาลัย โรงพยาบาล สำนักงานเอกชนและรัฐบาล ที่สำคัญในอนาคตจะอยู่ใกล้รัฐสภา
ส่วนบางซื่อพื้นที่ใกล้เคียง ก็จะถูกพลิกโฉมให้กลายเป็นสถานีศูนย์กลางระบบขนส่งมวลชนขนาดใหญ่ที่สุดในประเทศไทย รวมถึงเอเชียตะวันออกเฉียงใต้ ซึ่งคาดว่าจะสร้างเสร็จพร้อมให้บริการในปี 2564 ผลที่ได้คือจะทำให้บริเวณโดยรอบ กลายเป็นศูนย์กลางด้านธุรกิจแห่งใหม่
และราคาที่ดินในแต่ละปีก็จะถีบตัวสูงขึ้นเรื่อยๆ โดยมีผู้เชี่ยวชาญทางด้านการวิเคราะห์ที่ดินได้ฟันธงเอาไว้ว่า ต่อไปย่านบางซื่อ เตาปูน จะเป็นทำเลศักยภาพที่มีขนาดเทียบชั้นกับสยามสแควร์เลยทีเดียว
ด้วยความที่คึกคักและวิถีการดำรงชีวิตของคนดูน่าอยู่ แถมราคาที่ดินตอนนี้ก็ไม่ได้แพงมากนัก จึงทำให้ไม่ว่าจะมองไปหาไหน เราก็มักจะเห็นเหล่าโครงการคอนโดมิเนียมน้อยใหญ่ผุดขึ้นมาเป็นดอกเห็ด เพื่อรองรับความต้องการของผู้คนที่ใช้ชีวิตในปัจจุบัน
อีกทั้งในอนาคตคาดว่า จะได้รับความนิยมสูงขึ้นอย่างต่อเนื่อง หนึ่งในโครงการคอนโดมิเนียมที่ให้ความสนใจจนกำลังจะเปิดตัวในไม่ช้า นั่นก็คือ The Privacy เตาปูน อินเตอร์เชนจ์ ที่อยู่ห่างจากรถไฟฟ้าสถานีเตาปูนเพียง 500 เมตร เป็นคอนโด High Rise สูง 36 ชั้น 1 อาคาร ติดถนนกรุงเทพ-นนทบุรี
จุดเด่นของโครงการนี้คือควบคุมอุปกรณ์ไฟฟ้าบางส่วนภายในห้องด้วยระบบ Home Automation หรือ ควบคุมผ่านการใช้งานด้วยมือถือ พร้อมขนาดห้องมีให้เลือกหลากหลาย พร้อมส่วนกลางที่ครบครันหลากหลาย กับราคาเริ่มต้นเพียง 2.39 ล้านบาทเท่านั้น
ข้อมูลคอนโดมิเนียม โครงการ The Privacy เตาปูน อินเตอร์เชนจ์
- เจ้าของโครงการ: บริษัท พฤกษา เรียลเอสเตท จำกัด (มหาชน)
- ทำเลที่ตั้ง: ถนนกรุงเทพ-นนท์ แขวงบางซื่อ เขตบางซื่อ กทม.
- เว็บไซต์: https://theprivacy.pruksa.com
- โทร: 1739
รายละเอียดโครงการ (ข้อมูล ณ วันที่ 30 พฤษภาคม 2562)
- พื้นที่โครงการ: ประมาณ 2-1-97.1 ไร่
- รูปแบบโครงการ: คอนโดมิเนียม Fully Furnished และห้องเปล่า
- ลักษณะโครงการ: คอนโดมิเนียม High Rise สูง 36 ชั้น จำนวน 1 อาคาร มีที่พักอาศัยทั้งหมด 486 ยูนิตและร้านค้า 1 ยูนิต โดยแต่ละชั้นจะมียูนิตสูงสุด 17 ยูนิต พร้อมสิ่งอำนวยความสะดวกครบครัน ภายในโครงการจะประกอบไปด้วยห้องพักอาศัยแบบสตูดิโอ และ 1-2 ห้องนอน บนพื้นที่ใช้สอยตั้งแต่ 22.25 – 50.25 ตารางเมตร จำนวน 6 แบบ
- รูปแบบห้อง
- Studio 1 พื้นที่ใช้สอย 22.25-22.50 ตารางเมตร
- 1 Bedroom-1 พื้นที่ใช้สอย 26.50-27.50 ตารางเมตร
- 1 Bedroom-2 พื้นที่ใช้สอย 27.25-27.50 ตารางเมตร
- 1 Bedroom-3 พื้นที่ใช้สอย 29.50 ตารางเมตร
- 1 bedroom Plus พื้นที่ใช้สอย 34.50 ตารางเมตร
- 2 Bedroom พื้นที่ใช้สอย 49.25-50.25 ตารางเมตร
- สิ่งอำนวยความสะดวก: Living Lobby Lounge, Meeting Room, Co-Working Space และ Co- Kitchen พร้อมสวนสีเขียวสไตล์ Tropical ที่ชั้น 1 และ ยังมีพื้นที่ส่วนกลางขนาดใหญ่ที่เห็นวิวเมือง ชั้น 36 แบบ 360 องศา รองรับกิจกรรมต่างๆ ทั้ง Fitness, Sky Lounge, Sky Pods, Sky Pool และ Observation Terrace พร้อมความทันสมัยด้วยระบบจอดรถแบบ Smart Parking บอกจำนวนที่ว่างและตำแหน่งที่เหลืออยู่
- ลิฟท์: 3 ตัวต่ออาคาร คือ ลิฟต์ใช้ขนส่งลูกบ้านจำนวน 2 ตัว และลิฟต์เซอร์วิสหรือขนของอีก 1 ตัว
- ที่จอดรถ: ในร่ม ประมาณ 211 คันคิดเป็น 40% แต่ถ้าจอดซ้อนคันจะคิดเป็น 43% ใครมาก่อนจอดก่อน
- ระบบรักษาความปลอดภัย: ลิฟท์ล็อคชั้น, Car Smart Access ทำงานด้วยระบบเปิด-ปิด Gate Barrier อัตโนมัติ สแกนป้ายทะเบียนรถ, การเข้า-ออกอาคารนั้นจะใช้ระบบ Smart Accessในการเปิดประตู, CCTV และพนักงานรักษาความปลอดภัยตลอด 24 ชั่วโมง
- กลุ่มเป้าหมาย: เหมาะสำหรับคนทำงานในบริเวณเตาปูน บางซื่อและพื้นที่ใกล้เคียง หรือลูกค้าที่ต้องการซื้อไว้เพื่อพักผ่อน รวมถึงนักลงทุน
- สถานะการก่อสร้าง: คาดว่าจะเริ่มสร้างในเดือน มิถุนายน 2562
- สถานะการขาย: Pre-sale 25 – 26 พ.ค. 62
- สร้างเสร็จประมาณ: พฤษภาคม 2564
- เงื่อนไขการชำระเงิน:
- จองเพียง 5,000 – 15,000 บาท
- ทำสัญญา 10,000 – 20,000 บาท
- เงินดาวน์ ผ่อน 20 งวด
- ฟรีเฟอร์นิเจอร์ครบชุด + เครื่องปรับอากาศ
- ค่าส่วนกลาง: 55 บาท/ตร.ม. รวมที่จอดรถ
- ราคาเริ่มต้น: 2.39 ล้านบาท
- ราคาเฉลี่ย: ประมาณ 100,000 บาท/ตร.ม.
สามารถรับข้อมูลและสิทธิพิเศษจากโครงการ The Privacy เตาปูน อินเตอร์เชนจ์ ได้ที่นี่ หรือ โทร. 1739
ถ้าฉันสนใจโครงการนี้ ฉันจะสามารถกู้ได้สูงสุดเท่าไหร่? ค้นหาคำตอบได้ที่นี่
บทความที่เกี่ยวข้องกับการกู้ซื้อบ้าน คอนโดฯ
อยากซื้อบ้านหลังแรก เริ่มต้นอย่างไร ต้องรู้อะไรบ้าง?
รวมเทคนิคการกู้ซื้อบ้านที่คนอยากมีบ้านต้องรู้
อัพเดทอัตราดอกเบี้ยสินเชื่อบ้าน กู้ซื้อบ้าน
รายละเอียดโครงการ
ภาพรวมโครงการ The Privacy เตาปูน อินเตอร์เชนจ์
The Privacy Taopoon Interchange เป็นคอนโดมิเนียม High Rise สูง 36 ชั้น 1 อาคาร บนที่ดินขนาดเกือบ 2 ไร่ ออกแบบและดีไซน์ด้วยรูปทรงที่เรียบง่าย ไม่หวือหวา แต่ดูโมเดิร์น ทันสมัย
โครงการออกแบบภายใต้คอนเซ็ปต์ Tropical Luxury โดยจะเน้นสีโทนขาว น้ำตาล ทอง และมีการผสมผสานสีเขียวของธรรมชาติเข้าไปช่วยเพิ่มความสดชื่น แจ่มใส เหมาะกับประเทศไทยในเขตร้อนอย่างบ้านเรามากที่สุด
ตัวอาคารมีห้องพักอาศัยจำนวน 486 ยูนิตและร้านค้าอีก 1 ยูนิต โดยชั้น 2-6 จะเป็นชั้นที่เอาไว้สำหรับจอดรถ สามารถจอดได้ถึง 211 คันคิดเป็น 40% แต่ถ้าจอดซ้อนคันจะคิดเป็น 43% แบบในร่ม ใครมาก่อนจอดก่อน
ส่วนชั้นพักอาศัยจะเริ่มตั้งแต่ชั้น 7 ขึ้นไปจนถึงชั้น 36 โดยโครงการมี Facilities กระจายอยู่ที่ชั้น 1 ซึ่งจะมี Lobby , Mail Room, Co-working Space และ Meeting Room
ถัดมาชั้น 7 ก็จะมี Garden และ Co-kitchen ที่สำหรับให้ลูกบ้านมาทำกิจกรรมหรือปาร์ตี้เล็กๆได้ ส่วน Main Facilities ยกขึ้นไปไว้ที่ชั้น 35, 36 และ Roof Top นอกจากนี้ในพื้นที่ส่วนกลางทุกห้องยังติดตั้งระบบ Fresh Air System ที่สามารถกรองฝุ่นในอากาศได้ถึง 0.3 microns เลยทีเดียว
การวางทิศทางโครงการ
ผังรวมหรือ Master Plan ของโครงการ จะอยู่ติดถนนกรุงเทพ-นนทบุรี ที่กำลังคึกคักไปด้วยผู้คนและเจริญเติบโตอย่างต่อเนื่อง ใกล้กับสถานีเตาปูนเพียง 500 เมตร อยู่ในระยะทางที่สามารถเดินถึงโดยไม่เหนื่อย และแต่ละทิศจะอยู่ใกล้กับสถานที่ต่างๆดังต่อไปนี้
ทิศเหนือ: จะหันไปทางสถานีบางซ่อน วิวโล่ง ถ้าในระยะไกลก็จะเจอกับคอนโด U delight ที่ห่างกันประมาณ 800 เมตร
ทิศตะวันออก: จะหันไปบริเวณเลียบคลองประปา ประชาชื่น
ทิศใต้: จะหันไปทางเตาปูน อินเตอร์เชนจ์
ทิศตะวันตก: จะหันไปทางวิวแม่น้ำเจ้าพระยาหรือถนนกรุงเทพ – นนทบุรี
Floor Plan
ผังพื้นที่ทั้งหมด ซึ่งทางซ้ายและขวาของตัวโครงการ จะอยู่ติดกับอาคารหรือตึกส่วนบุคคลที่มีความสูงอยู่ที่ระดับ 3-4 ชั้น และเพื่อเป็นการเพิ่มความเป็นส่วนตัวให้กับลูกบ้าน ทางโครงการได้ปลูกต้นไม้ประเภทพุ่มไว้สองข้างทางเข้าออก เพื่อลดเสียงรบกวนและความวุ่นวายจากภายนอก
การเข้า – ออกโครงการ ก่อนถึงตัวอาคารทุกครั้ง จะต้องผ่าน Car Smart Access ระบบรักษาความปลอดภัยชั้นแรก ที่ทำงานด้วยระบบเปิด-ปิด Gate Barrier อัตโนมัติ สแกนป้ายทะเบียนรถ
ส่วนการสัญจรภายในโครงการ จะเป็นการเดินรถแบบทางเดียว วนรอบอาคารแล้วจึงค่อยขึ้นไปยังลานจอดรถบริเวณชั้น 1 – 6 ที่อยู่ทางด้านหลัง อีกทั้งภายในลานจอดรถยังติดตั้งระบบ Smart Parking ที่ลูกบ้านสามารถตรวจสอบจำนวนที่ว่างในลานจอดรถแต่ละชั้นได้อีกด้วย
เมื่อเข้ามาในตัวอาคารจะเจอชั้น Ground Floor ที่รวบรวมทุกความผ่อนคลายและสิ่งอำนวยความสะดวกเอาไว้คอยต้อนรับการเข้ามาของลูกบ้าน ไม่ว่าจะเป็น Lobby Lounge, Co-Working Space, Meeting Room, Smart Locker ตู้ฝากพัสดุอัตโนมัติ 24 ชม. และร้านค้า 1 ยูนิต
ถัดมาก็จะเป็นส่วนของงานระบบ และพื้นที่สำหรับคอยอำนวยความสะดวกให้ลูกบ้านอย่าง ห้องนิติบุคคล, Lift Lobby, ห้องซักรีด และ Maid room โดยการเข้า-ออกอาคารนั้น จะใช้ระบบ Smart Access
สำหรับบริเวณรอบนอกจะมีทั้ง Jogging track ไว้ให้ได้วิ่งเยาะๆ ช้าๆ สบายๆ และ EV Charger ห้องชาร์จรถยนต์คอยรองรับผู้ใช้รถยนต์ด้วยระบบไฟฟ้าแทนน้ำมัน ซึ่งอันนี้ถือว่าทางโครงการใส่ใจและอัพเดตเทรนด์เทคโนโลยีได้เป็นอย่างดี ร
วมถึงห้องล้างรถหรือ Car Washing Area ที่ลูกบ้านสามารถเข้าไปล้างได้เอง โดยไม่ต้องเสียค่าบริการเพราะทางโครงการคิดรวมกับค่าส่วนกลางไว้แล้ว
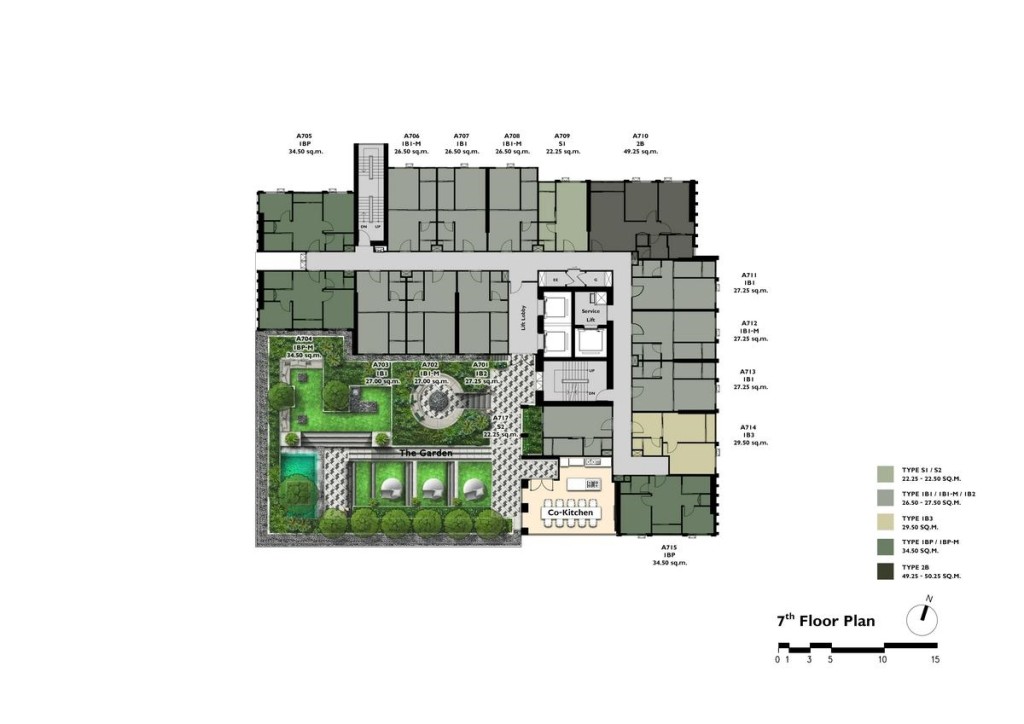
ผังชั้น 7 ชั้นนี้จะเป็นจุดเริ่มต้นของที่พักอาศัย แต่จะพิเศษหน่อยตรงที่จะมี Facility ต่างๆรวมอยู่ด้วย โดยจะแบ่งออกเป็น 2 ส่วนใหญ่ๆ ได้แก่ The Garden และโซนห้องพักอาศัยรวม 10 ยูนิต แถมที่มุมอาคารยังมี Co-Kitchen ให้เราเข้ามาจัดปาร์ตี้หรือทำอาหารทานร่วมกัน
จะว่าไปแล้ว ชั้นนี้ค่อนข้างเหมาะกับคนที่ชอบธรรมชาติ รักความเขียวขจี อิ่มเอมกับบรรยากาศร่มรื่น เพราะสามารถมองเห็นวิวสวนหย่อมสีเขียวได้จากหน้าระเบียงโดยตรง แต่ถ้าใครพักอยู่ชั้นอื่นอยากลงมาสูดอากาศบริสุทธิ์เพิ่มความสดชื่นให้กับร่างกาย ก็มาได้เหมือนกัน
ซึ่งทางโครงการจะมีทางเดินกลางที่เชื่อมไปถึงสวนหย่อม โดยที่ไม่ต้องผ่านเข้าไปยังบริเวณหน้าห้องพักของคนในชั้นนี้ ถือว่าเป็นการให้ความสำคัญกับความเป็นส่วนตัวของผู้พักอาศัยอย่างมากเลยทีเดียว
ผังชั้น 8 ไปถึง 34 จะมีลักษณะคล้ายกัน โดยแต่ละชั้นจะคละแบบห้อง คือมีทั้ง Studio, 1 Bedroom, 1 Bedroom Plus และ 2 Bedrooms รวมกัน 17 ยูนิต โดยแต่ละชั้นจะมีห้อง 2 Bedrooms อย่างละ 1 ยูนิตอยู่ทางทิศเหนือ
ส่วนห้องที่มีจำนวนมากที่สุดจะเป็นห้องแบบ 1 Bedroom และบริเวณมุมอาคารทั้งสองฝั่งจะเป็น 1 Bedroom Plus เหมาะสำหรับคนชอบความสงบ ส่วน Lift Lobby อยู่กลางอาคาร ใช้งานได้ทั่วถึงด้วยระบบลิฟต์แบบล็อคชั้นจำนวน 2 ตัว พร้อมลิฟต์เซอร์วิสสำหรับขนของอีก 1 ตัว ข้างๆกันจะเป็นบันไดหนีไฟสำหรับใช้ในยามฉุกเฉิน
ผังชั้น 35, 36 สองชั้นสุดท้าย มีเพียง 10 ยูนิตเหมือนชั้น 7 เนื่องจากมี Facility แบบ Outdoor เพิ่มเข้ามาตามสไตล์ Tropical Luxury โดยชั้น 35 จะเป็นแนวกิจกรรมทางน้ำ เช่น Sky Pool, Bubble Pool, Kid Pool, Jacuzzi และ Water Wall ให้เลือกสนุกสนานและคลายความเครียด
หรือจะไปนั่งตากแอร์เย็นๆที่ Sky Lounge ก็ได้เช่นกัน ส่วนชั้น 36 จะมี Fitness แบบ indoor ห้องกระจก หันไปทางทิศตะวันตก ทำให้ผู้ออกกำลังกายได้มองเห็นวิวเมืองหรือแม่น้ำเจ้าพระยาได้แบบ 360 องศา
สุดท้ายกับชั้นดาดฟ้าหรือ Roof Floor ที่ตกแต่งอย่างร่มรื่นด้วยต้นไม้ใบหญ้าจนเกิดเป็นพื้นที่สีเขียวสบายตาไปทั่วบริเวณ พร้อมโซน Facility อีกมากมาย
ไม่ว่าจะเป็น Observation Terrace, Sky Pods, Exercise Court และ Yoga Lawn พร้อม Emergency Aircraft Evacuation ที่ให้เฮลิคอปเตอร์สามารถหย่อมบันได้มารับลูกบ้านได้ในเวลาที่ต้องการความช่วยเหลือแบบฉุกเฉิน
Unit Layout
สำหรับห้องพักอาศัยจะมีให้เลือกหลายแบบ ตั้งแต่ Studio, 1 Bedroom และ 2 Bedrooms โดยขนาดเริ่มต้นอยู่ที่ 22.25 – 50.25 ตร.ม.
แปลนห้องพักแบบ Studio 1 พื้นที่ใช้สอยขนาด 22.25-22.50 ตารางเมตร
แปลนห้องพักแบบ Studio 2 พื้นที่ใช้สอยขนาด 22.25 ตารางเมตร
แปลนห้องพักแบบ 1 Bedroom 1 พื้นที่ใช้สอยขนาด 26.50-27.50 ตารางเมตร
แปลนห้องพักแบบ 1 Bedroom 2 พื้นที่ใช้สอยขนาด 27.25-27.50 ตารางเมตร
แปลนห้องพักแบบ 1 Bedroom 3 พื้นที่ใช้สอยขนาด 29.50 ตารางเมตร
แปลนห้องพักแบบ 1 Bedroom Plus พื้นที่ใช้สอยขนาด 34.50 ตารางเมตร
แปลนห้องพักแบบ 2 Bedroom พื้นที่ใช้สอยขนาด 49.25-50.25 ตารางเมตร
สิ่งอำนวยความสะดวกภายในโครงการ
สำหรับพื้นที่ส่วนกลางของโครงการ ก็จะมีทั้ง Living Lobby Lounge, Meeting Room, Co-Working Space และ Co- Kitchen พร้อมสวนสีเขียวสไตล์ Tropical ที่ชั้น 1 และยังมีส่วนกลางขนาดใหญ่ที่เห็นวิวเมืองในชั้น 36
แถมบันเทิงไปกับกิจกรรมต่าง ๆ ทั้ง Fitness, Sky Lounge, Sky Pods, Sky Pool และ Observation Terrace ให้คุณได้เพลิดเพลิน ผ่อนคลาย ถือเป็นความสุขที่หาได้ในพื้นที่เพียงแห่งเดียว และที่สำคัญทุกพื้นที่ยังติดตั้งระบบกรองอากาศแบบ Fresh Air System ที่สามารถตรวจจับ Co2
รวมไปถึงฝุ่นละอองขนาดเล็ก เช่น PM 2.5 และกำจัดอากาศเสียออกไป ทำให้คุณได้รับอากาศที่บริสุทธิ์ สดชื่นเข้ามาแทนที่
ภาพจำลองบรรยากาศภายใน Lobby ซึ่งจะออกแบบในสไตล์ Tropical Luxury เน้นโทนสีขาว น้ำตาล ทอง ส่วนพื้นจะใช้กระเบื้องหินอ่อน และเพิ่มโคมไฟสีทองหน้าตาสุดเก๋ เพื่อความหรูหราพร้อมกระจกแบบ Ceiling Height ทำให้ห้องดูกว้างมากกว่าขนาดจริง
ภาพจำลองบรรยากาศภายใน Co-working Space บรรยากาศดูอบอุ่น หรูหรา อีกทั้งยังมีที่นั่งหลากหลายรูปแบบให้เลือกใช้งาน ล้อมรอบด้วยกระจกแบบ Ceiling Height ทำให้ได้รับแสงธรรมชาติและห้องดูกว้างมากยิ่งขึ้น
ภาพจำลองบรรยากาศภายใน Meeting Room หรือห้องประชุม ลูกบ้านสามารถจองเพื่อจะขอใช้งานผ่านทาง App โครงการได้ แถมในห้องนี้ยังติดตั้ง Samsung Flip หน้าจออัจฉริยะ ที่จะบันทึกการประชุมในทุกๆข้อความที่ขีดเขียนไว้บนหน้าจอ โดย Export เป็นไฟล์ส่งต่อไปยังมือถือของทุกคนในห้องประชุม นับเป็นอีกหนึ่ง smart function ที่น่าจับตามองมากๆ
ภาพจำลองบรรยากาศ Co-Kitchen บนชั้น 7 เป็นห้องทำครัวขนาดใหญ่ พร้อมโต๊ะรับประทานอาหารถึง 10 ที่ อีกทั้งในห้องนี้ยังมีอุปกรณ์ทำอาหารมากมาย ไม่ว่าจะเป็นเคาน์เตอร์บาร์, ชุดครัว แถมตู้ปลูกผัก Nano Garden ก็มีด้วยเช่นกัน
ภาพจำลองบรรยากาศบริเวณสระว่ายน้ำบนชั้น 35 จะเป็นสระแบบ Infinity Edge คือเห็นวิวเมืองรอบข้างได้อย่างเต็มที่กว่า 360 องศา มีขนาดกว้าง 8 x 15 เมตร ลึก 1.2 เมตร ด้วยระบบเกลือ
มีการแยกส่วนสำหรับเด็กเล็กคือ Kids Pool ขนาด 1.5 x 5.5 เมตร ลึก 60 ซม. ที่สำคัญใครชอบ Jacuzzi ที่นี่ก็มีให้ใช้บริการด้วย พอเห็นน้ำ เราก็นึกถึงอีกสิ่งหนึ่งของโครงการที่เราชอบมาก นั่นก็คือระบบกรองน้ำประปาภายในโครงการ ยังเป็นแบบพิเศษ จึงทำให้ลูกบ้านได้ใช้น้ำที่สะอาดกว่าโครงการอื่น
ภาพจำลองบรรยากาศบริเวณ Fitness ที่ครบครันบนชั้น 36 ออกแบบผนังด้วยกระจก Ceiling Height รอบห้อง จึงทำให้มองเห็นวิวเมืองได้อย่างสวยงามในขณะออกกำลังกาย
อีกทั้งยังสามารถมองลงมาเห็นสระว่ายน้ำที่ชั้น 35 ได้ด้วย ซึ่งห้องมีขนาดค่อนข้างกว้าง วางอุปกรณ์ได้หลายตัว ไม่ว่าจะเป็นประเภท Weight Training, Boxing รวมถึง Jogging Track
รีวิวภายในห้องตัวอย่างของโครงการ The Privacy Taopoon Interchange
สิ่งที่จะได้รับจากโครงการ มีดังต่อไปนี้
- เฟอร์นิเจอร์ Standard ของทางโครงการ
- วอลล์เปเปอร์สีขาวครีม
- กระจกพาร์ทิชั่น
- เครื่องปรับอากาศขนาด 9,000 ของ Daikin 2 เครื่อง
- ชุดครัวครบเซ็ต
- เตาไฟฟ้าพร้อมที่ดูดควัน
- สุขภัณฑ์ในห้องน้ำของ Cotto
- พื้นไม้ลามิเนตสำเร็จรูป
- พื้นกระเบื้องเซรามิคในห้องน้ำ
สำหรับวันนี้จะพาไปชมห้องตัวอย่างชนิด 1 Bedroom แบบ Fully Fitted ขนาด 26.50-27.50 ตร.ม. เป็นห้องที่มีจำนวนมากที่สุดในโครงการ ระยะความสูงจากพื้นถึงฝ้า 2.70 เมตร
ภายในจะปูด้วยไม้ลามิเนตหนา 8 มม ลักษณะห้องหน้าจะแคบลึก มีการจัดวางพื้นที่ใช้งานได้อย่างชัดเจน ไม่ว่าจะเป็น ห้องนั่งเล่น ห้องนอน ห้องน้ำ ห้องครัว และพื้นที่ระเบียง
ออกแบบและตกแต่งสวยงาม เพิ่มความหรูหราให้กับบรรยากาศภายในห้องด้วยการประดับวัสดุหินอ่อนตามธรรมชาติกับโลหะสีทอง แต่ยังคงความอบอุ่นด้วยสีน้ำตาลของไม้และเขียวใบไม้ไว้ตามมุมต่างๆ
เมื่อเราเดินเข้ามา ก็จะเจอกับโซนนั่งเล่นขนาดใหญ่ ที่นอกจากจะวางโซฟาสำหรับ 2 คนได้อย่างไม่อึดอัดแล้ว ยังมีพื้นที่เหลือไว้ให้วางโต๊ะกินข้าวได้อีก 2 ที่อีกด้วย
ลักษณะพื้นที่จะเชื่อมต่อกับห้องนอน คล้ายกับการ Combine Space คือเชื่อมพื้นที่ใช้สอยแต่ละส่วนให้ใช้งานร่วมกันได้อย่างมีประสิทธิภาพ อีกทั้งบรรยากาศยังดูปลอดโปร่ง เพราะได้รับแสงสว่างเต็มที่จากช่องรับแสงในห้องนอน เพดานจะเป็นฉาบเรียบทาสีขาว พร้อมติดไฟ Downlight มาให้ 2 ดวง
พื้นที่กว้างขวาง อีกทั้งทางโครงการยังสามารถออกแบบและจัดวางโซนนั่งเล่น โซนรับประทานไว้ด้วยกันได้อย่างลงตัว ตอบโจทย์การพักผ่อนสำหรับคนรุ่นใหม่ที่ชอบทำอะไรหลายๆอย่างได้อย่างฉับไว รวดเร็วในพื้นที่จำกัด
เนื่องจากห้องตัวอย่างไม่มีประตู ทางโครงการจึงนำกลอนประตูแบบ Digital Door Lock จาก UNICOR มาให้ดูอย่างชัดเจน โดยทุกห้องจะได้รับแบบนี้เหมือนกันหมด ความพิเศษคือ จะรองรับการเปิดเข้าทั้งรหัส, การ์ด, กุญแจ, เทคโนโลยี N.F.C อีกด้วย
นอกจากนั้นยังติดตั้งสวิตซ์เปิด – ปิดไฟด้วยระบบสัมผัส พร้อม Home Automation สำหรับควบคุมปลั๊ก, ไฟ, ทีวี และเครื่องปรับอากาศอย่างละ 1 จุด ผ่าน Pruksa Application สะดวกต่อการใช้ชีวิต แต่ก็ต้องไม่ลืมที่จะเปิดไวไฟไว้ในห้องเพื่อการทำงานอย่างมีประสิทธิภาพ
ถัดมาด้านในสุดบริเวณห้องนอน ขนาดกำลังดี สามารวางเตียงขนาด 5 ฟุตได้ จะถูกแยกออกมาเป็นสัดส่วนจากโซนนั่งเล่นและโต๊ะทานข้าวด้วยประตูพาร์ติชั่นแบบกระจกบานเลื่อน 3 ตอน หรือ Double Slice ซึ่งบานขวาสุดจะเป็นบาน Fixed จึงสามารถเลื่อนเปิดได้กว้างมากขึ้นถึงประมาณ 1.5 เมตรเลยทำให้ห้องดูไม่แคบ
อีกทั้งยังอยู่ติดกับหน้าต่างบานใหญ่ริมผนัง แต่งขอบด้วยอลูมิเนียม Powder Coat พ่นสีดำ พร้อมกระจกตัดแสงสีเทาหรือที่เรียกกันว่า Euro Grey Glass ที่จะสามารถป้องกันรังสี UV ได้ดี จึงทำให้โซนนี้ได้รับแสงจากธรรมชาติส่องผ่านเข้ามา นอกจากจะประหยัดไฟแล้ว ยังทำให้ห้องยิ่งดูปลอดโปร่ง โล่งกว้างเข้าไปอีกเป็นเท่าตัว
นอกจากนั้นทางโครงการยังได้ฝังขอบอลูมิเนียมไว้กับพื้น ทำให้เดินได้สะดวกไม่ต้องกลัวสะดุด แถมทำความสะอาดเช็ดถูก็ง่ายอีกด้วย
ออกจากห้องนอนเดินมาทางซ้ายจะเป็นห้องน้ำ โดยทางโครงการจะจัดอุปกรณ์และบิลต์อินชั้นวางของขนาดต่างๆมาให้ครบชุด พร้อมแบ่งแยกโซนเปียกและโซนแห้งด้วยกระจกกั้นอาบน้ำที่สูงกว่า 2 เมตร ซึ่งจะช่วยป้องกันน้ำกระเด็นออกมาได้เป็นอย่างดี พร้อมติดขอบยางกันกระแทกมาเรียบร้อย
สำหรับใครที่ต้องการติดตั้งเครื่องทำน้ำอุ่น ทางโครงการก็ได้เดินระบบน้ำไว้ให้ แต่อย่าลืมเดินสายดินเพื่อความปลอดภัยไว้ก่อนเป็นดีที่สุด ส่วนบริเวณอ่างล้างหน้าจะอยู่ติดกับโถสุขภัณฑ์ และติดกระจกเงาครึ่งตัวไว้ให้ด้วย สำหรับพื้นและผนังจะปูด้วยกระเบื้องสีครีม ดูสะอาดตา น่ามอง และด้านบนติดไฟ LED 2 ดวง แถมเครื่องดูดอากาศอีก 1 ตัว
ห้องน้ำจะมีขนาดไม่ใหญ่มาก แต่อุปกรณ์อำนวยความสะดวกครบ สำหรับฝั่งตรงข้ามก็จะเป็นส่วนของห้องครัว
มาที่โซนครัวเป็นแบบปิดแนวยาว มีการติดตั้งระบบป้องกันอัคคีภัย กั้นด้วยประตูกระจกบานเลื่อนแบบ 3 ตอน ขนาดของเนื้อที่จะเหมาะสำหรับเอาไว้ทำครัวแค่ 2 คนกำลังดี ถ้า 3 คนจะแน่นและอึดอัดมาก
ทางโครงการจะบิลต์อินชุดครัวมาให้ครบ ทั้งเคาน์เตอร์ครัว, ตู้เก็บของด้านบน และเตาไฟฟ้า 2 หัวพร้อมเครื่องดูดควัน สำหรับพื้นจะปูด้วยกระเบื้องผิวด้าน ซึ่งสามารถป้องกันคราบมัน กันลื่นเมื่อโดนน้ำและทำความสะอาดง่าย เชื่อมต่อกับระเบียงจึงสามารถระบายอากาศออกอีกช่องทางได้เป็นอย่างดี
ประตูระเบียงจะเป็นบานเลื่อนกระจก 2 ตอน เมื่อเดินออกไปจะเจอพื้นที่กว้าง 1.5 เมตร ก็สามารถตากผ้าได้แบบไม่เยอะมาก พื้นระเบียงปูกระเบื้องเซรามิก 30 x 30 เซนติเมตร มีไฟให้ความสว่างอยู่ตรงข้ามคอมฯ แอร์ ด้านล่างจะมีก๊อกน้ำ และธรณีประตูจะสูงกว่าปกติประมาณ 2-3 นิ้ว เพื่อป้องกันน้ำฝน หรือสิ่งสกปรกเข้ามาในห้อง
ทําเล & การเดินทาง
ทําเล & การเดินทางของโครงการ The Privacy เตาปูน อินเตอร์เชนจ์
The Privacy เตาปูน อินเตอร์เชนจ์ ตั้งอยู่บนถนนกรุงเทพ-นนทบุรี สำหรับการเดินทางที่โดดเด่นคงหนีไม่พ้นรถไฟฟ้า เพราะจะอยู่ระหว่าง 2 สถานี ได้แก่ MRT เตาปูน และ MRT บางซ่อน แต่ที่ใกล้สุดแบบสามารถเดินไปได้ นั่นก็คือ สถานีเตาปูน ที่ห่างกันเพียง 500 เมตรเท่านั้น
ซึ่งทางโครงการก็มีรถบริการรับส่งลูกบ้านไปยังสถานีด้วยเช่นกัน และขยับออกไปอีก 1.5 กิโลเมตรก็จะเจอกับชุมทางบางซื่อ สถานีรถไฟสายหลักของประเทศไทยที่วิ่งขึ้นเหนือและล่องใต้ไปจนถึงภาคอีสาน ปัจจุบันถูกพัฒนาให้มีสถานีรถไฟฟ้าใต้ดิน MRT บางซื่อเพิ่มเข้ามา
อีกทั้งตอนนี้ก็กำลังก่อสร้างส่วนต่อขยายเตาปูน-ท่าพระและหัวลำโพง-บางแคอีกด้วย แต่ที่พิเศษไปกว่านั้นประมาณ 2 ปีข้างหน้าที่นี่ จะถูกต่อตั้งให้เป็นศูนย์กลางการคมนาคมระบบรางแห่งใหม่ของไทยและอาเซียน ที่เชื่อมต่อกับทุกการเดินทางบนรางเข้าไว้ด้วยกันบนพื้นที่กว่า 2,000 ไร่
ซึ่งได้แก่ รถไฟฟ้าใต้ดินสายสีน้ำเงิน ช่วงบางซื่อ-ท่าพระและหัวลำโพง-บางแค รถไฟฟ้าสายสีม่วง ช่วงเตาปูนราษฎร์บูรณะและบางใหญ่บางซื่อ รถไฟชานเมืองสายสีแดง ช่วงบางซื่อ-รังสิต และรถไฟชานเมืองสายสีแดงอ่อน บางซื่อ-ตลิ่งชัน
สำหรับผู้ที่ต้องการเดินทางด้วยรถยนต์ส่วนตัว ก็ถือว่าสะดวกสบายมาก ถึงแม้ตัวโครงการจะอยู่ฝั่งที่มุ่งหน้าไปทางเตาปูน แต่ก็ยังสามารถเชื่อมต่อไปยังส่วนอื่นๆได้ ไม่ว่าจะเป็น ประชาราษฏร์สาย 2 ออกไปที่ถนนวงศ์สว่าง มุ่งเข้าสู่จังหวัดนนทบุรีได้เลย หรือ ลัดเลาะออกจากซอยใกล้เคียงเพื่อออกไปยังถนนประชาชื่น
และที่สำคัญถนนหน้าโครงการยังสามารถเดินทางเข้าสู่อารีย์ สะพานควาย จตุจักร ได้อย่างไม่ยากเย็นแถมใช้เวลาไม่นานมาก อีกทั้งยังใกล้ทางพิเศษศรีรัช-วงแหวนรอบนอกที่เชื่อมต่อไปยังในตัวเมืองอื่นๆได้ในระยะเวลาอันรวดเร็ว
ส่วนใครที่ต้องการโดยสารรถสาธารณะ หน้าโครงการอยู่ไม่ไกลจากป้ายรถเมล์ ที่มีบริการให้เลือกเดินทางหลายสาย เช่น 16 30 50 51 65 97 505 ทั้งรถธรรมดาและรถแอร์ แถมวินมอเตอร์ไซค์ Taxi ก็วิ่งกันขวักไขว่ตลอดคืน
สถานที่ไลฟ์สไตล์
Gateway at Bangsua
ห้างใหม่ขนาดใหญ่ยักษ์ที่เพิ่งจะเปิดให้บริการเมื่อปลายเดือนพฤศจิกายนที่ผ่านมา อยู่ห่างจากโครงการเพียง 1.3 กิโลเมตร ภายในจะประกอบไปด้วยแหล่งสร้างความสุขของคนทุกระดับ ทุกเพศ ทุกวัย ไม่ว่าจะเป็น ร้านค้า ร้านอาหาร แถมแบ่งออกเป็นโซนต่าง ๆ มากมาย
เช่น ชั้นล่างจะเน้นขายอาหารเป็นหลัก หรือชั้น 6 และ 7 ก็จะเป็นเหมือนแหล่งสร้างความสุข สนุกสนานของน้องๆหนู ๆ มีทั้ง Game Center, ลานโรลเลอร์สเก็ต และบ้านบอลในตำนาน แต่ถ้าใครชอบดูภาพยนตร์ รักการออกกำลังกาย ก็ต้องขึ้นไปชั้นบนสุด ซึ่งเป็นที่ตั้งของ Major Cineplex และ Jetts ฟิตเนสเปิด 24 ชั่วโมง เป็นต้น
สถานที่สำคัญรอบโครงการ
สถานที่ไลฟ์สไตล์
- ตลาดเตาปูน: 700 เมตร
- Tesco Lotus ประชาชื่น: 1 กิโลเมตร
- Gateway บางซื่อ: 1.3 กิโลเมตร
- ตลาดบางซ่อน: 1.4 กิโลเมตร
- ตลาดบางโพ: 1.7 เมตร
- BigC วงศ์สว่าง: 2.6 กิโลเมตร
- ตลาดนัดสวนจตุจักร: 4.2 กิโลเมตร
- สวนจตุจักร: 4.4 กิโลเมตร
- Central ลาดพร้าว: 6.4 กิโลเมตร
- The Mall งามวงศ์วาน: 6.9 กิโลเมตร
สถานพยาบาล
- โรงพยาบาลบางโพ: 1.8 กิโลเมตร
สถานศึกษา
- โรงเรียนโยธินบูรณะ: 2.1 กิโลเมตร
ระบบขนส่งมวลชน
- สถานีขนส่งหมอชิต 2: 4.5 กิโลเมตร
- สถานีอารีย์ 2: 6.0 กิโลเมตร
อาคารสำนักงาน
- สถานีตำรวจนครบาลบางโพ: 750 เมตร
- SCG สำนักงานใหญ่: 1.6 กิโลเมตร
บทวิเคราะห์
วิเคราะห์ผลตอบแทนที่จะได้รับ
สำหรับผู้ที่ต้องการจะลงทุนในโครงการ The Privacy Taopoon Interchange ถือว่าน่าสนใจมากเลยทีเดียว เนื่องจากปริมาณที่ดินในปัจจุบันยังพอมีเหลือไว้ให้จับจองอยู่ในราคาที่ไม่สูงมาก แถมการเดินทางยังสะดวกเพราะอยู่ใกล้รถไฟฟ้า MRT สถานีเตาปูนเพียง 500 เมตร
หรือถ้ามีรถยนต์เป็นของตัวเองยิ่งสบายใหญ่เพราะถนนหนทางหน้าโครงการเชื่อมต่อและทะลุไปยังย่านต่างๆที่สำคัญๆหลายที่ อีกทั้งยังติดกับทางด่วนพิเศษศรีรัช-วงแหวนรอบนอกอีกด้วย รวมถึงยังแวดล้อมไปด้วยสิ่งอำนวยความสะดวกที่รองรับการใช้ชีวิตในแต่ละวันได้อย่างครบถ้วน
เหมาะกับผู้ที่ทำงานในเมืองแต่ไม่ชอบความวุ่นวาย และยังใกล้แหล่งงานขนาดใหญ่ ไม่ว่าจะเป็น SCG หรือรัฐสภาในอนาคต แต่ถ้าใครต้องการที่จะซื้อไว้เพื่อให้เช่า คาดว่าคงหนีไม่พ้นกลุ่มคนทำงานถือว่าเป็นเป้าหมายที่น่าจับตามองและเป็นไปได้มากที่สุด
เปรียบเทียบกับโครงการอื่น
|
ชื่อโครงการ |
จำนวนยูนิต |
พื้นที่ใช้สอย (ตร.ม.) |
ราคาเฉลี่ย (บาท/ตร.ม) |
ราคาเริ่มต้น (ล้านบาท) |
|
The Privacy Taopoon Interchange |
486 ยูนิตและร้านค้า 1 ยูนิต |
22.25 – 50.25 |
100,000 |
2.39 |
|
U Delight @ Bangson Station |
527 ยูนิตและ ร้านค้า 6 ยูนิต |
30 – 51 |
85,900 – 102,750 |
3.5 |
|
นิช ไพรด์ เตาปูน-อินเตอร์เชนจ์ |
742 |
28 – 49 |
128,000 |
3.2 |
U Delight @ Bangson Station
- เจ้าของโครงการ: แกรนด์ ยูนิตี้ ดีเวลลอปเมนท์
- ทำเลที่ตั้ง: ถนนกรุงเทพฯ-นนทบุรี (ปากซอยกรุงเทพฯ-นนทบุรี 30) แขวงบางซื่อ เขตบางซื่อ กทม.
- เนื้อที่โครงการ: 3 ไร่ 92 ตารางวา
- รูปแบบโครงการ: เป็นคอนโด High Rise สูง 26 ชั้น จำนวน 1 อาคาร จอดรถได้ประมาณ 43% รวมจอดซ้อนคัน ติด MRT บางซ่อน พร้อมอยู่ด้วยเฟอร์นิเจอร์แบ Fully Furnished และชุดครัว อีกทั้งเครื่องปรับอากาศ
- ราคาเริ่มต้น: 3.5 ล้านบาท
นิช ไพรด์ เตาปูน-อินเตอร์เชนจ์
เจ้าของโครงการ: เสนาดีเวลลอปเม้นท์
ทำเลที่ตั้ง: ถนนประชาราษฎร์ สาย 2 แขวงบางซื่อ เขตบางซื่อ กรุงเทพ 10800
เนื้อที่โครงการ: 3 ไร่ 1 งาน 64.10 ตารางวา
รูปแบบโครงการ: เป็นคอนโดมิเนียม High Rise สูง 38 ชั้น จำนวน 1 อาคาร มีห้องให้เลือกทั้งหมด 3 แบบคือ 1 Bedroom ขนาด 28.00 – 32.00 ตร.ม. 1 Bedroom Plus ขนาด 34.50 ตร.ม. และ 2 Bedroom ขนาด 49.00 ตร.ม.
ที่จอดรถ: ประมาณ 50% รวมจอดซ้อนคัน ต้นแบบนวัตกรรม GEO Fit + My Select อย่างเต็มรูปแบบ และความอลังการของพื้นที่ส่วนกลางแบบ Vertical Facilities จัดเต็ม 30 ชั้นครั้งแรกในเมืองไทย ที่ให้ความคุ้มค่าที่มากกว่ากับฟังก์ชั่นที่เหนือระดับและตอบโจทย์ชีวิตคนเมืองได้อย่างครบถ้วน
ราคาเริ่มต้น: 3.2 ล้านบาท
สำหรับโครงการคอนโดมิเนียมที่นำมาเปรียบเทียบกับ The Privacy Taopoon Interchange นั้น ทางทีมงานได้คัดเลือกจากที่ตั้ง ราคา รวมถึงลักษณะของคอนโดมิเนียมที่ไม่แตกต่างกันมากนัก ซึ่งก็ได้แก่โครงการ U Delight @ Bangson Station ที่สร้างเสร็จแล้ว และโครงการ นิช ไพรด์ เตาปูน-อินเตอร์เชนจ์ อยู่ในระหว่างกำลังดำเนินการสร้าง
ถ้าดูจากข้อมูล เราพอจะเห็นข้อแตกต่างที่ทำให้ทางโครงการ The Privacy Taopoon Interchange เหมือนจะได้เปรียบ นั่นคือเรื่องของยูนิตที่น้อยกว่า ทำให้บรรยากาศโดยรอบดูสงบ เงียบ ไม่วุ่นวาย อีกทั้งสิ่งอำนวยความสะดวกยังมากมายแถมใส่ใจในกระแสเทคโนโลยีที่จะพัฒนาต่อไปในอนาคต
สรุป
คอนโดมิเนียมโครงการ The Privacy Taopoon Interchange เหมาะกับใคร?
The Privacy Taopoon Interchange ถ้าดูจากโดยภาพรวม เราว่าเหมาะสำหรับที่จะซื้ออยู่เองมากที่สุด โดยเฉพาะคนในพื้นที่ที่กำลังมองหาคอนโดเพื่ออยู่อาศัย ซึ่งโครงการนี้ถือเป็นทางเลือกที่น่าสนใจมากเลยทีเดียว
โดยดูจากราคาและสิ่งอำนวยความสะดวกถือว่าครบมาก แถมอยู่ใกล้รถไฟฟ้า รวมถึงยังอัพเดตกระแสนวัตกรรมต่างๆตลอดเวลา เรียกได้ว่า ตอบโจทย์การอยู่อาศัยของคนยุคปัจจุบันและอนาคตจริง ๆ
และสำหรับคนที่จะซื้อเพื่อลงทุนปล่อยเช่า ก็ถือว่าเหมาะ แต่แนะนำให้ซื้อห้องขนาดเล็กเพื่อรองรับผู้เช่าในกลุ่มของพนักงานบริษัทหรือพนักงานราชการที่จะมีมากขึ้นในอีก 2-3 ปี
เพิ่มเติมความรู้ คู่มือซื้อ ขาย เช่าบ้าน-คอนโดฯ พร้อมส่งตรงถึงอีเมล์ของคุณฟรี สมัครได้ที่นี่ และสามารถเลือกชม โครงการใหม่ พร้อม รีวิวโครงการคอนโดใหม่ บ้านใหม่ หลากหลายทำเลและราคาได้เช่นกัน

















































