Bangkok Boulevard พระราม 2 โครงการบ้านเดี่ยวระดับ Luxury จาก SC ASSET โดดเด่นด้วยจำนวนบ้านเพียง 51 ครอบครัว ตั้งอยู่บนทำเลศักยภาพ ใกล้เซ็นทรัล พระราม 2 เดินทางสะดวก เข้า–ออกได้ 2 เส้นทาง ทั้งถนนพระราม 2 และถนนเอกชัย ใกล้จุดขึ้น–ลงทางพิเศษสายพระราม 3–ดาวคะนอง–วงแหวนรอบนอกกรุงเทพฯ ด้านตะวันตก รายล้อมด้วยแหล่งไลฟ์สไตล์และสาธารณูปโภคครบครัน ราคาเริ่มต้น16.9–25 ล้านบาท
คงปฏิเสธได้ยากว่าเรื่องของทำเลเป็นคำตอบลำดับต้นๆ ในการตัดสินใจเลือกซื้อที่อยู่อาศัย แต่ก็ใช่ว่าจะเป็นคำตอบสุดท้ายหากไม่สอดคล้องไปกับที่อยู่อาศัยที่มีคุณภาพ และรายล้อมด้วยสิ่งแวดล้อมและบรรยากาศที่น่าอยู่ อีกทั้งความต่าง และการคิดเผื่อไปถึงประโยชน์ ความปลอดภัย และสวัสดิการของลูกบ้านก็เป็นคำตอบสุดท้ายที่มาพร้อมๆ กัน
ที่อยู่อาศัยประเภททาวน์เฮ้าส์ยังคงได้รับความนิยมจากลูกค้าระดับกลางถึงบน โดยเฉพาะทาวน์เฮ้าส์ 3 ชั้นราคา 3 -4 ล้านบาทขึ้นไป ด้วยเพราะปัจจุบันมีหลายๆ โครงการที่ออกแบบดี และมีฟังก์ชั่นการใช้สอยที่ทัดเทียมบ้านเดี่ยวนั่นเอง
โครงการไซมิส บลอสซ่ำ แอต แฟชั่น จากกลุ่มไซมิส แอสเสทฯ เป็นอีกหนึ่งโครงการที่เข้าข่ายกับสิ่งที่กล่าวมาข้างต้น เพราะเป็นโครงการที่ให้ความสำคัญกับบรรยากาศของพื้นที่สีเขียว และฟังก์ชั่นการใช้งานในบ้านในมุมมองที่คิดต่าง และคิดเผื่อให้กับการอยู่อาศัยที่ถือว่าผสมผสานความอินเตอร์ และความเป็นไทยได้อย่างลงตัว และมีอัตลักษณ์เฉพาะตัว ที่ต่างไปจากทาวน์เฮ้าส์ทั่วไป
เจาะลึกข้อมูลโครงการ (ข้อมูล ณ วันที่ 1 มิถุนายน 2559 )
ชื่อโครงการ: ไซมิส บลอสซ่ำ แอต แฟชั่น ( Siamese Blossom @ Fashion )
ผู้พัฒนาโครงการ: บริษัท ไซมิส แอสเสท จำกัด
ที่ตั้ง: ถนนรัชดาภิเษก – รามอินทรา แขวงคันนายาว เขตคันนายาว กรุงเทพฯ
สำนักงานขาย: 090-880-3952 – 3
เว็บไซต์: www.siameseasset.co.th
รายละเอียดโครงการ
เนื้อที่โครงการ: 41 ไร่
รูปแบบโครงการ: ทาวน์เฮ้าส์สไตล์โมเดิร์นลอฟท์ 3 ชั้นครึ่ง จำนวน 120 ยูนิต เฉพาะเฟส 1 โครงการเน้นพื้นที่สีเขียวทั้งโครงการ ทำถนนทางเข้าโครงการแบบบูเลอวาร์ดเป็นอุโมงค์ต้นไม้ เพื่อให้ดูร่มรื่น
รูปแบบบ้าน: ปัจจุบันมีแบบบ้าน 2 แบบ คือ
1. แบบ หน้ากว้าง 4.80 เมตร ตัวบ้านลึก 10 เมตร 3 ห้องนอน 3 ห้องน้ำ 2 ที่จอดรถ
2. แบบ หน้ากว้าง 5.20 เมตร ตัวบ้านลึก 12 เมตร 3 ห้องนอน 3 ห้องน้ำ 2 ที่จอดรถ
ขนาดที่ดินเริ่มต้น: 18.00 – 32.90 ตารางวา
พื้นที่ใช้สอยเริ่มต้น: 187 ตารางเมตร
ราคาขายเริ่มต้น: 4.3 ล้านบาท
ราคาขายเฉลี่ย: 50,000 บาท/ ตารางวา
เจาะกลุ่มเป้าหมาย : ลูกค้าระดับ B+ ถึง A รายได้เฉลี่ย 60,000 บาทต่อเดือน
เริ่มก่อสร้าง: ต้นปี 2556
แล้วเสร็จ: สร้างเสร็จพร้อมขาย (เฉพาะเฟส 1 จำนวน 120 ยูนิต)
สถานะการขาย: 90%
ค่าส่วนกลาง: 45 บาท/ ตารางวา (จ่ายล่วงหน้า 2 ปี)
เงื่อนไขการชำระเงิน:
จอง 50,000 บาท
ทำสัญญา 50,000 บาท
พร้อมโอนไม่ต้องผ่อนดาวน์ กู้สูงสุด 30 ปี เฉลี่ยผ่อนที่ 20,000 – 30,000 บาทต่อเดือน
หมายเหตุ: โปรโมชั่น ราคาขายเริ่มต้นพิเศษ 4.3 ล้านบาท พร้อมฟรีค่าโอนและจดจำนอง, เครื่องปรับอากาศยี่ห้อ YORK จำนวน 5 เครื่อง, ปั๊มน้ำ, แท้งค์น้ำ, ประตูเข้าบ้านระบบ Digital Door Lock และ Password Key Card (ข้อมูล ณ วันที่ 1 มิถุนายน 2559 )
รายละเอียดโครงการ
เจาะลึกรายละเอียดโครงการ
ออกแบบสถาปัตยกรรมภายในโดย : บริษัท สถาปนิกสมดุล จำกัด
ออกแบบภูมิทัศน์โดย: บริษัท สนิทัศน์ สตูดิโอ จำกัด
ก่อสร้างโดย: บริษัท ไซมิส แอสเสท จำกัด (เจ้าหน้าที่ชุดเดียวกับบริษัท ฤทธา จำกัด)
ระบบรักษาความปลอดภัย: มี Double Gate Security เข้า-ออกด้วยระบบ Access Card Control , CCTV , รปภ. 24 ชั่วโมง มีทางเข้า-ออกโครงการ 2 ทาง (ด้านหน้าคือทางหลัก ริมถนนรัชดา – รามอินทรา ส่วนด้านหลังทะลุไปยังสวนสยามได้)
สิ่งอำนวยความสะดวก: สวนหลังบ้านขนาด 8 – 10 เมตร, สวนสาธารณะท้ายโครงการ (มีบ่อปลา, ทางเดินรอบบ่อ)
ส่วนประกอบภายในบ้าน
พื้น: ชั้น 1 และชั้นลอย – กระเบื้องยาง ดูแล รักษาง่าย, เดินแล้วไม่ดัง
ชั้น 2 และ 3 – ลามิเนต
ผนัง: อิฐมวลเบา ฉาบเรียบทาสี
บันได: โครงเหล็ก, ลูกนอนไม้ยาง
ครัว: เคาน์เตอร์ครัว, ซิงค์ล้างจานยี่ห้อ FRANKE พร้อมถังดักจับไขมันใต้ซิงค์
สุขภัณฑ์ห้องน้ำ: TOTO ประกอบด้วยโถสุขภัณฑ์, อ่างล้างหน้า และอุปกรณ์ห้องน้ำ ยี่ห้อ American Standard ประกอบด้วยฝักบัว, ก๊อกน้ำและที่วางสบู่
ความสูงพื้นจรดเพดาน : ชั้น 1 4.7 เมตร
ชั้น 2 2.7 เมตร
ชั้น 3 4.0 เมตร (วัดจากส่วนที่สูงที่สุด)
หมายเหตุ: ชั้น 1 และ2 ไม่ดร็อปฝ้า เพื่อต้องการให้ดูโปร่ง โล่ง ส่วนชั้น 3 คำนวณจากที่ดร็อปฝ้าให้แล้ว
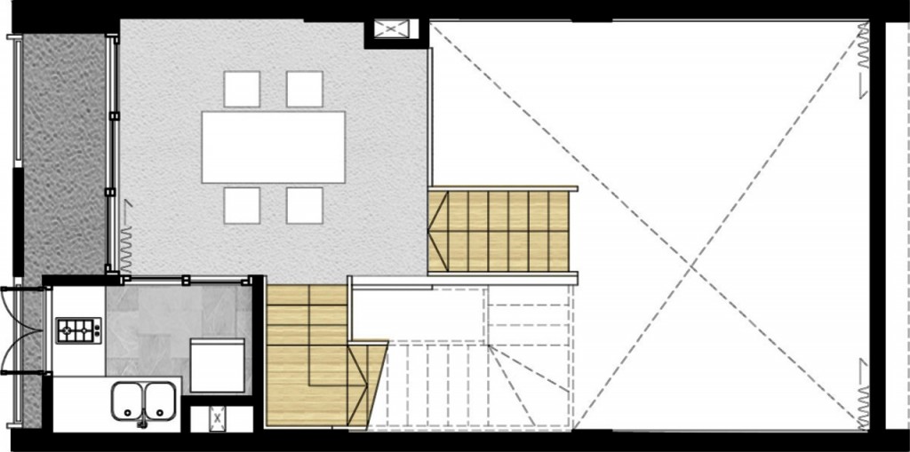
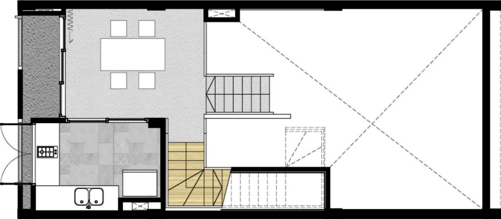
แปลนบ้านแบบต่างๆ
Floor plan ชั้น 1 แบบหน้ากว้าง 4.8 เมตร
Floor plan ชั้นลอย แบบหน้ากว้าง 4.8 เมตร
Floor plan ชั้น 2 แบบหน้ากว้าง 4.8 เมตร
Floor plan ชั้น 3 แบบหน้ากว้าง 4.8 เมตร
Floor plan ชั้น 1 แบบหน้ากว้าง 5.2 เมตร
Floor plan ชั้นลอย แบบหน้ากว้าง 5.2 เมตร
Floor plan ชั้น 2 แบบหน้ากว้าง 5.2 เมตร
Floor plan ชั้น3 แบบหน้ากว้าง 5.2 เมตร
แผนผังโครงการ
โครงการถือว่าเด่นในเรื่องของงานการออกแบบ ด้วยรางวัลการันตีจาก World Architecture Festival 2013 และ Thailand Property Award 2014 ซึ่งหน้าตาโครงการมีความต่างจากโครงการทาวน์เฮ้าส์ทั่วไป
แผนผังโครงการ Plot C
เริ่มจากถนนทางเข้าโครงการที่ออกแบบให้มีลักษณะเป็นบูเลอวาร์ด (แบบอุโมงค์ต้นไม้) ถนน 4 ช่องทาง กว้าง 19 เมตร และมีทางเท้าด้านข้างถนน 2 ฝั่ง

บริเวณด้านหน้าโครงการเป็นพื้นที่ตั้งคอนโดฯ ของโครงการถนนทางเข้าโครงการยกสูงกว่าหมู่บ้านข้างเคียงประมาณ 1 เมตร (สังเกตได้จากรั้วของโครงการ) และเป็นบริเวณที่น้ำไม่ท่วมจากเหตุการณ์น้ำท่วมใหญ่เมื่อปี 2554

สองข้างทางร่มรื่น และมีต้นจามจุรีใหญ่ตรงเกาะกลางถนน และต้นอินทนิลน้ำ ต้นหางนกยูง ต้นประดู่แดงขนาบทั้งสองข้างทาง

ทั้งนี้โซนที่เปิดขายอยู่ก็คือที่เราไปรีวิวนั้น คือโซนที่เรียกว่า Plot C ก่อสร้างด้วยโครงสร้างคอนกรีตเสริมเหล็ก เสาคานพร้อมโครงสร้างเหล็กบนชั้น 3 พร้อมงานก่ออิฐ อีกทั้งรั้วโครงการเป็นแบบ 2 ชั้น คือรั้วปูน 1 ชั้น และรั้วเหล็กสีดำอีก 1 ชั้น

สำหรับตัวบ้านออกแบบเน้นพื้นที่โล่ง ว่างถึง 70% และพื้นที่การสร้างอาคารเพียง 30% มีหลังคากันขโมย คือ เป็นเมทัลชีทผืนเดียวกันหมด ซึ่งยากต่อการงัดแงะ รวมถึงเป็นเหล็กพร้อมฉนวนกันความร้อนด้วย และออกแบบให้หน้ากากของบ้านทำด้วยอิฐมอญทาสีแดง เพื่อความสวยงาม อีกทั้งเพื่อบังสายตา จากผู้คนภายนอกนั่นเอง ส่วนพื้นที่หลังบ้าน ขุดคลองพร้อมทำสวนพักผ่อนให้ ขนาด 8-10 เมตร ทำให้หลังบ้านห่างกัน12 – 14 เมตร

ทั้งนี้สายไฟจะซ่อนลงดินทั้งหมด เพื่อความสวยงาม โดยบ้านจะวางเรียงเป็นบล็อคๆ ละ 16 ยูนิต (มี 2 ฝั่งหันหน้าเข้าหากัน ฝั่งละ 8 ยูนิต )โดยไม่มีรั้วกั้นทั้งหน้าบ้านและหลังบ้าน มีเพียงประตูรั้วขนาดใหญ่เพียง 1 ประตูที่ใช้ร่วมกันติดตั้งควบคุมด้วยระบบรีโมท บ้านแต่ละยูนิตก็จะมีรีโมทของใครของมัน โดยระบบประตูมีตัว Sensor ตรวจจับ เมื่อไม่มีการเคลื่อนไหวเข้า-ออก ประตูก็จะปิดเองโดยอัตโนมัติภายในเวลา 15 วินาที

ส่วนด้านนอกของรั้วบ้านฝั่งหนึ่งเป็นตู้ใส่จดหมาย เรียงกันตามบ้านเลขที่ ส่วนอีกฝั่งหนึ่งเป็นระบบ Intercom คือ ระบบกดปุ่มเรียกตามหมายเลขบ้าน ซึ่งจะส่งสัญญาณไปยังโทรศัพท์ที่ติดตั้งไว้ให้ในบ้าน และเป็นประตูสำหรับคนเดิน ต้องใช้กุญแจไขเข้า-ออก ซึ่งจะปลอดภัยสำหรับลูกบ้าน

นอกจากนี้ก็มีถังขยะให้บล็อคละ 1 จุด และมิเตอร์ไฟฟ้าไว้ด้านนอกรั้วบ้าน เพื่อไม่ให้บุคคลภายนอกเข้ามาภายในบ้านนั่นเอง

ท้ายโครงการเป็นสวนสาธารณะที่มีบ่อปลา มีลู่วิ่งรอบบ่อ สำหรับวิ่งออกกำลังกาย หรือพาลูกมาเดินเล่นยามเย็นก็ได้

ทางเข้า-ออกหลังโครงการทะลุไปสวนสยามได้ หมายเหตุ: โครงการไม่อนุญาตให้ต่อเติมหน้าบ้าน และหลังบ้านเพื่อความสวยงาม และเป็นระเบียบเหมือนกันหมด แต่ภายในบ้านสามารถตกแต่ง ดัดแปลงได้
ทิศทางการวางผังโครงการ
บ้านในโครงการหันหน้าทิศเหนือและใต้ เป็นหลักโดย
รูปแบบบ้านตัวอย่าง
มี 2 แบบ คือ
แบบ หน้ากว้าง 4.80 เมตร ตัวบ้านลึก 10 เมตร ขนาด 3 ห้องนอน 3 ห้องน้ำ 2 ที่จอดรถ

แบบ หน้ากว้าง 4.80 เมตร ตัวบ้านลึก 10 เมตร ขนาด 3 ห้องนอน 3 ห้องน้ำ 2 ที่จอดรถ เนื้อที่ 25.4 ตารางวา พื้นที่ใช้สอย 202 ตารางเมตร พิเศษคือ บริเวณผนังด้านหลังที่จอดรถโดยทั่วไปจะเป็นที่เก็บของอย่างเดียว แต่ที่นี่จะเป็นทำเป็นที่เก็บปั๊มน้ำ และแท้งค์น้ำ เนื่องจากหลังบ้านเป็นสวน

เปิดประตูเข้ามาภายในบ้านจะเห็นที่ว่าง คือที่สำหรับวางเครื่องซักผ้า ซึ่งเตรียมพื้นที่สำหรับติดตั้งให้แล้ว

บันไดทางขึ้นไปยังชั้น 1 มีที่ว่างข้างผนังซ้ายมือ สามารถทำเป็นสวนหย่อมเล็ก ๆ หรือจะดัดแปลงเป็นตู้เก็บของ ชั้นวางรองเท้าก็ได้ (มีเฉพาะแปลงหัวมุม)

มองย้อนจากบันไดไปที่ประตูเข้าบ้านเป็นระบบ Digital Door Lock รวมถึงติดตั้งโทรศัพท์หน้าห้องน้ำ ซึ่งจะเชื่อมต่อสัญญาณกับระบบ Intercom ที่ติดตั้งบริเวณนอกรั้วบ้าน เวลามีคนมาเรียก หรือมาติดต่อเรา

ผนังข้างหนึ่งของห้องรับแขกและชั้นลอยเพิ่มช่องแสงด้วยหน้าต่างกระจกใสบานกระทุ้งขนาดใหญ่ เพื่อระบายอากาศ และเปิดรับแสงสว่างจากธรรมชาติ

บนชั้นลอยเป็นส่วนโต๊ะรับประทานอาหาร พร้อมระเบียงด้านนอก เชื่อมต่อกับครัวแบบปิด ที่กั้นพื้นที่ห้องครัวด้วยประตูบานเลื่อนกระจกใส เพื่อกันกลิ่นอาหารรบกวน

ห้องครัวแบบปิด มีประตูกระจกบานเลื่อนให้เสร็จสรรพ นอกจากนี้ทำเคาน์เตอร์ครัว ท็อปหินแกรนิตโต้ตัดขอบ โดยแบ่งการใช้งานเป็นสองส่วน คือ ส่วนซิงค์ล้างจาน และเตาแก๊สให้

พื้นที่ว่างข้างผนัง บริเวณทางขึ้นบันไดไปชั้น 2 มีระแนงเหล็กทาสีขาวไว้ให้ (เฉพาะแปลงหัวมุม) สำหรับตกแต่งด้วยไม้แขวน

จากชั้น 2 มองลงไปเห็นชั้นลอย และชั้น1 บันไดเป็นโครงเหล็ก ลูกนอนไม้ยาง ดูหนาแน่น เดินแล้วไม่มีเสียงดัง

ชั้น 2 เป็นส่วนของห้องนอน 2 ห้อง โดยห้องแรกออกแบบให้เป็นห้องนอนที่ตกแต่งด้วยโทนสีเอิร์ธโทนเหมือนห้องรับแขก วางเตียงขนาดคิงไซส์ได้

ภายในห้องนอน เชื่อมต่อกับระเบียงด้านนอก กั้นด้วยประตูบานเลื่อนกระจกใส สามารถออกไปยืนชมสวนหลังบ้านได้

เพิ่มลูกเล่น บริเวณผนังมุมปลายเตียงด้วยช่องประตูลูกบิดที่ซ่อนคอมเพรสเซอร์แอร์ไว้ให้ และพรางสายตาด้วยหน้ากากบ้านที่ทำด้วยอิฐมอญทาสีแดง ยึดกับโครงเหล็ก ซึ่งเป็นซิกเนเจอร์ของโครงการก็ว่าได้

ชั้น 3 เป็นพื้นที่ของห้องนอนใหญ่ 1 ห้อง ซึ่งตกแต่งเต็มพื้นที่ โดยวางเตียงนอนพักผ่อนไซส์ใหญ่ไว้กลางห้อง ส่วนขวามือ (จากประตูทางเข้าห้องนอน) เป็นฝั่งของมุมแต่งตัวและห้องน้ำส่วนตัว ซึ่งมีระเบียงออกไปยืนชมวิวด้านหน้าบ้านได้ นใหญ่ แยกส่วนเปียก-แห้งให้ กั้นด้วยกระจกใส (Tempered Glass) เพื่อพรางสายตาเช่นกัน

ระเบียงห้องนอน มี 2 ชั้นถัดกัน คือ ระเบียงที่เทพื้นทรายล้าง เซาะร่องให้ กั้นด้วยราวเหล็กกันตก กับระเบียงด้านนอกที่เทคอนกรีตฉาบเรียบยาวไปด้านข้างซึ่งสามารถวางคอมเพรสเซอร์แอร์ได้ ซึ่งคิดเผื่อไว้ให้ง่ายต่อการยืนหรือเดิน สำหรับช่างซ่อมแอร์
แบบ หน้ากว้าง 5.20 เมตร ตัวบ้านลึก 12 เมตร 3 ห้องนอน 3 ห้องน้ำ 2 ที่จอดรถ

แบบ หน้ากว้าง 5.20 เมตร ตัวบ้านลึก 12 เมตร 3 ห้องนอน 3 ห้องน้ำ 2 ที่จอดรถ ออกแบบฟังก์ชั่นชั้น 1 และชั้นลอยคล้ายกับแบบแรก แต่ต่างกันที่ชั้น 2 และ 3 คือ แบบนี้จะมีพื้นที่เอาท์ดอร์กลางบ้าน สำหรับดัดแปลงเป็นมุมพักผ่อน หรือสวนกลางบ้านก็ได้ ทั้งนี้ด้านหลังบริเวณที่จอดรถ เป็นห้องเก็บของสำหรับวางปั๊มน้ำ, แท้งค์น้ำ และเครื่องซักผ้าไว้ ต่างจากแบบแรกที่เตรียมที่วางเครื่องซักผ้าอยู่ในบ้าน

ขึ้นบันไดมาจะเจอห้องรับแขกชั้น1 เป็นแบบ Double Volume ความสูงเพดานถึง 5 เมตร กั้นผนังหลังบ้านด้วยกระจกใสบานใหญ่ เพื่อให้เห็นสวนหลังบ้าน และแสงสว่างส่องถึงได้ทั่ว

ชั้นลอยเชื่อมต่อกับห้องครัวแบบปิด มีประตูกระจกบานเลื่อนให้เสร็จสรรพ รวมถึงมีหน้าต่างระบายอากาศให้เรียบร้อย นอกจากนี้มีเคาน์เตอร์ครัวท็อปหินแกรนิตโต้ตัดขอบ โดยแบ่งการใช้งานเป็นสองส่วน คือ ส่วนซิงค์ล้างจานและเตาแก๊สให้ ใต้ซิงค์ล้างจานมีถังดักจับไขมันให้เช่นกัน

ชั้น 2 เป็นพื้นที่ของห้องนอน 2 ห้อง ซึ่งเพิ่มลูกเล่นให้บ้านด้วย Semi Outdoor มี Sky Light ด้านบนเพื่อระบายอากาศ โดยหลังนี้ตกแต่งเป็นสวนกลางบ้านให้เป็นไอเดีย ที่มีประตูกระจกใสบานเลื่อนให้จริง และเทพื้นทรายล้าง เซาะร่อง และทำท่อระบายน้ำให้แล้ว ทั้งนี้สามารถปรับเปลี่ยนฟังก์ชั่นด้านในได้ตามใจชอบ จะทำเป็นมุมนั่งเล่น อ่านหนังสือก็ได้

ห้องฝั่งชมสวนหลังบ้านของชั้น 2 ออกแบบเป็นห้องทำงานขนาดใหญ่ไว้เป็นไอเดีย ซึ่งเราสามารถปรับเปลี่ยนฟังก์ชั่นได้ตามต้องการ

วิวสวนหลังบ้านมองจากห้องทำงานชั้น 2 ซึ่งบ่อน้ำทางโครงการเลี้ยงปลาไว้ และมีการโยนลูกปิงปองจุลินทรีย์เพื่อกำจัดกลิ่นและป้องกันน้ำเน่าเสียให้ทุก 1 เดือน

ห้องนอนฝั่งชมสวนหน้าบ้าน ออกแบบให้เป็นห้องนอนลูกน้อย ที่มีประตูลูกบิด หน้าบานกระจกใส เปิดออกไปยัง Semi Outdoor ได้ด้วย

ห้องน้ำกลางของชั้น 2 ที่ใช้ร่วมกัน เป็นฟังก์ชั่นแบบชายและหญิง คือ กั้นส่วนอ่างล้างหน้าไว้ด้านนอก แยกกันกับโถสุขภัณฑ์ เพื่อความสะดวกในการใช้งาน กรณีต้องใช้พร้อมกัน

ชั้น 3 เป็นส่วนของห้องนอนแบบ Penthouse คือเป็นห้องนอนทั้งชั้น วางเตียงคิงไซส์ไว้ข้างระเบียง ให้เป็นไอเดีย

ปลายเตียงเป็นพื้นที่พักผ่อนนั่งอ่านหนังสือ สามารถปรับเปลี่ยนเป็นตู้เก็บของ หรือชั้นวางของ วางทีวีแทนก็ได้
ทําเล & การเดินทาง
เจาะลึกทำเลและการเดินทาง
ทำเลรามอินทรา
ทำเลรามอินทราแบ่งเป็น 3 โซนหลัก คือ โซน 1 รามอินทราตอนต้น (ซอย 1 – 63) ก่อนถึงทางด่วน โซนนี้จะใกล้กับรถไฟฟ้าสายสีเขียว (หมอชิต-สะพานใหม่) มากที่สุด รวมถึงสายสีชมพู (แคราย-มีนบุรี) ด้วย โซน2 รามอินทราตอนกลาง (วัชรพล – รามอินทรา กม.8 ) นอกจากใกล้รถไฟฟ้าสายสีชมพู ก็ยังจะมีสายสีเทา (วัชรพล – พระราม 3 – ท่าพระ) อีกด้วย ส่วนโซนสุดท้าย โซน 3 รามอินทราตอนปลาย (แฟชั่นไอส์แลนด์ – มีนบุรี) โซนนี้ก็ได้อานิสงส์ของห้างใหญ่ และใกล้กับถนนวงแหวนรอบนอกฝั่งตะวันออก (ถนนกาญจนาภิเษก) และทางด่วนรามอินทรา – อาจณรงค์
จากอดีต ทำเลนี้ถือเป็นอีกทำเลหนึ่งที่มีการขยายตัวเชิงที่อยู่อาศัยอยู่ต่อเนื่องโดยเฉพาะแนวราบ ทั้งบ้านเดี่ยวระดับราคา 4 – 5 ล้านบาทไปจนถึง 10 ล้านบาท และทาวน์เฮ้าส์ระดับราคา 3 – 4 ล้านบาท ซึ่งปัจจุบันได้รับอานิสงส์จากรถไฟฟ้าส่วนต่อขยายสายสีชมพู (แคราย – มีนบุรี) เป็นหลัก ซึ่งโครงการรถไฟฟ้าสายสีชมพูนั้นจะเป็นสายที่ขนคนจากชานเมืองเข้าสู่ในเมือง ช่วยให้ผู้ที่อยู่อาศัยรอบนอกเมืองสามารถเดินทางได้สะดวกมากขึ้น และส่งผลให้เกิดการขยายตัวของแหล่งที่อยู่อาศัยมากขึ้นไม่เว้นแม้แต่คอนโดมิเนียมระดับราคา 1.5 – 2 ล้านบาท ซึ่งเป็นความเจริญที่ขยายตัวต่อเนื่องมาจากโซนลาดพร้าว และพระราม 9 นั่นเอง
นอกจากนี้ ฝั่งถนนพหลโยธินก็มีรถไฟฟ้าสายสีเขียวเข้ม (หมอชิต – สะพานใหม่ – คูคต) รวมถึงถนนวิภาวดีรังสิตที่ขนานกับถนนพลโยธินซึ่งมีรถไฟฟ้าสายสีแดง (ตลิ่งชัน-บางซื่อ-รังสิต) ผ่าน ปัจจัยเหล่านี้ส่งผลดีกับทำเลรามอินทราซึ่งเชื่อมต่อกับถนนสองสายข้างต้น ทำให้มีทางเลือกในการเดินทางที่หลากหลายนั่นเอง
ทั้งนี้ราคาที่ดินย่านนี้ปรับสูงขึ้นมาก โดยเฉพาะโซน 1 ราคาที่ดินเฉลี่ยจาก 1 แสนบาทต่อตารางวา ปรับขึ้นเป็น 2 แสนบาทต่อตารางวา ทำให้การจะพัฒนาโครงการที่อยู่อาศัยในอนาคตก็จะมีต้นทุนที่สูงขึ้น ส่งผลให้ราคาบ้านก็จะสูงตามไปด้วย คนส่วนใหญ่ที่ซื้อที่อยู่อาศัยจึงเป็นคนที่มีกำลังซื้อสูง และทำงานในย่านนี้จึงจะถือว่าคุ้มค่ากับราคาที่จ่ายไป
ทำเลที่ตั้งโครงการ
โครงการตั้งอยู่ริมถนนรัชดา – รามอินทรา (ถนนตัดใหม่ช่วงเกษตรฯ-นวมินทร์ รามอินทรา) เป็นถนนตัดใหม่ที่กว้างถึง 6 เลน สามารถเข้าออกได้ทั้งถนนเกษตรฯ – นวมินทร์, ถนนรามอินทรา และถนนนวมินทร์ อีกทั้งใกล้กับถนนวงแหวนรอบนอกฝั่งตะวันออกเพียง 300 ม.
โดยเส้นทางวงแหวนฯ นี้เชื่อมต่อกับมอเตอร์เวย์สายใหม่ สนามบินสุวรรณภูมิ หรือไปยังโซนรังสิต, ลำลูกกา, ปทุมธานีได้ด้วย นอกจากนี้ยังใกล้กับทางด่วนรามอินทรา – อาจณรงค์ ซึ่งสามารถใช้เส้นทางนี้เพื่อเข้าสู่ในเมือง วิ่งไปยังถนนพระราม 4, ถนนสาทร, สีลมได้ และทางด่วนนี้ยังเชื่อมไปยังทางด่วนพิเศษเฉลิมมหานคร และทางด่วนอุตตราภิมุขได้ด้วย
นอกจากนี้ ในอนาคตอย่างที่กล่าวไปข้างต้นว่าทำเลนี้จะมีรถไฟฟ้าส่วนต่อขยายสายสีชมพู (แคราย –มีนบุรี) ตัดผ่านซึ่งสถานีที่ใกล้กับโครงการมากที่สุดคือ สถานีวงแหวนตะวันออกซึ่งอยู่ห่างจากโครงการประมาณ 500 ม. ด้วย
ทั้งนี้โครงการเหมาะกับคนที่มีรถยนต์ส่วนตัวมากกว่า เพราะระบบขนส่งสาธารณะยังไม่สะดวกเท่าที่ควร แต่หากฉุกเฉิน เช่น รถเสีย ก็คงต้องเรียกแท็กซี่ หรือไม่ก็มอเตอร์ไซค์รับจ้าง
การเดินทาง
รถยนต์ส่วนตัว
ทางเลือกที่ 1 จากแยกเกษตรฯ วิ่งบนถนนเกษตรฯ – นวมินทร์ เลี้ยวซ้ายตรงตลาดนัดรถไฟ เกษตรฯ – นวมินทร์ เพื่อเข้าถนนรัชดา – รามอินทรา ก่อนออกถนนรามอินทราให้กลับรถใต้สะพาน ตรงไปชิดซ้าย โครงการจะอยู่ซ้ายมือ
ทางเลือกที่ 2 จากหลักสี่ วิ่งบนถนนรามอินทรา กลับรถตรงแยกโรงพยาบาลนพรัตน์ แล้ววิ่งชิดซ้ายมาเรื่อยๆ เพื่อเลี้ยวซ้ายไปทางถนนรัชดา – รามอินทรา ขับชิดซ้ายจะเห็นโครงการอยู่ซ้ายมือ
ทั้งนี้เราใช้เส้นทางที่ 1

ก่อนขึ้นสะพานที่ 2 ฝั่งซ้ายมือจะเห็นป้ายบอกทางของโครงการ ขับไปอีกนิดให้เบี่ยงขวาขึ้นสะพานไปตามป้าย ถนนกาญจนาภิเษก ถนนรามอินทรา มีนบุรี
รถไฟฟ้า
รถไฟฟ้าส่วนต่อขยายสายสีชมพู (แคราย – มีนบุรี) โครงการในอนาคต
สถานีวงแหวนตะวันออก (ห่างจากโครงการประมาณ 500 เมตร )
แท็กซี่
ผ่านหน้าโครงการ
สถานที่ไลฟ์สไตล์
ย่านนี้เป็นทำเลขวัญใจเด็กๆ และผู้ที่รักความสนุกสนาน เพราะมีสถานที่ท่องเที่ยว และเครื่องเล่นจากสวนสนุกหลายแห่ง อาทิ สถานที่ไลฟ์สไตล์ที่ใกล้โครงการมากที่สุดก็คือ ห้างแฟชั่นไอส์แลนด์ ที่มีสวนสนุกวันเดอร์แลนด์ให้ได้ไปเล่นเครื่องเล่นกัน โดยอยู่ห่างจากโครงการประมาณ 1.8 กิโลเมตร รวมถึง
สวนสนุกวันเดอร์เวิล์ด รามอินทรา ห่างจากโครงการ 450 เมตร และสวนสยาม ทะเลกรุงเทพฯ ห่างจากโครงการ 5.4 กิโลเมตร
นอกจากนี้ยังมีห้างสรรพสินค้า และคอมมูนิตี้มอลล์ รวมถึงตลาดนัด ดังนี้
เดอะพรอมานาด ห่างจากโครงการ 2.9 กิโลเมตร
MaxValu ปัญญาวิลเลจ ห่างจากโครงการ 2.7 กิโลเมตร
บิ๊กซี มาร์เก็ต คู้บอน ห่างจากโครงการ 4.1 กิโลเมตร
เทสโก้โลตัส สุขาภิบาล 1 ห่างจากโครงการ 4.5 กิโลเมตร
ไทวัสดุ นวมินทร์ ห่างจากโครงการ 4.6 กิโลเมตร
อมอรินี่ รามอินทรา ห่างจากโครงการ 4.8 กิโลเมตร
ไทยมาร์ท รามอินทรา ห่างจากโครงการ 6.8 เมตร
แมคโคร รามอินทรา ห่างจากโครงการ 7.2 เมตร
ตลาดนัดรถไฟ เกษตร – นวมินทร์ 5.9 กม.
สถานที่สำคัญใกล้เคียงหรือแหล่งอำนวยความสะดวก
โครงการอยู่ใกล้กับโรงพยาบาลหลายแห่ง อาทิ โรงพยาบาลสินแพทย์ ห่างจากโครงการ 3.1 กิโลเมตร
โรงพยาบาล พญาไท นวมินทร์ ห่างจากโครงการ 4.5 กิโลเมตร
โรงพยาบาลนพรัตน์ราชธานี ห่างจากโครงการ 4.7 กิโลเมตร
รวมถึงโรงเรียนบดินทร์เดชา สิงห์ สิงหเสนี 2 ห่างจากโครงการ 4.4 กิโลเมตร
บทวิเคราะห์
ผลตอบแทนที่จะได้รับ
ทำเลนี้มีโครงการแนวราบอยู่มากทั้งบ้านเดี่ยว และทาวน์เฮ้าส์ ซึ่งข้อดีของโครงการนี้อยู่ที่เส้นทางการเดินทางด้วยรถยนต์เป็นหลัก ที่สามารถเชื่อมต่อไปยังนอกเมือง และในเมืองได้สะดวก อีกทั้งการออกแบบผังโครงการ และตัวบ้านที่ต่างจากโครงการอื่นๆ มีความเป็นอินเตอร์ด้วยรูปทรง และฟังก์ชั่นในบ้านบวกกับความเป็นไทยของธรรมชาติ และสวนหลังบ้านที่ผสมผสานเข้ากัน ทำให้บรรยากาศดูร่มรื่น
อย่างไรก็ตามคนส่วนใหญ่ที่ซื้อ คือซื้อเพื่ออยู่อาศัยจริง ไม่นิยมปล่อยเช่าแต่อย่างใด เหมาะกับการซื้อเพื่อลงทุนระยะยาว ซื้อทิ้งไว้ให้ลูกหลาน หรือหากจะเก็งกำไรซื้อเพื่อปล่อยขายจริงๆ ก็ถือครองยาว 5 ปี 10 ปี จึงจะคุ้มค่าคุ้มราคา
เปรียบเทียบกับโครงการอื่น
ชื่อโครงการ: เดอะ อีโคสเปซ เกษตร – นวมินทร์ 2 (The Eco Space Kaset – Nawamin2)
เจ้าของโครงการ: บริษัท เอส.แอล.เอสเตท จำกัด
ทำเลที่ตั้ง : ถนนเกษตร – นวมินทร์ แขวงคลองกุ่ม เขตบึงกุ่ม กรุงเทพฯ
เนื้อที่โครงการ: 12 – 3 – 55.6 ไร่
รูปแบบ : ทาวน์โฮมสูง 3 ชั้น 3 นอน 3 น้ำ 2 ที่จอดรถ หน้ากว้าง 5 เมตร จำนวน 112 ยูนิต
มี 2 แบบ คือ แบบบ้าน A และ แบบบ้าน B
ขนาดที่ดิน : 20.56 – 62.59 ตารางวา
พื้นที่ใช้สอยเริ่มต้น : 180 ตารางเมตร
ราคาเริ่มต้น : 4.19 ล้านบาท
สำนักงานขายโทร: 02 – 944 – 7900
เว็บไซต์ : www.theeco-space.com
ชื่อโครงการ: กรีนิช รามอินทรา (Greenwich Ramintha )
เจ้าของโครงการ: บริษัท ทีพีซี แอสเสท จำกัด (TPC ASSET) ในเครือ บริษัท ไทยโพลีคอนส์ จำกัด ผมหาชน)
ทำเลที่ตั้ง : ถนนรามอินทรา กม. 12 (ติดแม็คโครรามอินทรา ) แขวงคันนายาว เขตคันนายาว กรุงเทพฯ
เนื้อที่โครงการ: 16 – 3 – 83.56ไร่
รูปแบบ : ทาวน์โฮม 3 ชั้น 3 นอน 3 น้ำ 2 ที่จอดรถ หน้ากว้าง 5 เมตร จำนวน 174 ยูนิต มีแบบบ้าน 1 แบบ
ขนาดที่ดินเริ่มต้น: 21.9 – 37.8 ตารางวา
พื้นที่ใช้สอย : 200 ตารางเมตร
ราคาเริ่มต้น : 4.09 ล้านบาท
สำนักงานขายโทร: 02 – 917 – 8855
เว็บไซต์ : www.tpcasset.co.th
สรุป
โครงการตั้งอยู่ในทำเลที่เจริญ เดินทางไปมาสะดวก มีห้างสรรพสินค้า สวนสนุก และโรงพยาบาลหลายแห่งรายล้อม อีกทั้งในอนาคตก็จะมีรถไฟฟ้าส่วนต่อขยายสายสีชมพู (แคราย – มีนบุรี) ผ่านใกล้โครงการ ก็ยิ่งจะส่งผลให้ทำเลนี้เติบโต และคึกคักมากยิ่งขึ้น
นอกจากนี้บรรยากาศภายในโครงการถือว่าร่มรื่น และน่าอยู่ ตามคอนเซ็ปต์ของโครงการที่เน้นพื้นที่สีเขียว ต้นไม้ใหญ่ และบ่อน้ำหลังบ้าน ซึ่งดูแปลกตา และต่างไปจากหลายโครงการโดยรอบ รวมถึงตัวบ้านที่ถือว่าออกแบบบ้านได้สวย มีฟังก์ชั่นการใช้งานหลากหลาย มีลูกเล่นที่คิดเผื่อให้สำหรับลูกบ้าน อีกทั้งระบบความปลอดภัยที่ทันสมัย
อย่างไรก็ตามบางคนอาจรู้สึกไม่คุ้นชินกับการอยู่ร่วมกันในบริเวณพื้นที่รั้วบ้านเดียวกัน เพราะที่นี่ใน 1 บล็อก จำนวน 16 ยูนิต มีรั้วบ้านใหญ่รั้วเดียว ไม่มีรั้วแบ่งกั้นระหว่างบ้านทั้งหน้าและหลังบ้านจะโล่ง
และมีข้อจำกัดในการไม่อนุญาตให้ต่อเติม ดัดแปลงพื้นที่หน้าบ้าน และหลังบ้านเพื่อความสวยงามและเป็นระเบียบเรียบร้อย
ทั้งนี้ก็ต้องขึ้นอยู่กับความพึงพอใจว่าเราชอบอยู่ร่วมกับผู้อื่น แบบสงบ เงียบ ภายในรั้วบ้านเดียวกันแบบนี้ได้ หรือชอบที่จะอยู่ในพื้นที่รั้วบ้านของตนเองมากกว่ากัน


































































