แลนด์มาร์ค แอท แกรนด์สเตชั่น บาย ไซมิส แอสเสท (Landmark At Grand Station By Siamese Asset) เป็นโครงการมิกซ์ยูส บนทำเลศักยภาพ ตรงข้ามแฟชั่นไอส์แลนด์ ใกล้รถไฟฟ้าสายสีชมพู สถานีวงแหวนรามอินทรา เพียง 400 เมตร ภายในห้องออกแบบเป็น 2 ชั้น เพดานสูง 4.15 เมตร เน้นความโปร่ง โล่ง พร้อมออกแบบห้องตามพฤติกรรมและไลฟ์สไตล์ที่แตกต่างกัน ไม่ว่าจะเป็นห้องพักสำหรับผู้สูงอายุ คนที่มีสัตว์เลี้ยงหรือห้องพักในรูปแบบ Co-living และห้องพักแบบมาตรฐาน ภายในโครงการครบครันด้วยสิ่งอำนวยความสะดวกทั้งพื้นที่พักอาศัย โรงแรม ร้านค้า ร้านอาหาร และสำนักงาน ราคาเริ่มต้นเพียง 2.90 ล้านบาท
สนใจ คอนโดฯ ในโครงการนี้? เลือกชม รายการประกาศ ราคาโดนใจ
ในปัจจุบันโครงการรถไฟฟ้าสายสีน้ำเงินได้ปลุกกระแสพื้นที่ฝั่งธนให้กลับมาอยู่ในกระแสความต้องการอีกครั้ง แนวรถไฟฟ้าสายสีน้ำเงิน (บางซื่อ – ท่าพระ) เข้ามาพลิกฟื้นทำเล ปิ่นเกล้า จรัญสนิทวงศ์ ท่าพระและบางแค นอกจากนั้นอานิสงส์จากรถไฟฟ้าสายสีส้ม (ตลิ่งชั่น-ศูนย์วัฒนธรรม) และรถไฟชานเมืองสายสีแดง (ตลิ่งชัน-ศาลายา) ก็เป็นระบบ mass transit อีกสองสายที่จะทำให้ทำเลฝั่งธนน่าจับตามอง โดยหนึ่งในผู้ประกอบการที่มองเห็นศักยภาพในทำเลนี้ได้แก่ “บริษัท อนันดา ดีเวลลอปเม้นท์ จำกัด (มหาชน)” ที่เข้ามาพัฒนาพื้นที่จรัญสนิทวงศ์ให้กลายเป็นที่อยู่อาศัยเกาะแนวรถไฟฟ้า ซึ่งจากหลายโครงการที่ผ่านมา จะเห็นว่าอนันดาฯ ถือเป็นผู้ประกอบการแถวหน้าของโครงการที่อยู่อาศัยแนวรถไฟฟ้า และจากชั่วโมงบินที่เก็บสั่งสมมาอย่างต่อเนื่อง เมื่อคว้าทำเลในย่านที่เห็นแล้วว่ามีศักยภาพอย่างถนนจรัญสนิทวงศ์ ก็ไม่พลาดที่จะพลิกโฉมที่ดินผืนดังกล่าว ให้กลายที่อยู่อาศัยแบบไฮไรส์ ภายใต้ชื่อ “ไอดีโอ โมบิ จรัญ-อินเตอร์เชนจ์” ซึ่งเปิดตัวครั้งแรกเมื่อปี 2557 ที่ผ่านมาและได้รับการตอบรับที่ดีอย่างไม่ต้องสงสัย โดยปัจจุบันมียอดขายกว่า 85% แล้วและคาดว่าน่าจะปิดการขายได้ในไม่เกินปีหน้า โดย DDproperty จะมาเจาะลึกโครงการให้ดูกันว่าอะไรที่เป็นเหตุผลให้โครงการในทำเลย่านฝั่งธนนี้น่าสนใจ
เจาะลึกข้อมูลโครงการ (ข้อมูล ณ วันที่ 9 ตุลาคม 2558)
ชื่อโครงการ: ไอดีโอ โมบิ จรัญ-อินเตอร์เชนจ์ (Ideo Mobi Charan INnterchange )
ผู้พัฒนาโครงการ: บริษัท อนันดา ดีเวลลอปเม้นท์ จำกัด (มหาชน) : ANAN
ทำเลที่ตั้ง: ถ.จรัญสนิทวงศ์ แขวงบางขุนศรี เขตบางกอกน้อย กรุงเทพมหานคร
เว็บไซต์: http://www.ananda.co.th/condo/ideomobi/charan
โทร: 02 316 2222
รายละเอียดโครงการ
พื้นที่โครงการ: 5-3-68 ไร่
รูปแบบ: คอนโดเนียม High Rise รูปตัว ผสมกับตัว L จำนวน 1 อาคาร ความสูง 22 ชั้น รวม 1,201 ยูนิต (สำหรับพักอาศัย 1,196 ยูนิต+ ร้านค้า 5 ยูนิต)
ยูนิตต่อชั้น: สูงสุด 66 ยูนิต
กลุ่มเป้าหมาย: ระดับกลาง-บน, คนในพื้นที่ดั้งเดิม, คนทำงาน, เจ้าของกิจการ
สถานะการก่อสร้าง: ธันวาคม ปี 2557– ตุลาคม 2558
ระบบรักษาความปลอดภัย: Access Card, รปภ. 24 ชม., CCTV ตามจุดสำคัญ
ที่จอดรถ: ที่จอดในช่องจอด 427 คัน ประมาณ 36 %
ลิฟท์ใช้งาน: 6 ตัว (ลิฟท์โดยสาร 4 ตัว และลิฟท์สำหรับขนของ 2 ตัว)
ส่วนกลาง: Social Club, Theatre, Fitness, Sauna Stream, Library, Laundry
สถานะการขาย: 85% ของโครงการ
เงินกองทุนรวม: 500 บาทต่อ ตารางเมตร (ชำระครั้งเดียว ณ วันโอนกรรมสิทธิ์)
ค่าส่วนกลาง: 45 บาทต่อ ตารางเมตรต่อเดือน (ชำระล่วงหน้า 1 ปี)
ราคาเริ่มต้น: ประมาณ 2.69 ล้านบาท
ราคาเฉลี่ย: เริ่มต้นที่ 110,000 บาทต่อตารางเมตร
รูปแบบห้อง:
สตูดิโอ ขนาด 21.5 ตารางเมตร (มีแบบหน้าแคบ (NR) และแบบหน้ากว้าง (WD) ซึ่งปัจจุบันห้องรูปแบบ WD ขายหมดแล้ว) ราคาเริ่มต้น 2.69 ล้าน
1 ห้องนอน 33.5 ตารางเมตร ราคาเริ่มต้น 4.3 ล้านบาท
2 ห้องนอน 45 ตารางเมตร ราคาเริ่มต้น 5.6 ล้านบาท
รายละเอียดโครงการ
รีวิวภาพรวมโครงการ
โครงการออกแบบเป็นรูปตัว H ผสมกับตัว L บนภูมิทัศน์ที่เป็นธรรมชาติ สร้างความเป็นส่วนตัวบริเวณพื้นที่ชุมชนเก่าแก่ดั้งเดิม มีจุดเด่นในเรื่องของทำเลที่เป็นจุดตัดของรถไฟฟ้าสายสำคัญในอนาคตถึง 3 สาย สีส้ม สีแดง สีน้ำเงิน และรับประกันปากท้องด้วยไลฟ์สไตล์ฟู้ดขนาดใหญ่อย่างแมคโคร จรัญฯ ที่อยู่ห่างจากตัวโครงการไม่เกิน 200 เมตรเท่านั้น
Layout
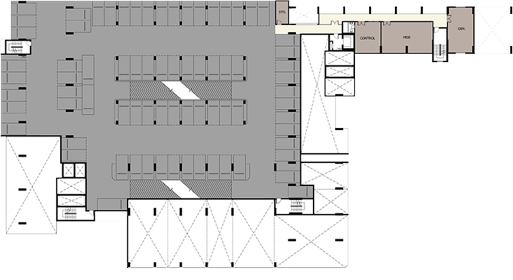
คอนโด High Rise 1 อาคาร ความสูง 22 ชั้น ยูนิตรวม 1,201ยูนิต ยูนิตรวมต่อชั้นไม่เกิน 66 ยูนิต แบ่งเป็นโซนเหนือและโซนใต้ พัฒนาอาคารโดยบริษัท พรพระนคร จำกัด และออกแบบภายในโดย โปรดักส์ ดีไซน์ ของบริษัท อนันดา ดีเวลลอปเม้นท์ จำกัด (มหาชน)
1st Floor

ชั้น 1 แบ่งออกเป็นล็อบบี้ฝั่งเหนือทางขวา และล็อบบี้ฝั่งใต้ทางซ้าย บรรยากาศรอบโครงการล้อมไปด้วยต้นไม้สีเขียว ในส่วนของตรงกลางเป็นอาคารจอดรถในร่ม
2nd Floor
3rd Floor

ชั้น 2 และ 3 เป็นส่วนของที่จอดรถทั้งหมด มีบันไดเชื่อมต่อไปยังชั้นล่าง และส่วนกลางที่ชั้น 5 และลิฟท์ขนของเชื่อมต่อไปยังล็อบบี้
4th Floor

บริเวณชั้น 4 ตรงกลางแปลนจะยังเป็นลานจอดรถ แต่ทางด้านซ้ายและด้านขวาจะเห็นว่าเริ่มมีส่วนของห้องพักอาศัย โดยมีทั้งแบบ 1 ห้องนอน และ 2 ห้องนอน ในจุดนี้หากพักอาศัยอยู่บริเวณชั้น 4 วิวรอบโครงการก็จะเริ่มเคลียร์แล้ว เพราะไม่มีตึกสูงรอบโครงการมากนัก
5th Floor

ชั้น 5 เป็นชั้นส่วนกลางโครงการ ประกอบไปด้วย สระว่ายน้ำระบบเกลือ 2 สระในรูปแบบ Lap Pool และ Relax Pool โดยสระน้ำทางด้านหน้าจะได้รับวิวรถไฟฟ้า และทางด้านหลังห้องพักอาศัยบริเวณนี้จะได้รับวิวส่วนกลางสระว่ายน้ำและสวนหย่อมของชั้นนี้ นอกจากนั้นภายในอาคารยังมีห้องออกกำลังกาย Social Club ห้องซักผ้า ห้องสตีมยกหญิง-ชาย ห้องสมุด และสวนส่วนกลาง บริเวณฝั่งซ้าย-ขวา มีทั้งห้องรูปแบบ 1 ห้องนอน และ 2 ห้องนอน โดยทั้ง 2 ฝั่งจะได้รับวิวส่วนกลางในชั้นนี้
6th Floor
7th – 20th Floor
21th – 22th Floor

ชั้น 6 – ชั้น 22 เป็นส่วนของชั้นพักอาศัยทั้งหมด วิวรูปตัวยูด้านบนจะได้รับวิวส่วนกลางที่ชั้น 5 ส่วนวิวตัวยูเล็กด้านล่างเป็นวิวติดแนวรถไฟฟ้า เห็นรถไฟฟ้าวิ่งผ่านไปมาหากโครงการรถไฟฟ้าสายสีน้ำเงินแล้วเสร็จ วิวด้านตัวแอลจะมองเห็นวิวรางรถไฟและอาจได้เห็นขบวนรถไฟวิ่งอยู่ ส่วนวิวฝั่งซ้ายมือจะเป็นคลอง แมคโคร จรัญฯ และได้วิวแนวรถไฟฟ้าในระยะไกล
*หมายเหตุ จากแปลนในรูป จะมีการแบ่งสีห้องดังนี้
สีน้ำตาล เป็นแบบห้องสตูดิโอ ขนาด 21.5 ตารางเมตร รูปแบบ NR หรือ ห้องแนวลึก
สีเทาอ่อน เป็นแบบห้องสตูดิโอ ขนาด 21.5 ตารางเมตร รูปแบบ WD หรือ ห้องหน้ากว้างซึ่งทางโครงการได้ทำการขายห้องรูปแบบนี้ไปหมดแล้ว
สีเหลือง เป็นแบบห้อง 1 ห้องนอน ขนาด 33.5 ตารางเมตร ซึ่งจะมีวิวส่วนใหญ่เป็นส่วนกลางของโครงการ
สีเทาเข้ม เป็นห้องแบบ 2 ห้องนอน ขนาด 45 ตารางเมตร ซึ่งส่วนใหญ่จะอยู่บริเวณมุมอาคารของทุกชั้น
ภาพรวมภายนอกโครงการ

อาคารจอดรถชั้น 1 – 4 ถ้าซื้อห้องรูปแบบ สตูดิโอ ขนาด 21.5 ตารางเมตร และห้องรูปแบบ 1 ห้องนอน ขนาด 33.5 ตารางเมตร จะได้สิทธิ์จอดรถเพียง 1 คัน แต่หากซื้อห้องรูปแบบ 2 ห้องนอน ขนาด 45 ตารางเมตร จะได้รับสิทธิ์จอดรถ 2 คัน

ทางเข้า-ออก ขึ้น-ลง ลานจอดรถเป็นแบบวนซ้าย บริเวณพื้นที่ลานจอดรถกว้างขวางสามารถตีวงเลี้ยวได้อย่างสบายๆ

ด้านข้างลานจอดรถทั้งสองฝั่งมีบันไดหนีไฟเชื่อมต่อออกไปยังชั้นล่างซึ่งเป็นล็อบบี้ทางฝั่งเหนือและฝั่งใต้
ภาพรวมภายในสำนักงานขาย

ตัวล็อบบี้เชื่อมต่อกับลิฟท์ที่อยู่อาศัย ล็อบบี้ฝั่งเหนือมีลิฟท์โดยสาร 2 ตัว ถัดไปทางซ้ายมือจะมีประตูเชื่อมออกไปยังลานจอดรถและมีลิฟท์ขนของ 1 ตัว

ระบบคีย์การ์ดเป็นรูปแบบ ล็อคฟลอ ล็อคชั้น (ปัจจุบันลิฟท์ยังใช้ร่วมกันอยู่เนื่องจากยังอยู่ในส่วนของการขาย ในอนาคตเมื่อปิดการขายลิฟท์จะเปลี่ยนเป็นระบบคีย์การ์ดระบบล็อคฟลอ ล็อคชั้น) มีลิฟท์โดยสาร 2 ตัว และลิฟท์ขนของ 1 ตัว เท่ากับฝั่งล็อบบี้โซนเหนือเช่นกัน
การวางทิศทางโครงการ
ทิศเหนือ เป็นด้านหลังของโครงการ มีซอยเล็กๆ ที่เหมือนจะเป็นซอยส่วนบุคคล รถวิ่งเข้าออกได้ทางเดียว สองฝั่งเป็นอาคารบ้านเรือนของคนพื้นที่ความสูงไม่เกิน 2 ชั้น
ทิศใต้ อยู่ติดกับคลองบางขุนนนท์ ถัดไปเป็นซอยจรัญ 39 เป็นที่อยู่อาศัยของชุมชนคนพื้นที่ มองลงมาจากคอนโดฯ จะเห็นวิวของแมคโคร จรัญฯ
ทิศตะวันออก หน้าโครงการหันออกไปทางทิศตะวันออกเฉียงใต้ส่วนใหญ่ ทำให้ในช่วงเช้าพระอาทิศย์จะขึ้นเฉียงๆ โซนที่อยู่ทางฝั่งล็อบบี้ที่หันหน้าออกด้านนอกโครงการ และฝั่งล็อบบี้ใต้ที่มีวิวเป็นส่วนกลางสระว่ายน้ำจะจะได้รับแสงแดดอย่างเต็มที่ในช่วงเช้า

เยื้องๆ กับหน้าโครงการเลยไปหน่อยจะเป็นที่กลับรถ หากออกจากโครงการแล้วต้องการกลับรถต้องระวังรถทางขวามือด้วย เพราะทางกลับรถอยู่ห่างจากปากทางออกโครงการเพียงนิดเดียว ไม่มีระยะให้วิ่งเข้าเลนส์ขวา จะต้องตรงออกจากโครงการขวางถนนไปกลับรถอย่างเดียว
ทิศตะวันตก ฝั่งนี้ชุมชน บ้านเดี่ยว ทาวน์เฮ้าส์ เป็น Local Road ถนนเลียบทางรถไฟ ห่างออกไปประมาณ 1.5 กม. จะมีหมู่บ้านเศรษฐสิริ สูงไม่เกิน 3 ชั้น มีธนาคาร CIMB อยู่ติดกับโครงการเลย
ภาพรวมภายในโครงการ

ห้องติดตั้งระบบไฟฟ้า ติดป้ายระวัง 3 ภาษา น่าจะเป็นภาษา ไทย พม่า และเขมร เพื่อให้คนงานระวัง และรักษาความปลอดภัย
ภาพรวมส่วนกลาง

เมื่อเดินเข้ามาสุดทางจะมีห้องล็อคเกอร์แยกชาย-หญิง ทางเดินข้างหน้าจะเป็นส่วนเชื่อมต่อไปยังที่พักอาศัย
รีวิวห้องตัวอย่าง
แบบห้อง สตูดิโอ ขนาด 21.5 ตารางเมตร แบบหน้าแคบ (NR) ราคาเริ่มต้น 2.69 ล้าน

เมื่อเข้าห้องน้ำมาจะต้องเดินเข้าด้านในแล้วปิดประตูจึงจะเห็นโถส้วม เนื่องจากห้องน้ำรูปแบบห้องนี้มีขนาดเล็กมาก

ครัวเป็น Hob 2 หัว ของ Mex ด้านบนเป็นที่ดูดอากาศ ด้านขวาเป็นซิ้งค์น้ำ และมีพื้นที่เตรียมครัวอยู่ตรงกลาง

ระเบียงขนาด 60 x 350 ซม. เป็นระบบเลื่อนสองตอน เลื่อนได้ด้านเดียว ตีขอบอลูมิเนียมเคลือบสี พร้อมที่ล็อคระบบดึงขึ้น-ลง

ภาพวิวจากห้องตัวอย่างขนาด 21.5 ตารางเมตร ตั้งอยู่ทางทิศตะวันตกเฉียงเหนือ ดังนั้นวิวที่ได้รับจากห้องตัวอย่างนี้จึงจะเป็นวิวของแมคโครจรัญฯ หากหันมาทางซ้ายมือจะสามารถมองเห็นแนวรถฟ้าได้

ไฟเป็นแบบดาวน์ไลท์ ผนังกลางห้อง เป็นเครื่องพ่นน้ำอัตโนมัติ เมื่อมีอัคคีภัย หากต้องการจะสูบบุหรี่ หรือต้มมาม่าต้องระวังเรื่องควันที่อาจจะไปกระตุ้นให้เครื่องทำงานได้
แบบห้อง 1 ห้องนอน 33.5 ตารางเมตร ราคาเริ่มต้น 4.3 ล้าน

บริเวณปลายเตียงใช้ไอเดียประหยัดพื้นที่โดยการติดทีวีไว้กับผนัง ด้านบนเป็นแอร์ตัวที่ 2 จากโครงการที่มีมาให้

ฝั่งขวาของเตียงเป็นตู้เสื้อผ้าแบบบิลท์อิน เวลาเปิดจะไม่มีไฟอัตโนมัติ ทำให้ตู้ดูมืดมากเพราะอยู่ในมุมมืดของห้อง
แบบห้อง 2 ห้องนอน 45 ตารางเมตร ราคาเริ่มต้น 5.6 ล้าน

วิวห้องขนาด 45 ตารางเมตร อยู่บริเวณหัวมุมของตึกฝั่งทิศตะวันตกเฉียงใต้ เมื่อมองออกไปจะได้วิวบ้านเรือน และแมคโคร จรัญ

ปลายเตียงสามารถแขวนทีวีไว้ที่ผนังได้ แต่หากมีโต๊ะมาวางไว้ (ดังภาพ) จะทำพื้นที่เดินปลายเตียงค่อนข้างแคบ
สิ่งที่จะได้รับจากโครงการ
เฟอร์นิเจอร์: Fully Fitted ไม่มีไมโครเวฟ-ตู้เย็น-ฟูกและวอลเปเปอร์
พื้นห้อง: ไม้ลามิเนต
พื้นห้องน้ำ: กระเบื้องขนาด 30 x 30 ซม.
พื้นระเบียง: กระเบื้องขนาด 30 x 30 ซม.
ผนัง: อิฐมวลเบาฉาบปูนทาสีขาว
พื้นจรดผนัง: ความสูง 2.5 เมตร
เครื่องปรับอากาศ: Trane
สุขภัณฑ์: Cotto
ชุดครัว: Mex
สิ่งอำนวยความสะดวกภายในโครงการ
ห้องออกกำลังกาย
สระว่ายน้ำระบบเกลือ รูปแบบ Lap pool และ Relax pool
ห้องสตีมแยกชาย-หญิง
ห้องดูหนังส่วนตัว
Social Club
Library
ทําเล & การเดินทาง
วิเคราะห์ศักยภาพทำเล
ก่อนที่จะมีโครงการรถไฟฟ้าสีน้ำเงินส่วนต่อขยาย (บางซื่อ-ท่าพระ) ขึ้นมาทางฝั่งธนฯ จะเห็นได้ว่าผู้พัฒนาที่อยู่อาศัยส่วนใหญ่จะกระจุกตัวกันบริเวณโซนปิ่นเกล้าและบรมราชชนนีตอนต้นเป็นหลักเท่านั้น ประกอบด้วยข้อจำกัดต่างๆ ไม่ว่าจะเป็นเรื่องของผังเมือง การสร้างตึกสูง หรือแม้แต่ราคาที่ดิน ทำให้ปัจจัยเหล่านี้ส่งผลไปถึงเรื่องของราคาที่อยู่อาศัยในย่านนี้ จะเห็นได้จากที่อยู่อาศัยแนวราบทางฝั่งธนฯ โซนราชพฤกษ์ ที่มีราคาสูงระดับท็อปเอนด์ แต่เนื่องจากการขยายตัวของระบบคมนาคม ไม่ว่าจะเป็นถนนตัดใหม่จากรอบนอกและรอบใน รวมไปถึงโครงการรถไฟฟ้าสายสีน้ำเงิน และยังมีความคืบหน้าของโครงการรถไฟฟ้าสายสีส้มที่สามารถเชื่อมต่อฝั่งธนฯ เข้าสู่ใจกลางย่านธุรกิจได้ ทำให้ในช่วง 2- 3 ปี ที่ผ่านมาพื้นที่บริเวณนี้มีการขยายตัวไปตามศักยภาพดังกล่าว ซึ่งปัจจุบันมีการพัฒนาโครงการที่อยู่อาศัยต่างๆ ขึ้นมากมาย จากเดิมที่แทบไม่มีเลย การเติบโตของบริเวณพื้นที่ฝั่งธนฯ ไม่เพียงดันให้ราคาที่ดินขึ้นสูงเท่านั้น แต่หากในอนาคตหากโครงการรถไฟฟ้าสายใหม่ทั้งสามสาย (น้ำเงิน, แดง, ส้ม) สร้างเสร็จพร้อมใช้งาน ราคาที่อยู่อาศัยในแนวโครงการรถไฟฟ้าเหล่านี้ก็จะเริ่มขยับขึ้นสูงแบบก้าวกระโดดเช่นกัน
วิเคราะห์ทำเลที่ตั้งโครงการ
ที่ตั้งโครงการอยู่ติดกับถนนจรัญสนิทวงศ์ สองฝั่งข้างทางเป็นชุมชนเก่าแก่มีอาคารพาณิชย์ความสูงไม่เกิน 2-4 ชั้นเรียงรายหนาแน่น บริเวณเกาะกลางถนนเป็นโครงการรถไฟฟ้าสายสีน้ำเงิน (บางซื่อ-ท่าพระ) ที่กำลังดำเนินการก่อสร้างละคาดว่าจะแล้วเสร็จประมาณปี 2560 ฝั่งตรงข้ามโครงการเป็นโครงการรถไฟฟ้าใต้ดินสายสีส้ม (ตลิ่งชัน-ศูนย์วัฒนธรรม) ซึ่งในอนาคตประมาณปี 2562 จะเป็นสถานีบางขุนนนท์ ส่วนบริเวณซ้ายมือของโครงการเป็นถนนบางขุนนนท์ มีทางรถไฟวิ่งผ่าน ในอนาคตระหว่างโครงการและถนนบางขุนนนท์ซึ่งเป็นถนนเลียบทางรถไฟจะเกิดรถไฟชานเมืองสายสีแดง (ตลิ่งชัน-ศาลายา) ขึ้นในปี 2559 ซึ่งโครงการรถไฟฟ้าทั้งสามสายตัดผ่านกันระหว่างโครงการ ไอดีโอ โมบิ จรัญ-อินเตอร์เชนจ์พอดีทำให้ตัวโครงการอยู่ห่างจากรถไฟฟ้าทั้ง 3 สายไม่เกิน 100 เมตร
ในส่วนของถนนถนนหลักจรัญสนิทวงศ์ซึ่งเป็นถนนเมนของโครงการสามารถไปได้หลายทาง แต่ปัจจุบัน เนื่องจากถนนมีการดำเนินการก่อสร้างรถไฟฟ้าสายสีน้ำเงินทั้งสายจึงอาจมีรถติดบ้าง โดยเฉพาะในเวลาเร่งด่วน แต่หากรถไฟฟ้าเสร็จรับรองว่าภูมิทัศน์ถนนบริเวณนี้จะเดินทางไปมาสะดวกขึ้น ทางฝั่งขวามือของโครงการมีแมคโคร จรัญสนิทวงศ์อยู่ห่างจากตัวโครงการไม่ถึง 200 เมตร ถัดไปจากแมคโครฯ เป็นตลาดบางขุนศรีที่มีทั้งของสด ของคาวให้เลือกช้อป เลือกกินกัน
ส่วนในแง่ของการเดินทาง จากหน้าโครงการสามารถข้ามฝั่งเข้าเมืองพระนครได้ไม่ยาก โดยตัวโครงการอยู่ห่างจากถนนสมเด็จพระปิ่นเกล้าเพียง 1.5 กม. หากเลี้ยวซ้ายเข้าถนนบางขุนนนท์ก็สามารถออกไปยังถนนบรมราชชนนีเลี้ยวซ้ายออกไปยังถนนราชพฤกษ์ได้ในระยะทาง 5 กม. สามารถข้ามฝั่งไปยังสาทรได้เลย ส่วนอีกฝั่งถนนก็สามารถมุ่งไปท่าพระ ตลาดพลูแหล่งชุมชนดั้งเดิมที่พร้อมด้วยแหล่งอาหารสตรีทฟู้ดด้วยระยะทางที่ห่างจากโครงการเพียง 3.5 กม. หรือจะวิ่งเลี้ยวซ้ายเข้าพรานนกก็อยู่ไม่ไกลจากโรงพยาบาลศิริราช สามารถข้ามสะพานอรุณอัมรินทร์ข้ามฝั่งเข้าเขตพระนครได้สบายๆ
นอกจากเส้นทางคมนาคมในส่วนของถนนและรถไฟฟ้าแล้ว บริเวณหน้าโครงการยังมีรถเมล์ผ่านหลายสาย อีกทั้งบริการจากรถสาธาณะทั้งวินมอเตอร์ไซค์บริเวณปากซอยจรัญฯ 39 และรถสองแถวที่วิ่งอยู่บนถนนหลักจรัญสนิทวงศ์
จากการสำรวจบริเวณทำเลที่ตั้งจึงสามารถบอกได้ว่าทำเลจรัญสนิทวงศ์ซึ่งเป็นที่ตั้งของโครงการนี้ มีความครบครันมากขึ้นเรื่อยๆ พร้อมๆ กับความคืบหน้าของโครงการรถไฟฟ้าสายสีน้ำเงิน ถึงแม้จะเป็นย่านที่เป็นชุมชนเก่าแก่ แต่ก็กำลังเติบโตไปพร้อมกับศักยภาพที่ดีในอนาคต

เลี้ยวขวาตรงสามแยกไฟฉายเข้าสู่ถนนจรัญสนิทวงศ์ ช่วงนี้ควรขับแบบชะลอๆ เพราะมีการก่อสร้างอยู่อย่างต่อเนื่อง
การเดินทาง
หากมาจากทางราชพฤกษ์สามารถเลี้ยวซ้ายเข้าถนนทางเลียบทางรถไฟระยะทางประมาณ 4 กม. จะออกสู่ถนนหลักจรัญสนิทวงศ์ให้เลี้ยวขวาผ่านทางรถไฟ ตรงไปไม่เกิน 500 เมตร จะพบทางกลับรถหน้าแมคโคร จรัญฯ ตรงไปไม่เกิน 200 เมตรก็จะพบกับโครงการอยู่ติดกับถนนเลย
หากมาจากทางถนนเพชรเกษมเลี้ยวขวาบริเวณแยกท่าพระ ตรงยาวผ่านมหาวิทยาลัยเทคโนโลยีสยาม ขึ้นสะพานข้ามคลองมอญ ตรงผ่านสามแยกไฟฉายสามารถมุ่งสู่โครงการได้เลย ระยะทางจากแยกท่าพระจนถึงตัวโครงการมีระยะห่างเพียง 4 กม.
หากมาจากทางปิ่นเกล้า เมื่อลงจากสะพานให้เบี่ยงซ้ายไปขึ้นสะพานอรุณอัมรินทร์ เมื่อถึงแยกบริเวณโรงพยาบาลศิริราชให้เลี้ยวขวาเข้าสู่ถนนวังหลัง มุ่งตรงสู่ถนนพรานนก เลี้ยวขวาที่สามแยกไฟฉายตรงไปประมาณ 1 กม. ก็จะพบโครงการตั้งอยู่ติดกับถนนเลย
หากมาจากถนนพระราม 7 ตรงขึ้นสะพานพระราม 7 ตรงเข้าถนนหลักจรัญสนิทวงศ์ ผ่านแยกบรมราชชนนีแล้วตรงมาอีกประมาณ 1.5 กม. จะพบโครงการอยู่ฝั่งตรงข้าม ตรงผ่านไปหาที่กลับรถบริเวณหน้าแมคโครจรัญฯ และตรงไปประมาณ 200 เมตรก็จะพบกับตัวโครงการ
สถานที่แนวไลฟ์สไตล์
แม็คโคร
เซ็นทรัลปิ่นเกล้า
วังหลัง
ตลาดบางขุนศรี
บทวิเคราะห์
วิเคราะห์อัตราผลตอบแทนที่จะได้รับ
จากการลงพื้นที่สำรวจทำเลย่านจรัญสนิทวงศ์ ปัจจุบันยังมีโครงการคอนโดฯ ที่เปิดขายใหม่กระจายไปตามสถานีรายทาง แต่มีแนวโน้มว่าโครงการใหม่ๆ อาจจะกระจุกตัวอยู่บริเวณจรัญฯ ทางฝั่งบางพลัด หรือบริเวณส่วนตัวต่อขยายรถไฟฟ้าสายสีน้ำเงินสถานีบางซื่อมากกว่า เพราะบริเวณนั้นยังมีพื้นที่เปล่าและราคาที่ดินยังไม่สูงมากนัก บริเวณทำเลที่ตั้งโครงการของไอดีโอ โมบิ จรัญ-อินเตอร์เชนจ์ จึงดูจะหาคู่แข่งยากบนทำเลที่เป็นจุดตัดของรถไฟฟ้าสายใหม่ทั้ง 3 สาย แต่ในอนาคตพื้นที่บริเวณนี้อาจจะมีการแข่งขันกันอย่างดุเดือด เพราะถัดออกไปไม่ไกลก็ยังมีผู้ประกอบการรายใหญ่อย่างเอพีฯ อยู่ และยังมีผู้ประกอบการท้องถิ่นอย่างบริษัท ซี.เค.ที.อินเตอร์เนชั่นแนล ที่แข็งแกร่งในตลาดย่านจรัญฯ-ปิ่นเกล้าเตรียมขึ้นโครงการธนา อาร์เคเดีย ใกล้กับไลฟ์ ปิ่นเกล้า (ของเอพีฯ) นอกจากนี้ ยังมีที่ดินเปล่าแปลงตรงข้ามกับไลฟ์ ปิ่นเกล้าที่ล้อมที่ดินพร้อมพัฒนาโครงการด้วย จากที่กล่าวมาจะเห็นถึงศักยภาพของทำเลนี้ได้ชัดเจน อัตราค่าเช่าโครงการไอดีโอ โมบิ จรัญ-อินเตอร์เชนจ์ จึงอยู่ในราคาประมาณ 12,000 บาทต่อเดือนสำหรับห้องที่เล็กที่สุดขนาด 21.5 ตรม. ซึ่งหากเปรียบเทียบกับแมนชั่นหรือหอพักที่มีอยู่มากมายแม้อัตราค่าเช่าจะสูงกว่าเกือบเท่าตัว แต่ถ้าคำนึงถึงสิ่งอำนวยความสะดวก สิ่งแวดล้อมรอบตัว ระบบความปลอดภัย รวมทั้งคุณภาพชีวิต ซึ่งเป็นสิ่งที่คนที่มองหาห้องเช่าให้ความสำคัญก็ทำให้ห้องปล่อยเช่าในโครงการสามารถแข่งกับซัพพลายในพื้นที่ที่มีอยู่จำนวนมากได้ ในแง่ของการลงทุนระยะยาว ในอนาคตพื้นที่ในส่วนนี้น่าจะมีการแข่งขันกันอย่างดุเดือด และผลจากการแข่งขันอัตราราคาที่อยู่อาศัย รวมทั้งที่ดินก็จะเพิ่มมูลค่าตามไปด้วย
เปรียบเทียบกับโครงการอื่น
เดอะทรี รีโอ บางอ้อ สเตชั่น
เดอะทรี รีโอ บางอ้อ สเตชั่น เจ้าของโครงการบริษัท พฤกษา เรียลเอสเตท จำกัด (มหาชน) ตั้งอยู่บนถนนจรัญสนิทวงศ์ ตรงข้ามโรงพยาบาลยันฮี ขนาดที่ดิน 10 – 0 – 80 ไร่ รูปแบบอาคารจำนวนชั้น 40 ชั้น และ Sky Lounge 1 ชั้น แบ่งเป็นคอนโดที่พักอาศัย 1 อาคาร และ Club House 1 อาคาร มาพร้อม 5 รูปแบบห้องขนาดได้แก่1 ห้องนอน 28 – 29.50 ตารางเมตร, 1 ห้องนอน 30 – 30.50 ตารางเมตร, 1 ห้องนอน (Corner) 37 ตารางเมตร, 2 ห้องนอน (Combine) 59.50 ตารางเมตร, 2 ห้องนอน 60.5 – 61.0 ตารางเมตร จำนวน 1,412 ยูนิต ราคาขายเริ่มต้น 1.69 ล้านบาท (ณ วันเปิดโครงการ) ราคาเฉลี่ยต่อตารางเมตรประมาณ 80,000 บาท/ตารางเมตร
ไลฟ์ ปิ่นเกล้า
โครงการใหม่ของบริษัท เอพี (ไทยแลนด์) จำกัด ( มหาชน ) ในนาม ไลฟ์ ปิ่นเกล้าตั้งอยู่บนถนนจรัญสนิทวงศ์ มีพื้นที่โครงการประมาณ 5 ไร่ 1 งานไร่ในรูปแบบคอนโดมิเนียม High-rise สูง 23 ชั้น 1 อาคาร และอาคารจอดรถสูง 4 ชั้น จำนวน 773 ยูนิต มาพร้อมห้องชุดแบบ สตูดิโอ, 1Bed, 1Bed Plus และ 2Bed ราคาเริ่มต้น 2.99 ล้านบาท ราคาค่าเฉลี่ยประมาณ 120,000 บาทต่อตารางเมตร
คอนโด ธนา อาร์เคเดีย จรัญสนิทวงศ์ 40
โครงการคอนโด ธนา อาร์เคเดีย จรัญสนิทวงศ์ 40 เป็นโครงการใหม่ที่ยังไม่เปิดตัว แต่กำลังจะขึ้น อยู่ภายใต้การพัฒนาของธนาแลนด์ พื้นที่ 1-3-5.00 ไร่ รูปแบบ 1 อาคาร 23 ชั้น 247 ยูนิต ลักษณะห้อง 1 Bed, 2 Bed, 3 Bed, Penthouse, ห้องชุดร้านค้าตั้งแต่ 34.00 ถึง 101.00 ตารางเมตรราคาเริ่มต้น 1.75 ล้าน ราคาเฉลี่ยต่อตารางเมตร 94,762 บาทต่อตารางเมตร
สรุป
โครงการ ไอดีโอ โมบิ จรัญ-อินเตอร์เชนจ์ เป็นโครงการที่น่าจับตามองบนทำเลย่านจรัญฯ ซึ่งเป็นพื้นที่จุดตัดของรถไฟฟ้าสายสีน้ำเงิน (บางซื่อ-ท่าพระ), รถไฟฟ้าสายสีส้ม (ตลิ่งชัน-ศูนย์วัฒนธรรม) และ รถไฟชานเมืองสายสีแดง (ตลิ่งชัน-ศาลายา) ซึ่งถือเป็นจุดเด่นของโครงการ สามารถตอบโจทย์ผู้อยู่อาศัยได้ครบ ทั้งผู้อยู่อาศัยที่เดินทางด้วยรถยนต์ และชอบเดินทางด้วยระบบคมนาคมสาธารณะ ถนนหลักที่เชื่อมต่อเข้าเมืองได้ทั้งฝั่งพระนคร และฝั่งราชพฤกษ์-สาทรก็เป็นอีกหนึ่งจุดเด่นสำหรับทำเลนี้ นอกจากนี้ โครงการอยู่ในทำเลที่โครงการรถไฟฟ้าส่วนต่อขยาย (สายสีน้ำเงิน) ที่กำลังก่อสร้างจริง ดังนั้นจึงมั่นใจได้ว่าโครงการนี้กำลังเกิดขึ้นจริงแน่นอน ซึ่งหากมองในแง่ของนักลงทุน เมื่อรถไฟฟ้าสายอนาคตแล้วเสร็จจะพลิกโฉมของทำเลนี้ให้มีความครบครันและสะดวกสบายต่อการอยู่อาศัย ซึ่งหมายถึงมูลค่าของที่อยู่อาศัยในพื้นที่ที่จะอัพราคาขึ้น ค่าเช่าก็มีแนวโน้มที่จะขึ้นอีกด้วย
สนใจ คอนโดฯ ในโครงการนี้? เลือกชม รายการประกาศ ราคาโดนใจ



























































































































































































