โกดัง-โรงงาน บางเสาธง, บางเสาธง, สมุทรปราการ
บางเสาธง, บางเสาธง, สมุทรปราการ
฿826,200 /เดือน
288
ตร.ม. (พื้นที่ใช้สอย)

รูปถ่าย

ดูบนแผนที่
เกี่ยวกับคุณสมบัตินี้
ให้เช่าโกดัง-โรงงาน
ให้เช่าโกดัง-โรงงาน
ซอยวัดบัวรอง บางนา-ตราด กม.23 ขาออก
รายละเอียดพื้นที่
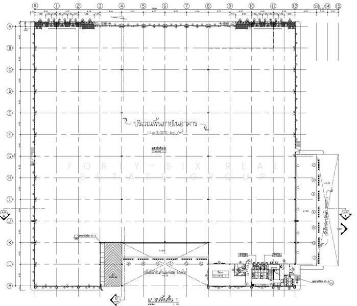
• อาคารรวม 5,508 ตร.ม. (ชั้นล่าง 5,364 ตร.ม. + ชั้นบน 144 ตร.ม.)
• พื้นที่ Office ชั้น 1: 144 ตร.ม.
• พื้นที่ Office ชั้น 2: 144 ตร.ม.
• รวม Office: 288 ตร.ม.
• ที่ดิน 6 ไร่ + 371.5 ตร.ว.
สเปคอาคาร
• รับน้ำหนักพื้น 3 ตัน/ตร.ม.
• ความสูงเพดาน 12 เมตร (Clear Height)
• 4 Dock ตู้คอนเทนเนอร์ 40 FT (พื้นยก 1.50 เมตร)
• 7 Dock รถกระบะ
ราคาเช่า
150 บาท/ตร.ม.
ค่าเช่ารวม 826,200 บาท/เดือน
เงื่อนไข
• มัดจำ 3 เดือน + ล่วงหน้า 1 เดือน
• สัญญาขั้นต่ำ 3 ปี
สนใจติดต่อ 0***** Kanda หรือคลิ๊กไลน์ www.h*****
ซอยวัดบัวรอง บางนา-ตราด กม.23 ขาออก
รายละเอียดพื้นที่
• อาคารรวม 5,508 ตร.ม. (ชั้นล่าง 5,364 ตร.ม. + ชั้นบน 144 ตร.ม.)
• พื้นที่ Office ชั้น 1: 144 ตร.ม.
• พื้นที่ Office ชั้น 2: 144 ตร.ม.
• รวม Office: 288 ตร.ม.
• ที่ดิน 6 ไร่ + 371.5 ตร.ว.
สเปคอาคาร
• รับน้ำหนักพื้น 3 ตัน/ตร.ม.
• ความสูงเพดาน 12 เมตร (Clear Height)
• 4 Dock ตู้คอนเทนเนอร์ 40 FT (พื้นยก 1.50 เมตร)
• 7 Dock รถกระบะ
ราคาเช่า
150 บาท/ตร.ม.
ค่าเช่ารวม 826,200 บาท/เดือน
เงื่อนไข
• มัดจำ 3 เดือน + ล่วงหน้า 1 เดือน
• สัญญาขั้นต่ำ 3 ปี
สนใจติดต่อ 0***** Kanda หรือคลิ๊กไลน์ www.h*****
สิ่งอำนวยความสะดวก
It support
การประชุมผ่านวิดีโอ
เครื่องปรับอากาศ
เครื่องสำรองไฟฟ้า
อสังหาฯ แนะนำ
ค้นหาประกาศอื่นรอบๆ บางเสาธง
จากสิ่งที่คุณค้นหา คุณอาจจะสนใจตัวเลือกต่อไปนี้
ให้เช่าโกดัง-โรงงาน













