กำลังรีโนเวทใหม่ พร้อมอยู่ 15 ม.ค.69 ทำเลบางนา-ตราด กม.23 ให้เช่าโกดังโรงงาน เนื้อที่ เกือบ 7 ไร่, สมุทรปราการ
บางนา-ตราด, บางเสาธง, บางเสาธง, สมุทรปราการ
฿743,580 /เดือน
5,580
ตร.ม. (พื้นที่ใช้สอย)

รูปถ่าย

ดูบนแผนที่
เกี่ยวกับคุณสมบัตินี้
รีโนเวทใหม่ ทำเลบางนา-ตราด กม.23 ให้เช่าโกดังเกือบ 7 ไร่ 5,508 ตร.ม.
ให้เช่าโกดัง โรงงานเกือบ 7 ไร่
เช่าโกดังโรงงานพื้นที่สีม่วง
เช่าโกดังเกือบ7ไร่รีโนเวทใหม่
ทำเลบางนาตราดกม.23ขาออก
พิกัด : ซอยวัดบัวโรย ถ.บางนา-ตราด กม.23 (ขาออก)
ต.บางเสาธง อ.บางเสาธง จ.สมุทรปราการ 10540
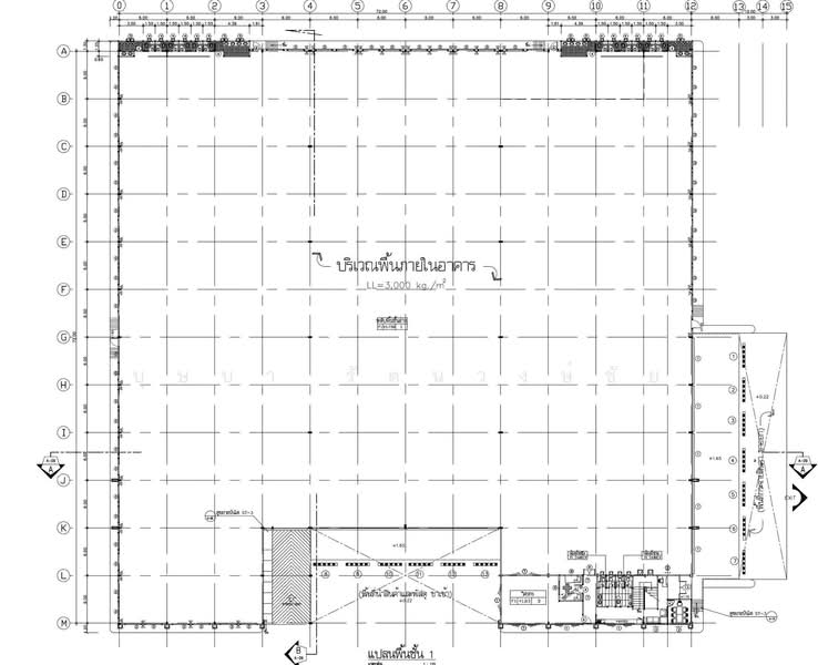
ขนาดเนื้อที่ 6 ไร่ 371.5 ตร.วา
พื้นที่ใช้สอยรวม 5,508 ตร.ม. (ชั้นล่าง 5,364 ตร.ม. + ชั้นบน 144 ตร.ม.)
มี 50 ที่จอดรถ++
ค่าเช่า 743,580/เดือน
(135-150 บาทต่อตร.ม.)
สัญญาขั้นต่ำ 3 ปี
ประกัน 3 เดือน+ล่วงหน้า 1 เดือน
สนใจโทรมาคุยราคากันได้นะคะ
เจ้าของบ้านใจดี ตัวแทนขายก็น่ารัก
คุณปุ๊ก 0*****
ไลน์คลิ๊กลิ้งค์
www.h*****
รายละเอียดพื้นที่
ขนาดเนื้อที่ 6 ไร่ 371.5 ตร.วา
ขนาดพื้นที่ รวม 5,508 ตร.ม.
พื้นที่ ชั้น 1 = 5,220+
พื้นที่ Office ชั้น 1: 144 ตร.ม.
พื้นที่ Office ชั้น 2 :144 ตร.ม.
สเปคอาคาร
รับน้ำหนักพื้น 3 ตัน/ตร.ม.
ความสูงเพดาน 12 เมตร
(Clear Height)
4 Dock ตู้คอนเทนเนอร์ 40 FT
(พื้นยก 1.50 เมตร)
7 Dock รถกระบะ
การเดินทาง
ถนนบางนา-ตราด, สุขุมวิท,
ศรีนครินทร์, กาญจนาภิเษก,
กิ่งแก้ว, เทพารักษ์, ลาดกระบัง
ใกล้มอเตอร์เวย์,
ทางพิเศษบูรพาวิถี
สถานที่ใกล้เคียง
โฮมโปร, มาร์เก็ต วิลเลจ,
แม็คโคร, โลตัส, บิ๊กซี บางพลี,
บุญถาวร บางนา, เมกา, อีเกีย
คิงส์ เพาเวอร์ ศรีวารี คอมเพล็กซ์,
รร.นวมินทราชินูทิศ เตรียมอุดมศึกษาพัฒนาการ,
ABAC บางนา, ม.ราม 2,
ม.หัวเฉียวเฉลิมพระเกียรติ,
รร.บดินทรเดชา (สิงห์ สิงหเสนี) สมุทรปราการ,
รร.สารสาสน์วิเทศสมุทรปราการ,
ร.ร.สารสาสน์วิเทศสุวรรณภูมิ, วิทยาลัยเซาธ์อีสท์ บางกอก (บางพลี), วิทยาลัยเกริก
รพ.รวมชัยประชารักษ์,
รพ.บางบ่อ, รพ.บางนา 2,
รพ.จุฬารัตน์ 5, รพ.เซ็นทรัลปาร์ค, รพ.บางพลี
โลเคชั่น www.h*****
เช่าโกดังโรงงานพื้นที่สีม่วง
เช่าโกดังเกือบ7ไร่รีโนเวทใหม่
ทำเลบางนาตราดกม.23ขาออก
พิกัด : ซอยวัดบัวโรย ถ.บางนา-ตราด กม.23 (ขาออก)
ต.บางเสาธง อ.บางเสาธง จ.สมุทรปราการ 10540
ขนาดเนื้อที่ 6 ไร่ 371.5 ตร.วา
พื้นที่ใช้สอยรวม 5,508 ตร.ม. (ชั้นล่าง 5,364 ตร.ม. + ชั้นบน 144 ตร.ม.)
มี 50 ที่จอดรถ++
ค่าเช่า 743,580/เดือน
(135-150 บาทต่อตร.ม.)
สัญญาขั้นต่ำ 3 ปี
ประกัน 3 เดือน+ล่วงหน้า 1 เดือน
สนใจโทรมาคุยราคากันได้นะคะ
เจ้าของบ้านใจดี ตัวแทนขายก็น่ารัก
คุณปุ๊ก 0*****
ไลน์คลิ๊กลิ้งค์
www.h*****
รายละเอียดพื้นที่
ขนาดเนื้อที่ 6 ไร่ 371.5 ตร.วา
ขนาดพื้นที่ รวม 5,508 ตร.ม.
พื้นที่ ชั้น 1 = 5,220+
พื้นที่ Office ชั้น 1: 144 ตร.ม.
พื้นที่ Office ชั้น 2 :144 ตร.ม.
สเปคอาคาร
รับน้ำหนักพื้น 3 ตัน/ตร.ม.
ความสูงเพดาน 12 เมตร
(Clear Height)
4 Dock ตู้คอนเทนเนอร์ 40 FT
(พื้นยก 1.50 เมตร)
7 Dock รถกระบะ
การเดินทาง
ถนนบางนา-ตราด, สุขุมวิท,
ศรีนครินทร์, กาญจนาภิเษก,
กิ่งแก้ว, เทพารักษ์, ลาดกระบัง
ใกล้มอเตอร์เวย์,
ทางพิเศษบูรพาวิถี
สถานที่ใกล้เคียง
โฮมโปร, มาร์เก็ต วิลเลจ,
แม็คโคร, โลตัส, บิ๊กซี บางพลี,
บุญถาวร บางนา, เมกา, อีเกีย
คิงส์ เพาเวอร์ ศรีวารี คอมเพล็กซ์,
รร.นวมินทราชินูทิศ เตรียมอุดมศึกษาพัฒนาการ,
ABAC บางนา, ม.ราม 2,
ม.หัวเฉียวเฉลิมพระเกียรติ,
รร.บดินทรเดชา (สิงห์ สิงหเสนี) สมุทรปราการ,
รร.สารสาสน์วิเทศสมุทรปราการ,
ร.ร.สารสาสน์วิเทศสุวรรณภูมิ, วิทยาลัยเซาธ์อีสท์ บางกอก (บางพลี), วิทยาลัยเกริก
รพ.รวมชัยประชารักษ์,
รพ.บางบ่อ, รพ.บางนา 2,
รพ.จุฬารัตน์ 5, รพ.เซ็นทรัลปาร์ค, รพ.บางพลี
โลเคชั่น www.h*****
สิ่งอำนวยความสะดวก
เครื่องสำรองไฟฟ้า
ลานจอดรถ
ห้องประชุม
ความสะดวกโดยรอบ
ที่จอดรถ
อสังหาฯ แนะนำ
คำถามที่พบบ่อย
ยูนิต กำลังรีโนเวทใหม่ พร้อมอยู่ 15 ม.ค.69 ทำเลบางนา-ตราด กม.23 ให้เช่าโกดังโรงงาน เนื้อที่ เกือบ 7 ไร่ มีห้องนอนจำนวน 0 ห้อง และมีห้องน้ำจำนวน 0 ห้อง.
ราคาเช่าของยูนิต กำลังรีโนเวทใหม่ พร้อมอยู่ 15 ม.ค.69 ทำเลบางนา-ตราด กม.23 ให้เช่าโกดังโรงงาน เนื้อที่ เกือบ 7 ไร่ อยู่ที่ ฿743,580 /เดือน ต่อเดือน.
ราคาเช่าต่อ ตร.ม. ของยูนิต กำลังรีโนเวทใหม่ พร้อมอยู่ 15 ม.ค.69 ทำเลบางนา-ตราด กม.23 ให้เช่าโกดังโรงงาน เนื้อที่ เกือบ 7 ไร่ อยู่ที่ ฿133.26 / ตารางเมตร.
กำลังรีโนเวทใหม่ พร้อมอยู่ 15 ม.ค.69 ทำเลบางนา-ตราด กม.23 ให้เช่าโกดังโรงงาน เนื้อที่ เกือบ 7 ไร่ ตั้งอยูู่ที่ บางนา-ตราด, บางเสาธง, บางเสาธง, สมุทรปราการ บางเสาธง บางเสาธง สมุทรปราการ.
พื้นที่ใช้สอยของยูนิต กำลังรีโนเวทใหม่ พร้อมอยู่ 15 ม.ค.69 ทำเลบางนา-ตราด กม.23 ให้เช่าโกดังโรงงาน เนื้อที่ เกือบ 7 ไร่ อยู่ที่ 5,580 ตร.ม..
ค้นหาประกาศอื่นรอบๆ บางเสาธง
จากสิ่งที่คุณค้นหา คุณอาจจะสนใจตัวเลือกต่อไปนี้
ให้เช่าโกดัง-โรงงาน


















