แลนด์มาร์ค แอท แกรนด์สเตชั่น บาย ไซมิส แอสเสท (Landmark At Grand Station By Siamese Asset) เป็นโครงการมิกซ์ยูส บนทำเลศักยภาพ ตรงข้ามแฟชั่นไอส์แลนด์ ใกล้รถไฟฟ้าสายสีชมพู สถานีวงแหวนรามอินทรา เพียง 400 เมตร ภายในห้องออกแบบเป็น 2 ชั้น เพดานสูง 4.15 เมตร เน้นความโปร่ง โล่ง พร้อมออกแบบห้องตามพฤติกรรมและไลฟ์สไตล์ที่แตกต่างกัน ไม่ว่าจะเป็นห้องพักสำหรับผู้สูงอายุ คนที่มีสัตว์เลี้ยงหรือห้องพักในรูปแบบ Co-living และห้องพักแบบมาตรฐาน ภายในโครงการครบครันด้วยสิ่งอำนวยความสะดวกทั้งพื้นที่พักอาศัย โรงแรม ร้านค้า ร้านอาหาร และสำนักงาน ราคาเริ่มต้นเพียง 2.90 ล้านบาท
สนใจ คอนโดฯ ในโครงการนี้? เลือกชม รายการประกาศ ราคาโดนใจ
แม้ในช่วงปีที่ผ่านมา ตลาดอสังหาริมทรัพย์ในบ้านเราจะอยู่ในภาวะที่ไม่ได้มีความหวือหวาหรือคึกคักมากนัก แต่ก็ยังมีผู้ที่เล็งเห็นโอกาสโดดลงสนามเพื่อต้องการชิงส่วนแบ่งในตลาดที่อยู่อาศัยในทำเลศักยภาพของกรุงเทพฯ อย่างสม่ำเสมอ เช่นเดียวกับ “8 estate” ดีเวลลอปเปอร์น้องใหม่ แต่ประสบการณ์คร่ำหวอดในแวดวงนี้โดยเป็นกลุ่มสถาปนิกที่เก็บสะสมชั่วโมงบินในงานออกแบบหลากหลายโครงการ และเริ่มประเดิมบทบาทการเป็นผู้พัฒนาโครงการกับโรงแรมดีไซน์ฮิปในทำเลใจกลางเมือง “โรงแรมลักซ์ เอ็กซ์แอล หลังสวน” ก่อนที่จะสวมบทบาทการเป็นผู้พัฒนาที่อยู่อาศัยเต็มตัวในปีนี้ กับคอนโดมิเนียมโลว์ไรส์ ในย่านลาดพร้าว ภายใต้ชื่อ “D48” (District 48) เน้นการอยู่อาศัยที่ใกล้ชิดธรรมชาติ ควบคู่ไปกับงานดีไซน์ที่สวยงาม ในระดับราคาล้านต้นๆ
เจาะลึกข้อมูลโครงการ (11 ม.ค. 2559)
ชื่อโครงการ: D48 (District 48)
ผู้พัฒนาโครงการ: บริษัท 8 เอสเตท จำกัด (8 estate)
ที่ตั้ง: ซอยลาดพร้าว 48 แยก 6
Contact: 080-230-8888
E-mail: District48@century21.co.th
Facebook: 8Estate
รายละเอียดข้อมูลโครงการ
เนื้อที่โครงการ: ประมาณ 260 ตารางวา
รูปแบบโครงการ: คอนโดมีเนียม 8 ชั้น 1 อาคาร รวม 79 ยูนิต
เปิดขาย: ปลายเดือน มกราคม 2559
เงินจอง: 9,000 บาท
ค่างวด (เงินดาวน์): 6,717 บาท 18 งวด คิดเป็น 10%
เงินโอนกรรมสิทธิ์: 1.43 ล้านบาท คิดเป็น 90%
เงินกองทุนสะสม: 500 บาท/ตร.ม. ชำระครั้งเดียว ณ วันโอนกรรมสิทธิ์
ค่าส่วนกลาง: 35 บาท/ตร.ม./เดือน
ประมาณการก่อสร้างแล้วเสร็จ: มีนาคม 2560
ระบบรักษาความปลอดภัย: เจ้าหน้าที่รักษาความปลอดภัย 24 ชั่วโมง, ระบบควบคุมการเข้าออกด้วยคีย์การ์ด, กล้องวงจรปิด 24 ชั่วโมง, ที่จอดรถจักรยาน
สิ่งอำนวยความสะดวก: ห้องนั่งเล่น ห้องประชุม ห้องออกกำลังกาย ห้องสมุด และ แพนทรี่ส่วนกลาง รวมทั้งสวนหย่อมบริเวณชั้น 4 และ ชั้น 7
ที่จอดรถส่วนกลาง: 34 คัน คิดเป็น 45 %
ราคาขายเริ่มต้น: 1.59 ล้านบาท
ราคาขายเฉลี่ย/ตารางเมตร: 70,000 บาท/ตารางเมตร ทั้งโครงการ
ราคาขายเฉลี่ยต่ำสุด-สูงสุด (Min-Max): 63,000 – 73,000 บาท/ตารางเมตร
ราคาเช่าเฉลี่ยต่ำสุด-สูงสุด (Min-Max): 9,000 – 12,000 บาท
แบบห้อง: ตกแต่งแบบ Fully Fitted (เฉพาะเฟอร์นิเจอร์บิลท์อิน) 10 แบบ
1 ห้องนอน 7 แบบ ขนาด 24.98 – 33.03 ตร.ม.
2 ห้องนอน 3 แบบ ขนาด 49.24 – 45.28 ตร.ม.
รายละเอียดโครงการ
รีวิวภาพรวมโครงการ
D48 (District 48) เป็นโครงการคอนโดมีเนียมโลว์ไรส์ ความสูง 8 ชั้น 1 อาคาร จำนวน 79 ยูนิต ตั้งอยู่บริเวณปากซอยลาดพร้าว 48 แยก 6 บนเนื้อที่โครงการรวมประมาณ 260 ตารางวา ทางโครงการมีเจ้าหน้าที่รักษาความปลอดภัย 24 ชั่วโมง ระบบเทคโนโลยีเพื่อความปลอดภัยของอาคาร ด้วยระบบรักษาความปลอดภัย ระบบ Key Card ที่ทางเข้า-ออกโถงลิฟท์อาคาร ระบบกล้องวงจรปิด CCTV (ทางเข้าหลักของโถงล็อบบี้, ลิฟท์ทางเข้า-ออก อาคารจอดรถ, บริเวณทางเดินห้องพักและบันไดหนีไฟ) ระบบการบันทึกภาพกล้องวงจรปิด DVR ระบบป้องกันอัคคีภัย ระบบแจ้งเหตุเพลิงไหม้อัตโนมัติ และอุปกรณ์ป้องกันอัคคีภัยทุกชั้น ตามพระราชบัญญัติควบคุมอาคาร รวมทั้ง ระบบป้องกันแผ่นดินไหว มาตรฐานประกอบการออกแบบอาคารเพื่อต้านทานการสั่นสะเทือนของแผ่นดินไหว
ด้านสิ่งอำนวยความสะดวกภายในโครงการประกอบไปด้วยห้องนั่งเล่น ห้องประชุม ห้องออกกำลังกาย ห้องสมุด และ แพนทรี่ส่วนกลาง รวมทั้งพื้นสวนหย่อมบริเวณชั้น 4 และ ชั้น 7 ที่ทางโครงการออกแบบให้มีพื้นที่สีเขียวสอดแทรกอยู่ในทุกส่วนของตัวอาคาร ซึ่งส่วนมากจะพบฟีเจอร์ลักษณะนี้ในโครงการใหญ่ๆ หรือโครงการที่มีราคาต่อตารางเมตร ไม่ต่ำกว่า 1 แสนบาท
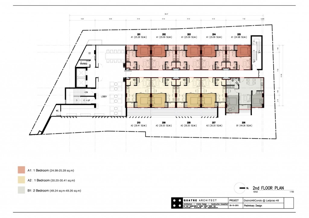
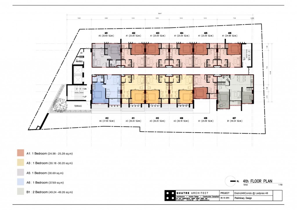
แผนผังโครงการ
รูปแบบห้องชุด
ห้องตกแต่งแบบ Fully Fitted (เฉพาะเฟอร์นิเจอร์บิลท์อิน) มีทั้งหมด 10 แบบ โดยสามารถแบบเป็นแบบ 1 ห้องนอน 7 แบบ ขนาด 24.98 – 33.03 ตร.ม. และแบบ 2 ห้องนอน 3 แบบ ขนาด 49.24 – 45.28 ตร.ม.
Room Type
แบบห้อง 1 ห้องนอน 7 แบบ ขนาด 24.98 – 33.03 ตร.ม.
2 ห้องนอน 3 แบบ ขนาด 49.24 – 45.28 ตร.ม.
รีวิวภายในห้องตัวอย่าง
แบบ 1 ห้องนอน Room Type A2 ขนาด 30.20 – 30.41 ตร.ม.

วัสดุ Glass color coated หน้าบาน High Pressure Laminate อ่างล้างจาน, เตาไฟฟ้า, เครื่องดูดควัน Teka หรือเทียบเท่า

แอร์ห้องนั่งเล่น (Wall Type) 12000BTU แอร์ห้องนอน (Wall Type) 9000BTU พร้อมพื้นที่ซักล้างสามารถนำเครื่องซักผ้ามาตั้งได้เลย

อุปกรณ์ห้องน้ำ ชักโครก อ่างล้างหน้า ฝักบัวอาบน้ำ ส่วนยืนอาบ American Standard หรือเทียบเท่า บวกตู้กระจกเก็บของอเนกประสงค์ เหนืออ่างล้างหน้า
ทําเล & การเดินทาง
วิเคราะห์ศักยภาพทำเล
แม้ว่าทำเลในย่านลาดพร้าวจะไม่สามารถเทียบกับเส้นรัชดาภิเษกที่เป็นเหมือนกับศูนย์กลางธุรกิจแห่งใหม่ ที่มีความครบครันในการเป็นแหล่งงาน ช้อปปิ้ง สถานบันเทิง และชุมชนอยู่อาศัย แต่จากการพัฒนาด้านการคมนาคมที่ครอบคลุมพื้นที่ทั่วเมือง รวมไปถึงการพาดผ่านของแนวรถไฟฟ้าที่มีอยู่ และจะเกิดขึ้นในอนาคตอย่างโครงการรถไฟฟ้าสายสีเหลืองช่วงรัชดา-ลาดพร้าว–พัฒนาการที่จะส่งผลให้พื้นที่บริเวณแยกรัชดาภิเษกตัดกับลาดพร้าวได้รับความสนใจจากเหล่าดีเวลลอปเปอร์ทั้งน้อยใหญ่ รวมไปถึงกลุ่มนักลงทุนด้านอสังหาริมทรัพย์อีกไม่น้อย ซึ่งเริ่มเห็นได้จากโครงการที่ผุดขึ้นมาเป็นจำนวนมากในย่านนี้ ประกอบกับเรื่องของราคาที่ดินในย่านลาดพร้าวที่ยังไม่สูงเท่ากับเส้นรัชดาภิเษก ทำให้สามารถทำราคาได้ต่ำกว่าโครงการบนเส้นรัชดาภิเษกซึ่งมีราคาอยู่ที่ล้านปลายๆ ส่วนโครงการบนเส้นลาดพร้าวสามารถเปิดตัวเพียงล้านต้นๆ ซึ่งยังคงเป็นราคาที่มนุษย์เงินเดือนอย่างกลุ่ม first jobber สามารถจับต้องได้
ศักยภาพทำเลแนวรถไฟฟ้าสายสีเหลือง (ลาดพร้าว – สำโรง)
โครงการตั้งอยู่แนวเส้นทางโครงการรถไฟฟ้าสายสีเหลือง ช่วงลาดพร้าว-สำโรง ใกล้กับสถานีภาวนา โดยรถไฟฟ้าสายสีเหลืองจะเริ่มต้นที่จุดเชื่อมต่อกับระบบรถไฟฟ้ามหานคร สายเฉลิมรัชมงคล (สายสีน้ำเงิน ระยะแรก) ที่แยกรัชดา-ลาดพร้าว ไปตามแนวถนนลาดพร้าว โดยเชื่อมต่อกับโครงการรถไฟฟ้าสายสีเทา (ในอนาคต) ของกรุงเทพมหานครที่แยกฉลองรัช และยกระดับข้ามทางด่วนฉลองรัชจนถึงทางแยกบางกะปิ จากนั้นแนวเส้นทางจะเลี้ยวขวาไปทางทิศใต้ตามถนนศรีนครินทร์ เชื่อมต่อกับโครงการรถไฟฟ้าสายสีส้มที่ทางแยกลำสาลี ต่อจากนั้นแนวเส้นทางจะยกระดับข้ามทางแยกต่างระดับพระราม 9 โดยเชื่อมต่อกับโครงการรถไฟฟ้าเชื่อมต่อท่าอากาศยานสุวรรณภูมิ (Airport Rail Link) และผ่านแยกพัฒนาการ แยกศรีนุช แยกศรีอุดมสุข แยกศรีเอี่ยม จนถึงแยกศรีเทพา จากนั้นแนวเส้นทางจะเลี้ยวขวาอีกครั้งไปทางทิศตะวันตก ตามแนวถนนเทพารักษ์ ผ่านจุดเชื่อมต่อกับโครงการรถไฟฟ้าสายสีเขียวช่วงแบริ่ง-สมุทรปราการ ที่สถานีสำโรง และสิ้นสุดแนวเส้นทางบริเวณถนนปู่เจ้าสมิงพราย รวมระยะทางทั้งสิ้นประมาณ 30.4 กิโลเมตร ประกอบด้วยสถานีทั้งหมด 23 แห่ง โรงจอดรถศูนย์ซ่อมบำรุง 1 แห่ง อาคารและลานจอดแล้วจร 1 แห่ง บริเวณพื้นที่ทางแยกต่างระดับศรีเอี่ยม
วิเคราะห์ทำเลที่ตั้งโครงการ
D48 (District 48) ตั้งอยู่บริเวณซอยลาดพร้าว 48 แยก 6 ซึ่งเป็นฝั่งเลขคู่ โดยัมีพื้นที่ติดกับเส้นรัชดาภิเษกฝั่งเลขคู่เช่นกัน ทำให้มีเส้นทางทะลุไปยังเส้นรัชดาภิเษกได้ ประกอบกับทำเลที่ตั้งของโครงการอยู่ใกล้กับแยกรัชดาภิเษกตัดกับลาดพร้าว ซึ่งมีสถานีรถไฟฟ้าใต้ดิน (MRT) สถานีลาดพร้าว อีกทั้งฝั่งตรงข้ามสถานีลาดพร้าวก็เป็นสวนลุมไนท์บาซ่า ที่เพิ่งเปิดอย่างเป็นทางการเมื่อปลายปี 58 ที่ผ่านมา ถ้าเลี้ยวขวาที่สี่แยกก็จะไปยังเมเจอร์รัชโยธิน ถ้าหากมุ่งตรงไปทางทิศตะวันออกผ่านแยกรัชดาภิเษกตัดกับลาดพร้าวคือช่วงลาดพร้าวตอนต้น ซึ่งถือว่าเป็นศูนย์กลางไลฟ์สไตล์ในย่านนี้ อีกทั้งยังมีช้อปปิ้งมอลล์ขนาดใหญ่อย่าง เซ็นทรัล ลาดพร้าว กับยูเนี่ยนมอลล์ รวมไปถึงร้านอาหาร และร้านแฮงค์เอาท์ชั้นดีในย่านนี้ ประกอบกับเส้นทางหลักอย่าง ห้าแยกลาดพร้าว ถนนวิภาวดีรังสิต ถัดไปก็เป็นพื้นที่ไลฟ์สไตล์ขนาดใหญ่ อย่างตลาดนัดสวนจตุจักร และตลาดนัดเจเจกรีน ที่ถือว่าเป็นแลนด์มาร์คสำคัญของย่านนี้ทั้งสิ้น
การเดินทาง
โดยรถยนต์ส่วนตัว
เส้นทางที่ 1 จากเส้นลาดพร้าว (โชคชัย 4) มุ่งหน้าทางตะวันตกเฉียงเหนือ ไปตามถนนหมายเลข 336 เลี้ยวซ้าย เข้าสู่ซอย ลาดพร้าว 48 ประมาณ 450 เมตร จะถึงปากซอยลาดพร้าว 48 แยก 6 ที่ตั้งโครงการอยู่ทางซ้ายมือ
เส้นทางที่ 2 จากลาดพร้าว ซอย 1 (ยูเนี่ยนมอลล์) มุ่งหน้าทางตะวันออกเฉียงใต้ ไปตามถนนลาดพร้าว เข้าสู่ถนนหมายเลข 336 ประมาณ 110 เมตร กลับรถที่ซอย ลาดพร้าว 56 (ถนนโชคชัย 4) แล้ววิ่งตรงประมาณ 800 เมตร จะถึงปากซอย ลาดพร้าว 48 ให้เลี้ยวซ้ายเข้าสู่ซอยลาดพร้าว 48 ประมาณ 450 เมตร จะถึงปากซอยลาดพร้าว 48 แยก 6 ที่ตั้งโครงการอยู่ทางซ้ายมือ
เส้นทางที่ 3 จากแยกรัชดาภิเษก-สุทธิสาร เริ่มวิ่งจากถนนรัชดาภิเษก มุ่งหน้าทางเหนือ ไปตามถนนรัชดาภิเษก เลี้ยวขวา เข้าสู่ถนนสุทธิสารวินิจฉัย ตรงไป 39 เมตร ให้เลี้ยวซ้าย เข้าสู่ซอยพิบูลย์อุปถัมภ์ วิ่งตรงไป 300 เมตร จากนั้นเลี้ยวขวาเข้าสู่ซอย ลาดพร้าว 48 และตรงไปตามทางจนถึงปากซอยลาดพร้าว 48 แยก 6 โครงการจะตั้งอยู่ทางซ้ายมือ
เส้นทางที่ 4 จากพหลโยธิน (เมเจอร์ รัชโยธิน) จากถนนพหลโยธิน มุ่งหน้าทางตะวันตกเฉียงใต้ ไปตามถนนพหลโยธิน 140 เมตร แล้วเลี้ยวซ้ายเข้าสู่ ถนนรัชดาภิเษก 2.3 กม. ชิดซ้ายเพื่อวิ่งบนถนนรัชดาภิเษก 500 เมตร เลี้ยวซ้าย เข้าสู่ถนนหมายเลข 336 ประมาณ 2.3 กม. กลับรถที่ซอยลาดพร้าว 56 (โชคชัย 4) ) แล้ววิ่งตรงประมาณ 800 เมตร จะถึงปากซอย ลาดพร้าว 48 ให้เลี้ยวซ้าย เข้าสู่ซอยลาดพร้าว 48 ประมาณ 450 เมตร จะถึงปากซอย ลาดพร้าว 48 แยก 6 ที่ตั้งโครงการอยู่ทางซ้ายมือ
รถไฟฟ้า MRT
รถไฟฟ้าสายสีเหลือง (ลาดพร้าว – สำโรง)
สถานที่แนว Lifestyle
สวนลุมไนท์บาร์ซ่า
ตลาดนัดรถไฟ รัชดา
ยูเนี่ยนมอลล์
เมเจอร์ รัชโยธิน
บทวิเคราะห์
วิเคราะห์อัตราผลตอบแทนที่ได้รับ
แม้ว่าในเรื่องของอัตราค่าเช่าในย่านลาดพร้าวจะมีราคาปล่อยเช่าไม่สูงเท่ากับย่านรัชดาภิเษก แต่จากการพัฒนาด้านการคมนาคมที่ครอบคลุมพื้นที่ ทำให้การพักอาศัยในพื้นที่รอบนอกได้รับความนิยมมากขึ้นประกอบกับสามารถเดินทางเข้าเมืองได้สะดวกด้วยระบบราง ซึ่งไม่ต่างจากเส้นรัชดาภิเษก และแม้ราคาปล่อยเช่าเฉลี่ยเริ่มต้นอยู่ที่ประมาณ 9,000 – 10,000 บาท ขึ้นอยู่กับขนาดของห้อง ซึ่งดูจะถูกกว่าเส้นรัชดาภิเษก แต่เมื่อคิดเป็นอัตราผลตอบแทนอยู่ที่ 7- 8 % ต่อปี ก็ถือว่าเป็นผลตอบแทนที่สูง
เปรียบเทียบกับโครงการอื่น
The Revo Ladprao 48
เจ้าของโครงการ บริษัท รีโว เอสเตท จำกัด โครงการตั้งอยู่ในซอยลาดพร้าว 48 แยก 2 เป็นคอนโดฯ แบบโลว์ไรส์ ความสูง 5 ชั้น 2 อาคาร จำนวน 79 ยูนิต บนที่ดินประมาณ 1-0-79 ไร่ โดยมียูนิตต่อชั้นสูงสุด 9 ยูนิต ที่จอดรถประมาณ 33 คันคิดเป็น 40% ไม่รวมจอดซ้อนคัน ประกอบด้วยห้องชุดแบบ 1 ห้องนอน ขนาด 25 – 31 ตร.ม. และ 1 ห้องนอน พลัส ขนาด 43-50 ตร.ม. ราคาเริ่มต้นประมาณ 1.89 ล้านบาท หรือประมาณ 75,600 บาท/ตร.ม.
Centrio Ladprao 48
คอนโดมิเนียมโลว์ไรส์ ความสูง 5 ชั้น จำนวน 52 ยูนิตของ บริษัท สำราญครีเอชั่น จำกัด ตั้งอยู่บนเนื้อที่โครงการทั้งหมด 3 งาน 29.06 ตร.ว. ซ.พิบูลอุปถัมภ์ แขวงสามเสนนอก เขตห้วยขวาง กทม. ประกอบด้วยห้องชุดแบบ สตูดิโอ ขนาด 29.53 – 29.67 ตร.ม., 1 ห้องนอน พื้นที่ 40.18 – 46.42 ตร.ม., 2 ห้องนอน พื้นที่ 69.24 / 71.48 ตร.ม., 2 ห้องนอน พื้นที่ 51.88 – 52.04 ตร.ม. ราคาเริ่มต้น 1.5 – 3.7 ล้านบาท ราคาเฉลี่ยต่อ ตร.ม ประมาณ 44,000 – 52,000 บาท
สรุป
แม้ว่าเส้นลาดพร้าวจะเปรียบเสมือนมวยรองบ่อนเมื่อเทียบกับเส้นรัชดาภิเษก ซึ่งกำลังได้รับการจับตาในฐานะเป็น New CBD และเป็นทำเลความหวังใหม่ของเหล่านักพัฒนา แต่ถ้าหากในมุมมองของผู้อยู่อาศัยแล้วด้วยทำเลที่ตั้งของโครงการ D48 (District 48) ที่อยู่บริเวณลาดพร้าวตอนกลางฝั่งเลขคู่ซึ่งมีพื้นที่เชื่อมต่อกับฝั่งรัชดาฯ ทำให้ศักยภาพของพื้นที่นั้นก็ไม่ต่างจากการที่อยู่บนเส้นรัชดาภิเษกแต่สามารถซื้อได้ในราคาที่ถูกกว่า อีกทั้งการเป็นพื้นที่รอยต่อระหว่างย่านใจกลางเมืองซึ่งเป็นแหล่งงานขนาดใหญ่ และพื้นที่ตัวเมืองชั้นนอกซึ่งเป็นแหล่งพักอาศัยก็สามารถเดินทางได้อย่างสะดวกสบายด้วยเส้นทางหลักที่เชื่อมต่อกัน และระบบรถไฟฟ้าที่มีโครงข่ายครอบคลุม และจะยิ่งครอบคลุมมากขึ้นในอนาคตเมื่อโครงการรถไฟฟ้าสายอนาคตเป็นรูปเป็นร่างขึ้นมาจริงๆ ทำให้การเดินทางเป็นเรื่องง่ายสำหรับทำเลลาดพร้าว และโครงการ D48 (District 48) จึงเป็นอีกตัวเลือกที่ควรเก็บไปพิจารณาสำหรับคนที่กำลังมองหาคอนโดฯ ราคาไม่แรงมากสำหรับการอยู่อาศัยในเมือง
สนใจ คอนโดฯ ในโครงการนี้? เลือกชม รายการประกาศ ราคาโดนใจ






























































