เคฟ ซี้ด เกษตร (Kave Seed Kaset) คอนโด Low Rise 8 ชั้น 3 อาคาร จำนวน 600 ยูนิต ออกแบบภาพใต้แนวคิด SYNC WITH THE NATURE เชื่อมต่อพื้นที่พักอาศัยและพื้นที่สำหรับทำกิจกรรมต่าง ๆ เข้าไว้ด้วยกันอย่างลงตัว มาพร้อมสิ่งอำนวยความสะดวกและพื้นที่ส่วนกลางแบบจัดเต็มกว่า 30 รายการ และระบบจอดรถอัตโนมัติ Auto Parking ในราคาเริ่มต้นเพียง 2.29 ล้านบาท
เอกมัย หนึ่งในย่านที่อยู่อาศัยใหม่ที่ปัจจุบันมีการลงทุนพัฒนาคอนโดฯ มากที่สุดบนรถไฟฟ้าสายสีเขียวเข้ม หรือ รถไฟฟ้าสายสุขุมวิท เนื่องจากพื้นที่เอกมัยถือเป็นทำเลเพื่อนบ้านของทำเลยอดนิยมอย่างทองหล่อ มีซอยทะลุลัดเลาะเชื่อมต่อกันได้หลายซอย อีกทั้งไลฟ์สไตล์บนพื้นที่ยังค่อนข้างตอบรับคนรุ่นใหม่และชาวญี่ปุ่นด้วย ดังนั้นที่ผ่านมาเอกมัยจึงเป็นอีกหนึ่งโซนที่คนที่กำลังมองหาที่อยู่อาศัยในเมืองเลือกตบเท้าเข้ามาซื้อคอนโดฯ ตลอดจนการซื้อเพื่อลงทุนปล่อยเช่าชาวต่างชาติระยะยาว
หนึ่งในคอนโดฯ ใหม่ที่น่าสนใจในเวลานี้ก็คือ Philo เอกมัย 6 อีกหนึ่งคอนโด Low Rise โครงการใหม่ จาก Library Estate ที่เลือกปักหมุดโครงการอยู่ในซอยเอกมัยช่วงต้น ไม่ไกลจากสิ่งอำนวบความสะดวกอย่าง Big C ตัวคอนโดห่างจาก BTS สถานีเอกมัย ไม่ถึง 1 กม. ซึ่งถือว่าเป็นคอนโดที่ใกล้ BTS มาก ๆ ในเวลานี้ เพราะพื้นที่ในซอยเอกมัยเหลือค่อนข้างน้อยแล้ว ส่วนเรื่องของราคาโครงการก็เปิดขายห้อง 1 ห้องนอนเริ่มต้น 24 ตร.ม. ไปจนถึง 1 ห้องนอนพลัสหรือบวกห้องอเนกประสงส์ที่ 46 กว่าตร.ม. โดยมีราคาเริ่มต้นที่ 3.7 ล้านบาท
สามารถเลือกอ่านรีวิวหัวข้อต่าง ๆ ของโครงการคอนโด PHILO เอกมัย 6 ได้ที่นี่
- 1.ข้อมูลคอนโด PHILO เอกมัย 6
- 2.ภาพรวมคอนโด PHILO เอกมัย 6
- 3.ทำเลและการเดินทางของคอนโด PHILO เอกมัย 6
- 4.บทวิเคราะห์คอนโด PHILO เอกมัย 6
- 5.โครงการคอนโด PHILO เอกมัย 6
ข้อมูลโครงการคอนโด PHILO เอกมัย 6
- ผู้พัฒนาโครงการ: Library Estate
- ทำเลที่ตั้ง: ซอยเอกมัย 6 แขวงพระโขนงเหนือ เขตวัฒนา กทม. 10110
- เว็บไซต์: www.philo-ekamai6.com
- โทร: 02-079-1375
รายละเอียดโครงการคอนโด PHILO เอกมัย 6
- พื้นที่โครงการ: 0-1-86 ไร่
- ลักษณะโครงการ: คอนโดมิเนียม Low Rise 1 อาคาร สูง 8 ชั้น จำนวนห้องพักอาศัย 78 ยูนิต
- รูปแบบห้อง: 1 Bedroom 24.1-31.35 ตร.ม., 1 Bedroom Plus 46.80 ตร.ม.
- สิ่งอำนวยความสะดวก: Lobby, สระว่ายน้ำ Rooftop Pavilion, ห้องออกกำลังกาย, ห้องสันทนาการ
- ระบบการรักษาความปลอดภัย: ลิฟต์ระบบล็อกชั้น, ระบบรักษาความปลอดภัย 24 ชม.
- ลิฟต์: ลิฟต์โดยสาร 2 ตัว
- ที่จอดรถ: 46% ของโครงการ
- สถานะโครงการ: เปิดจองครั้งแรก 30 พฤศจิกายน 2562
- ราคาเริ่มต้น: 3.7 ล้านบาท
- ราคาเฉลี่ย: 157,000 บาท
ถ้าฉันสนใจโครงการนี้ ฉันจะสามารถกู้ได้สูงสุดเท่าไหร่? ค้นหาคำตอบได้ที่นี่
บทความที่เกี่ยวข้องกับการกู้ซื้อบ้าน คอนโดฯ
- เงินเดือนเท่านี้จะกู้ซื้อบ้าน คอนโดฯ ได้เท่าไหร่
- อัปเดตอัตราดอกเบี้ยสินเชื่อบ้าน กู้ซื้อบ้าน
- รวมเทคนิคการกู้ซื้อบ้านที่คนอยากมีบ้านต้องรู้
รายละเอียดโครงการ
ภาพรวมโครงการคอนโด PHILO เอกมัย 6
โครงการ PHILO เอกมัย 6 เป็นที่อยู่อาศัยประเภทคอนโดมิเนียมบนพื้นที่ขนาดไม่ใหญ่มากหรือที่ประมาณ 2 งาน หรือ 200 ตร.วา เท่านั้น ดังนั้นการออกแบบตัวอาคารจึงทำออกมาเพื่อให้เกิดความเป็นส่วนตัวที่สุดสำหรับคอนโดมิเนียม Low Rise สูง 8 ชั้น มียูนิตที่อยู่อาศัยเพียง 78 ยูนิตเท่านั้น หากไม่นำพื้นที่ล็อบบี้ที่ Ground Floor ตั้งแต่ชั้น 2-8 น่าจะมียูนิตเฉลี่ยต่อชั้นที่ประมาณไม่ถึง 10 ยูนิตเท่านั้น ดังนั้นจุดเด่นหลัก ๆ ของโครงการ PHILO เอกมัย 6 ก็คือความเป็นส่วนตัว กับ Location ที่ใกล้กับ BTS เอกมัยเพียง 900 ม. กับราคาเริ่มต้นที่ไม่แรงเลยที่ 3.7 ล้านบาทเท่านั้นสำหรับห้องขนาด 1 ห้องนอน 24 ตร.ม.
รูปแบบห้อง
- 1 Bedroom 24.1-31.35 ตร.ม.
- 1 Bedroom Plus 46.80 ตร.ม.
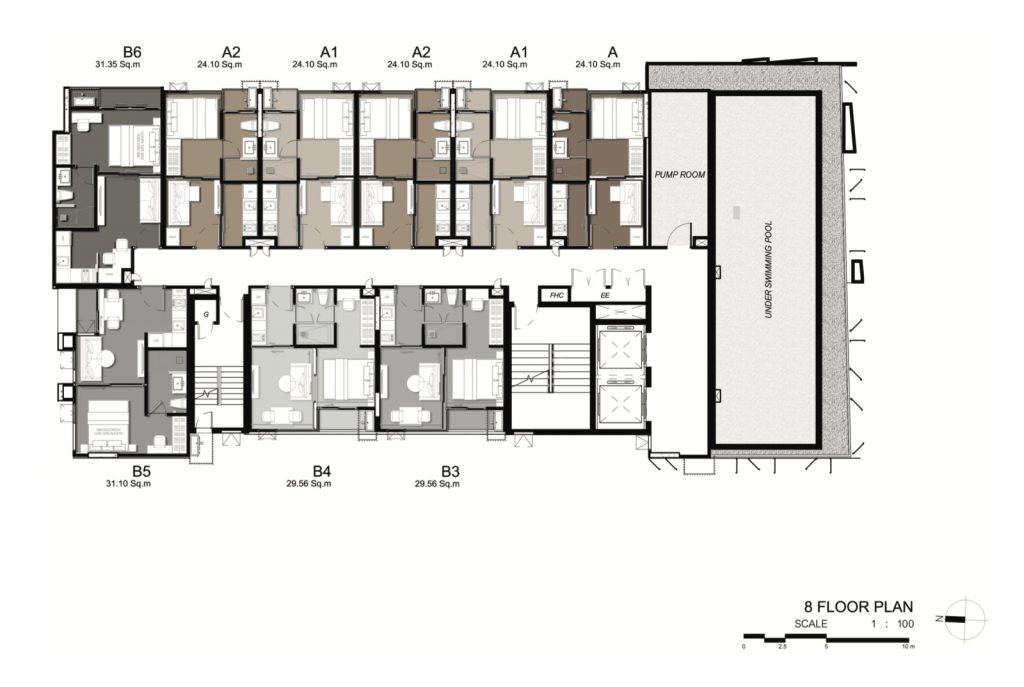
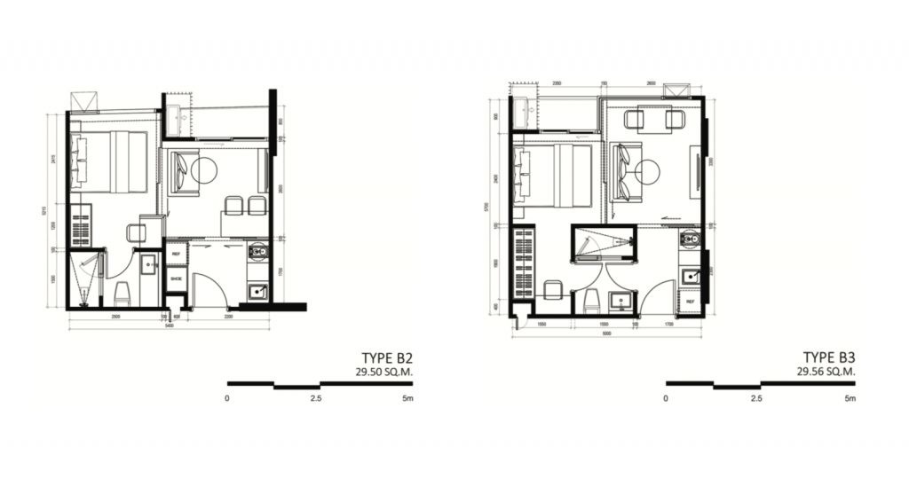
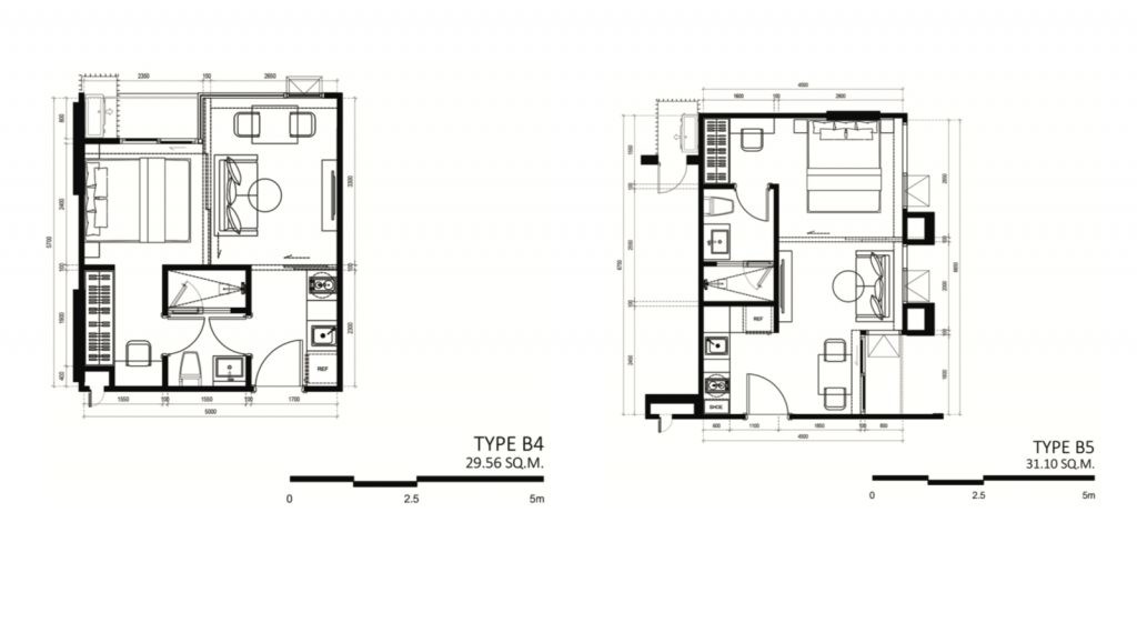
Floor Plan
Unit Layout
ภาพจำลองห้องตัวอย่างของโครงการคอนโด PHILO เอกมัย 6
สิ่งอำนวยความสะดวกภายในโครงการคอนโด PHILO เอกมัย 6
- ล็อบบี้และพื้นที่ส่วนกลาง
- สระว่ายน้ำ Rooftop Pavilion
- ห้องออกกำลังกาย
- ห้องสันทนาการ
- ที่จอดรถ
- ลิฟต์ระบบล็อกชั้น
- ระบบรักษาความปลอดภัย 24 ชม.
ภาพจำลองสิ่งอำนวยความสะดวกในโครงการคอนโด PHILO เอกมัย 6
ทําเล & การเดินทาง
ทำเล & การเดินทางของโครงการคอนโด PHILO เอกมัย 6
โครงการคอนโด PHILO เอกมัย 6 ตั้งอยู่ในซอยเอกมัย 6 บริเวณปากซอยเป็นที่ตั้งของไลฟ์สไตล์ขนาดใหญ่อย่าง Big C ที่เรียกได้ว่าสามารถให้ความสะดวกสบายของคนที่อยู่อาศัยในย่านนี้ได้ตลอดทั้งคืน ยังไม่รวมพื้นที่ไลฟ์สไตล์อื่น ๆ ในเอกมัยที่เรียกได้ว่าค่อนข้างคึกตักตลอด 24 ชม. ทั้งกิน ทั้งดื่ม ทั้งเที่ยว มีครบจบที่เอกมัย ไม่เพียงแค่นั้น ช่วงกลางวันบนพื้นที่นี้ก็ยังเต็มไปด้วยร้านกาแฟ Co Working Space ตอบรับการใช้ชีวิตช่วงกลางวันด้วย
ส่วนเรื่องของการเดินทางซอยเอกมัยก็สามารถลัดเลาะออกไปพื้นที่ทองหล่อได้ที่ซอยเอกมัย 10 หรือจะใช้ซอย 12 มุ่งหน้าออกไปบริเวณถนนสุขุมวิท 77 แล้วเลือกออกถนนเพชรบุรี หรือ บนริเวณอ่อนนุชก็ได้ ส่วนไฮไลท์หลัก ๆ ก็คือตัวที่ตั้งโครงการที่ห่างจาก BTS สถานีเอกมัยที่ประมาณ 900 ม. เท่านั้น ซึ่งอยู่ในระยะที่สามารถเลือกเดินก็ได้หรือใช้บริการขนส่งสาธารณะในการเชื่อมต่อ
สถานที่สำคัญใกล้เคียงโครงการคอนโด PHILO เอกมัย 6
ห้างสรรพสินค้าและสถานที่ไลฟ์สไตล์
- Big C เอกมัย
- Major เอกมัย
- Gateway เอกมัย
- Donki Mall
โรงเรียนและมหาวิทยาลัย
- รร.นานาชาติเอกมัย
- รร.ศรีวิกรม์
- ม.ศรีนครินทรวิโรฒ
โรงพยาบาล
- รพ.สมิติเวช
- รพ.กล้วยน้ำไท
- รพ.สุขุมวิท
บทวิเคราะห์
เปรียบเทียบคอนโด Low Rise ใกล้ BTS เอกมัย โครงการอื่น ๆ
|
ชื่อโครงการ |
จำนวนยูนิต |
เนื้อที่โครงการ |
พื้นที่ใช้สอย (ตร.ม.) |
ราคาเริ่มต้น |
|
คอนโด PHILO เอกมัย 6 |
78 ยูนิต |
0-1-86 ไร่ |
24.1 – 46.8 ตร.ม. |
3.7 ล้านบาท |
|
ทากะ เฮาส์ เอกมัย 12 (Taka HAUS Ekkamai 12) |
269 ยูนิต |
ประมาณ 3 ไร่ |
30 – 71.50 ตร.ม. |
4.49 ล้านบาท |
|
โฮล์ม เอกมัย 22 (HOLME Ekkamai 22) |
90 ยูนิต |
0-3-99 ไร่ |
33.75 – 101 ตรม. |
3.9 ล้านบาท |
คอนโด ทากะ เฮาส์ เอกมัย 12 (Taka HAUS Ekkamai 12)
taka HAUS เอกมัย 12 จากการพัฒนาร่วมกันของของ บริษัท แสนสิริ จำกัด (มหาชน) และบริษัทพัฒนาระบบรถไฟและอสังหาริมทรัพย์ในญี่ปุ่นอย่าง Tokyu Corporation ในชื่อว่า Sansiri TK One Company Limited กับคอนโดมิเนียม Low Rise (สูงไม่เกิน 8 ชั้น) 2 อาคาร จำนวน 269 ยูนิต ที่มีรูปแบบห้องหลากหลาย Type เป็นตัวเลือกให้กับผู้อยู่อาศัย นักลงทุน ทั้งชาวไทยและต่างประเทศ (สามารถดูรีวิวคอนโด taka HAUS เอกมัย 12 ได้ที่นี่)
ข้อมูลโครงการ taka HAUS เอกมัย 12
- ผู้พัฒนาโครงการ: บริษัท สิริ ทีเควัน (Siri TK One Company Limited)
- ทำเลที่ตั้ง: ซอยเอกมัย 12 ถนนสุขุมวิท 63 แขวงคลองตันเหนือ เขตวัฒนา กทม.
- พื้นที่โครงการ: ประมาณ 3 ไร่
- ลักษณะโครงการ: อาคารพักอาศัยสูง 7 ชั้นและชั้นใต้ดิน 1 ชั้น 1 อาคาร และอาคารพักอาศัยสูง 8 ชั้น 1 อาคาร จำนวนห้องชุดรวม 269 ยูนิต
- รูปแบบห้อง: 1 ห้องนอน และ 2 ห้องนอนขนาด 30 – 45 ตร.ม. , 2 ห้องนอนขนาด 47.50 – 71.50 ตร.ม.
- สิ่งอำนวยความสะดวก: Lobby lounge, Library, Co – kitchen space, Entertainment room, Game room, Exercise room, Garden with outdoor recreation area, Treehouse, Swimming pool, Laundry room, Wireless internet, Electric vehicle charging station
- ที่จอดรถ: 50% ของโครงการ
- ราคาเริ่มต้น: 4.49 ล้านบาท
- ราคาเฉลี่ย: ประมาณ 150,000 บาทต่อตร.ม.
คอนโด โฮล์ม เอกมัย 22 (HOLME Ekkamai 22)
หนึ่งในโครงการที่สามารถเฟ้นหาทำเลใจกลางเอกมัยได้ก็คือ คอนโด HOLME เอกมัย 22 คอนโดมิเนียม Low Rise แห่งใหม่ ไม่ไกล BTS เอกมัย (สามารถดูรีวิวคอนโดอื่น ๆ ใกล้ BTS เอกมัยได้ที่นี่) บนพื้นที่ประมาณ 1 ไร่ พร้อมสิ่งอำนวยความสำดวกที่ตอบโจทย์ไลฟ์สไตล์สมัยใหม่ ที่จอดรถกว่า 62% กับห้องนอนขนาดเริ่มต้นที่ 33.75 ตร.ม. กับราคาคอนโดใหม่ใจกลางเอกมัยที่ไม่เกิน 4 ล้านบาทเท่านั้น
ข้อมูลคอนโด HOLME เอกมัย 22
- ผู้พัฒนาโครงการ: บริษัท เอส เอ ฟิวเจอร์ พร็อพเพอร์ตี้ จำกัด
- ทำเลที่ตั้ง: 68/16 ซอย ปรีดี พนมยงค์ 41 แขวง คลองตันเหนือ เขตวัฒนา กรุงเทพมหานคร 10110
- พื้นที่โครงการ: 0-3-99 ไร่
- ลักษณะโครงการ: คอนโดมิเนียม Low Rise 1 อาคาร 8 ชั้น จำนวน 90 ยูนิต
- รูปแบบห้อง: 1 นอน 33.75 – 43 ตรม. , 2 นอน 60.5 – 83 ตรม. , Duplex 66.75 – 101 ตรม.
- สิ่งอำนวยความสะดวก: Lobby , Mailbox , ห้องสันทนาการ , ห้องเด็กเล่น , ห้องอ่านหนังสือ , สระว่ายน้ำ , ฟิตเนส , สวนลอยฟ้า
- ระบบการรักษาความปลอดภัย: กล้องวงจรปิด CCTV , ระบบ Access Card Control , ระบบรักษาความปลอดภัย
- ลิฟต์: 2 ตัว
- ที่จอดรถ: 62%
- ราคาเริ่มต้น: 3.9 ล้านบาท
สรุป
โครงการคอนโด PHILO เอกมัย 6 เหมาะกับใคร?
ปัจจุบันเอกมัยถือเป็นพื้นที่ที่เหมาะสำหรับอยู่อาศัยเองด้วย และสามารถลงทุนได้ด้วย สำหรับ คอนโด PHILO เอกมัย 6 ก็เป็นอีกหนึ่งโครงการที่น่าสนใจมาก ๆ ในเอกมัย เพราะอยู่ในโซนเอกมัยช่วงต้นที่ค่อนข้างมีความเจริญสูง ถึงแม้ตัวโครงการจะเป็นคอนโดมิเนียม Low Rise ภาษีและอัตราผลตอบแทนในการลงทุนอาจจะน้อยกว่าคอนโดมิเนียม High Rise ติด BTS เอกมัย
แต่ต้องบอกว่าคอนโดฯ ทั้งสองรูปแบบนี้ไม่สามารถนำมาเทียบกันได้ เพราะหากมาเช็กราคาที่ห้องขนาดเดียวกันถือว่ามีอัตราราคาเฉลี่ยนค่อนข้างต่างกันเลย ในขณะที่คอนโดฯ ติด BTS มีราคาเฉลี่ยที่ประมาณ 200,000 บาทต่อตร.ม. แต่สำหรับ PHILO เอกมัย 6 ที่มีที่ตั้งโครงการอยู่ห่างจาก BTS เอกมัย เพียง 900 ม. ก็มีราคาที่ลดลงพอสมควร ที่สำคัญยังได้ความเป็นส่วนตัวอีก
ดังนั้นการจะเลือกซื้อคอนโดฯ สักแห่งบนเอกมัย อันดับแรกต้องดูงบประมาณก่อน รวมไปถึงความต้องการของตัวเองด้วยว่าต้องการคอนโดมิเนียมที่ตอบโจทย์การอยู่อาศัยแบบไหน ถ้าชอบที่จะได้รับส่วนกลางที่อำนวยความสะดวกได้มากหน่อยต้องเลือกคอนโดฯ High Rise และในระยะที่ห่าง BTS พอ ๆ กัน ราคาที่ต้องจ่ายก็จะมากกว่าและได้ห้องขนาดเล็กกว่าหรือพอ ๆ กัน แต่หากต้องการโครงการที่ตอบโจทย์ความเป็นส่วนตัวได้ และอยู่บนพื้นที่ไลฟ์สไตล์ 24 ชม. แบบเอกมัย คอนโดใหม่อย่าง PHILO เอกมัย 6 ก็ถือว่าน่าสนใจมากเลยทีเดียว
อัปเดต ข่าวอสังหาริมทรัพย์ และ อ่านคู่มือซื้อขาย พร้อม รีวิวโครงการคอนโดฯ ใหม่ บ้านใหม่ หลากหลายทำเลและราคา รวมถึง ทำความรู้จักกับทำเลฮอตทั่วกรุง เพื่อเพิ่มความมั่นใจในการซื้อ-ขาย-เช่า สนใจรับบทความดีดี กดติดตาม






















