คอนโดเลี้ยงสัตว์ได้ เอาใจทาสแมวหรือทาสหมา ที่อยากพาเพื่อนแสนรู้เหล่านี้ไปอยู่ในห้องชุดสุดหรู กับ 15 โครงการคอนโด ทำเลสุดว้าว ที่อนุญาตให้เลี้ยงสัตว์ได้
ปัจจุบันโครงการบ้านแนวราบจะนิยมปักหมุดบริเวณชานเมือง ซึ่งทำเลที่ผู้ประกอบการนิยมเข้าไปพัฒนาโครงการประเภทมากที่สุดแห่งหนึ่ง คงหนีไม่พ้นพื้นที่โซนตะวันตก โดยมีทำเลเด่นๆ อย่างราชพฤกษ์ รัตนาธิเบศร์ เป็นตัวชูโรง ซึ่งปัจจัยหลักที่ทำให้ตลาดการแข่งขันบ้านแนวราบเติบโตมากบนโซนตะวันตกก็คือความเจริญทางด้านการคมนาคมตลอดจนสาธารณูปโภคที่เข้ามาอุดช่องโหว่บนพื้นที่เปล่าที่ยังพอมองเห็นประโยชน์อย่างมากในการเชื่อมต่อบริเวณชานเมืองเข้ากับตัวเมืองให้กลายเป็นพื้นที่เดียวกัน ซึ่งนอกจากทำเลดังกล่าว ยังมีอีกหนึ่งทำเลทองทางฝั่งเหนือที่มีความน่าสนใจ เพราะเป็นหนึ่งในถนนสายสำคัญสายยาวที่เชื่อมต่อการคมนาคมทุกเส้นทางเอาไว้ ไม่ว่าจะทางบก ทางอากาศ หรือบริการขนส่งมวลชนอย่างรถไฟฟ้าชานเมืองสายสีแดง (บางซื่อ-รังสิต) ที่จะเข้ามาเติมเต็มความสะดวกให้กับทำเลโซนฝั่งเหนืออย่างถนนวิภาวดี
จริงอยู่ว่าถนนสายยาวอย่างวิภาวดี อาจจะไม่ได้อยู่ใจกลางเมือง แต่ด้วยเส้นทางคมนาคมรอบด้าน ที่มีเส้นทางของทางด่วนที่เชื่อมต่อกับทางด่วนอื่นๆ เป็นจุดเด่น ตลอดจนถึงอานิสงส์จากการเกาะกลุ่มของผู้ประกอบการอุตสาหกรรมหรือโรงงานขนาดใหญ่ที่นิยมตั้งถื่นฐานอยู่บนทำเลนี้ ทำให้ภาพรวมของทำเลนี้ยังคงถูกจัดอยู่ในทำเลที่น่าลงทุน ซึ่งหากมองในแง่ของอสังหาริมทรัพย์ จะพบว่าดีมานด์ของผู้อยู่อาศัยบริเวณนี้มีมากพอตัวตั้งแต่ช่วงต้นวิภาวดีไปจนถึงรังสิต แต่ซัพพลายที่เข้ามารองรับยังไม่สอดคล้องกับความต้องการของคนบนพื้นที่นี้ แต่ก็ยังมีดีเวลลอปเปอร์รายหนึ่งที่เข้ามารองรับดีมานด์ที่อยู่อาศัยส่วนหนึ่งเอาไว้ และมีความคุ้นเคยกับทำเลวิภาวดีเป็นอย่างดี โดยเน้นเจาะกลุ่มตลาดทั้งคอนโดมิเนียมและโครงการบ้านอย่าง บริษัท มั่นคงเคหะการ จำกัด (มหาชน) ที่ล่าสุดได้เข้าเปิดซิงตลาดบ้านระดับบนในราคาระดับ 10 ล้าน หลังจากจับกลุ่มเป้าหมายระดับล่างและกลางมาตลอด โดยได้ขยายพื้นที่โครงการเดิมอย่าง “ชวนชื่น โมดัส วิภาวดี” โฮมออฟฟิศเฟสหนึ่งที่ได้รับการตอบรับเป็นอย่างดี พัฒนาต่อยอดเฟสสองในรูปแบบของบ้านแฝดภาพลักษณ์ใหม่ภายใต้คอนเซ็ปต์ดีไซน์สไตล์โมเดิร์น ทรอปิคอล โดยเน้นพื้นที่ใช้สอยและตอบโจทย์ของผู้ประกอบการและผู้บริหารระดับสูงบนย่านวิภาวดี ด้วยบ้านแฝดสูง 3 ชั้นบนที่ดินขนาดตั้งแต่ 49-96 ตารางวากับความเป็นส่วนตัวเพียง 55 ยูนิต
เจาะลึกข้อมูลโครงการ
ชื่อโครงการ: ชวนชื่น โมดัส วิภาวดี เฟส 2
ผู้พัฒนาโครงการ: บริษัท มั่นคงเคหะการ จำกัด (มหาชน)
ทำเลที่ตั้ง: ถนนวิภาวดีรังสิต ฝั่งขาเข้า ใกล้กับแยกหลักสี่
เว็บไซต์: http://www.mk.co.th
โทร: 1622
รายละเอียดโครงการ (ข้อมูล ณ วันที่ 19 เมษายน 2559)
พื้นที่โครงการ: 22-3-89.7 ไร่
รูปแบบ: บ้านแฝดขนาด 3 ชั้น จำนวน 55 ยูนิต
กลุ่มเป้าหมาย: คนในพื้นที่, เจ้าของธุรกิจ
สถานะการก่อสร้าง: ประมาณปี 2558
คาดว่าจะแล้วเสร็จ: ประมาณปี 2560
สถานะการขาย: 50%
ค่าส่วนกลาง: แปลงละ 2,000 บาทต่อเดือน (จ่ายล่วงหน้า 3 ปี ณ วันโอนกรรมสิทธิ์)
ราคาเริ่มต้น: 10 ล้านบาท
ราคาเฉลี่ย: ประมาณ 100,000 บาทต่อตร.ว.
รูปแบบบ้าน
บ้านแฝด เริ่มต้น 248 ตร.ม. บนพื้นที่ตั้งแต่ 49-96 ตร.ว. 4 ห้องนอน 4 ห้องน้ำ หน้าบ้านกว้าง 7 เมตร ที่จอดรถ 2 คันพร้อมหลังคา
รายละเอียดโครงการ
รีวิวภาพรวมโครงการ

บริเวณหน้าโครงการเป็นประตูแยกเข้า-ออก ไม่มีไม้กระดกกั้น แต่มียามรักษาความปลอดภัยตลอด 24 ชม. เนื่องจากเฟสแรกเป็นในส่วนของโฮมออฟฟิศที่มีผู้ประกอบธุรกิจอยู่ จึงทำให้ทางเข้าออกสะดวกขึ้น

ถนนหลักภายในโครงการ ซึ่งเป็นในส่วนของเฟสแรกมีความกว้างถึง 16 ม. ซึ่งสามารถจอดรถเทียบสองฝั่งได้ตามภาพ
ชวนชื่น โมดัส วิภาวดี เฟส 2 เป็นโครงการบ้านแฝดที่ตั้งอยู่บนพื้นที่ด้านในของโครงการต่อจากพื้นที่เฟสแรกที่เป็นโฮมออฟฟิศ บ้านแฝดมีรูปแบบเดียว แตกต่างกันที่ขนาดของที่ดิน ลักษณะเป็นบ้าน 3 ชั้น จำนวน 55 ยูนิต ทุกๆ สองยูนิต จะมีรั้วกั้นห่างกันประมาณ 3 เมตร โดยแต่ละยูนิตนั้นเป็นสองฝั่งคู่ขนานไปตามถนนโครงการโดยหันหน้าไปทางทิศเหนือและทิศใต้ แต่ด้วยฟังก์ชั่นของบานกระจกใหญ่รอบบ้าน จึงยังได้รับทิศทางของแสงธรรมชาติที่จะได้รับเข้าสู่ตัวบ้านได้อยู่ แต่ก็ช่วยลดในเรื่องของความร้อนไปได้เยอะพอสมควร
ในส่วนของการออกแบบ เมื่อก้าวเข้าสู่ตัวบ้านจะให้ความรู้สึกเหมือนอยู่ในบ้านเดี่ยว ด้วยพื้นที่หน้าบ้านที่กว้างกว่า 7 เมตร และการออกแบบเพดานห้องที่สูง 2.8 ม. พร้อมรั้วรอบบ้านฝั่งที่ไม่ได้ติดกับบ้านแฝดที่ห่างจากผนังบ้านด้านนอกที่ 2 ม.กว่า จึงแทบไม่ให้ความรู้สึกความเป็นบ้านแฝดเลย พร้อมยังประกอบไปด้วยฟังก์ชั่นห้องครัวชั้นล่างที่ทำกำแพงกระจกใสกั้น และพื้นที่อเนกประสงค์บริเวณโถงบันไดชั้นสอง ซึ่งหากจัดสรรให้ดีจะสามารถใช้ประโยชน์ใช้สอยได้สูงสุดหรือกั้นพาทิชั่นแบ่งให้เป็นสองห้องได้เลย พร้อม Master Bedroom ขนาดใหญ่ในชั้นนี้ ส่วนชั้นสามเป็นห้องนอนสามห้อง โดยมีหนึ่งห้องที่มีห้องน้ำในตัว ส่วนอีกสองห้องนอนเล็กจำเป็นต้องใช้ห้องน้ำกลางด้วยกัน จากที่กล่าวมาเรียกว่าโครงการ ชวนชื่น โมดัส วิภาดี ในส่วนที่เป็นบ้านแฝดนี้ ยกฟังก์ชั่นของบ้านเดี่ยวมาไว้ทั้งภายในและภายนอกก็ว่าได้ หากมองในเรื่องของการใช้งานของพื้นที่ใช้สอยและนำไปเปรียบเทียบกับบ้านเดี่ยวในราคาเดียวกันคงต้องอยู่ที่ไลฟ์สไตล์ของผู้อยู่อาศัยว่าต้องการที่ดินที่กว้างขึ้นกับประโยชน์ของพื้นที่ใช้สอยภายในบ้านที่น้อยลงกับบ้านเดี่ยวสไตล์สองชั้น หรืออยากจะจัดสรรบ้านให้ลงตัวด้วยพื้นที่ใช้สอยที่มากกว่าในสไตล์บ้านแฝดสูงสามชั้น

ทางเข้าโครงการชวนชื่น โมดัส วิภาวดี เฟส 2 ซึ่งเป็นบ้านแฝดที่มีระบบคีย์การ์ดเข้า-ออกสำหรับลูกบ้าน พร้อมป้อมรักษาความปลอดภัยตลอด 24 ชม.
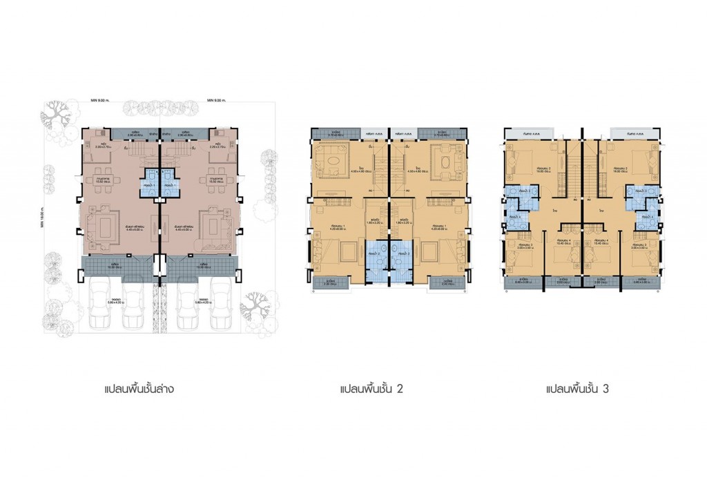
Master Plan
จาก Master Plan จะเห็นว่า พื้นที่ของบ้านแฝด จะตั้งอยู่บนเฟสสอง ด้านในของโครงการ ซึ่งจะมียูนิตเรียงรายทั้งสองฝั่ง โดยหันหน้าไปทางทิศเหนือและทิศใต้เท่านั้น โดยจะมีบางยูนิตได้รับวิวเป็นคลองเลียบโครงการ ถัดออกไปจากพื้นที่เฟสสองยังคงเป็นพื้นที่เปล่าที่กำลังรอการพัฒนา ส่วนด้านบนสุดของแปลนที่มียูนิตเรียงรายเป็นทาวน์โฮมของการพัฒนาโครงการในเฟสสองเช่นกัน และมีหลังบ้านชนกับหลังบ้านกับบ้านแฝดแต่มีรั้วกั้นอยู่
Unit Layout
แปลนที่เห็นจะเป็นส่วนของบ้านแฝดติดกันสองยูนิต จะเห็นว่าบ้านทางซ้ายและขวามีสเปคเหมือนกันหมดเพียงแต่สลับด้านกัน ในส่วนของชั้นล่างสุดจะแบ่งเป็น พื้นที่จอดรถที่มีโครงเหล็กพร้อมหลังคาแบบโพลีไลท์ช่วยบังแดด พื้นที่หน้าบ้านกว้างประมาณ 7 เมตร เฉลียงบ้านที่มีพื้นที่กว่า 10 ตร.ม. สามารถจัดเก้าอี้หรือโซฟาคู่มาตั้งไว้มุมบ้านได้เลย ต่อมาเป็นส่วนของพื้นที่ภายในบ้านชั้นล่าง ประกอบด้วย ห้องครัวแบบที่กั้นกำแพงด้วยกระจกใสมุมบ้าน ห้องน้ำกลาง และส่วนซักล้างหลังบ้าน
ต่อมาในชั้นสองตามแปลนถูกแบ่งออกเป็นสามส่วนอย่างชัดเจน คือโถงบันไดขนาดใหญ่ที่เชื่อมต่อกับระเบียงหลังบ้านขนาด 3.70×0.80 ม. และมีห้องนอนใหญ่ที่มีห้องน้ำในตัวและเชื่อมต่อกับระเบียงที่หันออกไปทางหน้าบ้านขนาด 2.30 ตร.ม. โดยห้องนอนนี้เป็นห้องนอนขนาดใหญ่สุดของบ้านมีขนาดอยู่ที่ประมาณ 4.20×6.00 ม. ส่วนบันไดทางขึ้นจะอยู่ฝั่งด้านในของตัวบ้านแฝดทั้งสองหลัง
มาที่ชั้นสามพื้นที่ถูกแบ่งออกเป็นสามส่วนหลักๆ ในส่วนแรกเป็นพื้นที่ติดกับบันไดทางขึ้น ซึ่งเป็นส่วนของห้องนอนที่มีขนาดใหญ่สุดในชั้นนี้ มีขนาดประมาณ 18 ตร.ม. และที่มีห้องน้ำในตัว ฝั่งตรงข้ามเป็นห้องนอนเล็กสองห้องมีขนาดพอๆ กันที่ประมาณ 10 ตร.ม. ไม่มีห้องน้ำในตัวแต่มีระเบียงเล็กๆ ขนาดประมาณ 2 ตร.ม. โดยในชั้นสามนี้มีห้องน้ำกลางอยู่กึ่งกลางของชั้นคั่นระหว่างห้องนอนเล็ก 2 ห้อง กับฝั่งห้องนอนใหญ่ของชั้นสามด้วย
การวางทิศทางห้อง
ทิศเหนือ: เป็นพื้นที่เปล่าอยู่ติดกับโครงการ ส่วนใหญ่เป็นที่อยู่อาศัยของคนพื้นที่ และการประกอบอาชีพค้าขายกันในชุมชน
ทิศใต้: ติดกับแยกรามอินทรา ฝั่งตรงข้ามเป็นศูนย์รถยนต์ฮุนได ไม่มีผลกับวิวด้านนี้ เพราะตัวบ้านหันหน้าไปทางทิศเหนือและใต้
ทิศตะวันออก: เป็นด้านหลังของโครงการ บริเวณนี้มีพื้นที่เปล่าของโครงการติดอยู่กับพื้นที่โครงการเฟส 2 แต่ยังไม่ได้วางแผนว่าจะพัฒนาเป็นรูปแบบใด
ทิศตะวันตก: เป็นด้านหน้าทางเข้าโครงการ ติดกับถนนวิภาวดีฯ ฝั่งขาเข้า มุ่งหน้าเข้าสู่เกษตรฯ ดินแดง
สิ่งอำนวยความสะดวกภายในโครงการ
ถนนหลักในโครงการกว้าง 16 ม.
ถนนในซอยโครงการกว้าง 10 ม.
เจ้าหน้าที่รักษาความปลอดภัยตลอด 24 ชม.
สวนสาธารณะ
สิ่งที่จะได้รับจากโครงการ
พื้น: ชั้นล่างเป็นกระเบื้องแกรนิตโต้ขนาด 60×60 ซม., ชั้น 2-3 เป็นพื้นไม้ลามิเนตหนา 12 มม.
ผนัง: ฉาบเรียบสีขาวพร้อมวอลล์เปเปอร์ลายพื้น
ความสูงพื้นจรดเพดาน: 2.8 ม.
บันได: โครงสร้างคอนกรีตเสริมเหล็ก ปูพื้นด้วยไม้ยาง ราวจับเป็นไม้สำเร็จรูป
เครื่องปรับอากาศ: เครื่องปรับอากาศ Saijo Denki หรือเทียบเท่าขนาด 18,300 BTU 1 เครื่อง, 12,100 BTU 1 เครื่อง, 9,400 BTU 2 เครื่อง (โปรโมชั่นตั้งแต่วันนี้ – 30 เมษายน 2559)
สุขภัณฑ์: Mogen
รีวิวภายในบ้านตัวอย่าง

ด้านข้างของบ้านมีช่องเก็บอุปกรณ์ และพื้นที่ข้างบ้านที่ห่างจากตัวบ้านประมาณ 2 เมตรไปถึงรั้วที่ชิดกับบ้านอีกหลัง โดยมีรั้วบ้านและประตูสูงประมาณ 1.5 ม. สำหรับบ้านจริง โครงการไม่ได้ปลูกต้นไม้ริมรั้วดังเช่นที่เห็นในภาพ

บ้านทุกแบบเป็นบ้านรูปแบบ 4 ห้องนอน 4 ห้องน้ำ 2 ที่จอดรถ บ้านตัวอย่างเป็นบ้านที่มีพื้นที่ใช้สอยประมาณ 248 ตร.ม. หน้าบ้านจะเป็นบานหน้าต่างกระจกฟิกซ์ สามารถเปิดได้บริเวณตรงกลางที่เป็นบานเลื่อนสองตอน ม่านที่เห็น โครงการไม่ได้มอบให้ ส่วนประตูทางเข้าจะเป็นประตูไม้สักมีระบบกลอนล็อคสองชั้น

บ้านทุกแบบสามารถเดินรอบบ้านได้ฝั่งเดียว คือฝั่งที่ไม่ติดกับบ้านอีกหลัง บริเวณนี้โครงการปลูกสนามหญ้าให้ตามทางเดินด้านนอกบ้าน

เนื่องจากโครงการมีหน้าบ้านหันไปทางทิศเหนือและทิศใต้ จึงออกแบบตัวบ้านให้มีมุมหน้าต่างกระจกใสรอบบ้าน เพื่อรับแสงธรรมชาติจากทิศตะวันออกและทิศตะวันตกได้อย่างเต็มที่

พื้นที่บริเวณหลังบ้าน สามารถจัดสวนหย่อมเล็กๆ ได้ จากภาพจะเห็นว่าด้านหลังของบ้านแฝดติดอยู่กับแบบบ้านที่เป็นทาวน์โฮม

ประตูทางเข้าบ้านหลักเป็นประดูบานกระจกตีขอบไม้สักรอบด้านกว้างประมาณ 15 ซม. พร้อมกลอนเปิดประตูแบบก้านบิดและระบบล็อคสองชั้นทั้งจากด้านนอกบ้านและในบ้าน

ภายในบ้านโครงการติดตั้งดาวน์ไลท์ให้ตามภาพ บนฝ้าแบบบิลท์อินที่ทำให้ดูมีมิติ ซึ่งแบบบ้านจริงได้รับฝ้าแบบนี้เลย

พื้นที่ในส่วนแรกเป็น Living Room ขนาดประมาณ 4.45 x 6.00 ม. ซึ่งเป็นพื้นที่ขนาดใหญ่ ประกอบไปด้วยห้องน้ำกลาง พื้นที่รับประทานอาหาร และห้องครัวปิดที่กั้นกำแพงด้วยกระจกใส

ห้องน้ำชั้นล่างอยู่ระหว่างบันไดทางขึ้นชั้นสองและพื้นที่ผนังด้านหลังห้องนั่งเล่น วอลล์เปเปอร์ที่เห็นในภาพเป็นเพียงภาพจำลองบรรยากาศบ้านตัวอย่างเท่านั้น

แบบบ้านตัวอย่างมีมูลี่ติดเพื่อแบ่งห้องครัวและพื้นที่นั่งเล่นให้ชัดเจน แต่แบบบ้านจริงโครงการไม่ได้มอบให้ ด้านข้างห้องครัวเป็นประตูทางออกเชื่อมต่อสู่โซนซักล้างหลังบ้าน

ประตูกั้นห้องครัวและห้องนั่งเล่นเป็นแบบพลักเข้าออก มีที่จับเป็นอะลูมิเนียมขนาดถนัดมือแต่ไม่สามารถล็อคได้

พื้นห้องครัวเป็นกระเบื้องแกรนิตโต้ขนาด 60 x 60 ซม. โครงการเลือกใช้สีขาวเพื่อความสะดวกในการทำความสะอาดได้ง่าย

ภายในห้องครัวสามารถวางเคาน์เตอร์ครัวเป็นรูปตัวแอลได้โดยเหลือพื้นที่ให้ยืนประกอบอาหารได้รอบด้าน แต่ในบ้านจริง โครงการไม่ได้มอบเคาน์เตอร์ให้

ห้องครัวมีขนาดกว้างประมาณ 2.2 x 2.7 ม. ไม่ใหญ่มากแต่สามารถวางเคาน์เตอร์ครัวรูปตัวแอล พร้อมตู้เย็นขนาดมาตรฐานแบบประตูเดียวได้

บันไดเป็นทางขึ้นรูปแบบตัวแอล มีชานพักระหว่างมุม พร้อมบล็อกแก้วแบบขุ่นกระจกมัวที่ให้แสงธรรมชาติรอดเข้ามาได้บางส่วน โครงสร้างบันไดเป้นคอนกรีตเสริมเหล็ก ปูลูกนอนด้วยไม้ยางพารา ลูกตั้งปิดทึบทาด้วยสีขาวเงา มีเชิงบัวเหนือขอบบันไดกว้างประมาณ 10 ซม. และมีราวกั้นเป็นโครงเหล็กที่มีราวจับเป็นไม้เนื้อแข็ง

เมื่อขึ้นสู่ชั้นสองจะเป็นส่วนของห้องโถงใหญ่ มีที่กั้นสูงประมาณ 1 ม. ระหว่างบันไดทางขึ้น-ลงกับห้องโถงอย่างชัดเจน

เมื่อมองลงมาจะได้รับวิวเป็นพื้นที่สนามหญ้าหลังบ้าน และโครงการทาวน์โฮมตามภาพ หากเป็นอีกฝั่งจะได้รับวิวเป็นแนวคลองเลียบกับโครงการ

ด้านข้างของระเบียง โครงการทำชานระเบียงยื่นออกไปแต่ เพื่อเป็นที่วางคอมเพรสเซอร์แอร์ โดยแบ่งแยกคอมพ์แอร์ไม่ให้มาเกะกะบริเวณระเบียง

ถัดมาเป็นพื้นที่ของห้องนอนใหญ่ แบ่งออกเป็นสามส่วนหลักๆ คือพื้นที่อเนกประสงค์ เตียงนอน และ Walk-in Closet

บริเวณหน้าห้องมีปลั๊กไฟ และสวิตช์แอร์ กลอนประตูเป็นแบบลูกบิดธรรมดา สามารถล็อคได้จากด้านในอย่างเดียว ประตูเป็นวัสดุ HDF ไม่แข็งแรงมากแต่ยังคงความเบา

พื้นระเบียงเป็นพื้นหินล้างล้อมรอบกระเบื้องแกรนิตโต้ขนาด 30 x 30 ซม. มีประตูบานเลื่อนสองตอนเป็นวัสดุกระจกเขียวตัดแสงวงกบอะลูมิเนียม

ห้องน้ำกลางชั้นสาม เป็นห้องน้ำที่มีสเปคแบบเดียวกับห้องน้ำในตัวของ Master Bedroom ที่ชั้นสอง โครงการตกแต่งห้องน้ำด้วยกระเบื้องเซรามิกทั้งแบบบ้านจริงและแบบบ้านตัวอย่าง

ประตูห้องน้ำเป็นวัสดุ HDF มีช่องลมระบายอากาศด้านล่าง กลอนลูกบิดแบบธรรมดาสามารถล็อคได้จากด้านในด้านเดียว

ห้องนี้มีระเบียงเชื่อมต่อหันออกไปสู่หน้าบ้าน ดีไซน์ที่กั้นเป็นช่องรับลมทำจากวัสดุอิฐมวลเบาฉาบเรียบทาสีขาว

ถัดมาเป็นห้องขนาด 10 ตร.ม. กว่า หรือประมาณ 3.00 x 3.50 ม. เป็นห้องแนวยาว เชื่อมต่อกับระเบียงขนาดประมาณ 2 ม.

ระเบียงของห้องนอนเล็ก มีที่กั้นเป็นโครงเหล็กเบา ที่จับเป็นไม้สำเร็จรูปเนื้อแข็ง จะไม่มีชานพักคอมเพรสเซอร์แอร์แยกเหมือนชั้นสอง แต่จะวางบนระเบียงเลย

ห้องนอนใหญ่บริเวณชั้นสาม ทางเดินเข้าห้อง โครงการออกแบบให้เป็นตู้เสื้อผ้าแบบบิลท์อิน เป็นไอเดียการใช้สอยพื้นที่แบบประหยัด แต่แบบบ้านจริงเป็นผนังอิฐมวลเบาฉาบเรียบทาสีขาว

ห้องนอนนี้สามารถวางเตียงได้ตั้งแต่ขนาดเริ่มต้นที่ 3.5 ฟุตไปจนถึงเตียงขนาด 6 ฟุต และยังเหลือพื้นที่ให้เดินรอบเตียงได้ โดยมีมุมหน้าต่างที่เปิดเข้าออกได้เพื่อรับแสงจากสองมุม คือจากมุมหลังบ้านและด้านข้างบ้านฝั่งที่ไม่ติดกับบ้านแฝดอีกหลัง

พื้นห้องเป็นพื้นลามิเนต แบ่งแยกกับโซนห้องน้ำชัดเจนด้วยการยกสเต็ปพื้นขึ้นมาประมาณ 12 มม. ส่วนพื้นห้องน้ำใช้กระเบื้องแกรนิตโต้ขนาด 30 x 30 ซม.

ห้องน้ำในตัวของห้องนอนใหญ่ชั้นสาม อาจจะดูเล็กกว่าห้องน้ำอื่นๆ แต่โครงการจัดฟังก์ชั่นการใช้งานให้เหมือนกับห้องน้ำในห้องนอน Master Bedroom เลย โดยมีสุขภัณฑ์ครบ และมีที่นั่งอาบน้ำแบบญี่ปุ่น กั้นโซนเปียกโซนแห้งด้วยบานกระจก ฝักบัวเป็นแบบธรรมดา
รีวิวภายในบ้านจริง

แบบบ้านจริง เป็นบ้านทางฝั่งขวา สเป็คที่ได้รับจากโครงการเหมือนกันหมดเพียงแต่สลับด้านกัน แสงที่ได้รับจากด้านข้างของบ้านก็จะสลับเช้า-เย็นไปด้วย เพราะด้านข้างของบ้านแฝดจะอยู่ทางทิศตะวันออกและทิศตะวันตก

เฉลียงหน้าบ้านเป็นรูปตัวแอลปลายสั้นๆ แต่มีพื้นที่โดยรวมกว่า 10 ตร.ม. จะเห็นว่าพื้นที่มุมด้านในของภาพสามารถจัดโต๊ะที่นั่งพักผ่อนรับแขกได้สบายๆ

เมื่อไม่มีเฟอร์นิเจอร์ตกแต่งอยู่ จะเห็นว่าบ้านมีหน้าต่างรอบบ้าน ทั้งกระจกบานฟิกซ์และบานกระทุ้งเปิดเข้า-ออกเพื่อรับลมได้

ด้านในสุดของบ้านเป็นบันไดขึ้นสู่ชั้นสอง มีประตูทางเชื่อมออกสู่หลังบ้าน และมีห้องน้ำกลางที่ไม่สามารถอาบน้ำได้อยู่ใต้บันได พร้อมห้องเก็บของขนาดเล็ก

บรรยากาศภายในห้องน้ำชั้นล่างประกอบไปด้วยอ่างล้างหน้าและโถสุขภัณฑ์ โครงการมอบกระจกเงาบานใหญ่ให้ตามภาพ

ประตูกั้นห้องครัวเป็นเป็นประตูผลักเข้า หากจะจัดสรรห้องครัวต้องจัดวางในขนาดที่พอเหมาะอย่าให้ขวางรัศมีการเปิดปิดของประตู เพราะวัสดุหลักของประตูเป็นกระจกเขียวตัดแสง

ห้องน้ำในตัวของ Master Bedroom แบ่งโซนเปียก-โซนแห้งด้วยประตูบานกระจก มีสุขภัณฑ์ครบ จะเห็นว่าพื้นที่ระหว่างสุขภัณฑ์จรดกำแพงอีกด้านเหลือพื้นที่เยอะจนสามารถติดชั้นวางของให้กำแพงอีกฝั่งได้เลย

ขึ้นมาชั้นสามเป็นทางเดินเชื่อมสู่ห้องนอนเล็กสองห้อง และห้องนอนใหญ่ของบริเวณชั้นสาม โดยมีห้องน้ำกลางอยู่ตรงกลาง ซึ่งสามารถอาบน้ำได้ ส่วนวอลเปเปอร์โครงการมอบให้เป็นสีพื้น

บรรยากาศภายในห้องน้ำกลาง โครงการออกแบบตกแต่งให้เหมือนกับบ้านตัวอย่างโดยใช้กระเบื้องเซรามิกสีรุ้ง ให้อารมณ์ผ่อนคลายสไตล์หวานแหววเวลาอาบน้ำ แต่ฝักบัวเป็นแบบธรรมดา ไม่ได้เป็นแบบ Rain Shower แบบในบ้านตัวอย่าง

บริเวณห้องนอนเล็กที่หนึ่งมีระเบียงที่หันออกไปทางหน้าบ้าน เป็นห้องขนาดประมาณ 10 ตร.ม. สามารถจัดสรรให้เป็นห้องพระ ห้องนอน ห้องนั่งเล่น รวมไปถึงห้องออกกำลังกายเล็กๆก็ได้

บรรยากาศของห้องนอนเล็กที่สองมีสเป็คและขนาดใกล้เคียงกับห้องนอนเล็กที่หนึ่ง แตกต่างกันตรงที่ระเบียงห้องนี้ไม่ได้เป็นแบบ Outdoor รับลมได้จากทุกด้านเหมือนห้องนอนเล็กแรก แต่จะเป็นระเบียงที่มีหลังคา และช่องรับลมสามด้านตามภาพ

จะเห็นว่าด้านหลังบ้านแฝดเป็นส่วนของทาวน์โฮมที่มีหลังบ้านชิดกัน แต่สับหว่างตัวบ้านด้วยรั้วโดยให้รั้วทาวน์โฮมอยู่บริเวณกึ่งกลางของรั้วบ้านแฝดแต่ละหลัง ดังนั้น หลังบ้านของทาวน์โฮมกับบ้านแฝดจะไม่ตรงกันนั่นเอง
ทําเล & การเดินทาง
วิเคราะห์ศักยภาพทำเล
ตัวโครงการตั้งอยู่ในทำเลที่เป็นจุดเชื่อมต่อของเส้นทางคมนาคมระหว่างถนนแจ้งวัฒนะและรามอินทรา โดยมีสถานที่เด่นๆ อย่างสนามบินดอนเมือง ที่ช่วยเพิ่มมูลค่าให้กับทำเลนี้ รวมถึงรัศมีใกล้เคียงโดยรอบ หลังจากสนามบินดอนเมืองกลับมาใช้บินเชิงพาณิชย์ควบคู่กับสนามบินสุวรรณภูมิอีกครั้ง รวมถึงการสร้างถนนตัดใหม่วิภาวดี – พหลโยธินขนาด 6 ช่องจราจร ระยะทางกว่า 4 กม. ใกล้ๆ กับร้านเจ๊เล้ง สนามบินดอนเมือง นับเป็นปัจจัยที่มีส่วนสำคัญต่อตลาดอสังหาริมทรัพย์ และพลิกให้ทำเลวิภาวดี-รังสิตกลับมาคึกคักอีกครั้ง มีโครงการที่อยู่อาศัยทั้งแนวราบและคอนโดมิเนียมโลว์ไรส์ใหม่ๆ เกิดขึ้น และสามารถรองรับดีมานด์จากกลุ่มเป้าหมายที่ทำงานในพื้นที่ นักธุรกิจที่มีกิจการในย่านดังกล่าว หรือกระทั้งกลุ่มครอบครัวที่มีบุตรหลานศึกษาในระดับมหาวิทยาลัยอยู่ในย่านนี้ ซึ่งปัจจุบันราคาที่ดินในทำเลนี้พุ่งขึ้นมาถึง 250,000 บาทต่อตร.ว.จากอานิสงส์ต่างๆ ที่กล่าวมา
ที่ผ่านมาจะเห็นว่า การขยายโครงข่ายการคมนาคมส่งผลต่อการพัฒนาโครงการที่อยู่อาศัย ไม่ว่าจะเป็นโครงการรถไฟชานเมืองสายสีแดง (บางซื่อ – รังสิต) และโครงการรถไฟฟ้าสายสีชมพู (แคราย – มีนบุรี) ที่มีจุดตัดกับถนนวิภาวดีรังสิต ที่สถานีหลักสี่ ใกล้กับแยกหลักสี่พอดี โครงการดังกล่าวถือเป็นเส้นทางคมนาคมในอนาคตที่เข้ามาเติมเต็มศักยภาพทำเลนี้ให้น่าสนใจขึ้นไปอีก ซึ่งนอกจากดีเวลลอปเปอร์ทั้งในพื้นที่เองหรือผู้พัฒนาระดับบิ๊กเนมจะให้ความสนใจ และกำลังทยอยเข้ามาล้อมรั้วพื้นที่เปล่าบริเวณนี้แล้ว อานิสงส์ในส่วนนี้จะช่วยผลักดันให้กลุ่มครอบครัวที่ต้องการขยายที่อยู่อาศัยให้ใกล้กับตัวเมืองและเดินทางสะดวกให้เข้ามาหลั่งไหลเข้ามาอีกด้วย
วิเคราะห์ทำเลที่ตั้งโครงการ
ชวนชื่น โมดัส วิภาวดี ตั้งอยู่ริมถนนวิภาวดี-รังสิต ใกล้แยกหลักสี่ เยื้องกับไอทีสแควร์ และใกล้กับจุดขึ้น-ลงโทบบ์เวย์ด่านหลักสี่ ซึ่งในอนาคตบริเวณแยกนี้จะเป็นจุดตัดของโครงการรถไฟฟ้าสีชมพู และรถไฟฟ้าชานเมืองสายสีแดง บริเวณสถานีหลักสี่ (ซึ่งคาดว่าจะให้บริการได้ในปี 2562 – 2563) จากภาพจะเห็นว่าที่ตั้งโครงการมีศักยภาพที่เด่นสุดในเรื่องของการเดินทางไปยังเส้นทางสายสำคัญอื่นๆ ได้ ไม่ว่าจะเป็นสนามบินดอนเมือง ศูนย์ราชการแจ้งวัฒนะ สู่รามอินทรา มหาวิทยาลัยเกษตรศาสตร์ ทั้งนี้บริเวณแยกหลักสี่ระหว่างสนามบินดอนเมืองกับตัวโครงการจะเป็นที่ตั้งของร้านเจ๊เล้ง ซึ่งจะเป็นถนนเลียบคลองเชื่อมต่อเส้นทางบนถนนวิภาวดีเข้ากับพหลโยธิน – รัตนโกสินทร์สมโภช ซึ่งสามารถเดินทางไปยังถนนพหลโยธินได้จากทางนี้ได้เช่นกัน ถือเป็นถนนที่ช่วยคลายการจราจรที่หนาแน่นในชั่วโมงเร่งด่วนหากใครที่ต้องการเดินทางไปสู่ถนนพหลโยธิน และด้วยอานิสงส์ของเส้นทางคมนาคมตั้งแต่อดีตจนถึงปัจจุบันประกอบกับโครงการรถไฟฟ้าต่างๆ ที่จะเกิดขึ้นในอนาคตบริเวณที่ตั้งโครงการนี้เองจะเป็นตัวที่บ่งบอกถึงความเจริญในอนาคตที่ประกอบไปด้วยสาธารณูปโภคที่ครบครันจากเดิมที่มีอยู่แล้ว และสิ่งเหล่านี้จะเป็นตัวชี้วัดถึงกลุ่มดีมานด์ทั้งในพื้นที่และที่กำลังหาทำเลที่เหมาะสมและตอบโจทย์ไลฟ์สไตล์ของกลุ่มครอบครัวขยายได้ ซึ่งหากในอนาคตโครงข่ายการคมนาคมทุกเส้นทางเปิดใช้บริการเต็มรูปแบบจะเรียกว่าพื้นที่บริเวณที่ตั้งโครงการเป็นทำเลแนวราบที่เรียกว่าชานเมืองก็คงไม่สามารถพูดได้เต็มปากแล้ว
การเดินทาง

การเดินทางเริ่มต้นจากถนนเส้นหลักอย่างถนนศรีอยุธยาที่เป็นเส้นทางเชื่อมต่อหลายส่วนทั้งพระราม 9, ราชเทวี, อนุสาวรีย์ชัยสมรภูมิ และฝั่งพระนคร

จากถนนศรีอยุธยาให้มุ่งตรงไป และขึ้นสะพานข้ามแยกพญาไท พยายามอยู่เลนซ้ายไว้เพราะเมื่อลงสะพานจะต้องเบี่ยงเข้าทางเบี่ยงใต้สะพาน

เมื่อเลี้ยวขวามาจะเจออุโมงค์ข้ามแยกประชาสงเคราะห์ ให้เบี่ยงเข้าไปทางซ้ายเพื่อเตรียมตัวเลี้ยวซ้ายเข้าสู่ถนนวิภาวดี-รังสิต

เมื่อวิ่งตรงมาเรื่อยๆ จะเจอป้ายเกษตรศาสตร์ ให้เบี่ยงออกซ้ายแต่ไม่ต้องขึ้นยูเทิร์นไปทางเกษตรฯ ให้เบี่ยงซ้ายไปตามป้ายหลักสี่

จากนั้นให้ขับไปตามป้ายรามอินทรา จะบังคับเข้าสู่ยูเทิร์นไปแยกรามอินทรา ระหว่างกลับรถจะเห็นร้านเจ๊เล้งอยู่บริเวณซ้ายมือ
สถานที่แนวไลฟ์สไตล์
สถานที่ไลฟ์สไตล์ส่วนใหญ่จะแบ่งออกเป็น 2 ฝั่งคือฝั่งถนนรามอินทรา และถนนแจ้งวัฒนะ ซึ่งประกอบไปด้วยห้างเซ็นทรัลทั้งสองฝั่ง และมีไฮเปอร์มอลล์ให้เลือกจับจ่ายใช้สอย รวมไปถึงตลาดยิ่งเจริญที่เป็นแหล่งรวมของทั้งอาหารสดอาหารสำเร็จรูป และยังมีคอมมูนิตี้มอลล์อย่าง ดิ อเวนิวทางฝั่งแจ้งวัฒนะ และร้านอาหารชื่อดังอีกมากมาย
เทสโก้ โลตัส หลักสี่ 2.3 กม.
เซ็นทรัล รามอินทรา 2.6 กม.
เดอะ อเวนิว แจ้งวัฒนะ 3 กม.
บิ๊กซี ดอนเมือง 3.5 กม.
ตลาดยิ่งเจริญ 4.5 กม.
แหลมเจริญซีฟู้ด รามอินทรา 5 กม.
เซ็นทรัล แจ้งวัฒนะ 7 กม.
บทวิเคราะห์
วิเคราะห์อัตรผลตอบแทนที่จะได้รับ
โครงการ ชวนชื่น โมดัส วิภาวดี เป็นโครงการที่ตั้งอยู่บนจุดศูนย์กลางการคมนาคมที่มีภาษีที่ดีในอนาคตก็จริง แต่ด้วยลักษณะโครงการที่เป็นบ้านแฝดที่มีราคาเริ่มต้นระดับ 10 ล้าน ที่เหมาะกับการซื้อเพื่ออยู่อาศัยเอง หรือหากจะปล่อยขายอาจจะต้องถือในระยะยาว แม้อาจจะต้องแข่งขันกับคู่แข่งบ้านเดี่ยวราคาคือๆ กันในรัศมีใกล้ๆ กัน แต่ก็ยังอยู่ในตัวเลือกของการซื้อขายที่ง่าย เนื่องจากโครงการบ้านระดับ 10 ล้านบนถนนวิภาวดีฯ ยังถือว่ามีไม่มาก หากเลือกที่จะเข้ามาปักถิ่นฐานบริเวณนี้ก็ต้องดูว่าที่ตั้งโครงการสามารถตอบโจทย์ชีวิตได้ครบครันหรือไม่ ฟังก์ชั่นที่ต้องการเป็นแบบไหนเพราะปัจจุบันความเป็นบ้านเดี่ยวและบ้านแฝดแตกต่างกันเพียงนิดเดียวเท่านั้น
เปรียบเทียบกับโครงการอื่น
บ้านกลางเมือง วิภาวดี
เจ้าของโครงการ: บริษัท เอพี (ไทยแลนด์) จำกัด (มหาชน)
โครงการตั้งอยู่: แขวงตลาดบางเขน เขตหลักสี่ กรุงเทพฯ
เนื้อที่โครงการ: 19-0-86.4 ไร่
ลักษณะโครงการ: ทาวน์โฮม 3 ชั้นครึ่ง หน้ากว้าง 5 เมตร จำนวน 207 ยูนิต ที่ดินแปลงมาตรฐาน 20 ตารางวา
รูปแบบบ้าน: Design A ที่ดินเริ่มต้น 20 ตารางวา พื้นที่ใช้สอย 193 ตารางเมตร 3 ห้องนอน 4 ห้องน้ำ 2 ที่จอดรถ, Design B ที่ดินเริ่มต้น 20 ตารางวา พื้นที่ใช้สอย 193 ตารางเมตร 3 ห้องนอน 4 ห้องน้ำ 2 ที่จอดรถ
ราคาเริ่มต้น: 5.99 ล้านบาท
ทาวน์ อเวนิว ซิกซ์ตี้ วิภาวดี 60
เจ้าของโครงการ: บริษัท แสนสิริ จำกัด (มหาชน)
ที่ตั้งโครงการ: หลักสี่
เนื้อที่โครงการ: 18-1-96.09 ไร่
ลักษณะโครงการ: ทาวน์โฮม 3 ชั้น หน้ากว้าง 5 เมตร พื้นที่ใช้สอยประมาณ 162 ตร.ม. ที่ดินแปลงมาตรฐาน 20.6 – 71 ตร.วา จำนวน159 ยูนิต
ราคาเริ่มต้น: 5.79 – 11 ล้านบาท
สรุป
พื้นที่บริเวณถนนวิภาวดีฯ ยังถือว่าเป็นทำเลใหม่ของบ้านตลาดบนอยู่ เพราะในรัศมีของสนามบินดอนเมือง หรือรัศมีของมหาวิทยาลัยเกษตรศาสตร์ยังถือว่ามีกลุ่มตลาดระดับนี้ที่ยังน้อยนัก แต่ด้วยข้อจำกัดในการสร้างตึกสูง จึงเป็นข้อได้เปรียบของบริเวณนี้ก็คือความสดใหม่ของทำเลที่สามารถพัฒนาได้อีกไกลในรูปแบบของอสังหาริมทรัพย์แนวราบ รวมไปถึงในเรื่องของสาธารณูปโภคและความสะดวกสบายต่างๆ ที่จะเพิ่มเข้ามาเรื่อยๆ แต่หากมองในเรื่องของดีมานด์ตลาดอสังหาริมทรัพย์แนวราบในปัจจุบันแล้ว หากไม่ใช่กลุ่มคนพื้นที่ที่กำลังมองหาที่อยู่อาศัยใหม่แล้ว การที่จะมีดีมานด์ใหม่ๆ เข้ามาบนทำเลนี้ยังถือว่ายากหากเปรียบกับทำเลที่เป็นแหล่งกระจุกตัวของโครงการบ้านในทำเลชานเมืองอื่นๆ ถึงแม้จะมีโครงข่ายคมนาคมเข้ามาซัพพอร์ทในอนาคตอันใกล้นี้ แต่ก็ยังถือว่าล่าช้ากว่าทำเลบ้านเดี่ยวอื่นๆ ดังนั้น การเลือกที่อยู่อาศัยในบริเวณนี้ สิ่งที่ควรคำนึงถึงก็คือเป็นโครงการที่สามารถตอบโจทย์การใช้ชีวิตได้มากน้อยแค่ไหน รวมถึงความเหมาะสมของราคา โดยสามารถดูได้จากการเปรียบเทียบโครงการบริเวณใกล้เคียงที่มีลักษณะคล้ายๆ กัน หากราคาเริ่มต้นไม่ได้บวกความเป็นอนาคตเข้าไปก็ถือว่า โครงการ ชวนชื่น โมดัส วิภาวดี เป็นโครงการบ้านระดับ 10 ล้านที่น่าสนใจไม่ใช่น้อย



































































