โครงการเวนิว ฟอร์ม บางนา-ศรีวารี (Venue Form Bangna-Srivaree) โดยบริษัท เอสซี แอสเสท คอร์ปอเรชั่น จำกัด (มหาชน) โครงการบ้านเดี่ยว 2 ชั้น จำนวน 164 ครอบครัว โดดเด่นด้วยดีไซน์ Mid-Century Modern มาพร้อมฟังก์ชันใหม่ Vertical Form ที่ออกแบบโถงสูงโปร่งถึง 6 เมตร พื้นที่ใช้สอยสูงสุดถึง 310 ตารางเมตร รองรับทั้งครอบครัวขนาดเล็กและครอบครัวขยาย ด้วย 4 ห้องนอน 5 ห้องน้ำ และที่จอดรถ 3 คัน ตั้งอยู่บนทำเลศักยภาพที่เดินทางสะดวกเชื่อมต่อถนนเส้นหลักหลายสาย อาทิ ถนนเทพรัตน (บางนา–ตราด), ถนนลาดกระบัง อีกทั้งยังใกล้ท่าอากาศยานสุวรรณภูมิเพียง 15 นาที และยังใกล้ทางพิเศษบูรพาวิถี ราคาเริ่มต้น 6.99-12 ล้านบาท
ทำเลลาดพร้าวถือเป็นทำเลที่มีบริเวณกว้างและมีผู้คนอยู่อาศัยจำนวนมาก ซึ่งปัจจุบันกำลังก่อสร้างรถไฟฟ้าสายสีเหลือง (ลาดพร้าว-สำโรง) จึงทำให้ดีเวลลอปเปอร์ให้ความสนใจมากขึ้น และเริ่มจับจองพื้นที่เพื่อลงทุนสร้างอสังหาริมทรัพย์ต่างๆกันอย่างคึกคัก
โครงการ Nord ลาดพร้าว 110 เป็นอีกโครงการหนึ่งที่จับจองพื้นที่ซอยลาดพร้าว 110 ในคอนเซปที่พักอาศัยที่อยู่ท่ามกลางการโอบล้อมของธรรมชาติในทุกมิติ ภายใน “บ้าน” ที่มอบสัมผัสเรียบง่ายให้ความสุขในทุกรายละเอียด ให้ความเป็นส่วนตัว ในราคาเริ่มต้นที่ 11.9 ล้านบาท
ข้อมูลโครงการ Nord ลาดพร้าว 110
ผู้พัฒนาโครงการ: Assetta Development Co., Ltd.
ทำเลที่ตั้ง: 87 ซอย สนธิวัฒนา ซอย ลาดพร้าว 110 แยก 4 แขวง พลับพลา เขต วังทองหลาง กรุงเทพมหานคร
พื้นที่โครงการ: 1-0-29 ไร่
พื้นที่ใช้สอย: 285 ตารางเมตร
ลักษณะของโครงการ: ทาวน์โฮม 3.5 ชั้น 3 ห้องนอน 4 ห้องน้ำ หน้ากว้าง 6.2 เมตร ที่จอดรถ 2 คัน จำนวน 9 ยูนิต
สิ่งอำนวยความสะดวก: ระบบรักษาความปลอดภัย 24 ชั่วโมง,กล้องวงจรปิด และระบบกันขโมย,ระบบไฟฟ้าใต้ดินทั้งโครงการ ถนนภายในโครงการกว้าง 8 เมตร
เริ่มก่อสร้าง: ไตรมาสที่ 3 พ.ศ.2561
ปีที่แล้วเสร็จ: ไตรมาสที่ 3 พ.ศ.2562
ราคาเริ่มต้น: 11.9 ล้านบาท
บทความที่เกี่ยวข้องกับการกู้ซื้อบ้าน คอนโดฯ
เงินเดือนเท่านี้จะกู้ซื้อบ้าน คอนโดฯ ได้เท่าไหร่
อัพเดทอัตราดอกเบี้ยสินเชื่อบ้าน กู้ซื้อบ้าน
รวมเทคนิคการกู้ซื้อบ้านที่คนอยากมีบ้านต้องรู้
รายละเอียดโครงการ
ภาพรวมโครงการ Nord ลาดพร้าว 110
โครงการ Nord ลาดพร้าว 110 จาก Assetta Development Co., Ltd. โครงการทาวน์โฮม 3.5 ชั้น 3 ห้องนอน 4 ห้องน้ำ หน้ากว้าง 6.2 เมตร เพดานสูง 6เมตร พื้นที่ใช้สอย 285 ตารางเมตร ถนนภายในโครงการกว้าง 8 เมตร โครงการนอร์ด ลาดพร้าว 110 (Nord Ladprao 110) เป็นโครงการ Exclusive 9 ยูนิตที่ให้ความเป็นส่วนตัวด้วยโครงการแบบGated Community ระบบไฟฟ้าใต้ดินทั้งโครงการ มีระบบรักษาความปลอดภัย 24 ชั่วโมง มีกล้องวงจรปิด และระบบกันขโมย มีพื้นที่โครงการทั้งหมด 1-0-29 ไร่ ราคาเริ่มต้น 11.9 ล้านบาท
Master Plan
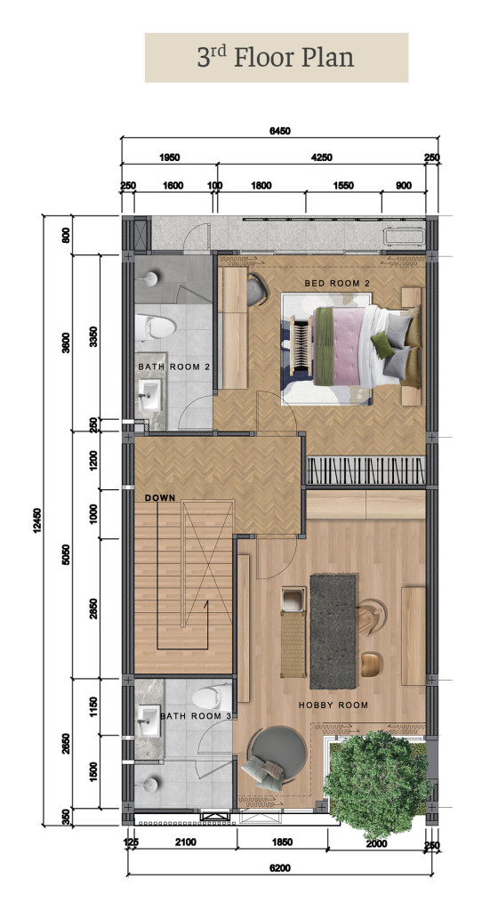
Floor Plan
ผังตัวบ้านมีทั้งหมด 3.5 ชั้น ชั้น 1 เป็นส่วนของที่จอดรถ สามารถจอดได้ 2 คัน ด้านใน เป็นพื้นที่ห้องนั่งเล่นหรือห้องรับแขกเชื่อมต่อกับส่วนรับประทานอาหาร และสวนหลังบ้าน
ภายในบ้านมีชั้นลอยเป็นทางเดินและห้องซักรีด ส่วนที่ชั้น 2 มีห้อง Master Bedroom เต็มชั้น มีห้องน้ำ อ่างอาบน้ำ และ Walk in Closet ชั้น 3 เป็นห้องนอนเล็ก 2 ห้อง พร้อมห้องน้ำในตัว
ภาพจำลองโครงการ
Double Volume Living Area
Double Volume Living Area
Kitchen & Dining Room
En Suite Master Bedroom
Walk-in Closet
Bathroom
ทําเล & การเดินทาง
ทำเลและการเดินทางของโครงการ Nord ลาดพร้าว 110
โครงการ Nord ลาดพร้าว 110 ตั้งอยู่ในซอยลาดพร้าว 110 แยก 4 เข้ามาจากปากซอยประมาณ 600 เมตร เนื่องจากเป็นย่านที่มีผู้คนอาศัยอยู่เป็นจำนวนมาก เรื่องอาหารการกินและจึงไม่น่าเป็นห่วง
รวมถึงร้านสะดวกซื้อต่าง ๆ ก็หาได้ไม่ยาก ทั้ง Lotus BigC และ 7-11 ซอยลาดพร้าว 110 สามารถเป็นทางลัดไปสู้ถนนรามคำแหงและย่านทาวน์อินทาวน์ได้
การเดินทางโดยรถยนต์ สามารถเข้าสู่โครงการทางปากซอยลาดพร้าว 110 สามารถเดินทางไปได้ทั้งทางถนนลาดพร้าว รามคำแหง และเกษตรนวมินทร์
การเดินทางโดยรถสาธารณะ ในปัจจุบัน้องเดินทางโดยรถเมล์ รถตู้ แท็กซี่ และวินมอเตอร์ไซค์ และในอนาคตจะมีรถไฟฟ้าสายสีเหลืองเส้นลาดพร้าว-สำโรงผ่านบริเวณถนนลาดพร้าว สถานีที่ใกล้ที่สุดคือสถานีฉลองรัช ก็จะทำให้เดินทางสะดวกสบายมากขึ้น รวมถึงการจราจรก็จะดีขึ้น รถติดน้อยลง
สถานที่สำคัญใกล้เคียงโครงการ
สถานที่ไลฟ์สไตล์
- Big C ลาดพร้าว 5 กิโลเมตร
- Foodland ลาดพร้าว 5 กิโลเมตร
- PARC ทาวน์อินทาวน์ 8 กิโลเมตร
- The Scene ทาวน์อินทาวน์ 0 กิโลเมตร
- CDC 2 กิโลเมตร
- ต้นซุง อเวนิว 4 กิโลเมตร
- ตะวันนา 7 กิโลเมตร
- Major รามคำแหง 7 กิโลเมตร
- The Mall บางกะปิ 8 กิโลเมตร
- The Mall รามคำแหง 4 กิโลเมตร
- Tesco Lotus บางกะปิ 5 กิโลเมตร
- Big C รามคำแหง 6 กิโลเมตร
- ตลาดบางกะปิ 8 กิโลเมตร
- The Crystal 0 กิโลเมตร
- Central Festival Eastville 5.3 กิโลเมตร
สถานศึกษา
- รร.บดินทร์เดชา (สิงห์ สิงหเสนีย์) 6 กิโลเมตร
- รร.อุดมศึกษา 7 กิโลเมตร
- ม.รามคำแหง 4 กิโลเมตร
- รร.นานาชาติ SISB 6 กิโลเมตร
- รร.นานาชาติ The Regent 7 กิโลเมตร
- รร.นานาชาติ Lycee Francais 8 กิโลเมตร
- สถาบันรัชต์ภาคย์ 0 กิโลเมตร
- ม.อัสสัมชัน 6 กิโลเมตร
- รร.นานาชาติ KIS 8 กิโลเมตร
- รร.บางกะปิ 1 กิโลเมตร
สถานพยาบาล
- รพ.ลาดพร้าว 4 กิโลเมตร
- รพ.ปิยเวช 7 กิโลเมตร
- รพ.กรุงเทพ 0 กิโลเมตร
- รพ.พระราม 9 8 กิโลเมตร
สรุป
โครงการ Nord ลาดพร้าว 110 เหมาะกับใคร?
โครงการ Nord ลาดพร้าว 110 เป็นโครงการที่เน้นเรื่องการใช้พื้นที่ได้อย่างหลากหลาย มีพื้นที่สีเขียวเพิ่มความเป็นธรรมชาติ โครงการเหมาะสำหรับครอบครัวขนาดกลาง ที่ทำงานและเดินทางอยู่ในย่านนี้ ส่วนภาพรวมโครงการถือเป็นโครงการที่มีความเป็นส่วนตัวสูง เหมาะสมกับราคา
แต่ทั้งนี้เอง ปัจจุบันลาดพร้าวเป็นทำเลที่ขึ้นชื่อว่ารถติดมาก ในปัจจุบันมีการก่อสร้างรถไฟฟ้าอยู่ทำให้รถติดตลอดทั้งวัน จึงต้องมีการวางแผนการเดินทางก่อนออกจากบ้าน
สำหรับด้านการลงทุน เนื่องจากเป็นโครงการที่มีเพียง 9 ยูนิต และไมไ่ด้อยู่ในพื้นที่ย่านธุรกิจ อาจจะยังไม่เหมาะสำหรับการลงทุน
เพิ่มเติมความรู้ คู่มือซื้อ ขาย เช่าบ้าน-คอนโดฯ พร้อมส่งตรงถึงอีเมล์ของคุณฟรี สมัครได้ที่นี่ และสามารถเลือกชม โครงการใหม่ พร้อม รีวิวโครงการคอนโดใหม่ บ้านใหม่ หลากหลายทำเลและราคาได้เช่นกัน














