เคฟ ซี้ด เกษตร (Kave Seed Kaset) คอนโด Low Rise 8 ชั้น 3 อาคาร จำนวน 600 ยูนิต ออกแบบภาพใต้แนวคิด SYNC WITH THE NATURE เชื่อมต่อพื้นที่พักอาศัยและพื้นที่สำหรับทำกิจกรรมต่าง ๆ เข้าไว้ด้วยกันอย่างลงตัว มาพร้อมสิ่งอำนวยความสะดวกและพื้นที่ส่วนกลางแบบจัดเต็มกว่า 30 รายการ และระบบจอดรถอัตโนมัติ Auto Parking ในราคาเริ่มต้นเพียง 2.29 ล้านบาท
[Special Advertising Feature] ทำเลสะพานใหม่ถูกเปลี่ยนโฉมครั้งใหญ่จากการมาถึงของรถไฟฟ้าสายสีเขียว ช่วงหมอชิต-สะพานใหม่-คูคต ทำให้แต่เดิมที่ทำเลนี้เป็นชุมชนขนาดใหญ่ที่มีรูปแบบที่อยู่อาศัยส่วนใหญ่เป็นแนวราบถูกพัฒนาเป็นโครงการแนวสูงอย่างคอนโดมิเนียมมากขึ้น เพื่อตอบรับไลฟ์สไตล์คนรุ่นใหม่ และผู้ที่ต้องการที่อยู่อาศัยที่สามารถเดินทางเข้าสู่ใจกลางเมืองได้อย่างสะดวกสบาย ในราคาที่เอื้อมถึงได้ โดยโครงการหนึ่งที่น่าสนใจ โดดเด่นด้วยสิ่งอำนวยความสะดวกที่ครบครัน จองเพียง 999 บาท ก็พร้อมเข้าอยู่ได้ทันที คือ โครงการวินน์ คอนโด พหลโยธิน 52 ตั้งอยู่ใน ซ.พหลโยธิน 52 ห่างจากรถไฟฟ้าสายสีเขียว สถานีสะพานใหม่เพียง 300 เมตร พร้อมการตกแต่งแบบ Fully Furnished อุ่นใจด้วยระบบ Digital Door Lock ในราคาเริ่มต้นเพียง 1.64 ล้านบาท
เจาะลึกข้อมูลโครงการ
ชื่อโครงการ: วินน์ คอนโด พหลโยธิน 52
ผู้พัฒนาโครงการ: บริษัท แอสเซทไวส์ จำกัด
(อ่านรีวิวโครงการอื่นของ แอสเซทไวส์)
ทำเลที่ตั้ง: ซ.พหลโยธิน 52 ถ.พหลโยธิน แขวงอนุสาวรีย์ เขตบางเขน กรุงเทพฯ
เว็บไซต์: www.assetwise.co.th/condominium/wynn-phahol52/
โทร: 08-7414-5252
รายละเอียดโครงการ(ข้อมูล ณ วันที่ 26/3/2561)
พื้นที่โครงการ: 2-0-16 ไร่
ลักษณะโครงการ: คอนโดมิเนียมสูง 8 ชั้น 3 อาคาร จำนวน 275 ยูนิต
กลุ่มเป้าหมาย: คนทำงานใจกลางเมือง และคนในพื้นที่ ซื้อเพื่ออยู่อาศัยเองและลงทุนปล่อยเช่า
สถานะการก่อสร้าง: สร้างเสร็จพร้อมอยู่
ลิฟท์: อาคารละ 2 ตัว
ที่จอดรถ: 42% รวมซ้อนคัน
สิ่งอำนวยความสะดวก: Double Volume Lobby, Co-working Space, ห้องสมุด, ฟิตเนส, สระว่ายน้ำ, พื้นที่สีเขียว, Starlight Terrace, Grill Bar, Chill Out Area, Sky Yoga Deck และ Loft Landscape
ระบบรักษาความปลอดภัย: เข้าออกโถงลิฟท์และส่วนพักอาศัยด้วยระบบ Key Card Access กล้อง CCTV พร้อมพนักงานรักษาความปลอดภัยตลอด 24 ชั่วโมง ระบบลิฟท์ล็อกชั้น และล็อกอาคาร และระบบ Digital Door Lock
สถานะการขาย: ขายได้ประมาณ 80%
เงื่อนไขการชำระเงิน: จองเพียง 999 บาท พร้อมเข้าอยู่
เงินกองทุนสะสม: 500 บาท/ตารางเมตร
ค่าส่วนกลาง: 45 บาท/ตารางเมตร/เดือน (จ่ายล่วงหน้า 2 ปี)
ราคาเริ่มต้น: 1.64 ล้านบาท
ราคาเฉลี่ย: 73,400 บาท/ตารางเมตร
อัพเดทอัตราดอกเบี้ยสินเชื่อบ้าน กู้ซื้อบ้าน ที่อัพเดททุกเดือน และ คำนวณสินเชื่อเพื่อที่อยู่อาศัยด้วยตนเองได้ที่นี่
*โปรโมชั่น
– ห้องขนาด 23 ตารางเมตร ราคาพิเศษ One price รับส่วนลด 150,000-180,000 บาท
– ฟรีค่าใช้จ่าย ณ วันโอนฯ
รูปแบบห้อง
– Studio: 22.83 ตร.ม. จำนวน 4 units
– 1 Bedroom: 23.47-26.50 ตร.ม. จำนวน 148 units
– 1 Bedroom Extra: 24.89-33.79 ตร.ม. จำนวน 21 units
– 1 Bedroom Exclusive: 27.26-34.92 ตร.ม. จำนวน 38 units
– 1 Bedroom Plus: 33.86-49.14 ตร.ม. จำนวน 48 units
– 2 Bedrooms: 50.31-54.49 ตร.ม. จำนวน 16 units
รายละเอียดโครงการ
รีวิวภาพรวมโครงการ
สวยอย่างมีสไตล์กับอาคารแนวคิด Modern Luxury ที่สวยงามโดดเด่นทุกมุมมอง ครบครันด้วยสิ่งอำนวยความสะดวกระดับห้าดาว หลากหลายฟังก์ชั่น ที่ตอบโจทย์คนเมืองได้เป็นอย่างดี
การวางทิศทางโครงการ
ทิศเหนือ: ซ.พหลโยธิน 52 และอาคารพาณิชย์สูง 3 ชั้น
ทิศใต้: ซ.พหลโยธิน 52 ที่อยู่อาศัย 2 ชั้น และที่ดินรอการพัฒนา
ทิศตะวันออก: ซ.พหลโยธิน 52 และอาคารพาณิชย์สูง 3 ชั้น
ทิศตะวันตก: ซ.พหลโยธิน 52 และที่ดินรอการพัฒนา
รอบโครงการติด ซ.พหลโยธิน 52 ทำให้ไม่มีตึกสูงในระยะประชิด ด้านหน้าโครงการหรือทิศเหนือและทิศตะวันออกฝั่งตรงข้ามถนนเป็นอาคารพาณิชย์สูง 3 ชั้น ทิศตะวันตกเฉียงเหนือเป็นที่อยู่อาศัย 2 ชั้น ทิศตะวันตกเดิมเป็นที่อยู่อาศัย 2 ชั้น คาดว่าจะมีการพัฒนาโครงการในอนาคต ส่วนทิศใต้เป็นที่อยู่อาศัย 2 ชั้น ด้านข้างกำลังมีการปรับพื้นที่เตรียมพัฒนาโครงการเช่นกัน
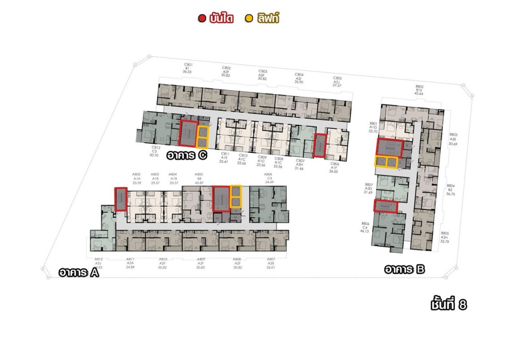
Floor Plan

ชั้นที่ 2 อาคาร A เป็นชั้นพักอาศัย ล็อบบี้ และสระว่ายน้ำ อาคาร B เป็นชั้นพักอาศัย และอาคาร C เป็นชั้นพักอาศัย

ชั้นที่ 3 อาคาร A เป็นชั้นพักอาศัย ห้องสมุด ห้องประชุม และฟิตเนส อาคาร B เป็นชั้นพักอาศัย และอาคาร C เป็นชั้นพักอาศัย

ชั้นที่ 4 อาคาร A เป็นชั้นพักอาศัย สวน และพื้นที่นั่งพักผ่อน อาคาร B เป็นชั้นพักอาศัย และอาคาร C เป็นชั้นพักอาศัย

ชั้นดาดฟ้า อาคาร B เป็นพื้นที่สวน Starlight terrace ชมวิวเมือง และ Grill bar พื้นที่ปาร์ตี้ อาคาร C เป็นพื้นที่สวน Sky view terrace พื้นที่นั่งชมวิวเมือง และ Grill bar พื้นที่ปาร์ตี้
Unit Layout

ห้องแบบ 1 ห้องนอน 1 ห้องน้ำ + แยกส่วน (1 Bedroom Exclusive) พื้นที่ใช้สอยประมาณ 27.14-39.57 ตารางเมตร

ห้องแบบ 1 ห้องนอน 1ห้องน้ำ + ห้องอเนกประสงค์ (1 Bedroom Plus) พื้นที่ใช้สอยประมาณ 36.53-49.14 ตารางเมตร
สิ่งอำนวยความสะดวกภายในโครงการ

ทางเข้า-ออกโครงการทางเดียว มีป้อมพร้อมพนักงานรักษาความปลอดภัยตลอด 24 ชั่วโมง ด้านบนเป็นสิ่งอำนวยความสะดวกบนอาคาร A
รีวิวภายในห้องตัวอย่าง
ห้องออกแบบอย่างสวยหรู มีรสนิยม เข้าใจการใช้ชีวิตของคนรุ่นใหม่ โดยเลือกวัสดุเกรดพรีเมี่ยม ครบครันด้วยการตกแต่งแบบ Fully Furnished
สิ่งที่จะได้รับจากโครงการ
พื้น: สมาร์ทไวนิล
ผนัง:
พื้นจรดเพดานความสูง: 2.40 เมตร
เฟอร์นิเจอร์: ชั้นวางโทรทัศน์ โซฟาเบด โต๊ะกลาง ตู้เสื้อผ้าบิลท์อิน
เครื่องปรับอากาศ: Daikin ขนาด 12,000 btu
สุขภัณฑ์: อ่างล้างหน้า โถสุขภัณฑ์ ฝักบัว ของ Mogen
ชุดครัว: ตู้ครัวบิลท์อินบน-ล่าง อ่างล้างจานของ Techno
ห้องตัวอย่างขนาด 1 ห้องนอน พื้นที่ใช้สอยประมาณ 23 ตารางเมตร

ทางเดินหน้าห้องกว้างประมาณ 1.50 เมตร ประตูหน้าห้องกว้างประมาณ 90 เซนติเมตร สูงประมาณ 2 เมตร มาพร้อม Digital Door Lock

เข้ามาภายในห้องเป็นห้องครัว เชื่อมต่อกับห้องนั่งเล่น โปร่งโล่งด้วยเพดานสูง 2.40 เมตร พื้นปูสมาร์ทไวนิล

โซนหน้าห้องทางเดินกว้างประมาณ 1.3 เมตร ห้องครัวมาพร้อมกับตู้บิลท์อินบน-ล่าง ด้านข้างเว้นช่องว่างกว้างประมาณ 80 เซนติเมตร สามารถวางตู้เย็นขนาด 9.1 คิว ได้สบาย

ตรงข้ามเป็นห้องน้ำอุปกรณ์ครบครัน พื้นห้องน้ำดร็อปจากพื้นห้องประมาณ 3 เซนติเมตร พื้นที่อาบน้ำกั้นเป็นสัดส่วนด้วยประตูกระจกบานเลื่อนแบบ 3 ตอน ขอบประตูยกสูงประมาณ 7 เซนติเมตร พื้นและผนังปูกระเบื้องขนาด 40×25 เซนติเมตร และขนาด 60×30 เซนติเมตร

ห้องนอนขนาดใหญ่ มาพร้อมกับเตียงขนาด 5 ฟุต ที่แถมมาให้กับห้อง เปิดรับวิวมากขึ้นด้วยผนังกระจกเข้ามุม พร้อมหน้าต่างบานกระทุ้ง และประตูบานเลื่อนแบบสลับเชื่อมต่อกับระเบียง ขอบประตูยกสูงประมาณ 10 เซนติเมตร

ปลายเตียงตกแต่งเป็นโต๊ะเขียนหนังสือ ด้านข้างเป็นตู้เสื้อผ้าบิลท์อินที่แถมมาให้กับห้อง ห่างจากปลายเตียงประมาณ 1.15 เมตร

ระเบียงกว้างประมาณ 95 เซนติเมตร ยาวประมาณ 1.60 เมตร รั้วสูงประมาณ 95 เซนติเมตร พื้นปูกระเบื้องขนาด 30×30 เซนติเมตร ด้านบนติดตั้งคอมเพรสเซอร์เครื่องปรับอากาศ (ห้องจริงจะติดตั้งเครื่องเดียว) สูงจากพื้นประมาณ 1.65 เมตร พร้อมระแนงกั้นเพื่อความสวยงาม ด้านล่างมีก๊อกน้ำ และท่อระบายน้ำ สำหรับติดตั้งเครื่องซักผ้าให้เรียบร้อย
ห้องตัวอย่างขนาด 2 ห้องนอน พื้นที่ใช้สอยประมาณ 50 ตารางเมตร

เข้ามาภายในห้องเป็นห้องรับประทานอาหาร เชื่อมต่อกับห้องนั่งเล่น โปร่งโล่งด้วยเพดานสูง 2.40 เมตร พื้นปูสมาร์ทไวนิล

ทางเดินกว้างประมาณ 90 เซนติเมตร พื้นและผนังปูกระเบื้องขนาด 40×25 เซนติเมตร และขนาด 60×30 เซนติเมตร แบ่งเป็นสัดส่วนชัดเจนระหว่างห้องน้ำกับห้องอาบน้ำ เชื่อมต่อด้วยประตูกระจกบานสวิง ขอบประตูยกสูงฝั่งละประมาณ 8 เซนติเมตร

เชื่อมต่อกับห้องนั่งเล่นที่มาพร้อมโซฟาเบด โต๊ะกลาง และชั้นวางโทรทัศน์ ระยะดูโทรทัศน์กว้างประมาณ 1.60 เมตร เปิดรับวิวด้วยหน้าต่างกระจกบานเลื่อนแบบสลับ

ห้องครัวกั้นเป็นสัดส่วนด้วยประตูกระจกบานเลื่อนแบบสลับ มาพร้อมตู้ครัวบิลท์อินบน-ล่าง ด้านบนมีที่วางเตาไมโครเวฟ ด้านล่างมีช่องสำหรับวางเครื่องซักผ้า อ่างล้างจานของ Techno ด้านข้างมีพื้นที่ว่างประมาณ 75 เซนติเมตร วางตู้เย็นขนาด 9.1 คิว ได้สบายๆ พื้นปูกระเบื้องขนาด 60×30 เซนติเมตร

ระเบียงกั้นเป็นสัดส่วนด้วยประตูกระจกบานเลื่อนแบบสลับ ขอบประตูยกสูงประมาณ 10 เซนติเมตร ระเบียงกว้างประมาณ 90 เซนติเมตร ยาวประมาณ 1.80 เมตร รั้วสูงประมาณ 95 เซนติเมตร พื้นปูกระเบื้องขนาด 30×30 เซนติเมตร ด้านข้างติดตั้งคอมเพรสเซอร์เครื่องปรับอากาศ พร้อมระแนงกั้นเพื่อความสวยงาม ด้านล่างติดตั้งก๊อกน้ำ และท่อระบายน้ำให้เรียบร้อย

ห้องนอนเล็ก วางเตียงขนาด 3 ฟุต ได้สบาย ๆ ทางเดินข้างเตียงกว้างประมาณ 90 เซนติเมตร เปิดรับวิวเต็มที่ด้วยผนังกระจกเข้ามุม และหน้าต่างกระจกบานเลื่อนแบบสลับ ปลายเตียงตกแต่งเป็นตู้เสื้อผ้าบิลท์อิน
ทําเล & การเดินทาง
ศักยภาพทำเล
จากอานิสงส์ของรถไฟฟ้าสายสีเขียว ช่วงหมอชิต-สะพานใหม่-คูคต ทำให้ราคาที่ดินตลอดแนวรถไฟฟ้าปรับเพิ่มขึ้นอย่างต่อเนื่อง จากการสำรวจของคอลลิเออร์ส พบว่า ราคาที่ดินแนวรถไฟฟ้าสายสีเขียวเพิ่มสูงขึ้นกว่า 50% ในรอบ 3 ปีที่ผ่านมา ปัจจุบันราคาสูงที่สุดอยู่แนว ถ.พหลโยธิน 200,000-300,000 บาท/ตารางวา แต่ก็ยังถูกกว่าทำเลห้าแยกลาดพร้าวที่อยู่ที่ประมาณ 400,000-500,000 บาท/ตารางวา ส่วนที่ดินใน ซ.พหลโยธิน ราคาอยู่ที่ 80,000-150,000 บาท/ตารางวา
ที่อยู่อาศัยส่วนใหญ่เป็นรูปแบบคอนโดมิเนียม ทำเลที่มีการกระจุกตัวทำเลหนึ่งคือ สะพานใหม่ ซึ่งมีจำนวนยูนิตเหลือไม่มากนัก จากการสำรวจของศูนย์ข้อมูลวิจัยและประเมินค่าอสังหาริมทรัพย์ หรือ AREA พบว่า ภาพโดยรวมของทำเลสะพานใหม่มีขายสินค้าหลากหลาย แต่ส่วนใหญ่เป็นคอนโดมิเนียม จำนวนถึง 3,388 ยูนิต (กันยายน 2560) มูลค่าประมาณ 8,222 ล้านบาท ส่วนใหญ่ขายในระดับราคาไม่เกิน 3 ล้านบาท ขายได้แล้ว 46.60% หรือประมาณ 8.80% ต่อเดือน โดยคอนโดมิเนียมระดับราคา 1-2 ล้านบาท ขายได้ถึง 67.90% หรือประมาณ 6.40% ต่อเดือน โดยราคาคอนโดมิเนียมในย่านสะพานใหม่ยังถือว่าถูกกว่าย่านรัชโยธิน-ลาดพร้าวถึง 40% ทั้งที่อยู่บนรถไฟฟ้าสายเดียวกันและห่างกันเพียงไม่กี่สถานี ทั้งนี้ ในอนาคตคาดว่าราคาขายเฉลี่ยจะสูงขึ้นต่อเนื่องตามความคืบหน้าของการก่อสร้างเส้นทางรถไฟฟ้า โดยอาจจะเพิ่มขึ้นมากกว่า 10% ต่อปีหรือมากกว่านั้นในบางทำเล และภายหลังจากรถไฟฟ้าเปิดให้บริการในปี 2563
ทำเลที่ตั้งโครงการ
โครงการวินน์ คอนโด พหลโยธิน 52 ตั้งอยู่ใน ซ.พหลโยธิน 52 ซึ่งถือว่าเป็นทำเลที่สามารถเดินทางได้อย่างสะดวก และเลือกวิธีการเดินทางได้ไม่จำกัด เชื่อมต่อกับถนนสายสำคัญได้หลายสาย อาทิ ถ.แจ้งวัฒนะ ถ.รามอินทรา ถ.เกษตร-นวมินทร์ (ประเสริฐมนูกิจ) ถ.วิภาวดีรังสิต ถ.งามวงศ์วาน ถ.รัชดาภิเษก ถ.ลาดพร้าว ถ.ลำลูกกา และ ถ.รังสิต-นครนายก โดยอยู่ห่างจาก ถ.พหลโยธิน ประมาณ 300 เมตร สะดวกทั้งเดินทางเข้าเมืองและออกนอกเมือง ไม่ไกลจากทางยกระดับอุตราภิมุข (ดอนเมือง-โทลล์เวย์) ทางด่วนรามอินทรา-อาจณรงค์ และ ถ.กาญจนาภิเษก เดินทางไปต่างจังหวัดและต่างประเทศได้สะดวกขึ้นด้วยสนามบินดอนเมืองที่อยู่ไม่ไกลจากโครงการ
สะดวกสบายยิ่งขึ้นด้วยรถไฟฟ้าสายสีเขียว ช่วงหมอชิต-สะพานใหม่-คูคต ระยะทาง 19 กิโลเมตร เป็นสถานียกระดับ 16 สถานี ซึ่งจะเปิดให้บริการก่อน 1 สถานี คือ สถานีห้าแยกลาดพร้าว ในปี 2562 และเปิดบริการตลอดสายในปี 2563 โดยถือเป็นรถไฟฟ้าที่เชื่อมต่อกรุงเทพฯ กับ จ.ปทุมธานี และเป็นรถไฟฟ้าสายเดียวที่เชื่อมต่อสู่ใจกลางเมือง อาทิ สยาม อโศก ได้โดยไม่ต้องเปลี่ยนสาย โครงการวินน์ คอนโด พหลโยธิน 52 อยู่ห่างจากสถานีสะพานใหม่ เพียง 300 เมตรเท่านั้น
รถไฟฟ้าสายสีเขียว ช่วงหมอชิต-สะพานใหม่-คูคต สามารถเชื่อมต่อกับรถไฟฟ้าได้หลายสาย ดังนี้
– เชื่อมต่อรถไฟฟ้าสายสีชมพู แคราย-มีนบุรี ที่สถานีวงเวียนหลักสี่ (สถานีวัดพระศรีมหาธาตุของรถไฟฟ้าสายสีชมพู)
– เชื่อมต่อรถไฟฟ้า MRT ที่สถานีห้าแยกลาดพร้าว (สถานีพหลโยธินของรถไฟฟ้า MRT)
– เชื่อมต่อรถไฟฟ้า BTS และรถไฟฟ้า MRT ที่สถานีหมอชิต (สถานีจตุจักรของรถไฟฟ้า MRT)
นอกจากนี้ในทำเลสะพานใหม่ยังมีรถไฟฟ้าสายอนาคตที่พาดผ่านอีกถึง 2 สาย ได้แก่
– รถไฟฟ้าสายสีชมพู ช่วงแคราย-มีนบุรี ระยะทาง 34.5 กิโลเมตร จำนวน 30 สถานี ซึ่งจะเปิดให้บริการในปี 2564
– รถไฟฟ้าสายสีแดง ช่วงบางซื่อ-รังสิต ระยะทาง 26.3 กิโลเมตร จำนวน 10 สถานี ซึ่งจะเปิดให้บริการในปี 2563 เชื่อมต่อสนามบินดอนเมือง สถานีกลางบางซื่อ ฮับด้านการคมนาคมทั้งรถไฟฟ้าหลากสี และรถไฟความเร็วสูง นอกจากนี้ยังมีแผนเชื่อมต่อกับรถไฟฟ้าแอร์พอร์ต เรล ลิงก์ ทำให้ในอนาคตสามารถเชื่อมต่อไปถึงสนามบินสุวรรณภูมิด้วย
โครงการในอนาคต
– สถานีกลางบางซื่อ เนื้อที่รวม 2,325 ไร่ ศูนย์กลางของระบบคมนาคมทางรางที่ใหญ่ที่สุดในอาเซียน โดยจะเป็นจุดเชื่อมต่อของรถไฟฟ้าหลากสี รถไฟความเร็วสูง รถไฟรางคู่ รถขนส่งสินค้าและผู้โดยสาร นอกจากนี้ พื้นที่รอบสถานีกลางบางซื่อจะพัฒนาในเชิงพาณิชย์ บนเนื้อที่ 218 ไร่ ซึ่งจะมีทั้งสำนักงาน ห้างสรรพสินค้า ที่พักอาศัย พื้นที่นันทนาการ ศูนย์ประชุม และการแสดงสินค้าระดับประเทศ คาดว่าจะเปิดให้บริการในปี 2563
– รถไฟฟ้าสายสีน้ำตาล ช่วงแคราย-ลำสาลี (บึงกุ่ม) เส้นทางจะเริ่มต้นจากแยกแคราย ผ่าน ถ.งามวงศ์วาน ตามแนว ถ.ประเสริฐมนูกิจ ตัดเข้า ถ.นวมินทร์ และสิ้นสุดที่ ถ.รามคำแหง บริเวณแยกลำสาลี รวมระยะทาง 22 กิโลเมตร เบื้องต้นมีจำนวน 21 สถานี ปัจจุบันอยู่ระหว่างการศึกษาความเหมาะสมโครงการ
– ทางด่วน ส่วนต่อขยายแนวระบบทางด่วนขั้นที่ 3 สายเหนือ ตอน N2 และส่วนต่อขยายไปยังถนนวงแหวนรอบนอกฝั่งตะวันออก เชื่อมต่อกับทางพิเศษศรีรัช-ถนนวงแหวนรอบนอกฝั่งตะวันตก ระยะทางประมาณ 19 กิโลเมตร ปัจจุบันอยู่ระหว่างการศึกษาความเหมาะสมโครงการ
– การก่อสร้างส่วนขยายของสนามบินดอนเมืองเฟส 3 มูลค่ากว่า 3.2 หมื่นล้านบาท อาทิ การปรับปรุงอาคารที่พักผู้โดยสารในประเทศหลังเดิม การปรับปรุงช่องตรวจคนเข้าเมือง และเพิ่มเคาน์เตอร์เช็กอิน การปรับปรุงสะพานเทียบเครื่องบินหมายเลข 5 รวมทั้งโครงการศึกษาความเหมาะสมในการก่อสร้างโรงแรม และระบบขนส่งผู้โดยสารอัตโนมัติ คาดการณ์ว่าจะแล้วเสร็จในปี 2563
การเดินทาง
การเดินทางมาโครงการทำได้สะดวกมากโดยใช้ ถ.พหลโยธิน ดังนี้
สถานที่แนวไลฟ์สไตล์
ร้านอาหาร
ร้านครัวภูเวียง ร้านอาหารที่มีเมนูให้เลือกหลากหลายทั้งไทย อีสาน ญวน สเต็กและสลัด เปิดทุกวัน เวลา 10.30-21.00 น. ตั้งอยู่ในซอยโรงพยาบาลเซ็นทรัลเยนเนอรัล เข้ามาในซอยประมาณ 50 เมตร ห่างจากโครงการประมาณ 1.5 กิโลเมตร
ห้างสรรพสินค้าและแหล่งช้อปปิ้ง
ตลาดยิ่งเจริญ ตรงข้าม ซ.พหลโยธิน 52 ห่างจากโครงการประมาณ 600 เมตร
บิ๊กซี สะพานใหม่ ใกล้ ซ.พหลโยธิน 50 ห่างจากโครงการประมาณ 1.2 กิโลเมตร
เทสโก้ โลตัส หลักสี่ ตรงข้าม ซ.พหลโยธิน 57 ห่างจากโครงการประมาณ 2.6 กิโลเมตร
เซ็นทรัลพลาซา รามอินทรา ใกล้ ซ.รามอินทรา 3 ห่างจากโครงการประมาณ 3.9 กิโลเมตร
แม็กซ์แวลู หลักสี่ ใกล้ ซ.แจ้งวัฒนะ 4 แยก 9 ห่างจากโครงการประมาณ 5.1 กิโลเมตร
ไอทีสแควร์ หลักสี่ ใกล้แยกหลักสี่ ห่างจากโครงการประมาณ 6.3 กิโลเมตร
โรงพยาบาล
โรงพยาบาลเซ็นทรัลเยนเนอรัล ริม ถ.พหลโยธิน ห่างจากโครงการประมาณ 1.4 กิโลเมตร
โรงพยาบาลภูมิพลอดุลยเดช ริม ถ.พหลโยธิน ห่างจากโครงการประมาณ 2 กิโลเมตร
โรงพยาบาลจุฬาภรณ์ ริม ถ.กำแพงเพชร 6 ห่างจากโครงการประมาณ 8 กิโลเมตร
โรงพยาบาลมงกุฎวัฒนะ ระหว่าง ซ.แจ้งวัฒนะ 12 และ 14 ห่างจากโครงการประมาณ 8.6 กิโลเมตร
สถานศึกษา
โรงเรียนสารวิทยา ซ.พหลโยธิน 50 แยก 1 ห่างจากโครงการประมาณ 6.3 กิโลเมตร
โรงเรียนสาธิตแห่งมหาวิทยาลัยเกษตรศาสตร์ ใกล้แยกเกษตร ห่างจากโครงการประมาณ 9.5 กิโลเมตร
วิทยาลัยเทคโนโลยีสยามบริหารธุรกิจ ซ.พหลโยธิน 52 ห่างจากโครงการประมาณ 650 เมตร
มหาวิทยาลัยนอร์ทกรุงเทพ ซ.พหลโยธิน 52 ห่างจากโครงการประมาณ 550 เมตร
มหาวิทยาลัยเกริก ซ.รามอินทรา 1 ห่างจากโครงการประมาณ 3.8 กิโลเมตร
มหาวิทยาลัยราชภัฏพระนคร ริม ถ.แจ้งวัฒนะ ห่างจากโครงการประมาณ 4.1 กิโลเมตร
มหาวิทยาลัยศรีปทุม ใกล้ ซ.พหลโยธิน 46 ห่างจากโครงการประมาณ 6 กิโลเมตร
มหาวิทยาลัยเกษตรศาสตร์ ใกล้แยกเกษตร ห่างจากโครงการประมาณ 9.5 กิโลเมตร
บทวิเคราะห์
วิเคราะห์อัตราผลตอบแทนที่จะได้รับ
|
แบบห้องชุด |
ขนาด (ตร.ม.) |
ราคาปล่อยเช่า (บาท/ เดือน) |
|
1 ห้องนอน |
23 |
8,500 |
|
1 ห้องนอน พลัส |
45.87 |
15,000 |
เนื่องจากในทำเลสะพานใหม่รายล้อมด้วยแหล่งงานทั้งของภาครัฐ และเอกชน รวมทั้งยังใกล้มหาวิทยาลัยถึง 2 แห่ง จึงมีโอกาสสำหรับตลาดเช่าทั้งกลุ่มผู้ที่ทำงานในสนามบินดอนเมือง อาทิ นักบิน สจ๊วต/แอร์โฮสเตท และนักศึกษาในมหาวิทยาลัยนอร์ทกรุงเทพ และวิทยาลัยเทคโนโลยีสยามบริหารธุรกิจ วิทยาเขตสะพานใหม่ โดยห้องขนาด 1 ห้องนอน พื้นที่ใช้สอยประมาณ 23 ตารางเมตร ปล่อยเช่าได้ประมาณเดือนละ 8,500 บาท และห้องขนาด 1 ห้องนอน พลัส พื้นที่ใช้สอยประมาณ 45 ตารางเมตร ปล่อยเช่าได้ประมาณเดือนละ 15,000 บาท
เปรียบเทียบกับโครงการอื่น
|
ชื่อโครงการ |
ยูนิต |
พื้นที่ใช้สอย (ตร.ม.) |
ราคาเฉลี่ย (บาท/ตร.ม.) |
ราคาขาย (ล้านบาท) |
|
วินน์ คอนโด พหลโยธิน 52 |
310 |
22.83-54.49 |
70,000 |
1.7 |
|
ไนท์บริดจ์ สกาย ซิตี้ สะพานใหม่ |
25.52-48.32 |
100,000 |
2.79 |
ไนท์บริดจ์ สกาย ซิตี้ สะพานใหม่
เจ้าของโครงการ: บริษัท ออริจิ้น พร็อพเพอร์ตี้ จำกัด (มหาชน)
ทำเลที่ตั้ง: ระหว่าง ซ.พหลโยธิน 48 และ 50 ถ.พหลโยธิน แขวงอนุสาวรีย์ เขตบางเขน กรุงเทพฯ
โทร: 0-2030-0000
เว็บไซต์: http://knightsbridge.origin.co.th
เนื้อที่โครงการ: 2-3-56 ไร่
รายละเอียดโครงการ: คอนโดมิเนียมสูง 15 ชั้น จำนวน 490 ยูนิต
ราคาเริ่มต้น: 2.79 ล้านบาท
สิ่งอำนวยความสะดวก: ล็อบบี้ สวน ฟิตเนส และสระว่ายน้ำ
สถานะการก่อสร้าง: สร้างเสร็จพร้อมอยู่
โครงการตั้งอยู่ระหว่าง ซ.พหลโยธิน 48 และ 50 อยู่ใกล้รถไฟฟ้าสายสีเขียว สถานีสายหยุด มีห้องให้เลือกทั้งแบบ 1 และ 2 ห้องนอน พื้นที่ใช้สอย 25.52-48.32 ตารางเมตร
โครงการคอนโดมิเนียมส่วนใหญ่ในทำเลสะพานใหม่จะพัฒนาตามแนวรถไฟฟ้าสายสีเขียว ซึ่งแน่นอนว่าใกล้รถไฟฟ้ามากกว่า แต่สิ่งที่ตามมาคือความวุ่นวายเนื่องจากติดถนนใหญ่ และราคาที่สูงกว่าคอนโดมิเนียมในซอย ซึ่งโครงการติดรถไฟฟ้าที่นำมาเปรียบเทียบอย่างไนท์บริดจ์ สกาย ซิตี้ สะพานใหม่ ราคาต่อหน่วยพุ่งไปอยู่ที่ 2.79 ล้านบาท ในขณะที่โครงการวินน์ คอนโด พหลโยธิน 52 เริ่มต้นเพียง 1.7 ล้านบาท แต่สามารถเข้าถึงรถไฟฟ้าได้ไม่ยากเพราะห่างเพียง 300 เมตร
สรุป
โครงการวินน์ คอนโด พหลโยธิน 52 เหมาะกับใคร?
โครงการวินน์ คอนโด พหลโยธิน 52 ตั้งอยู่ใน ซ.พหลโยธิน 52 ถือเป็นอีกหนึ่งโครงการในทำเลศักยภาพอย่างสะพานใหม่ซึ่งเป็นชุมชนดั้งเดิมที่ครบครันในการอยู่อาศัย รายล้อมด้วยสิ่งอำนวยความสะดวกมากมาย เดินทางได้สะดวก เชื่อมต่อถนนสายสำคัญได้หลายสาย อาทิ ถ.แจ้งวัฒนะ ถ.รามอินทรา ถ.เกษตร-นวมินทร์ (ประเสริฐมนูกิจ) ถ.วิภาวดีรังสิต ถ.งามวงศ์วาน ถ.รัชดาภิเษก ถ.ลาดพร้าว ถ.ลำลูกกา และ ถ.รังสิต-นครนายก ใกล้ทางยกระดับอุตราภิมุข (ดอนเมือง-โทลเวย์) ทางด่วนรามอินทรา-อาจณรงค์ และ ถ.กาญจนาภิเษก ไม่ไกลจากสนามบินดอนเมือง
สะดวกสบายยิ่งขึ้นด้วยรถไฟฟ้าสายสีเขียว ช่วงหมอชิต-สะพานใหม่-คูคต สถานีสะพานใหม่ ซึ่งห่างจากโครงการเพียง 300 เมตรเท่านั้น สามารถเดินทางไป จ.ปทุมธานี หรือเลือกเดินทางเข้าสู่ใจกลางเมือง อาทิ สยาม อโศก ได้โดยไม่ต้องเปลี่ยนสาย
โครงการออกแบบอย่างสวยงาม และมีสไตล์ ด้วยแนวคิด Modern Luxury ที่สวยงามโดดเด่นทุกมุมมอง ครบครันด้วยสิ่งอำนวยความสะดวกระดับห้าดาว หลากหลายฟังก์ชั่น ที่ตอบโจทย์คนเมืองได้เป็นอย่างดี อาทิ ล็อบบี้เพดานสูง สระว่ายน้ำ ฟิตเนส ห้องสมุด สวนพักผ่อนและมุมปาร์ตี้บนชั้นดาดฟ้า
ห้องออกแบบอย่างสวยหรู โดยเลือกวัสดุเกรดพรีเมี่ยม ครบครันด้วยการตกแต่งแบบ Fully Furnished ที่ให้มาพร้อมทั้งตู้ครัวบิลท์อิน ชั้นวางโทรทัศน์ โซฟาเบด โต๊ะกลาง เตียงขนาด 5 ฟุต ตู้เสื้อผ้าบิลท์อิน และเครื่องปรับอากาศ
ปัจจุบันราคาเริ่มต้นเพียง 1.64 ล้านบาท ซึ่งถือว่าถูกกว่าโครงการติดถนนใหญ่ค่อนข้างมาก ที่สำคัญเป็นโครงการสร้างเสร็จแล้ว โดยจองเพียง 999 บาท และยังมีโปรโมชั่นผ่อนล้านละ 999บ./เดือน อีกด้วย สามารถเข้าอยู่ได้ทันที จึงเป็นอีกหนึ่งโครงการที่รองรับการเดินทางในอนาคตที่ควรจับจองเป็นอย่างยิ่ง
ก่อนตัดสินใจซื้อหรือขายหรือให้เช่าหรือเช่าอสังหาฯ ศึกษาข้อมูลเพิ่มเติม ได้ที่ รายงานดัชนีอสังหาฯ DDproperty Property Index และ
รายงานภาพรวมตลาดอสังหาริมทรัพย์ DDproperty Property Market Outlook











































































