แลนด์มาร์ค แอท แกรนด์สเตชั่น บาย ไซมิส แอสเสท (Landmark At Grand Station By Siamese Asset) เป็นโครงการมิกซ์ยูส บนทำเลศักยภาพ ตรงข้ามแฟชั่นไอส์แลนด์ ใกล้รถไฟฟ้าสายสีชมพู สถานีวงแหวนรามอินทรา เพียง 400 เมตร ภายในห้องออกแบบเป็น 2 ชั้น เพดานสูง 4.15 เมตร เน้นความโปร่ง โล่ง พร้อมออกแบบห้องตามพฤติกรรมและไลฟ์สไตล์ที่แตกต่างกัน ไม่ว่าจะเป็นห้องพักสำหรับผู้สูงอายุ คนที่มีสัตว์เลี้ยงหรือห้องพักในรูปแบบ Co-living และห้องพักแบบมาตรฐาน ภายในโครงการครบครันด้วยสิ่งอำนวยความสะดวกทั้งพื้นที่พักอาศัย โรงแรม ร้านค้า ร้านอาหาร และสำนักงาน ราคาเริ่มต้นเพียง 2.90 ล้านบาท
สนใจ คอนโดฯ ในโครงการนี้? เลือกชม รายการประกาศ ราคาโดนใจ
ในช่วงที่เศรษฐกิจมีการฟื้นตัวค่อนข้างช้า ปัจจัยในการตัดสินใจซื้อที่อยู่อาศัยหรือการลงทุนอสังหาริมทรัพย์ก็เป็นเรื่องที่ยากขึ้นแต่เนื่องจากที่อยู่อาศัยถือเป็นปัจจัยสำคัญของการดำรงชีวิต ไม่ว่าสภาพเศรษฐกิจจะชะลอตัวแค่ไหน หากมีโครงการในทำเลที่ใช่ โปรดักส์ที่ตรง เหล่าผู้ประกอบการก็ยังคงมองเห็นถึงโอกาสในการเจาะกำลังซื้อที่มีอยู่อย่างสม่ำเสมอ และ “เดอะ เนสท์ พร็อพเพอร์ตี้” ก็เป็นอีกหนึ่งในผู้พัฒนาที่มีคุณสมบัติตรงกับสิ่งเหล่านั้น จนเป็นที่มาของโครงการคอนโดมิเนียมโลว์ไรส์แห่งใหม่ในทำเลไพร์มของย่านสุขุมวิทอย่าง “เดอะ เนสท์ สุขุมวิท 22”
หลังจากเก็บเกี่ยวประสบการณ์จากการพัฒนาคอนโดมิเนียมโลว์ไรส์ชื่อแบรนด์เดียวกับบริษัทอย่าง “เดอะ เนสท์ เพลินจิต” ได้ไม่นาน เดอะ เนสท์ พร็อพเพอร์ตี้ก็เดินหน้าต่อยอดความสำเร็จอีกครั้งกับโครงการใหม่อย่าง “เดอะ เนสท์ สุขุมวิท 22” จากการศึกษาตลาดคอนโดมิเนียมโลว์ไรส์อย่างจริงจังที่ผ่านมา พบว่าสิ่งที่ตอบโจทย์ความต้องการของลูกค้าในเมืองได้ดี คือการพัฒนาโครงการในทำเลที่ใช่ ตอบโจทย์ไลฟ์สไตล์คนเมือง ในราคาที่คุ้มค่า มีสิ่งอำนวยความสะดวกครบ โดยอีกหนึ่งไฮไลท์ของเดอะ เนสท์ สุขุมวิท 22 คือการตั้งอยู่ใกล้กับสถานีรถไฟฟ้าทั้ง MRT และ BTS โดยในวันนี้เราจะมารีวิวโครงการดังกล่าวกันแบบเจาะลึก
เจาะลึกข้อมูลโครงการ
ชื่อโครงการ: เดอะ เนสท์ สุขุมวิท 22 (The Nest Sukhumvit 22)
ผู้พัฒนาโครงการ: เดอะ เนสท์ พร็อพเพอร์ตี้ (The Nest Property)
ทำเลที่ตั้ง: ซอยม้าศึก ถนนสุขุมวิท 22 แขวงคลองเตย เขตคลองเตย กรุงเทพมหานคร 10110
เว็บไซต์: http://www.thenestcondo.com/index.html
โทร: 02-251-8688 #312
รายละเอียดโครงการ (ข้อมูล ณ วันที่ 30 กันยายน 2558)
พื้นที่โครงการ: 2-2-65.4 ไร่
รูปแบบ: อาคารชุดพักอาศัยความสูง 8 ชั้น จำนวน 2 อาคาร รวม 316 ยูนิต (ตึก A: 200 ห้อง, ตึก B: 116 ห้อง)
กลุ่มเป้าหมาย: ผู้ที่ต้องการอาศัยอยู่เอง, ผู้ที่ต้องการหาที่อยู่อาศัยใกล้สถานที่ทำงาน
สถานะการก่อสร้าง: เดือนสิงหาคม 2558
คาดว่าจะแล้วเสร็จ: เดือน กันยายน 2560
ลิฟท์โดยสาร: 4 ตัว (อาคาร A: 2 ตัว, อาคาร B: 2 ตัว)
ส่วนกลาง: สระว่ายระบบเกลือ, ห้องออกกำลังกาย, พื้นที่นั่งเล่นภายในโครงการ
ที่จอดรถ: 40% ของตัวตึก หรือ 105 คัน (ใต้ตึก A และตึก B) หากรวมในเรื่องของการจอดซ้อนก็จะจอดได้ประมาณ 125 คัน ที่จอดรถเป็นแบบไม่ได้ล็อคที่ สามารถจอดตรงไหนก็ได้
ระบบรักษาความปลอดภัย : คีย์การ์ด, ระบบโทรทัศน์วงจรปิด (CCTV), เจ้าหน้าที่รักษาความปลอดภัย 24 ชั่วโมง
สถานะการขาย: 30% (ข้อมูล ณ วันที่ 30 ก.ย. 58)
ค่าส่วนกลาง: 50 บาท/ ตร.ม./ เดือน (จัดเก็บล่วงหน้า 1 ปี)
เงินกองทุน : 600 บาท/ ตร.ม. ชำระครั้งเดียว ณ วันโอนกรรมสิทธิ
พื้นที่ใช้สอยเริ่มต้น: 24 ตร.ม.
ราคาเฉลี่ย: 119,182 ต่อตร.ม.
ราคาเริ่มต้น: 2.67 ล้านบาท
รูปแบบห้อง: 3 รูปแบบ ได้แก่ Studio พื้นที่ใช้สอยเริ่มต้น 23.2-28.2 ตร.ม.ม, 1 ห้องนอน พื้นที่ใช้สอยเริ่มต้น 32.8-36.8 ตร.ม., 2 ห้องนอน พื้นที่ใช้สอยเริ่มต้น 40.6-56.8 ตร.ม.
รายละเอียดโครงการ
รีวิวภาพรวมโครงการ
จุดเด่นของโครงการเดอะ เนสท์ สุขุมวิท 22 คือการออกแบบให้ห้องทุกห้องมีหน้ากว้างถึง 7.5 เมตร ภายใต้บรรยากาศที่โล่งโปร่งสบายอาจทำให้ขนาดห้องดูกว้างขึ้น บริเวณรอบโครงการมีมุมพักผ่อนหลากหลายสไตล์ตั้งแต่ศาลาริมสวนไปจนถึงลานปิ้งบาร์บีคิวเพื่อให้สอดรับกับความเป็นส่วนตัวท่ามกลางธรรมชาติ แม้ไฮไลท์ที่ชูเรื่องการเดินทางว่าใกล้สถานีรถไฟฟ้าถึงสามจุด แม้ระยะห่างจากตัวโครงการไม่ไกลมากนัก แต่การเดินทางไปยังสถานีต่างๆ จะต้องใช้เวลาอย่างน้อย 10-15 นาที ขึ้นอยู่กับสภาพการจราจร

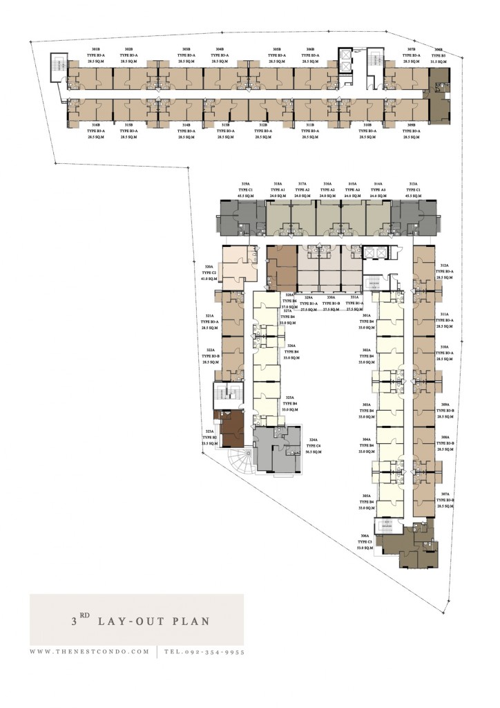
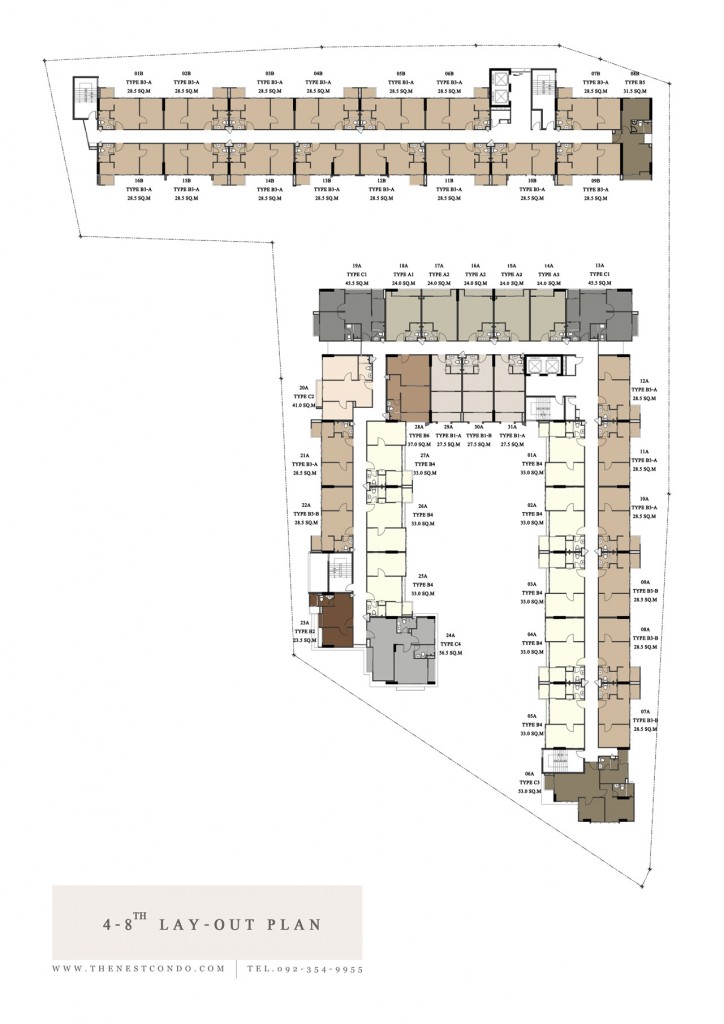
Lay-Out Plan บริเวณชั้นหนึ่งเป็นส่วนของพื้นที่จอดรถ บริเวณตรงกลางจะเป็นล็อบบี้ สระว่ายน้ำ สวนหย่อม และฟิตเนส
รูปแบบห้อง
แบบห้อง Studio พื้นที่ใช้สอยเริ่มต้น 23.2-28.2 ตร.ม.

ห้องรูปแบบ Studio Type A1 ขนาด 24 ตร.ม. เมื่อเปิดประตูเข้ามาจะพบห้องน้ำทางขวามือ ทางซ้ายเป็นครัว และด้านในห้องเป็นเตียงนอน มีระเบียงอยู่ด้านในสุด
แบบห้อง 1 ห้องนอน พื้นที่ใช้สอยเริ่มต้น 32.8-36.8 ตร.ม.

ห้องรูปแบบ 1 ห้องนอน Type B1 อาคาร A ขนาด 27.5 ตร.ม. ห้องถูกแบ่งเป็นสัดส่วนมีโซนนั่งเล่นและครัว ห้องน้ำอยู่ด้านหน้าสุดของตัวห้อง มีผนังกันห้องนอนกับโซนนั่งเล่น ภายในห้องนอนมีระเบียง

ห้องรูปแบบ 1 ห้องนอน Type B1-B อาคาร B ขนาด 27.5 ตร.ม. จะเห็นได้ว่าห้องนอนรูปแบบนี้มีขนาดเท่ากันกับห้องที่อยู่ในส่วนของอาคาร A

ห้องรูปแบบ 1 ห้องนอน Type B3-B ขนาด 28.5 ตร.ม. อาคาร B มีรูปแบบไม่ต่างจากขนาดห้องเท่ากันที่อยู่ในอาคาร A
แบบห้อง 2 ห้องนอน พื้นที่ใช้สอยเริ่มต้น 40.6-56.8 ตร.ม.

รูปแบบ 2 ห้องนอน Type C1 ขนาด 45.5 ตร.ม. อาคาร A ห้องรูปแบบนี้มี Master Bedroom หนึ่งห้องซึ่งมีระเบียงและห้องน้ำในตัว และมีห้องนอนเล็กอีกห้อง กั้นผนังเป็นสัดส่วน ครัวอยู่บริเวณหลังโซนนั่งเล่น ภายในโซนนั่งเล่นมีระเบียงของห้องอยู่ และมีห้องน้ำส่วนกลางอยู่ด้านหน้าสุดของห้อง

รูปแบบ 2 ห้องนอน Type C2 ขนาด 41.0 ตร.ม. อาคาร A ห้องรูปแบบนี้ห้องนอนใหญ่จะไม่มีห้องน้ำในตัว ระหว่างห้องนอนหนึ่งและห้องนอนสองจะมีโซนนั่งเล่นคั่นระหว่างห้องไว้

รูปแบบ 2 ห้องนอน Type C3 ขนาด 53.0 ตร.ม. อาคาร A ห้องนอนใหญ่รูปแบบนี้มีห้องน้ำในตัวแต่ไม่เชื่อมต่อกับระเบียง แต่จะมีระเบียงบริเวณโซนนั่งเล่นและบริเวณห้องครัว
ภาพรวมภายนอก

ภายในที่ดินของโครงการเดอะเนสท์ สุขุมวิท 22 ด้านขวาของตัวโครงการอยู่ติดกับร้านอาหารมัลลิการ์ที่ออกแบบร้านเป็นทรงเรือนไทย

พื้นที่ด้านหลังโครงการมีแมนชั่นติดอยู่กับด้านหลังโครงการสองอาคาร มีความสูงประมาณ 5-6 ชั้น แบบห้องตัวอย่าง
การวางทิศทางของโครงการ
ทิศเหนือ เป็นในส่วนของหลังโครงการ ประกอบไปด้วยอพาร์ทเมนต์ และคอนโดฯ สูงประมาณ 4-5 ชั้น
ทิศใต้ หน้าโครงการ มองออกมาด้านนอกจะเป็นอาคารพาณิชย์ความสูลประมาณ 2-4 ชั้น ฝั่งตรงข้ามโครงการ เป็นสถานรับเลี้ยงเด็ก พร้อมร้านค้า บาร์เบอร์ เรียงรายตลอดเส้น
ทิศตะวันออก ทิศนี้โดนบดบังวิวไปโดยปริยาย เพราะตัวโครงการอยู่ติดกับคอนโดมิเนียม Aguston ของค่ายเมเจอร์ฯ ซึ่งสูงกว่าตึกของโครงการมาก และด้านข้างๆ ก็มีงานก่อสร้าง น่าจะเป็นแมนชั่นสูงประมาณ 4-5 ชั้น
ทิศตะวันตก ติดร้านอาหารชื่อดังเรือนมัลลิการ์ บริเวณด้านนี้ไม่ค่อยมีสิ่งปลูกสร้างเท่าไหร่ หากอาศัยอยู่ตั้งแต่ระดับชั้น 3 ขึ้นไปน่าจะมองเห็นวิวภายในซอยสุขุมวิท 22 ได้
รีวิวห้องตัวอย่าง

พื้นที่ห้องเป็นแบบหน้ากว้างประมาณ 7.5 เมตร ห้องจริงกระจกที่กั้นห้องนอนกับโซนนั่งเล่นจะเป็นผนังทึบ และมีประตูเปิดเข้า-ออก

เมื่อเปิดประตูเข้ามาทางด้านขวามือจะเป็นพื้นที่สำหรับโต๊ะอาหาร ในภาพผนังจะเป็นกระจก แต่ถ้าเป็นห้องจริงจะเป็นผนังสีขาวฉาบเรียบ ในส่วนของโต๊ะอาหารเป็นเพียงไอเดียการตกแต่งเท่านั้น

เตียงนอนทางโครงการไม่ได้จัดเตรียมไว้ให้ แต่เตียงในห้องตัวอย่างเป็นขนาด 5 ฟุต สามารถเปลี่ยนไซส์เตียงเป็นขนาดคิงไซส์ได้ ตามมาตรฐานของห้องนอนทั่วไป

ตู้เสื้อผ้าแบบ Built-In ที่ทางโครงการเตียมไว้ให้ เป็นตู้ไม้สีขาว แบ่งออกเป็นตู้แขวนเสื้อผ้า และช่องเก็บของทางด้านขวามือ

พื้นที่ในส่วนของโต๊ะเครื่องแป้งหรือโต๊ะทำงาน ทางโครงการไม่ได้มีส่วนนี้ให้ การเลือกวัสดุอุปกรณ์ในโซนนี้จึงขึ้นอยู่กับผู้อาศัย

เนื่องจากเคาน์เตอร์ไม่ใหญ่มาก พื้นที่เตรียมครัวระหว่างเตาและซิ้งค์จึงมีพื้นที่ไม่ใหญ่มาก เวลาหยิบจับอะไรอาจต้องระวัง

ด้านล่างเคาน์เตอร์ครัวเป็นช่องสำหรับเก็บเตา ลิ้นชักด้านล่างสุดสามารถดึงออกมาได้ แต่คงไม่สะดวกในการใช้งานเท่าไหร่นัก

ก็อกอาบน้ำเป็นแบบโยกซ้าย-ขวา มีระบบทำน้ำอุ่นติดตั้งไว้เรียบร้อย แต่ทางโครงการไม่ได้ให้เครื่องทำน้ำอุ่นมาด้วย

ภายในห้องอาบน้ำจะมีหน้าต่างขอบอลูมิเนียมขนาดประมาณ 30×90 ซม. สำหรับระบายอากาศ สามารถล็อคได้ด้วยระบบกดมือขึ้น-ลง
สิ่งที่จะได้รับจากโครงการ
เฟอร์นิเจอร์: เฟอร์นิเจอร์ที่ติดกับผนังโครงสร้างทั้งหมด อาทิ ตู้เสื้อผ้า Built-In บานประตูสีขาว, ชุดครัว Built-In พร้อมอ่างล้างจาน เครื่องดูดควัน และเตา เป็นของ Quid แบรนด์นำเข้าจากเยอรมัน
ประตูทางเข้าหลัก: บานประตู UPVC ลายไม้สีขาว มือจับแบบเขาควายและอุปกรณ์
ประตูภายใน: บานประตู UPVC ลายไม้สีขาว มือจับแบบลูกบิดและอุปกรณ์
ประตูห้องน้ำ: บานประตู UPVC สีขาวมีช่องเกล็ดระบายอากาศเศษหนึ่งส่วนสี่ของบานประตู มือจับแบบลูกบิดพร้อมอุปกรณ์
พื้นห้อง: ไม้ลามิเนตหนา 8 มม.
พื้นครัว: พื้นกระเบื้อง Porcelain ขนาด 30 x 60 ซม. / ไม้ลามิเนต
พื้นระเบียง: พื้นกระเบื้อง Ceramic ขนาด 30 x 30 ซม.
ผนังห้อง: ผนังก่ออิฐ ฉาบปูนเรียบ ทาสีขาว
ผนังห้องน้ำ: ผนังก่ออิฐ ปูกระเบื้อง Ceramic (ด้านใน), ผนังก่ออิฐ ฉาบปูนเรียน ทาสี (ด้านนอก)
หน้าต่าง: วงกบและกรอบบานอลูมิเนียม Anodized สีดำ กระจกใส
ราวระเบียง: ทาสีดำกันสนิม กึ่งมัน กึ่งด้าน
ฝ้าเพดาน: ยิปซั่มบอร์ด ฉาบเรียบ
พื้นจรดเพดาน: ความสูง 2.45 ม.
หน้าห้องกว้าง: 7.5 ม.
ระบบไฟ: โคมไฟ Downlight พร้อมหลอดไฟ Compact (ภายใน), โคมไฟ Wall Mount พร้อมหลอดไฟ Compact (ระเบียง)
สุขภัณฑ์: เป็นของ American Standard, Mogen หรือเทียบเท่า
เครื่องปรับอากาศ: ระบบ Split Type ทางโครงการมอบให้ 2 ตัว เป็นของ ไดกิ้น หรือเทียบเท่า
สิ่งอำนวยความสะดวกภายในโครงการ
ลิฟท์โดยสาร: 4 ตัว (อาคาร A: 2 ตัว, อาคาร B: 2 ตัว)
ส่วนกลาง: สระว่ายระบบเกลือ, ห้องออกกำลังกาย, พื้นที่นั่งเล่นภายในโครงการ อยู่บริเวณชั้นหนึ่งของโครงการ อาคาร A
ที่จอดรถ: 40% ของตัวตึก หรือ 105 คัน (ใต้ตึก A และตึก B) หากรวมในเรื่องของการจอดซ้อนก็จะจอดได้ประมาณ 125 คัน ที่จอดรถเป็นแบบไม่ได้ล็อคที่ สามารถจอดตรงไหนก็ได้
ระบบรักษาความปลอดภัย: คีย์การ์ด, ระบบโทรทัศน์วงจรปิด (CCTV), เจ้าหน้าที่รักษาความปลอดภัย 24 ชั่วโมง
ทําเล & การเดินทาง
วิเคราะห์ศักยภาพทำเล
อย่างที่ทราบกันดีอยู่แล้ว ทำเลสุขุมวิทเป็นทำเลที่มีศักยภาพทางเศรษฐกิจ และเป็นแหล่งการค้าที่สำคัญ ซอยทะลุที่เชื่อมต่อกันตั้งแต่ซอยสุขุมวิท 16, 18, 20, 22 ไปจนถึง 26 รวมไปถึงพื้นที่ติดแนวรถไฟฟ้าตลอดทั้งสาย เป็นทำเลที่ได้รับความสนใจจากทั้งผู้ประกอบการและผู้อยู่อาศัย นอกจากนี้ ยังเป็นทำเลที่ชาวต่างชาตินิยมมาอาศัยหรือลงทุนเป็นจำนวนมาก โดยจะเห็นได้ว่าหลายปีที่ผ่านมามีห้างสรรพสินค้าชั้นนำเกิดขึ้นมากมายตลอดแนวถนนสองฝั่ง โดยเฉพาะระหว่างสุขุมวิทซอย 22 และซอยสุขุมวิท 24 ซึ่งถือเป็นเซ็นเตอร์พอยต์ของถนนเส้นนี้ ไม่กี่ปีที่ผ่านมามีการสร้างดีลการซื้อขายที่ดินประวัติศาสตร์ระหว่างสองซอยเพื่อใช้เป็นทางเชื่อมต่อเข้า-ออกหากันได้ในราคาที่สูงถึง 2 ล้านบาทต่อตร.ว. ซึ่งปัจจุบันซอยสุขุมวิท 24 จะดูดีมีภาษีกว่าซอยสุขุมวิท 22 เพราะมีห้างอย่าง ดิ เอ็มโพเรียมและสถานีรถไฟฟ้าพร้อมพงษ์ตั้งอยู่หน้าซอย แต่หากมองในอนาคตบริเวณใกล้ๆ กับปากซอย 22 ก็จะมีอีกหนึ่งห้างของตระกูล “เอ็ม” อย่าง ดิ เอ็มสเฟียร์ ขึ้นมาเสริมเช่นกัน โอกาสที่ราคาที่ดินในย่านสุขุมวิทโซน เดอะ เอ็ม ดิสทริค จะพุ่งทะยานออกไปไกลอีกย่อมมีมากขึ้นด้วย ถึงแม้พื้นที่ว่างในย่านนี้จะเหลือน้อยเต็มที แต่พื้นที่ในซอยส่วนใหญ่ที่เป็นเป็นตึกแถวหรือที่ดินเก่าแก่ของคนย่านนี้ก็จะมีมูลค่าเพิ่มขึ้นไปตามเวลาและระดับการพัฒนาของพื้นที่นั่นเอง
วิเคราะห์ทำเลที่ตั้งโครงการ
ตัวโครงการอยู่ในซอยย่อยของซอยสุขุมวิท 22 หรือซอยเศรษฐีทวีทรัพย์ ถึงตัวโครงการจะไม่ได้ติดกับแนวรถไฟฟ้าเสียทีเดียว แต่ในช่วงเวลาที่ไม่ได้รีบเร่งอะไรก็สามารถเดินเท้าไปสู่สถานีบีทีเอสพร้อมพงษ์ได้ไม่ยากในระยะทางไม่ถึง 1 กม. ซึ่งถ้าออกไปยังถนนรัชดาภิเษกจะพบ MRT สถานีศูนย์การประชุมแห่งชาติศูนย์สิริกิติ์ที่ห่างจากตัวโครงการประมาณ 600 เมตร หากออกไปทางซอยสุขุมวิท 16 ก็จะพบ BTS สถานีอโศกห่างจากโครงการประมาณ 800 เมตร บริเวณที่ตั้งของโครงการจะมีวินมอเตอร์ไซค์อยู่หน้าโครงการเลย ภายในซอยสุขุมวิท 22 เป็นที่ตั้งโรงแรมชื่อดัง คอนโดมิเนียมระดับไฮเอนด์ รวมไปถึงโรงเรียนสายน้ำผึ้ง ข้อดีหลักๆ ของทำเลที่ตั้งโครงการคือสามารถทะลุไปยังถนนสายหลักอย่างถนนพระราม 4, ถนนรัชดาภิเษก และสุขุมวิทได้ หากผู้อยู่อาศัยมีรถยนต์ส่วนตัวจะไปไหนมาไหนได้สะดวกยิ่งขึ้น อย่างไรก็ดี หากเป็นผู้ที่ใช้รถใช้ถนนในย่านนี้เป็นประจำ คงจะทราบกันดีอยู่แล้วว่าในชั่วโมงเร่งด่วน ปริมาณการจราจรในย่านนี้ก็ติดขัดอยู่ไม่น้อย ในส่วนของผู้อยู่อาศัยดั้งเดิมซึ่งเป็นคนพื้นที่ในซอยสุขุมวิท 22 ส่วนใหญ่อาศัยอยู่ในตึกแถวที่มีเรียงรายตลอดสองฝั่งของซอย หากไม่ได้มองถึงสภาพแวดล้อมในด้านนี้ ทำเลนี้ถือว่าพร้อมและสะดวกสำหรับไลฟ์สไตล์คนเมืองที่กำลังมองหาคอนโดมิเนียมในราคาที่จับต้องได้

เมื่อเลย Terminal 21 จะเห็นป้ายกลับรถแรกถ้าวิ่งเลนซ้ายจะติดรถข้างหน้าที่กำลังกลับรถ ให้เบี่ยงออกมาวิ่งเลนกลาง วิ่งตรงเลยที่กลับรถแรกจาก Terminal 21 ไปแล้วเบี่ยงเข้าเลนซ้าย

ตรงเลยทางลัดออกถนนพระรามสี่มาจะเจอสี่แยก มีรถวิ่งสวนไปมาพลุกพล่าน ให้สังเกตุด้านขวามือจะมีซอยเศรษฐีทวีทรัพย์ซึ่งเป็นซอยที่ตั้งโครงการ มีเซเว่นฯอยู่บริเวณปากซอย

ตรงเข้ามาไม่เกิน 400 เมตร จะพบกับสำนักงานขายอยู่ระหว่างพื้นที่โครงการ ด้านซ้ายของสำนักงานขายเป็นที่จอดรถ 1 คัน

บริเวณไซต์โครงการเดอะเนสท์ สุขุมวิท 22 อยู่ทางด้านขวาและซ้ายของตัวสำนักงานขาย ซึ่งเมื่อเริ่มก่อสร้างจะต้องทุบสำนักงานขายทิ้งไปด้วย เพราะปัจจุบันสำนักงานขายตั้งอยู่บนพื้นที่โครงการ
การเดินทาง
MRT
หากมาจาก MRT สถานีศูนย์การประชุมสิริกิติ์จะอยู่ห่างจากตัวโครงการประมาณ 600 เมตร สามารถนั่งมอเตอร์ไซค์วินขึ้นมาทางตลาดหลักทรัพย์แห่งประเทศไทย แล้วเลี้ยวซ้ายเข้าถนนพระราม 4 จะมีซอยทางลัดชื่อซอยไผ่สิงโต ซึ่งเมื่อตรงเข้าไปตามซอยให้เลี้ยวขวาแยกแรก และเลี้ยวซ้ายแยกสอง จะเจอสี่แยก ระหว่างสี่แยกถนนทางขวามือจะเป็นตัวโครงการ แต่ดันเป็นถนนวันเวย์ที่รถวิ่งออกมา ดังนั้นจะต้องตรงข้ามแยกไปเลี้ยวขวาด้านหน้าแล้ววนเข้าตัวโครงการอีกที
ถ้าเลือกมาลง MRT สุขุมวิท ก็สามารถเรียกวินมอเตอร์ไซค์ให้ตรงขึ้นมาทาง Terminal 21 แล้วเลี้ยวซ้ายเข้าซอยสุขุมวิท16 ตรงมาตามทางผ่าน Foodland แล้วเลี้ยวซ้ายก็จะพบกับสี่แยกดังกล่าวข้างต้น สามารถขับอ้อมเข้าไปยังซอยสุขุมวิท 22 หรือลงเดินสวนทางวันเวย์เข้าโครงการได้ แต่ต้องระมัดระวังหน่อยเพราะทางที่รถสวนมานั้นค่อนข้างแคบ
BTS
ถ้ามาจาก BTS อโศก ซอยสุขุมวิท 16 จะอยู่ใกล้กับ BTS อโศก สามารถเรียกวินจากหน้าปากซอยสุขุมวิท 16 ซึ่งสามารถทะลุไปยังตัวโครงการได้ตามเส้นทางที่มาจาก MRT ข้างต้น
หากมาจาก BTS พร้อมพงษ์ สามารถเรียกวินมอเตอร์ไซค์จาก ซอยสุขุมวิท 26, 24 ได้เลย ตรงมาตามทางแล้วเลี้ยวซ้ายตรงไปเรื่อยๆ ก็จะพบตัวโครงการ
รถยนต์
หากมาด้วยรถยนต์บนทางเข้าหลักอยู่ที่ซอยสุขุมวิท 22 ซึ่งหากมาจากทางถนนสุขุมวิทไม่จำเป็นต้องกลับรถสามารถเลี้ยวเข้าซอยสุขุมวิท 22 ได้เลย ถนนหน้าซอยจะมีป้ายสีน้ำเงินเขียนว่า “สายน้ำผึ้ง” เมื่อเลี้ยวเข้าไปตรงไปตามทางไม่ไกลมากจะพบสี่แยก ให้เลี้ยวขวาเข้าซอยซึ่งเป็นซอยย่อยของซอยสุขุมวิท 22 คือซอยเศรษฐีทวีทรัพย์และเป็นซอยที่ตั้งของโครงการ เดอะ เนสท์ สุขุมวิท 22 บริเวณหน้าซอยจะมีเซเว่นอยู่ปากซอยพอดี ตรงจุดนี้ระวังให้ดี เพราะมีรถวิ่งสวนกันไปมาจำนวนมาก ทางเลี้ยวเข้าซอยโครงการจะเป็นทางเลี้ยวหักศอกรูปตัววีจากทางที่เรามา ควรชะลอรถระวังรถทางซ้ายที่สวนมา แล้วมองรถทางตรงด้วย เพราะสี่แยกในซอยนี้ไม่มีสัญญาณไฟจราจร เมื่อเลี้ยวเข้าไปตรงไปประมาณไม่ถึง 400 เมตรก็ถึงตัวโครงการ จากหน้าปากซอยสุขุมวิท 22 ห่างจากตัวโครงการประมาณ 1 กม.

พื้นที่โครงการอีกด้านที่ล้อมรอบตัวสำนักงานขายอยู่ หากที่จอดรถหน้าสำนักงานขายไม่พอ สามารถเข้ามาจอดรถในนี้ได้

ด้านขวาของตัวโครงการเป็นร้านอาหารไทย ชื่อ เรือนมัลลิการ์ มีที่จอดรถประมาณ 6-8 คัน แต่ไม่สามารถจอดได้หากไม่ได้ใช้บริการ
สถานที่แนวไลฟ์สไตล์
The Em District
โปรเจคยักใหญ่ที่ใช้เงินลงทุนกว่า 3 หมื่นล้านบาทบนถนนสุขุมวิท อยู่ห่างจากตัวโครงการประมาณ 1.2 กม. ซึ่งในอนาคตประมาณปี 2560 – 2562 จะมีห้าง The Em Sphere เกิดขึ้นบริเวณปากซอยสุขุมวิท 22
Terminal 21
ศูนย์การค้าช้อปปิ้งมอลล์ขนาดใหญ่ที่เชื่อมอโศกและสุขุมวิทเข้าด้วยกัน ด้วยไลฟ์สไตล์แบบ Market Street ที่รวบรวมบรรยากาศจากทั่วทุกมุมโลกเข้าไว้ด้วยกัน
K-Village
คอมมูนิตี้มอลใจกลางสุขุมวิทบนพื้นที่กว่า 15 ไร่ ที่รวบรวมแฟชั่น เครื่องประดับ ร้านค้า ร้านอาหาร และกิจกรรมสุดชิคไว้ด้วยกัน จากตัวโครงการสามารถตรงมาจากซอยสุขุมวิท 22 เข้าสู่สุขุมวิท 26 ทะลุกันถึง K-Village ได้เลย
A Square สุขุมวิท 26
ศูนย์รวมร้านค้าแนวใหม่ A Square สุขุมวิท 26 อยู่ไม่ไกลจาก K-Village ฝั่งตรงข้ามบิ๊กซี พระราม 4 ที่รวบรวมเอาร้านค้าพรีเมี่ยมกว่า 10 ร้าน พร้อมไฮไลท์ออนเซน – คลื่นน้ำสำหรับกีฬาโต้คลื่นแห่งแรกของเมืองไทย เจาะกลุ่มคนทันสมัยสู่การเป็นแลนด์มาร์กไลฟ์สไตล์สเปซสุดฮิปแห่งใหม่นี่ รวมไปถึงร้านอาหาร ร้านจักรยาน และมี Flow House Bangkok ด้วย
สวนเพลิน มาร์เก็ต
โครงการใหม่ล่าสุดมาร์เก็ต มอลล์ ที่จำลองบรรยากาศสถานีรถไฟสายแรกในยุคของรัชกาลที่ 5 บนที่ดินกว่า 10 ไร่ ภายใต้ชื่อโครงการ “สวนเพลิน มาร์เก็ต” ที่รวบรวมไลฟ์สไตล์ชอปปิ้งกว่า 250 ร้านเพื่อรองรับจำนวนอาคารพานิชย์ คอนโดมิเนียมที่เพิ่มขึ้นในย่านพระราม 4
สวนเบญจสิริ
สวนสาธารณะระดับชุมชนบนพื้นที่ 29 ไร่ ที่เติมเต็มธรรมชาติให้กับใจกลางเมืองริมถนนสุขุมวิท หากออกมาจากตัวโครงการเลี้ยวซ้ายแล้วตรงออกไปทางปากซอยสุขุมวิท 22 ก็จะพบสวนเบญจสิริ ซึ่งอยู่ฝั่งเดียวกับซอยสุขุมวิท 22 เลย
สวนเบญจกิติ
สวนสาธารณะเบญจกิติที่เพิ่มเติมความฟิตให้กับไลฟ์สไตล์คนเมือง ใจกลางทำเลถนนรัชดาภิเษก เพียงแค่นั่ง MRT มาลงที่สถานีศูนย์การประชุมสิริกิต์ ก็จะได้สัมผัสกับธรรมชาติและสวนน้ำบนพื้นที่กว่า 430 ไร่
บทวิเคราะห์
วิเคราะห์อัตราผลตอบแทนที่จะได้รับ
หากมองในเรื่องของการลงทุน เปรียบเทียบจากราคาของคอนโดมิเนียมย่านสุขุมวิทที่เฉียด 120,000 ต่อตารางเมตร กับราคาของที่ดินติดถนนเกาะแนวรถไฟฟ้า พื้นที่ในซอยสุขุมวิท 22 ดูจะมีภาษีที่ดีกว่าในเรื่องของความคุ้มค่าสำหรับผู้อยู่อาศัย แต่สำหรับการลงทุนพื้นที่ติดถนนที่มีราคาสูงกว่าเกือบเท่าตัว แต่มีอัตราราคาที่ดินขึ้นปีต่อปีดูจะน่าสนใจมากกว่า ถึงแม้การพัฒนาของผู้ประกอบการต่างๆ จะช่วยพยุงราคาของพื้นที่ข้างในซอยสุขุมวิท 22 ขึ้นไปด้วย แต่ก็ยังเป็นรองพื้นที่แถบหน้าๆ ของซอยสุขุมวิท 22, 24 ที่อยู่ห่างปากซอยไม่เกิน 500 เมตร ด้วยปัจจัยหลายๆ ด้านของซอยสุขุมวิท 22 อาทิเช่น บ้านเรือน ตึกแถวที่หนาแน่นของผู้อาศัยเก่า รวมไปถึงถนนด้านในที่อาจจะดูแคบไปสักนิดสำหรับรถยนต์ที่วิ่งสวนกันไปมา ถึงแม้จะเป็นซอยลัดเลาะออกได้หลายทางก็ตาม ดังนั้นการจะลงทุนหรือซื้อไว้เพื่ออยู่อาศัยจึงขึ้นอยู่กับความชอบส่วนตัวมากกว่า
ในส่วนของอัตราค่าเช่ารายเดือนของแบบห้องทั้งหมดเริ่มต้นที่ ประมาณ 600-700 บาทต่อตร.ม.ต่อเดือน หรือตั้งแต่ 17,000-20,000 บาทต่อเดือน แล้วแต่ขนาดห้อง ซึ่งในราคาเริ่มต้นที่ถูกลงหน่อยอาจจะเป็นในส่วนของอาคาร B ที่ไม่มีในส่วนของ Facilities มากมายนัก อาคารหลักจึงเป็นอาคาร A หากเป็นผู้ที่ต้องการความสะดวกในการเดินทางไปทำงานในย่านนี้ และชอบความเป็นส่วนตัวมากกว่าการอยู่แมนชั่น เดอะ หรือหากแมนชั่นภายในซอยสุขุมวิท 22 มีราคาค่าเช่าที่ไม่ต่างกันมากนัก ก็ขอแนะนำให้เช่าอาศัยอยู่จะดีกว่า
เปรียบเทียบกับโครงการอื่น
Trapezo Sukhumvit 16
คอนโดมิเนียมโลวไรส์ 1 อาคาร 7 ชั้น จำนวน 70 ยูนิต ภายใต้เจ้าของโครงการ เคสท์ ดีเวลลอปเมนท์ บนพื้นที่กว่า 306 ตร.ว. ใจกลางสุขุมวิท 16 ใกล้รถไฟฟ้า BTS สายสีเขียว และ MRT สายสีน้ำเงิน มาพร้อมเฟอร์นิเจอร์ Fully Fitted กับห้อง 3 รูปแบบ ได้แก่ ห้อง 1 ห้องนอน ขนาด 31.50-51 ตร.ม. ห้อง 2 ห้องนอน ขนาด 52-83.50 ตร.ม. และห้อง 3 ห้องนอน ขนาด 96.50-139 ตร.ม. จำนวนห้องเฉลี่ย 10 ห้องต่อหนึ่งชั้น ราคาเฉลี่ย 103,000 บาทต่อตร.ม. เริ่มต้นที่ 3.60 ล้านบาท
The Lumpini 24 เป็นคอนโดสูง 46 ชั้น ของ L.P.N. Development Co.,Ltd ใกล้สถานีรถไฟฟ้าพร้อมพงษ์ ตั้งอยู่ในซอยสุขุมวิท 24 ออกแบบสไตล์ Modern – Luxury ทั้งภายนอกและภายใน ประกอบด้วยอาคารสูง 8 ชั้น 1 ชั้น 1-6 เป็นที่จอดรถ และชั้น 7-8 เป็นห้องชุดแบบ Villa ส่วนอีกหนึ่งอาคารเป็นอาคารสูง 46 ชั้น ยูนิตต่อชั้นอยู่ที่ 12 ยูนิต ยูนิตรวมประมาณ 400 ยูนิต มาพร้อมรูปแบบห้องแบบ 1 Bedroom 26.00-38.00 ตร.ม. และ 2 Bedroom 53.00-55.00 ตร.ม. ราคาเริ่มต้นประมาณ 3.5 ล้านบาท ราคาเฉลี่ยต่อตร.ม. 160,000 – 170,000 บาท
พราว เรียลเอสเตทเจ้าของโครงการ Park 24 บนทำเลซอยสุขุมวิท 24 ห่างจากปากซอยประมาณ 600 เมตร ตั้งอยู่บนที่ดินขนาด 12 ไร่ แบ่งเป็นคอนโดมิเนียม High Rise 2 อาคาร สูง 51 ชั้น 533 ยูนิต และ 29 ชั้น 300 ยูนิต อาคารเพื่อการพาณิชย์ 1 อาคาร 4 ยูนิต รวม 837 ยูนิต โดยคอนโดมิเนียมมาพร้อมกับห้องรูปแบบ 1 ห้องนอนขนาด 28.08 ตร.ม. และ 2 ห้องนอนขนาด 57.16 ตร.ม. จำนวน 833 ยูนิต ราคาเฉลี่ยต่อตร.ม.อยู่ที่ 145,000 บาท ราคาเริ่มต้นอยู่ที่ 4 ล้านบาท
*เนื่องจากบริเวณใกล้เคียงไม่ค่อยมีคอนโนมิเนียมในรูปแบบโลว์ไรส์มากนัก จึงขออนุญาตเปรียบเทียบกับคอนโดมิเนียมไฮไรส์เป็นบางส่วน
สรุป
หากมองในแง่ของทำเล ที่ดินในซอยที่ใกล้รถไฟฟ้ากับทำเลในซอยสุขุมวิท 22 ที่ห่างรถไฟฟ้าออกมาประมาณ 500 เมตร-1 กิโลเมตร มีราคาพื้นที่เฉลี่ยของคอนโดมิเนียมต่างกันราวๆ 20,000-30,000 บาท หากเปรียบเทียบจากราคาขายของห้องชุดในโครงการ “เดอะ เนสท์ สุขขุมวิท 22” ซึ่งมีราคาต่อตร.ม.เฉียดๆ 120,000 บาท โครงการที่อยู่ใกล้แนวรถไฟฟ้ามากกว่า แต่ถึงจะมีราคาที่สูงกว่าอาจจะน่าสนใจมากกว่า แต่หากใครที่ชอบทำเลนี้ และไม่ติดว่าจะต้องอยู่ใกล้สถานีรถไฟฟ้ามากมายนัก และชอบเดินทางโดยรถส่วนตัวมากกว่า โครงการนี้ก็สามารถตอบโจทย์คุณได้อย่างแน่นอนด้วยเส้นทางถนน 3 สายหลัก รอบตัวโครงการไม่ว่าจะเป็น ถนนสุขุมวิท, พระราม 4 และถนนรัชดาภิเษก ในส่วนของเส้นสุขุมวิทก็จะมี BTS สายสีเขียวอ่อน ส่วนทางรัชดาภิเษกก็จะมี MRT คอยอำนวยความสะดวก ทางเส้นพระราม 4 ก็ยังมีทางด่วนเฉลิมมหานครเป็นทางเลือกในการเดินทาง โครงการนี้เหมาะสำหรับคนที่คุ้นเคยในพื้นที่ หรือทำงานหรือเรียนในย่านนี้และต้องการอยู่ในโครงการที่มีจำนวนยูนิตไม่มาก ต้องการความเป็นส่วนตัว และที่สำคัญรายล้อมด้วยสิ่งอำนวยความสะดวกในแบบฉบับของคนเมือง
เรื่องข้างต้นนี้เขียนโดย กิตติคม พจนี Content Writer DDproperty.com หากมีคำถามเพิ่มเติมสามารถติดต่อได้ที่ kittikom@ddproperty.com
สนใจ คอนโดฯ ในโครงการนี้? เลือกชม รายการประกาศ ราคาโดนใจ































































