แลนด์มาร์ค แอท แกรนด์สเตชั่น บาย ไซมิส แอสเสท (Landmark At Grand Station By Siamese Asset) เป็นโครงการมิกซ์ยูส บนทำเลศักยภาพ ตรงข้ามแฟชั่นไอส์แลนด์ ใกล้รถไฟฟ้าสายสีชมพู สถานีวงแหวนรามอินทรา เพียง 400 เมตร ภายในห้องออกแบบเป็น 2 ชั้น เพดานสูง 4.15 เมตร เน้นความโปร่ง โล่ง พร้อมออกแบบห้องตามพฤติกรรมและไลฟ์สไตล์ที่แตกต่างกัน ไม่ว่าจะเป็นห้องพักสำหรับผู้สูงอายุ คนที่มีสัตว์เลี้ยงหรือห้องพักในรูปแบบ Co-living และห้องพักแบบมาตรฐาน ภายในโครงการครบครันด้วยสิ่งอำนวยความสะดวกทั้งพื้นที่พักอาศัย โรงแรม ร้านค้า ร้านอาหาร และสำนักงาน ราคาเริ่มต้นเพียง 2.90 ล้านบาท
สนใจ คอนโดฯ ในโครงการนี้? เลือกชม รายการประกาศ ราคาโดนใจ
พีทีเอฟ เรียลตี้ กลุ่มนักลงทุนชาวไต้หวัน นำโดยคุณถงหยุ่ย โทนี่ ต่อยอดความสำเร็จในฐานะผู้พัฒนาอสังหาริมทรัพย์ หลังจากที่โครงการก่อนหน้าอย่าง เมย์แฟร์ เพลส สุขุมวิท 64 และ เดอะ ราชดำริ ได้ผลตอบรับดี จึงเดินหน้าบุกตลาดคอนโดมิเนียมระดับกลาง-บนต่อในทำเลสุขุมวิทตอนปลาย ด้วยการส่งโครงการ เมย์แฟร์ เพลส สุขุมวิท 50 ด้วยต้นทุนถึง 2,000 ล้านบาท ให้กลายเป็นแหล่งที่อยู่อาศัย พรั่งพร้อมไปด้วยสิ่งอำนวยความสะดวก และความเป็นส่วนตัว โครงการประกอบไปด้วย 3 อาคาร โดยมีการแบ่งส่วนที่อยู่อาศัย สิ่งอำนวยความสะดวก รวมถึงร้านค้าอย่างชัดเจน โดยเปิดให้จองครั้งแรกระหว่างวันที่ 30-31 ม.ค. 59 เคาะราคาเริ่มต้น 3.49 ล้านบาท โดยมีกลุ่มเป้าหมายทั้งชาวไทยและต่างชาติโดยเฉพาะผู้ซื้อและนักลงทุนชาวไต้หวัน
เจาะลึกข้อมูลโครงการ (ข้อมูล ณ วันที่ 26 มกราคม 2559)
• ชื่อโครงการ: เมย์แฟร์ เพลส สุขุมวิท 50 (Mayfair Place Sukhumvit 50)
• ผู้พัฒนาโครงการ: บริษัท พีทีเอฟ เรียลตี้ (2015) จำกัด
• ทำเลที่ตั้ง: ซอย สุขุมวิท 50 ถนน สุขุมวิท แขวงพระโขนง เขตคลองเตย กทม.
รายละเอียดโครงการ
พื้นที่โครงการ: 3 ไร่ 1 งาน 72 ตารางวา
รูปแบบ: อาคารพักอาศัย 3 อาคาร ประกอบด้วย ตึก A สูง14 ชั้น, ตึก B 7 ชั้น และ ตึก C 8 ชั้น
กลุ่มเป้าหมาย: เน้นรองรับกลุ่มคนรุ่นใหม่ รวมถึงกลุ่มลูกค้าชาวต่างชาติ โดยเฉพาะชาวไต้หวัน
สถานะก่อสร้าง: เริ่มก่อสร้างเดือนพฤษภาคม 2559 คาดว่าแล้วเสร็จเดือนพฤษภาคม 2561
ระบบความปลอดภัย: Digital Door Lock, Access Key Card แบบแยกอาคาร เจ้าหน้าที่รักษาความปลอดภัย และกล้องวงจรปิด CCTV ตลอด 24 ชั่วโมง
ส่วนที่พักอาศัย: แบ่งออกเป็นอาคาร A เริ่มที่ชั้น 1 – 14 และ อาคาร B ชั้น 1 – 17
ส่วนกลาง: สำหรับส่วนกลางทั้งหมดจะอยู่ชั้น 8 ของอาคาร C แบ่งออกเป็น Golf Simulators, Multi-Function Room, Fitness, Steam Room, Swimming Pool, Kids Pool, Jacuzzi, Roof Top Garden, Grand Lobby, Library, Business Center, Grand Private Garden and Playground และ Jogging Track
ลิฟท์: ลิฟท์โดยสาร 2 ตัว ลิฟท์บริการ 1 ตัว
ที่จอดรถ: อาคาร C ชั้น 2 – 7 และบริเวณโดยรอบ (คิดเป็น 57 % ไม่รวมซ้อนคัน)
Pre-sale: เริ่มเปิดจองวันที่ 30 – 31 มกราคม 2559 นี้
เงินกองทุนสะสม (Sinking fund): 500 บาท/ ตร.ม.
ค่าส่วนกลาง: 55 บาท/ ตร.ม. / เดือน (ชำระล่วงหน้า 1 ปี)
ราคาเริ่มต้น: 3.49 ล้านบาท / ยูนิต
ราคาเฉลี่ย: ประมาณ 120,000 บาท/ ตร.ม.
เงื่อนไขการชำระเงิน: จอง 30,000 บาท ทำสัญญา 100,000 – 250,000 บาท สามารถดูรายละเอียดเพิ่มเติมได้ที่ mayfairplace50.com หรือโทร 02-3318999
รูปแบบห้อง: ตกแต่งแบบ Fully Furnished
1 ห้องนอน 1 ห้องน้ำ แบ่งออกเป็น A1 34.79 – 34.99 ตร.ม.
A2 34.38 – 34.78 ตร.ม.
A3 36.84 ตร.ม.
2 ห้องนอน 2 ห้องน้ำ แบ่งออกเป็น B1 45.76 – 48.00 ตร.ม.
B2 43.84 – 44.10 ตร.ม.
B3 41.40 ตร.ม.
B4 42.06 ตร.ม.
B5 51.00 ตร.ม.
2 ห้องนอน 2 ห้องน้ำ แบ่งออกเป็น C1 69.20 ตร.ม.
C2 71.65 ตร.ม.
3 ห้องนอน 2 ห้องน้ำ แบ่งออกเป็น PH1 78.40 ตร.ม.
3 ห้องนอน 3 ห้องน้ำ แบ่งออกเป็น PH2 111.84 ตร.ม.
รายละเอียดโครงการ
รีวิวภาพรวมโครงการ
เมย์แฟร์ เพลส สุขุมวิท 50 ถูกสร้างจากแรงบันดาลใจศิลปะชั้นสูง ที่สะท้อนถึงความเป็นสถาปัตยกรรมคลาสิค พร้อมตกแต่งในสไตล์โมทีฟ ลอนดอน สร้างความหรูหราให้กับที่อยู่อาศัย อีกทั้งยังถือว่าเป็นโครงการที่มีการแบ่งพื้นที่ส่วนพักอาศัยและส่วนกลางอย่างชัดเจน โดยแบ่งออกเป็น อาคาร A เริ่มส่วนพักอาศัยชั้น 1-14 อยู่ฝั่งทิศตะวันออก ริมถนนสุขุมวิท 50 ด้านข้างตึกติดกับถนนส่วนบุคคล อาคาร B เริ่มส่วนพักอาศัยชั้น 1-17 ทิศเหนือ ฝั่งทางด่วนเฉลิมมหานคร และทิศตะวันตก อาคาร C พื้นที่ของร้านค้า (4 ยูนิต) ส่วนกลาง และที่จอดรถ 8 ชั้น ซึ่งทั้ง 3 อาคารจะมีระยะห่างจากรั้วประมาณ 15 เมตร ทั้งนี้ยังออกแบบพื้นที่สีเขียวตลอดระยะทางของถนนภายในโครงการ ซึ่งมีความกว้างถึง 12 เมตร

Master Plan ของโครงการ Mayfair Place Sukhumvit 50 โดยอาคาร C ถูกหันหน้าออกไปทางทิศใต้ ติดกับถนนสองเลนของซอยสุขุมวิท 50 ส่วนอาคาร A และ ฺฺB หันหน้าไปทางทิศตะวันตก ซึ่งสังเกตว่าภาพรวมของโครงการจะเป็นในลักษณะรูปตัว L โดยล้อมรอบด้วยพื้นที่สีเขียว

จากโมเดลโครงการจะเห็นว่าส่วนพักอาศัยแบ่งออกเป็น 2 อาคาร คือ อาคาร A และ B ซึ่งอยู่ทางทิศตะวันออก ส่วนอาคาร C เป็นพื้นที่ส่วนกลางและที่จอดรถ อยู่ทางด้านทิศตะวันตก

เมื่อเข้ามาด้านใน จะมีจุดจอดรถ เพื่อเข้าส่วนอาคารพักอาศัยทั้ง A และ B ส่วนพื้นที่สีเขียวที่เห็นในรูป คือพื้นที่ของคอนโดวอเตอร์ฟอ์ด สุขุมวิท 50 สูง 8 ชั้น

อาคารที่เห็นในรูปคือ คอนโดวอเตอร์ฟอร์ด 8 ชั้น

ทางทิศใต้ของโครงการ วิวที่ได้จะเป็นลักษณะชุมชน มองเห็นหมู่บ้าน บ้านเดี่ยว และอพาร์ทเม้นท์ที่เรียงรายอยู่ด้านล่าง

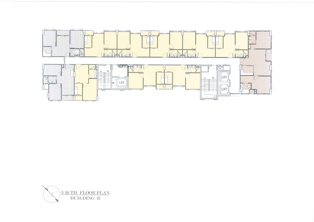
Floor Plan ชั้น 1 ของอาคาร A มีทั้ง 12 ยูนิตต่อชั้น และเป็นแบบคละรูปแบบห้องกัน

Floor Plan ชั้น 3-12 มีทั้งหมด 13 ยูนิต และยังคงคละรูปแบบห้องกัน

ส่วน Floor Plan ชั้น 13-14 จะเริ่มมียูนิตห้องใหญ่เสริมเข้ามา

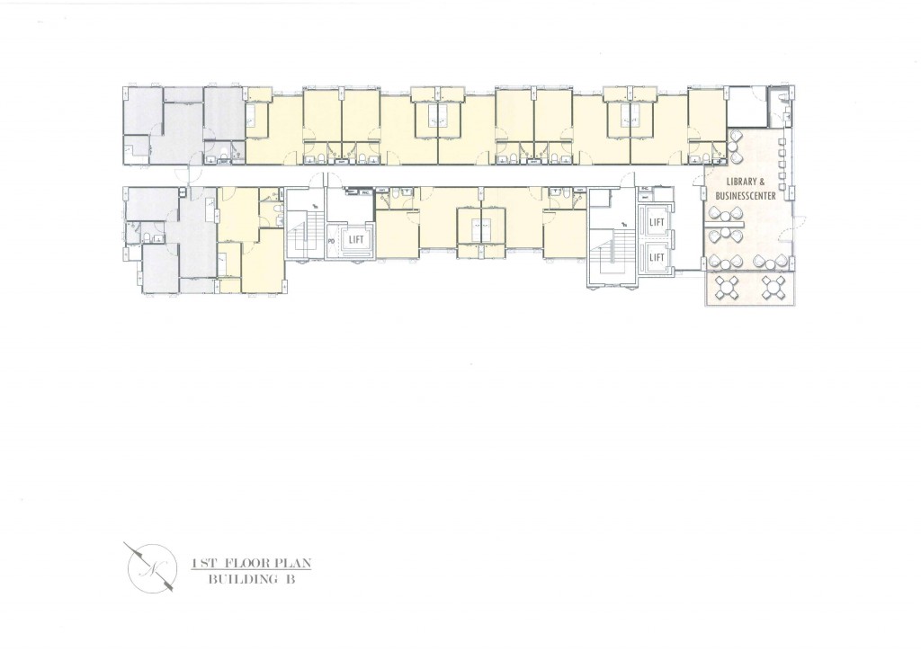
Floor Plan ชั้น 1 ตึก B มีพื้นที่ส่วนพักอาศัย 10 ยูนิต รวมทั้งยังมีพื้นที่ในส่วน Double Library และ Business Center ด้วย
สิ่งอำนวยความสะดวกภายในโครงการ
ทางเจ้าของโปรเจคให้ความใส่ใจในไลฟ์สไตล์ และความต้องการของผู้อยู่อาศัยเป็นหลัก จึงได้เติมเต็มสิ่งอำนวยความสะดวกที่หลากหลายไว้ในพื้นที่ส่วนกลาง โดยแบ่งแยกออกจากส่วนของอาคารที่อยู่อาศัยอย่างชัดเจน เพื่อความเป็นส่วนตัว โดยสิ่งอำนวยความสะดวกเหล่านี้จะรวมไว้บนชั้น 8 ของอาคาร C ไม่ว่าจะเป็น คลับเฮ้าส์ สนามกอล์ฟจำลอง ห้องอเนกประสงค์ ฟิตเนส ห้องสตีม สระว่ายน้ำ จากุซซี่ มุมพักผ่อนส่วนตัว รวมไปถึงบริเวณชั้นล่างรอบโครงการยังถูกออกแบบให้เป็นสวนพักผ่อน พื้นที่สันทนาการ สนามเด็กเล่นพร้อมลู่วิ่ง อีกทั้งระหว่างอาคาร A และ B ยังดีไซน์ให้ถูกเชื่อมโยงเข้ากันด้วยพื้นที่ของล็อบบี้ ห้องสมุด และสำนักธุรกิจ

โดยรอบโครงการถูกออกแบบให้เป็นพื้นที่ส่วนสีเขียว เพื่อสร้างบรรยากาศแห่งการพักผ่อนให้กับผู้อยู่อาศัย
รีวิวภายในห้องชุด
พื้น: ห้องนั่งเล่น และห้องครัว แกรนิตโต้ขนาด 60 x 60 ซม. ส่วนห้องนอนเป็น เอ็นจิเนียริ่ง วูด
ความสูงพื้นจรดเพดาน: 3 เมตร และความกว้างของห้องประมาณ 7 เมตร
ระเบียง: เริ่มต้นความกว้างประมาณ 1 เมตร ยาวประมาณ 2 เมตร
ประตู: Digital Door Lock จาก Locpro
ระบบไฟ: Downlight Smart Switch
ชุดครัว: Built-in เคาน์เตอร์ครัว เตาไฟฟ้า ซิ้งค์ล้างจาน และเครื่องดูดควันจาก Teka
สุขภัณฑ์ห้องน้ำ: American Standard
เฟอร์นิเจอร์: Fully Furnished จาก Chic Republic
เครื่องปรับอากาศ: Daikin

เมื่อเปิดประตูเข้าไป จะพบส่วนของห้องนั่งเล่นตรงกลาง โดยแบ่งส่วนครัวอยู่ฝั่งซ้าย และห้องนอน อยู่ฝั่งขวา

พื้นที่บริเวณห้องครัว จะเป็นลักษณะครัวปิด โดยด้านหน้าสามารถนำโต๊ะกินข้าวพร้อมเก้าอี้ 2 ที่นั่งมาวางได้

ระเบียงมีความกว้างประมาณ 1 เมตร ยาว 2 เมตร โดยส่วนของที่กันตกเป็นแบบนิรภัย พร้อมมีระแนงบังคอมเพสเซอร์

ห้องน้ำแบ่งส่วนเปียก ส่วนแห้งอย่างชัดเจน โดยใช้สุขภัณฑ์ทั้งหมดจาก American Standard พร้อมมี Rain Shower ให้ด้วย
เฟอร์นิเจอร์ที่ได้มีดังนี้

เฟอร์นิเจอร์จาก Chic Republic
ทําเล & การเดินทาง
วิเคราะห์ศักยภาพทำเลโครงการ

ทำเลโครงการเมย์แฟร์ เพลส สุขุมวิท 50 ถูกรายล้อมด้วยการคมนาคมหลากหลาย ไม่ว่าจะเป็นบีทีเอส สถานีอ่อนนุช ทางด่วนอาจณรงค์ – รามอินทรา ทางพิเศษเฉลิมมหานคร ทางรถไฟสายเก่า และทางลัดซอยสวัสดี 4 มุ่งหน้าสู่สุขุมวิท 62
โครงการตั้งอยู่ในซอยสุขุมวิท 50 ย่านอ่อนนุช ถือว่าเป็นทำเลที่มีความครบครันหลายด้าน ทั้งการคมนาคมขนส่งที่สะดวกสบาย อยู่ใกล้รถไฟฟ้าบีทีเอสสายสุขุมวิท สถานีอ่อนนุช ประมาณ 700 เมตร สามารถเดินทางเข้า-ออกเมืองด้วยทางด่วนถึงสองทาง ได้แก่ ทางด่วนรามอินทรา-อาจณรงค์ และทางด่วนเฉลิมมหานคร ในช่วงเวลาเร่งด่วน จะเป็นที่รู้กันดีว่าการจราจรย่านนี้ค่อนข้างหนาแน่นเป็นพิเศษ เนื่องจากมีผู้อยู่อาศัยย่านนี้ค่อนข้างเยอะ วิธีหลีกหนีรถติดสามารถใช้ซอยสุขุมวิท 50 เป็นทางลัดทะลุไปเอกมัย สุขุมวิท 62 หรือแม้กระทั่งถนนสรรพวุธได้ และด้วยความเจริญของพื้นที่ที่ได้รับการพัฒนาอย่างต่อเนื่องนับตั้งแต่แนวรถไฟฟ้าขยายวงกว้าง จึงทำให้ย่านนี้ถูกรายล้อมไปด้วยซูเปอร์มาร์เก็ตชั้นนำ คอมมูนิตี้มอลล์ ร้านอาหารเก๋ไก๋ สนองไลฟ์สไตล์คนเมือง จึงไม่ต้องแปลกใจว่าทำไมถึงแทบหาพื้นที่ว่างเปล่าไม่ได้ในแถบอ่อนนุช เพราะต่างถูกจับจองพื้นที่สร้างโครงการคอนโดมิเนียม ยิ่งอยู่ใกล้รถไฟฟ้าหรือซูเปอร์มาร์เก็ต ราคาจะสูงขึ้นไปแตะ 100,000 บาท/ ตร.ม. ขึ้นไป ส่วนในซอยเล็ก ซอยน้อยจะเริ่มต้นที่ราวๆ 80,000 บาท/ ตร.ม. ทั้งนี้การปรับมูลค่าอสังหาฯ ดังกล่าวได้แปรผันตามราคาที่ดิน โดยล่าสุดจากข้อมูลของกรมธนารักษ์ราคาประเมินที่ดินสูงขึ้นถึงร้อยละ 33.54 (ข้อมูลจากกรมธนารักษ์ 2559) สำหรับบรรดานักลงทุนเกาะกระแสในย่านนี้ แม้ว่าต้องเผชิญคู่แข่งค่อนข้างมาก แต่อาจได้กลุ่มผู้เช่าชาวต่างชาติ ที่นิยมอยู่อาศัยแถบสุขุมวิทตอนปลายมากขึ้น
การเดินทางไปโครงการ
แม้ว่าย่านอ่อนนุช บริเวณซอยสุขุมวิท 50 จะมีสภาพการจราจรค่อนข้างหนาแน่น เนื่องจากมีความเป็นชุมชนเมือง รายล้อมไปด้วยโรงเรียน ออฟฟิศชั้นนำ ซูเปอร์มาร์เก็ต คอมมูนิตี้มอลล์ และมีคอนโดมิเนียมขึ้นเป็นดอกเห็ด แต่ทั้งนี้ทั้งนั้นด้วยการเชื่อมต่อของถนน จึงทำให้สามารถใช้เป็นทางลัดไปยังซอยสุขุมวิท 62 (เลี้ยวเข้าซอยสวัสดี 4 อยู่ห่างจากโครงการเพียง 200 เมตร) เอกมัย ถนนสรรพวุธ (ใช้เส้นทางรถไฟฟ้าสายเก่า) หรือเลือกใช้ทางด่วนได้ถึง 2 สาย ได้แก่ เส้นรามอินทรา-อาจณรงค์ และสายเฉลิมมหานคร ดังนั้นผู้ที่อยู่อาศัยในย่านนี้และจำเป็นต้องใช้รถออกไปทำงานหรือกิจธุระต่างๆ จะค่อนข้างสะดวก ส่วนผู้ที่เลือกใช้บริการรถไฟฟ้าบีทีเอส ยิ่งง่ายต่อการเดินทาง เนื่องจากอยู่ใกล้สถานีอ่อนนุชเพียง 700 เมตร แถมทางโครงการยังมีรถ Shuttle Bus คอยรับส่งอีกด้วย
– รถไฟฟ้า BTS

แผนที่สถานีอ่อนนุช ภาพ via bts.co.th
สะดวกสบายกับการใช้บริการรถไฟฟ้าบีทีเอสสายสุขุมวิท โดยลงสถานีอ่อนนุช ใช้ทางออกที่ 2 จากนั้นเลือกใช้บริการวินมอเตอร์ไซค์เพียง 10 บาท เข้าซอยสุขุมวิท 50 หรือบางคนอาจเดินออกกำลังกายประมาณ 700 เมตรถึงโครงการ
– รถยนต์ส่วนตัว
ทางเลือกที่ 1 สำหรับผู้อยู่ฝั่งสมุทรปราการ แล้วเลือกใช้เส้นทางรถไฟสายเก่าปากน้ำ ซึ่งเชื่อมกับถนนสรรพาวุธ ให้ตรงมาเรื่อยๆ ประมาณ 2.6 กม. จากนั้นเลี้ยวขวาเข้าซอยสุขุมวิท 50 ตรงมาประมาณ 700 เมตร จะเจอโครงการอยู่ด้านซ้ายมือ
ทางเลือกที่ 2 หากมาจากเส้นสุขุมวิท ให้ตรงมาเรื่อยๆ ผ่านสุขุมวิท 77 จากนั้นให้สังเกตป้ายซอยสุขุมวิท 89 ให้เตรียมกลับรถ เพื่อมาฝั่งมุ่งหน้าไปพระโขนง ตรงมาประมาณ 400 เมตร จะเจอเทสโก้ โลตัส ให้เตรียมชิดซ้าย เพื่อเลี้ยวเข้าซอยสุขุมวิท 50 ตรงมาประมาณ 700 เมตร จะพบโครงการอยู่ด้านขวา ตรงข้ามกับเซเว่น อีเลฟเว่น

เมื่อตรงเข้ามาในซอยสุขุมวิท 50 สังเกตว่าจะมีทางเลี้ยวให้ขึ้นทางด่วนอาจณรงค์-รามอินทรา ซึ่งเส้นทางนี้ สามารถใช้เป็นทางลัดไปพระโขนงได้ โดยเลาะไปตามซอยข้างทางขึ้นทางด่วน
สถานที่แนว Lifestyle
สุขุมวิท 50 เป็นซอยทางลัดมุ่งหน้าได้หลากหลายเส้นทาง และอดีตแหล่งที่อยู่ในย่านนี้ส่วนใหญ่เป็นบ้านเดี่ยว ตึกแถว และมีลักษณะความเป็นชุมชน แต่แล้วเมื่อรถไฟฟ้าเข้าถึง จึงทำให้สภาพของซอยนี้เปลี่ยนไป มีความคึกคักและความเจริญไม่แพ้ทางฝั่งเอกมัย ทองหล่อ สังเกตได้จากบรรดาอพาร์ทเมนต์หรู และคอนโดมิเนียมที่เข้ามาจับจองพื้นที่กันตั้งแต่ต้นจนถึงปลายซอย ยิ่งไปกว่านั้น ยังถูกรายล้อมไปด้วยสถานที่แนวไลฟ์สไตล์ ไม่ว่าจะเป็นซูเปอร์มาร์เก็ตชั้นนำอย่าง เทสโก้ โลตัส (บริเวณปากซอยสุขุมวิท 50 ห่างจากโครงการประมาณ 700 เมตร) หรือคอมมูนิตี้มอลล์ป้ายแดง อัดแน่นไปด้วยร้านค้าชั้นนำ ซึ่งเพิ่งเปิดตัวได้ไม่นานอย่าง The Phyll บริเวณปากซอยสุขุมวิท 54 ตรงข้ามเขตพระโขนง (ห่างจากโครงการประมาณ 1 กม.) แต่หากใครกำลังมองหาร้านอร่อยภายในซอยสุขุมวิท 50 ใกล้โครงการมีให้เลือกอยู่หลายร้าน อาทิ ร้านต้นผล (ห่างจากโครงการประมาณ 200 เมตร) โดดเด่นด้วยเมนูสุขภาพ ขึ้นชื่อกับจานเด็ด น้ำพริกอ่อง หรือถ้าอยากเพลินกับวิถีชีวิตแบบ Slow Life แนะนำให้ไปนั่งชิลได้ที่ร้าน Drink Drank Drunk (ห่างจากโครงการประมาณ 150 เมตร) ของคุณน๊อต วรฤทธิ์ ที่ตกแต่งร้านได้น่ารักโดนใจด้วยลาย Polka Dot
บทวิเคราะห์
วิเคราะห์อัตราผลตอบแทน
สุขุมวิท 50 เป็นย่านที่รายล้อมไปด้วยคอนโดมิเนียมที่มีราคาขาย 100,000 บาท / ตร.ม. (หากอยู่ใกล้รถไฟฟ้าสายสุขุมวิท ในระยะทางที่เดินได้) กับโซนในซอยที่เริ่มต้น 80,000 บาท/ ตร.ม. นั้น แม้ว่าบรรดานักลงทุนอาจจะต้องกุมขมับเนื่องจากมีคู่แข่งค่อนข้างมาก เพราะย่านนี้มีโครงการผุดขึ้นเป็นดอกเห็ดให้ตื่นเต้นแทบทุกปี โดยเฉพาะในช่วง 2-3 ปีที่ผ่านมา อันเป็นผลจากระดับความนิยมที่อยู่อาศัยแถบนี้มากขึ้น ประกอบกับบรรดาชาวต่างชาติ โดยเฉพาะโซนเอเซียเริ่มเบนเข็มหันมามองหาอสังหาฯ ในราคาจับต้องได้ รายล้อมไปด้วยสถานที่ไลฟ์สไตล์คนเมือง และไม่แพงเหมือนดั่งสุขุมวิทชั้นในมากขึ้น จึงทำให้ “อ่อนนุช” เป็นทำเลที่ยังสามารถแสวงหากำไรได้ดีอยู่ โดยจะได้อัตราผลตอบแทนประมาณ 500 – 600 บาท / ตร.ม. หรือสำหรับยูนิต 1 ห้องนอน เริ่มต้น 31 ตร.ม. ราคาปล่อยเช่าจะอยู่ที่ 15,000 – 20,000 บาท/ เดือน ซึ่งถือว่าใกล้เคียงกับย่านใจกลางเมือง
เปรียบเทียบกับโครงการอื่น
Hasu Hasu Condominium
คอนโดมิเนียม ที่แวดล้อมไปด้วยธรรมชาติ และความเป็นส่วนตัว ของบริษัท แสนสิริ จำกัด (มหาชน) บนที่ดิน 4 ไร่ แบ่งออกเป็น 2 อาคาร สูง 7 ชั้น รวมทั้งหมด 310 ยูนิต รูปแบบห้อง 1-3 ห้องนอน พื้นที่ห้องชุดโครงการ 31 – 92.25 ตร.ม. ที่จอดรถ 50% ราคาขายปัจจุบันเริ่มต้นประมาณ 106,000 บาท / ตร.ม.
ภาพ via sansiri.com
Tree Condo Sukhumvit 50
คอนโดมิเนียม ภายใต้แนวคิดผสมผสานไลฟ์สไตล์คนเมือง ให้เป็นหนึ่งเดียวกับธรรมชาติ ของบริษัท บิ๊ก ทรี แอสเสท จำกัด บนที่ดินเกือบ 1 ไร่ ความสูง 8 ชั้น รวมทั้งหมด 118 ยูนิต รูปแบบห้อง 1-2 ห้องนอน พื้นที่ห้องชุดโครงการ 32 – 86 ตร.ม. ที่จอดรถ 70 % ราคาขายปัจจุบันเริ่มต้นประมาณ 100,000 บาท / ตร.ม.
ภาพ via treecondo.com
สรุป
บทสรุป
เมย์แฟร์ เพลส สุขุมวิท 50 ถือได้ว่าเป็นโครงการที่โดดเด่นเรื่องการคมนาคมที่เข้า-ออกเมืองได้สะดวก และหลากหลายวิธี อาทิ ใกล้รถไฟฟ้าสถานีอ่อนนุช (ห่างประมาณ 700 เมตร) ใกล้ทางด่วนอาจณรงค์-รามอินทรา หรือใช้เป็นเส้นทางลัดมุ่งหน้าสู่เอกมัย สุขุมวิท 62 และถนนสรรพวุธ ด้วยทางรถไฟสายเก่า อีกทั้ง ยังเป็นทำเลที่ได้รับการพัฒนาให้มีความครบครัน ไม่แพ้โซนสุขุมวิทชั้นใน จึงทำให้ที่ตั้งของโครงการถูกรายล้อมด้วยซูเปอร์มาร์เก็ตชั้นนำ คอมมูนิตี้มอลล์ รวมถึงร้านอาหารเก๋ๆ สไตล์คนเมือง ในขณะที่ดีมานด์จากชาวต่างชาติโดยเฉพาะชาวเอเชียที่เริ่มเบนเข็มความนิยมมามองหาแหล่งที่อยู่อาศัยในย่านนี้มากขึ้น แม้ว่าบรรดานักลงทุนที่แสวงหากำไรจากอสังหาฯ ในย่านนี้ อาจจะต้องเผชิญกับภาวะคู่แข่งค่อนข้างมาก แต่ถือว่ายังได้กำไรอยู่ เพราะระดับดีมานยังค่อนข้างสูง
สนใจ คอนโดฯ ในโครงการนี้? เลือกชม รายการประกาศ ราคาโดนใจ
























































