โครงการเวนิว ฟอร์ม บางนา-ศรีวารี (Venue Form Bangna-Srivaree) โดยบริษัท เอสซี แอสเสท คอร์ปอเรชั่น จำกัด (มหาชน) โครงการบ้านเดี่ยว 2 ชั้น จำนวน 164 ครอบครัว โดดเด่นด้วยดีไซน์ Mid-Century Modern มาพร้อมฟังก์ชันใหม่ Vertical Form ที่ออกแบบโถงสูงโปร่งถึง 6 เมตร พื้นที่ใช้สอยสูงสุดถึง 310 ตารางเมตร รองรับทั้งครอบครัวขนาดเล็กและครอบครัวขยาย ด้วย 4 ห้องนอน 5 ห้องน้ำ และที่จอดรถ 3 คัน ตั้งอยู่บนทำเลศักยภาพที่เดินทางสะดวกเชื่อมต่อถนนเส้นหลักหลายสาย อาทิ ถนนเทพรัตน (บางนา–ตราด), ถนนลาดกระบัง อีกทั้งยังใกล้ท่าอากาศยานสุวรรณภูมิเพียง 15 นาที และยังใกล้ทางพิเศษบูรพาวิถี ราคาเริ่มต้น 6.99-12 ล้านบาท
ทำเลบางนา-ตราด ถือเป็นอีกหนึ่งทำศักยภาพ ที่สามารถเดินทางเชื่อมต่อถนนสายหลักอื่น ๆ ของกรุงเทพฯ ได้สะดวก และรวดเร็ว อาทิ ถ.สุขุมวิท และ ถ.ศรีนครินทร์ ใกล้ทางด่วนอย่าง ถ.กาญจณาภิเษก เชื่อมต่อได้ทุกมุมเมืองของกรุงเทพฯ และมอเตอร์เวย์ เชื่อมต่อกับจังหวัดทางภาคตะวันออก ไม่ไกลจากรถไฟฟ้า BTS และสนามบินสุวรรณภูมิ รองรับการเดินทางในอนาคตอย่างรถไฟฟ้าสายสีเหลือง และรถไฟฟ้ารางคู่ รายล้อมด้วยสิ่งอำนวยความสะดวก ทั้งห้างสรรพสินค้าขนาดใหญ่ โรงพยาบาลชั้นนำ และสถานศึกษาชื่อดัง
จากศักยภาพของทำเลบางนา-ตราดเป็นที่จับจองของเหล่าดีเวลลอปเปอร์มากมาย และได้รับการตอบรับที่ดีจากผู้ซื้อด้วยเช่นกัน โดยโครงการล่าสุดคือ โครงการ เมอริท เพลส บางนา (Merit Place Bangna) โดยบริษัท สุวรรณภูมิ เออีซี จำกัด บ้านแนวคิดใหม่ 2 ชั้น และโฮมออฟฟิศ 3 ชั้น เป็นส่วนตัวด้วยจำนวนเพียง 50 ยูนิต พร้อมระบบ Smart Home ผ่าน Application ในมือถือ ตั้งอยู่บริเวณ ถ.บางนา-ตราด กม.10 เข้า ซ.มหาชัย เพียง 1 กิโลเมตร ใกล้รถไฟฟ้า BTS สถานีบางนา ห่างเพียง 5 นาที จากทางพิเศษบูรพาวิถี และ ถ.กาญจนาภิเษก รองรับการเดินทางในอนาคตด้วยรถไฟฟ้าสายสีเหลือง สถานีวัดศรีเอี่ยม
ข้อมูลโครงการเมอริท เพลส บางนา (Merit Place Bangna)
- ผู้พัฒนาโครงการ: บริษัท สุวรรณภูมิ เออีซี จำกัด
- ทำเลที่ตั้ง: ถ.บางนา-ตราด กม.10 ต.บางพลีใหญ่ อ.บางพลี จ.สมุทรปราการ
- พื้นที่โครงการ: 6 ไร่
- ลักษณะของโครงการ: บ้านแนวคิดใหม่ 2 ชั้น จำนวน 28 ยูนิต และโฮมออฟฟิศ จำนวน 22 ยูนิต รวม 50 ยูนิต
- สิ่งอำนวยความสะดวก: Access keycard, สวนสาธารณะ, Internet fiber optic ทั้งโครงการ
- ระบบรักษาความปลอดภัย: ปลอดภัยด้วยกล้อง CCTV พร้อมระบบ magnetic sensor และระบบรักษาความปลอดภัยตลอด 24 ชั่วโมง
- เว็บไซต์: www.meritplace.com
- ที่ตั้งโครงการ: 13.633453,100.691494
- โปรโมชั่น: VIP Day 24-25 สิงหาคม 2562 พบกับโครงการใหม่
Qrcode line โครงการเมอริท เพลส บางนา (Merit Place Bangna)
ถ้าฉันสนใจโครงการนี้ ฉันจะสามารถกู้ได้สูงสุดเท่าไหร่? ค้นหาคำตอบได้ที่นี่
บทความที่เกี่ยวข้องกับการกู้ซื้อบ้าน คอนโดฯ
อยากซื้อบ้านหลังแรก เริ่มต้นอย่างไร ต้องรู้อะไรบ้าง?
รวมเทคนิคการกู้ซื้อบ้านที่คนอยากมีบ้านต้องรู้
อัพเดทอัตราดอกเบี้ยสินเชื่อบ้าน กู้ซื้อบ้าน
รายละเอียดโครงการ
ภาพรวมโครงการเมอริท เพลส บางนา (Merit Place Bangna)
การพัฒนารูปแบบบ้านมีการออกแบบและนวัตกรรมเพื่อการประหยัดพลังงาน โดยภายในตัวบ้านจะมีการระบายอากาศได้ดีด้วยวัสดุก่อสร้าง Q-CON (อิฐมวลเบา) ซึ่งมีคุณสมบัติกันความร้อนทนทาน และไม่เป็นพิษต่อผู้อยู่อาศัย รวมถึงมีช่อง Skylight เพื่อเพิ่มความสว่างให้ภายในบ้านเพื่อประหยัดพลังงาน พร้อมคัดสรรเลือกใช้วัสดุระดับ Premium ทั้งโครงการ
การออกแบบบ้านดีไซน์ Modern Contemporary Style สามารถจอดรถได้ 2 คัน ภายในร่ม โดยไม่ต้องทำ
การต่อเติมเพิ่มอีก พิถีพิถันในทุกรายละเอียดอย่างปราณีตเน้นให้สามารถใช้ประโยชน์ในทุกพืน้ ที่ใช้สอย
ได้อย่างลงตัว มีพื้นที่กว้างขวางใช้ชีวิตของครอบครัวได้อย่างมีความสุข ตอบสนองไลฟ์สไตล์ได้ดี
นอกจากนี้ยังมีนวัตกรรม Smart Home ภายในบ้านเพื่อเพิ่มความปลอดภัย และสะดวกสบายสามารถดูกล้องวงจรปิดภายในบ้านจากมือถือ ผ่าน Application ทำให้ใช้ชีวิตได้อย่างอิสระมากขึน้ พร้อมรองรับ Internet Fiber
Optic ทั้งโครงการ ทางเข้าหน้าโครงการ เข้า-ออก สะดวก มีระบบรักษาความปลอดภัย 24 ชม. พร้อม Key Card และกล้องวงจรปิดเพื่อความอุ่นใจในการพักอาศัย
รูปแบบบ้าน
บ้านแนวคิดใหม่
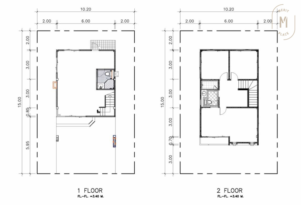
- บ้านแนวคิดใหม่สไตล์ บ้านเดี่ยว 2 ชั้น หน้ากว้าง 7 เมตร ขนาด 4 ห้องนอน 3 ห้องน้ำ จอดรถ 1-2 คัน
- รูปแบบโดดเด่น ทันสมัย Style Modern
- ขนาดที่ดินเริ่มต้น 37.38-44.78 ตารางวา
- พื้นที่ใช้สอย 174 ตารางเมตร
บ้านแฝดอารมณ์บ้านเดี่ยว
ตัวอย่าง Unit plan
M biztown
- โฮมออฟฟิศ 3.5 ชั้น หน้ากว้าง 4 เมตร ขนาด 3 ห้องน้ำ จอดรถ 1-2 คัน
- รูปแบบโดดเด่น ทันสมัย Style Modern
- ขนาดที่ดินเริ่มต้น 17.50-27.66 ตารางวา
- พื้นที่ใช้สอย 253-354 ตารางเมตร
โฮมออฟฟิศ 3.5 ชั้น
ตัวอย่าง Unit plan
ทําเล & การเดินทาง
ที่ตั้งโครงการ
แผนที่โครงการ
โครงการเมอริท เพลส บางนา (Merit Place Bangna) ตั้งอยู๋บริเวณ ถ.บางนา-ตราด กม.10 สามารถเข้าได้ 2 เส้นทาง คือ ซ.มหาชัย (ถ.บางนา-ตราด กม.10) และ ซ.หมู่บ้านบางพลีนิเวศน์ ติดถนนสายหลักหลายสาย อาทิ ถ.สุขุมวิท และ ถ.ศรีนครินทร์ สามารถเดินทางด้วย ถ.กาญจนาภิเษก เชื่อมตะวันออกสู่ตะวันตก, มอเตอร์เวย์ และโครงการรถไฟฟ้าสายสีเหลือง สถานีวัดศรีเอี่ยม (โครงการในอนาคต) และโครงการรถไฟฟ้ารางคู่ สถานีวัดสลุด (โครงการในอนาคต) สามารถเดินทางเข้าสู่ใจกลางเมือง และออกต่างจังหวัดได้อย่างสะดวก
การคมนาคม
- ถ.สุขุมวิท 10 กิโลเมตร
- สนามบินสุวรรณภูมิ เพียง 20 นาที
- ทางขึ้นทางด่วนบางนา เพียง 15 นาที
- ทางพิเศษบูรพาวิถี และ ถ.กาญจนาภิเษก เพียง 5 นาที
- รถไฟฟ้าสายสีเหลือง สถานีวัดศรีเอี่ยม เพียง 5 นาที (โครงการในอนาคต)
การเดินทาง
การเดินทางมาโครงการ สามารถเลือกการเดินทางได้ถึง 2 เส้นทางด้วยกัน ดังนี้
– ทางเข้าหลัก ซ.มหาชัย ถ.บางนา-ตราด กม.10 ห่างจากโครงการประมาณ 1 กิโลเมตร
– ทางเข้ารอง ซอยหมู่บ้านบางพลีนิเวศน์ (มีค่าผ่านด่านทางเข้า-ออก) ห่างจากโครงการประมาณ 2 กิโลเมตร
สถานที่สำคัญใกล้เคียงโครงการ
โครงการเมอริท เพลส บางนา (Merit Place Bangna) แวดล้อมด้วยสิ่งอำนวยความสะดวก แหล่งไลฟ์
สไตล์ชั้นนำมากมาย ดังนี้
- เมกาบางนา, อิเกีย บางนา: 1.8 กิโลเมตร
- เซ็นทรัลพลาซา บางนา: 8.0 กิโลเมตร
- โฮมโปร วิลเลจ สุวรรณภูมิ: 8.5 กิโลเมตร
- Paradise Park: 11.2 กิโลเมตร
- Seacon Square: 14.8 กิโลเมตร
- มหาวิทยาลัยอัสสัมชัญ (ABAC) เพียง 30 นาที
- โรงพยาบาลไทยนครินทร์: 8.0 กิโลเมตร
- โรงพยาบาลปิยะมินทร์: 6.2 กิโลเมตร
- โรงพยาบาลศิครินทร์: 8.7 กิโลเมตร
- ไบเทคบางนา: 11.3 กิโลเมตร
สรุป
โครงการเมอริท เพลส บางนา (Merit Place Bangna) เหมาะกับใคร?
โครงการเมอริท เพลส บางนา (Merit Place Bangna) ออกแบบบ้านให้เน้นการใช้ประโยชน์ของพื้นที่ใช้สอยสูงสุด มาพร้อมระบบ Smart Home ที่สามารถดูผ่าน Application ในมือถือได้ เป็นส่วนตัวด้วยจำนวนยูนิตเพียง 50 ยูนิต ทำให้ไม่แออัด และมีความเป็นส่วนตัว
โดดเด่นด้วยทำเลศักยภาพ ห่างเพียง 5 นาที จากทางพิเศษบูรพาวิถี และ ถ.กาญจนาภิเษก (วงแหวนรอบนอกตะวันออก) สามารถเดินทางเข้า-ออกเมือบได้อย่างสะดวกและรวดเร็ว ไม่ไกลจากรถไฟฟ้า BTS สถานีบางนา และรองรับการเดินทางในอนาคตด้วยรถไฟฟ้าสายสีเหลือง สถานีวัดศรีเอี่ยม ที่ห่างเพียง 5 นาที
โครงการเมอริท เพลส บางนา (Merit Place Bangna) จึงเหมาะสำหรับผู้ที่ต้องการที่อยู่อาศัยที่ตอบรับทั้งการใช้ชีวิต ใกล้แหล่งไลฟ์สไตล์ และเดินทางเข้า-ออกเมืองสะดวก ในสังคมที่ไม่แออัด และยังคงมีความเป็นส่วนตัว
เพิ่มเติมความรู้ คู่มือซื้อ ขาย เช่าบ้าน-คอนโดฯ พร้อมส่งตรงถึงอีเมล์ของคุณฟรี สมัครได้ที่นี่ และสามารถเลือกชม โครงการใหม่ พร้อม รีวิวโครงการคอนโดใหม่ บ้านใหม่ หลากหลายทำเลและราคาได้เช่นกัน






