แลนด์มาร์ค แอท แกรนด์สเตชั่น บาย ไซมิส แอสเสท (Landmark At Grand Station By Siamese Asset) เป็นโครงการมิกซ์ยูส บนทำเลศักยภาพ ตรงข้ามแฟชั่นไอส์แลนด์ ใกล้รถไฟฟ้าสายสีชมพู สถานีวงแหวนรามอินทรา เพียง 400 เมตร ภายในห้องออกแบบเป็น 2 ชั้น เพดานสูง 4.15 เมตร เน้นความโปร่ง โล่ง พร้อมออกแบบห้องตามพฤติกรรมและไลฟ์สไตล์ที่แตกต่างกัน ไม่ว่าจะเป็นห้องพักสำหรับผู้สูงอายุ คนที่มีสัตว์เลี้ยงหรือห้องพักในรูปแบบ Co-living และห้องพักแบบมาตรฐาน ภายในโครงการครบครันด้วยสิ่งอำนวยความสะดวกทั้งพื้นที่พักอาศัย โรงแรม ร้านค้า ร้านอาหาร และสำนักงาน ราคาเริ่มต้นเพียง 2.90 ล้านบาท
สนใจ คอนโดฯ ในโครงการนี้? เลือกชม รายการประกาศ ราคาโดนใจ
[Special Advertising Feature] ‘เอพี ไทยแลนด์’ ถือเป็นบริษัทผู้พัฒนาคอนโดมิเนียมติดรถไฟฟ้ารายแรก ๆ ในประเทศไทย โดยเลือกสรรทำเลที่มีศักยภาพ ใกล้รถไฟฟ้ามากที่สุดเพียง 1 ก้าว เพื่อพัฒนาคอนโดมิเนียมในแบรนด์แอสไปร์ ไลฟ์ ริธึ่ม และแอดเดรส ซึ่งคุ้นหน้าคุ้นตากันมากว่า 20 ปี ทั้งยังได้ร่วมมือกับพันธมิตรสำคัญอย่างมิตซูบิชิ เอสเตท กรุ๊ป (MEC) มากว่า 3 ปี พัฒนาโครงการร่วมกันมาแล้วถึง 8 โครงการ
หากจำเพาะเจาะจงที่แบรนด์ ‘ไลฟ์’ เดิมถือเป็นแบรนด์คอนโดมิเนียมที่มีราคาเริ่มต้นไม่แพงมากนัก เป็นแบรนด์ระดับกลางรองจากริธึ่ม โดยมีราคาเริ่มต้นประมาณ 90,000-130,000 บาท/ตารางเมตร แต่เพื่อตอบรับการอยู่อาศัยที่เปลี่ยนไปจากเดิม ทางเอพี (ไทยแลนด์) จึงได้ยกระดับแบรนด์ ‘ไลฟ์’ ภายใต้แนวคิด Platform of Success โดยการนำระบบดิจิตอล นวัตกรรม เทคโนโลยี และการจัดการพื้นที่ใช้สอยมาพัฒนาให้กลายเป็นคอนโดมิเนียมสำหรับปี 2017 อย่างแท้จริง โดยมีราคาเริ่มต้นประมาณ 140,000 บาท/ตารางเมตร หรือพูดง่าย ๆ คือปรับแบรนด์ให้มีความพรีเมี่ยมแต่จับต้องได้มากขึ้น ตอบรับคนรุ่นใหม่ กลุ่มสตาร์ทอัพ Young Achiever ที่ต้องการความสำเร็จทั้งเรื่องการทำงานและชีวิตส่วนตัว พร้อมเลือกสิ่งที่ดีที่สุดให้กับชีวิต และกำลังมองหาที่พักอาศัยที่มอบให้ทั้งความสะดวกสบาย ความปลอดภัย เชื่อมต่อกับผู้คนได้ตลอดเวลา สามารถปรับเปลี่ยนการใช้งานได้ตามไลฟ์สไตล์ และมีพื้นที่ที่สามารถค้นหาแรงบันดาลใจใหม่ ๆ และพัฒนาตนเองได้อยู่เสมอ โดยนับจากนี้ไปทางเอพี (ไทยแลนด์) จะใช้แบรนด์ ‘ไลฟ์’ เป็นดีเอ็นเอใหม่ในการพัฒนาโครงการคอนโดมิเนียมในอนาคต ซึ่งสิ่งที่แบรนด์ ‘ไลฟ์’ มิติใหม่นี้จะมอบให้ คือ
Epicenter Location ทำเลที่ไม่เพียงแต่อยู่ในย่านที่เป็นที่ต้องการที่สุด แต่ยังอยู่ในตำแหน่งที่ไพร์มที่สุดบนย่านนั้น ๆ เดินทางสะดวกสบายและสามารถเลือกการเดินทางได้หลายรูปแบบ ทั้งเส้นทางหลักและเส้นทางลัด ด้วยการคัดสรรทำเลด้วยหลักการ Multiple Connections และยังเป็นทำเลที่เพิ่มพูนมูลค่าสำหรับนักลงทุน
Iconic Facilities เต็มอิ่มกับสิ่งอำนวยความสะดวกครอบคลุมทุกมิติไลฟ์สไตล์ พร้อมด้วยการผสมผสาน digital solution ให้กับสิ่งอำนวยความสะดวกต่างๆ ในโครงการ โดยเฉพาะส่วน co-working space ขนาดใหญ่รองรับการทำงานในบรรยากาศที่จุดประกายความคิดสร้างสรรค์ โอบล้อมด้วยพื้นที่สีเขียวร่มรื่นให้ความรู้สึกสงบและผ่อนคลาย
Versatile Layout การจัดวาง Layout ของห้องพักมีความหลากหลาย คุ้มค่าด้วยหลักการ Zero-Waste Space และยังสามารถปรับใช้งานแบบ Multi-Function เพื่อให้ตรงกับความต้องการมากที่สุด หรือปรับเปลี่ยนการใช้งานได้คล่องตัวรองรับอนาคต
Digital Community สัมผัสอนาคตแห่งการอยู่อาศัยด้วย AP Community Application สั่งงานผ่านสมาร์ทโฟนอย่างง่ายดาย ให้ผู้อยู่อาศัยสามารถควบคุมทุกอย่างได้แบบ Real time ไม่ว่าจะอยู่ที่ไหน รองรับการปิด-เปิดระบบไฟฟ้าในห้องพัก การจองใช้พื้นที่ส่วนกลาง ระบบรักษาความปลอดภัย และการเข้าถึงพื้นที่ต่าง ๆ ในโครงการได้สะดวกสบายกว่าเดิม
Landmark of a New Neighborhood แบรนด์ ‘ไลฟ์’ จะเข้าไปเปลี่ยนโฉมทำเลนั้น ๆ ให้ก้าวไปสู่อีกระดับของชีวิตเมืองและดึงดูดการพัฒนาที่ไม่หยุดนิ่ง การันตีไลฟ์สไตล์ที่สะดวกสบาย ทั้งสถานที่แฮงก์เอ้าท์ สถานที่พักผ่อนที่หลากหลาย สวนสาธารณะร่มรื่น ห้างสรรพสินค้า และสถานที่ออกกำลังกาย
โดยทางเอพี (ไทยแลนด์) เตรียมร่วมมือกับมิตซูบิชิ เอสเตท กรุ๊ปอีกครั้ง เปิดตัวแบรนด์ ‘ไลฟ์’ มิติใหม่ ในปี 2560 จำนวน 3 โครงการ ประเดิมด้วยโครงการแรก ‘ไลฟ์ ลาดพร้าว’ แลนด์มาร์คแห่งใหม่บนทำเลห้าแยกลาดพร้าว ห่างเพียง 1 ก้าวจากรถไฟฟ้าสายสีเขียว สถานีห้าแยกลาดพร้าว และห่างเพียง 450 เมตร จากรถไฟฟ้า MRT สถานีพหลโยธิน ในราคาที่พิเศษกว่าใคร เริ่มต้นที่ 111,000 บาท/ตร.ม.
เจาะลึกข้อมูลโครงการ
ชื่อโครงการ: ไลฟ์ ลาดพร้าว
ผู้พัฒนาโครงการ: บริษัท เอพี (ไทยแลนด์) จำกัด (มหาชน)
ผู้ร่วมพัฒนาโครงการ: กลุ่มมิตซูบิชิ เอสเตท กรุ๊ป
ทำเลที่ตั้ง: ถ.พหลโยธิน เขตจตุจักร กรุงเทพฯ (ตรงข้ามเซ็นทรัลลาดพร้าว)
เว็บไซต์: www.apthai.com/คอนโด/life/life-ladprao/
โทร: 1623
รายละเอียดโครงการ (ข้อมูล ณ วันที่ 28/4/2560)
พื้นที่โครงการ: 7-0-71.4 ไร่
ลักษณะโครงการ: คอนโดมิเนียม 2 อาคาร ประกอบด้วย อาคาร A สูง 45 ชั้น และอาคาร B สูง 46 ชั้น จำนวน 1,615 ยูนิต และ 1 ร้านค้า
กลุ่มเป้าหมาย: วัยทำงานอายุระหว่าง 30-45 ปี ระดับผู้จัดการขึ้นไป หรือเจ้าของกิจการ ผู้ปกครองของนักเรียน นักศึกษา
สถานะการก่อสร้าง: เริ่มก่อสร้างเดือนกรกฎาคม 2560 คาดว่าจะแล้วเสร็จต้นปี 2563
ลิฟท์: อาคาร A ลิฟท์โดยสาร 4 ตัว ลิฟท์ส่งของ 1 ตัว อาคาร B ลิฟท์โดยสาร 5 ตัว ลิฟท์ส่งของ 1 ตัว
ที่จอดรถ: 716 คัน
สิ่งอำนวยความสะดวก: ล็อบบี้ สวน สระว่ายน้ำแบบไร้ขอบ ฟิตเนส ห้องสตีม ห้องซาวน่า Sky lounge, Private meeting Room, Sky Bar, Social Club ฯลฯ ติดตั้งระบบ Digital เต็มรูปแบบ
ระบบรักษาความปลอดภัย: เปิด-ปิดประตูทางเข้าโครงการ ล็อบบี้ ห้องพัก ผ่านสมาร์ทโฟน พร้อมกล้องวงจรปิด และพนักงานรักษาความปลอดภัยตลอด 24 ชั่วโมง
สถานะการขาย: Pre-sale วันที่ 20–21 พฤษภาคม 2560
เงินกองทุนสะสม: 500 บาท/ตารางเมตร
ค่าส่วนกลาง: 50 บาท/ตารางเมตร/เดือน
ราคาเริ่มต้น: 111,000 บาท/ตร.ม.
ราคาเฉลี่ย: 140,000 บาท/ตร.ม.
*โปรโมชั่น
ลงทะเบียนหน้าเว็บไซต์รับส่วนลดสูงสุด 100,000 บาท
รูปแบบห้อง
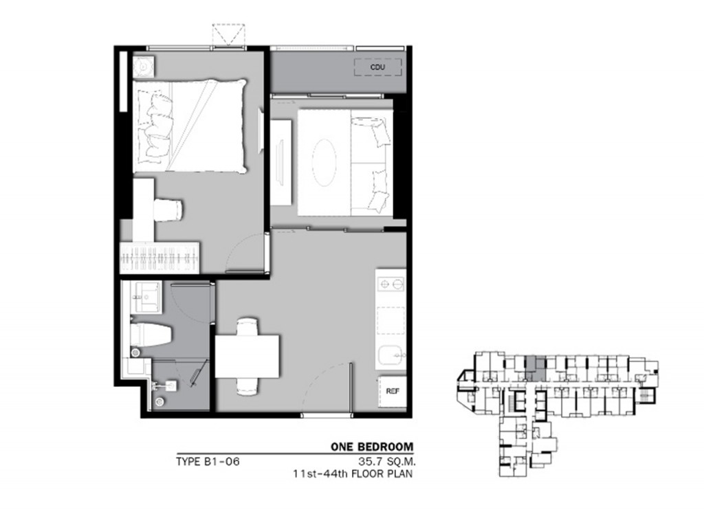
– สตูดิโอ พื้นที่ใช้สอย 26-29 ตารางเมตร จำนวน 509 ยูนิต
1 ห้องนอน พื้นที่ใช้สอย 35 ตารางเมตร จำนวน 832 ยูนิต
2 ห้องนอน 2 ห้องน้ำ พื้นที่ใช้สอย 48-74 ตารางเมตร จำนวน 273 ยูนิต
ดูเพล็กซ์ พื้นที่ใช้สอย 342 ตารางเมตร จำนวน 1 ยูนิต
รายละเอียดโครงการ
รีวิวภาพรวมโครงการ
จากที่กล่าวไว้ข้างต้นว่ามิติใหม่ของแบรนด์ ‘ไลฟ์’ คือนิยามของที่อยู่อาศัยในปี 2017 และในอนาคต ซึ่งจะตั้งอยู่ในทำเลที่เป็นที่ต้องการที่สุดและในตำแหน่งที่ไพร์มที่สุดในย่านนั้น ซึ่งโครงการแรก ‘ไลฟ์ ลาดพร้าว’ ถือว่าตอบโจทย์ทางด้านที่ตั้งเป็นอย่างยิ่ง เนื่องจากตั้งอยู่บริเวณห้าแยกลาดพร้าว ทำเลศูนย์กลางทั้งด้านแฟชั่น และการคมนาคมแห่งหนึ่งของกรุงเทพฯ ถือเป็นทำเลที่ไพร์มที่สุดบนแนวรถไฟฟ้าสายสีเขียว ช่วงหมอชิต-สะพานใหม่-คูคต ซึ่งการมาของ ‘ไลฟ์ ลาดพร้าว’ จะกลายเป็นแลนด์มาร์คแห่งใหม่ที่จะยกระดับของชีวิตเมืองของทำเลแห่งนี้ให้มีความสมบูรณ์มากยิ่งขึ้น
การออกแบบดีไซน์ของตัวโครงการไลฟ์ ลาดพร้าว ยังมีความโดดเด่น โดยได้แรงบันดาลใจมาจากลวดลาย Silhouette ของผ้าฉลุ ซึ่งถือเป็นเอกลักษณ์เฉพาะที่จะทำให้เป็นที่จดจำของผู้ที่สัญจรไปมา สมกับที่เป็นแลนด์มาร์คแห่งใหม่ของย่านห้าแยกลาดพร้าว
นอกจากนี้ยังตอบรับสังคมดิจิตอลทัลแบบเต็มรูปแบบ และความสะดวกสบายในการอยู่อาศัยให้เพิ่มมากขึ้น ภายใต้วิสัยทัศน์ AP Digital Community ที่มุ่งเน้นให้เกิดการพัฒนาอย่างยั่งยืนผ่านการวางระบบ infrastructure ระบบโครงสร้างภายในที่พร้อมรองรับเทคโนโลยีต่างๆ รวมถึงการนำเทคโนโลยีเข้ามาช่วยมอบความสะดวกสบาย และความปลอดภัยให้กับผู้อยู่อาศัยมากกว่าเดิม
จุดโดดเด่นแตกต่าง หรือ Wow Factors หลัก 3 ประการของคอนโดมิเนียม ไลฟ์ ลาดพร้าว มีดังนี้
1. AP INTELLIGENT FACILITY ผสานเทคโนโลยีในการดีไซน์พื้นที่ส่วนกลาง ครั้งแรกในการใช้ชีวิต Digital Community อย่างเต็มรูปแบบ ด้วยการติดตั้ง Infrastructure ที่พร้อมรองรับสิ่งอำนวยความสะดวก และสัญญาณ Wi-fi ทุกจุด
– Portable Working Station นอกเหนือจากพื้นที่ส่วนกลางที่รองรับการพักผ่อนและการต้อนรับแขก โครงการไลฟ์ ลาดพร้าว ยังเพิ่มพื้นที่ Portable Working Station ที่จะทำให้การเชื่อมต่อเป็นเรื่องง่าย พร้อมการติดตั้งอุปกรณ์ที่พร้อมรองรับการใช้งานจริง อาทิ เทคโนโลยีซาวน์โดม (Sound Dome) จอทัชสกรีน (Touchscreen) ผนังของห้องที่สามารถใช้เป็น Mirror Board หรือ Wireless Phone Charger เป็นต้น ที่จัดเตรียมให้ในทุกพื้นที่ส่วนกลางของโครงการ และพิเศษอีกขั้นด้วย Alexa System ระบบอัตโนมัติที่สามารถสั่งงานด้วยเสียง
– Private Meeting Room พื้นที่สำหรับการทำงานเป็นกลุ่ม พร้อมระบบ Digital เต็มรูปแบบ อาทิ อุปกรณ์ไร้สายเชื่อมต่อระหว่างคอมพิวเตอร์และจอทัชสกรีน เพื่อความสะดวกในการนำเสนองาน เป็นต้น
– Sky Working Space & Cocoon Space พื้นที่ทำงานบนชั้นที่ 45 พร้อมติดตั้ง Cocoon Space ให้เป็น Private Space แม้จะอยู่ในพื้นที่ส่วนกลาง ก็สามารถนั่งทำงานได้โดยไม่ถูกรบกวนและสามารถใช้ Wi-fi ที่จัดเตรียมไว้ให้ได้เช่นกัน
นอกจากนี้ ทางโครงการยังเตรียม Outdoor Facility บนพื้นที่สีเขียวขนาดใหญ่กว่า 3 ไร่ ที่ทางโครงการได้ออกแบบแลนด์สเคปโดยจัดวางที่นั่งและทางเดินในมุมที่ร่มรื่นพร้อมต้นไม้และสายน้ำ เพื่อความสวยงามเหมือนนั่งทำงานท่ามกลางธรรมชาติ และยังสามารถใช้ Wi-fi ได้เหมือนอยู่ภายในอาคาร
ครบครันด้วย Iconic Infinity Lap Pool สระว่ายน้ำแบบไร้ขอบรับวิวเมือง และที่นั่ง Sky Cabana ที่หรูหราและผ่อนคลาย พร้อม Panoramic Fitness ห้องฟิตเนสมุมกว้าง ที่พิเศษด้วย Private Treadmill และ Yoga Fly Facilities
2. AP INTELLIGENT CONTROL ทุกอย่างควบคุมได้เพียงปลายนิ้ว ภายใต้วิสัยทัศน์ AP Digital Community อย่างเต็มรูปแบบ ที่จะเข้ามาส่งเสริมให้การใช้ชีวิตของคนรุ่นใหม่ให้สะดวกสบายและปลอดภัยในรูปแบบใหม่ที่สะดวกกว่าเดิม โดยบริษัทฯ ได้วางแผนพัฒนา AP Community Application ที่จะช่วยเติมเต็มมากกว่าแค่ความสะดวกสบาย แต่รวมถึงความปลอดภัยและง่ายดายมากขึ้น โดยใช้แทนคีย์การ์ดของคอนโดมิเนียม ที่สามารถสั่งเปิด-ปิดประตูได้ตั้งแต่ประตูทางเข้าคอนโดมิเนียม ประตูห้องพัก นอกจากนี้ ผู้อยู่อาศัยยังสามารถใช้ระบบแอพพลิเคชั่นนี้ในการจองสิ่งอำนวยความสะดวกต่าง ๆ เช่น ห้องประชุม หรือติดต่อประสานงานกับผู้ดูแลคอนโดมิเนียม e-Payment การติดตามการแจ้งซ่อม รวมทั้งให้คำแนะนำ และรับทราบข้อมูลข่าวสารต่าง ๆ ของคอนโดมิเนียมได้อีกด้วย รวมทั้งในอนาคตจะสะดวกสบายยิ่งขึ้นสำหรับผู้ที่ซื้อคอนโดมิเนียมของเอพีมากกว่า 1 ห้อง หรือ 1 โครงการ ก็สามารถสั่งการทำงานของทุกห้องผ่านแอพพลิเคชั่นเพียงตัวเดียวได้ทันที
3. AP INTELLIGENT SPACE ดีไซน์พื้นที่ใช้สอยให้ปรับเปลี่ยนได้ตามสไตล์การใช้งานครั้งแรกของวงการคอนโดมิเนียมไทยที่เปลี่ยนข้อจำกัดของพื้นที่สู่การออกแบบ ห้องพักขนาด 35 ตารางเมตร ให้สามารถปรับเปลี่ยนฟังก์ชั่นของห้องให้ตรงตามความต้องการและไลฟ์สไตล์ของผู้อยู่อาศัยได้ เช่น ปรับเปลี่ยนห้องรับแขกเป็นห้องนอนอีก 1 ห้อง เป็นห้องทำงาน หรือห้องแต่งตัว เป็นต้น ซึ่งในขนาดห้องประมาณ 35 ตารางเมตร แต่สามารถทำเป็น 2 ห้องนอนที่อาศัยอยู่ได้จริง ถือว่าคุ้มค่าและยังไม่มีผู้ประกอบการรายไหนทำได้ พร้อมด้วยระบบ AP Master Switch โดยจะเป็นสวิตช์ไฟที่ติดตั้งอยู่ที่หน้าประตูห้อง ผู้อยู่อาศัยสามารถปิดสวิตช์นี้เพียงครั้งเดียว แทนที่จะตามปิดไฟทุกสวิตช์ในห้อง ช่วยให้ประหยัดเวลา เหมาะกับไลฟ์สไตล์ที่เร่งรีบและรักความสะดวกของคนเมือง
ครั้งแรกในประเทศไทยกับนวัตกรรม AP CORRIDOR WINDOW INNOVATION ที่ช่วยลดปัญหาความร้อนและความอับชื้นภายในโถงทางเดินของคอนโดมิเนียมแต่ละชั้น ด้วยการออกแบบบานหน้าต่างรูปแบบพิเศษลิขสิทธิ์เฉพาะของเอพี ที่ช่วยให้อากาศในแต่ละชั้นมีการถ่ายเทหมุนเวียนตามธรรมชาติตลอด 24 ชั่วโมง สร้างความโปร่ง โล่ง สบายมากยิ่งขึ้น ทั้งยังลดการสะสมของแบคทีเรีย รวมถึงความร้อนภายในตัวอาคาร อีกทั้งนวัตกรรมนี้ยังออกแบบโดยคำนึงถึงสภาวะฝนตก ด้วยโครงตาข่าย (grille) 3 ชั้นที่ซ่อนอยู่ภายในโครงหน้าต่าง ซึ่งจะช่วยหักเหทิศทางของลม ไม่ให้สายฝนผ่านเข้ามายังโถงทางเดิน ขณะที่อากาศก็ยังสามารถหมุนเวียนได้ตามปกติตลอดวัน
การวางทิศทางโครงการ

ด้านหน้าโครงการติด ถ.พหลโยธิน และรถไฟฟ้าสายสีเขียว สถานีห้าแยกลาดพร้าว ในอนาคต อยู่ตรงข้ามกับเซ็นทรัล ลาดพร้าว
Master Plan
Floor Plan
ทั้ง 2 อาคาร ออกแบบใกล้เคียงกัน ขอยกตัวอย่างเฉพาะอาคาร A

ชั้นที่ 45 เป็นชั้นสิ่งอำนวยความสะดวก ได้แก่ สระว่ายน้ำ Sky cabana ฟิตเนส ห้องสตีม ห้องซาวน่า Social Club
Unit Layout
สิ่งอำนวยความสะดวกภายในโครงการ
ไลฟ์ ลาดพร้าว มีสิ่งอำนวยความสะดวกภายในโครงการอย่างครบครันทั้ง 2 อาคาร อาทิ ล็อบบี้ สวน สระว่ายน้ำแบบไร้ขอบ ฟิตเนส ห้องสตีม ห้องซาวน่า Sky Theatre Lounge, Private meeting Room, Sky Bar, Social Club, Sky Treadmill, Yoga Fly Facility ฯลฯ และอย่างที่กล่าวไว้ข้างต้นว่าเป็นโครงการที่ผู้อยู่อาศัยสามารถใช้ชีวิตแบบ Digital Community ได้อย่างเต็มรูปแบบ มีพื้นที่ที่รองรับทั้งการพักผ่อน ต้อนรับแขก และทำงานอยู่ทั่วทั้งโครงการ

พื้นที่ Social Club และ Co-working Space บริเวณล็อบบี้ รองรับระบบ Digital เต็มรูปแบบ Techno Booth ที่นั่งทำงานแบบส่วนตัว มาพร้อมเทคโนโลยีซาวน์โดม (Sound Dome) ปิดกั้นเสียงจากภายนอกและภายใน เพื่อความเป็นส่วนตัว จอทัชสกรีน (Touchscreen) และผนังของห้องที่สามารถใช้เป็น Mirror Board ได้ สะดวกสบายในการประชุมและนำเสนองาน และ Wireless Phone Charger เหนือล้ำด้วย Alexa System ระบบอัตโนมัติที่สามารถสั่งงานด้วยเสียง

Iconic Infinity Lap Pool สระว่ายน้ำแบบไร้ขอบ อาคาร A ขนาด 20×6.3 เมตร อาคาร B ขนาด 30×7.7 เมตร ลึก 1.20 เมตร พร้อมสระเด็ก รับวิวเมือง และที่นั่ง Sky Cabana ที่หรูหราและผ่อนคลาย

Sky Bar และ Social Club พื้นที่นั่งพักผ่อน บนชั้นที่ 45 พร้อมติดตั้ง Cocoon Space ให้เป็นพื้นที่ส่วนตัวให้สามารถนั่งทำงานได้โดยไม่ถูกรบกวน พร้อมสัญญาณ Wi-fi

Sky Theatre Lounge บนชั้นลอยของชั้นที่ 45 ที่สามารถจองใช้งานแบบส่วนตัวได้ พร้อมระบบ Alexa System ระบบอัตโนมัติที่สามารถสั่งงานด้วยเสียง ใช้เปิดไฟ ผ้าม่าน ปรับอุณหภูมิ และเป็นตัวควบคุมมัลติมีเดีย
รีวิวภายในห้องตัวอย่าง
สิ่งที่จะได้รับจากโครงการ
พื้น: พื้นห้องครัว ห้องนั่งเล่น ห้องนอน ลามิเนต หนา 8 มิลลิเมตร พื้นห้องน้ำ กระเบื้องแกรนิตโต้ ขนาด 60×60 มิลลิเมตร พื้นระเบียง กระเบื้องเซรามิก ขนาด 30×30 เซนติเมตร
ผนัง: อิฐมวลเบาฉาบเรียบสีขาว ผนังห้องน้ำ กระเบื้องแกรนิตโต้ ขนาด 60×60 เซนติเมตร ผนังห้องครัว กระเบื้องแกรนิตโต้ ขนาด 60×60 เซนติเมตร
พื้นจรดเพดานความสูง: ห้องครัว ห้องนั่งเล่น ห้องนอน สูง 2.55 เมตร ห้องน้ำ สูง 2.3 เมตร
เครื่องปรับอากาศ: ไดกิ้น 2 เครื่อง
สุขภัณฑ์: อ่างล้างหน้าของ Bathroom Design โถสุขภัณฑ์ของ Kohler ก๊อกน้ำและฝักบัวของ Grohe
ชุดครัว: อ่างล้างจาน เตาไฟฟ้าฐานเซรามิก 2 หัว และเครื่องดูดควัน ของ Franke
ห้องตัวอย่างขนาด 1 ห้องนอน 1 ห้องนอน พื้นที่ใช้สอย 35 ตารางเมตร

ด้านขวาเป็นตู้ครัวบิวท์อินบน-ล่าง Top เคาน์เตอร์ครัวด้านล่างเป็นหินสังเคราะห์ ผนังปูกระเบื้องแกรนิตโต้ ขนาด 60×60 เซนติเมตร

ถัดมาเป็นห้องน้ำ เพดานสูง 2.33 เมตร ขอบประตูสูงประมาณ 15 เซนติเมตร อุปกรณ์ครบครัน พร้อมกระจกเงาแบบเต็มบาน

ห้องนั่งเล่นขนาดกว้างขวาง กั้นด้วยประตูกระจกแบบ 3 บานพับ โซฟาห่างจากโทรทัศน์ประมาณ 1.60 เมตร พื้นที่ส่วนนี้สามารถปรับเปลี่ยนฟังก์ชั่นได้หลากหลาย ไม่ว่าจะเป็นห้องทำงาน ห้องแต่งตัว หรือห้องนอนอีก 1 ห้อง สามารถวางเตียงขนาด 3-5 ฟุต ได้สบายๆ

ระเบียงกว้างประมาณ 90 เซนติเมตร ยาวประมาณ 2.50 เมตร รั้วสูงประมาณ 1.10 เมตร พื้นปูด้วยกระเบื้องเซรามิก ขนาด 30×30 เซนติเมตร ติดตั้งก๊อกน้ำ พร้อมท่อระบายน้ำให้เรียบร้อย ด้านข้างติดตั้งคอมเพรสเซอร์เครื่องปรับอากาศ พร้อมระแนงกั้นเพื่อความสวยงาม ติดตั้งสูงจากพื้น 1.30 เมตร

มาต่อกันที่ห้องนอนขนาดกว้างขวาง พื้นที่ด้านข้างเตียงห่างจากตู้เสื้อผ้าประมาณ 1.40 เมตร วางโต๊ะเขียนหนังสือได้สบาย ๆ ปลายเตียงห่างจากผนังประมาณ 60 เซนติเมตร ติดตั้งโทรทัศน์แบบแขวนผนังก็ยังสามารถเดินเข้าออกได้สะดวก ข้างเตียงอีกด้านห่างจากหน้าต่างกระจกบานกระทุ้งประมาณ 70 เซนติเมตร วางที่วางโคมไฟได้
ห้องตัวอย่างขนาด 2 ห้องนอน 2 ห้องน้ำ พื้นที่ใช้สอย 55 ตารางเมตร

ห้องครัวมาพร้อมตู้บิวท์อินบน-ล่าง Top เคาร์เตอร์ครัวเป็นหินสังเคราะห์ อ่างล้างจาน เตาไฟฟ้าฐานเซรามิก 2 หัว และเครื่องดูดควันของ Franke

เชื่อมต่อกับระเบียงด้วยประตูกระจกแบบ 3 บานพับ ระเบียงกว้างประมาณ 1.05 เมตร ยาวประมาณ 2.90 เมตร ขอบประตูสูงประมาณ 20 เซนติเมตร รั้วสูงประมาณ 1.10 เมตร พื้นปูด้วยกระเบื้องเซรามิก ขนาด 30×30 เซนติเมตร ด้านข้างติดตั้งก๊อกน้ำและท่อระบายน้ำให้เรียบร้อย ด้านบนติดตั้งคอมเพรสเซอร์เครื่องปรับอากาศ มีระแนงกั้นเพื่อความสวยงาม

ด้านซ้ายเป็นห้องน้ำ เพดานสูง 2.33 เมตร ขอบประตูสูงประมาณ 15 เซนติเมตร มีทางเข้า 2 ทาง คือจากโถงทางเดิน และห้องนอนเล็ก อุปกรณ์ครบครัน อ่างล้างหน้าของ Bathroom Design โถสุขภัณฑ์ของ Kohler ก๊อกน้ำและฝักบัวของ Grohe
ทําเล & การเดินทาง
ศักยภาพทำเล
ปัจจุบันทำเลห้าแยกลาดพร้าว ถือว่าเป็นทำเลที่มีการพัฒนาอย่างต่อเนื่อง โดยได้รับอานิสงส์จากเมกะโปรเจกต์ของภาครัฐ อย่างสถานีกลางบางซื่อ รถไฟฟ้าชานเมืองสายสีแดง และรถไฟฟ้าสายสีเขียว ช่วงหมอชิต-สะพานใหม่-คูคต ทำให้ราคาที่ดินในทำเลนี้สูงขึ้นอย่างมาก จากราคาประเมินที่ดินรอบปี 2559-2562 ของกรมธนารักษ์ พบว่า ราคาอยู่ที่ 250,000-280,000 บาท/ตารางวา ส่วนราคาขายจริงในตลาดอยู่ที่ประมาณ 350,000-500,000 บาท/ตารางวา ทำให้ราคาที่อยู่ในอาศัยในทำเลนี้พุ่งไปสูงกว่า 160,000 บาท/ตารางเมตร และคาดว่าหลังจากรถไฟฟ้าสายสีเขียว ช่วงหมอชิต-สะพานใหม่-คูคต เปิดให้บริการแล้ว ราคาจะพุ่งไปถึง 600,000 บาท/ตารางวา
อย่างไรก็ตาม แม้ว่าจะอยู่ในทำเลศักยภาพ แต่ซัพพลายที่เปิดใหม่กลับมีจำนวนไม่มากนัก โดยหากพิจารณาจากทำเลติดรถไฟฟ้าย่านสะพานควาย-พหลโยธิน ปัจจุบันมีซัพพลายไม่มากนัก สวนทางกับความต้องการที่อยู่อาศัยในทำเลนี้ที่ยังคงเติบโตอย่างต่อเนื่อง จำนวนซัพพลายคงเหลือขายย้อนหลัง 5 ปี พบว่า มีคอนโดมิเนียมเหลือขายเพียงประมาณ 2,000 ยูนิต โดยเป็นของผู้ประกอบการรายใหญ่ประมาณ 900 ยูนิต
และหากย้อนดูแนวโน้มการเปิดตัวในแต่ละปี โดยเฉพาะของผู้ประกอบการรายใหญ่ จะเห็นได้ว่ามีการเปิดตัวในสัดส่วนที่น้อยลง ส่วนหนึ่งเนื่องมาจากที่ดินส่วนใหญ่ได้รับการพัฒนาในเชิงพาณิชย์อื่น ๆ ไปแล้ว ทำให้การหาซื้อที่ดินขนาดที่เหมาะสมกับการพัฒนาคอนโดมิเนียมติดรถไฟฟ้าทำได้ยาก ซึ่งสวนทางกับความต้องการที่อยู่อาศัยที่มีอย่างต่อเนื่อง สังเกตุได้จากยอดขายเฉลี่ยอยู่ที่ 85% โดยเฉพาะคอนโดมิเนียมติดรถไฟฟ้าระดับกลางถึงไฮเอนด์ระดับ ราคา 3-7 ล้านบาท แสดงให้เห็นว่าตลาดคอนโดมิเนียมติดรถไฟฟ้าย่านสะพานควาย-พหลโยธินยังไม่โอเวอร์ซัพพลาย
ทำเลที่ตั้งโครงการ
ไลฟ์ ลาดพร้าว ตั้งอยู่บนทำเลที่ดีที่สุดบริเวณห้าแยกลาดพร้าว ตรงข้ามห้างเซ็นทรัลลาดพร้าว ใกล้แหล่งช้อปปิ้ง โรงเรียน อาคารสำนักงาน และยังใกล้กับสวนสาธารณะขนาดใหญ่ ไม่ว่าจะเป็นสวนสมเด็จพระนางเจ้าสิริกิติ์ สวนจตุจักร และสวนวชิรเบญจทัศ (สวนรถไฟ) เหมาะกับการพักผ่อนและการออกกำลังกาย ทั้งยังเป็นศูนย์กลางการคมนาคม สะดวกทั้งการใช้รถยนต์ส่วนตัว และระบบขนส่งสาธารณะ ตั้งอยู่บนทำเลเชื่อมต่อที่สำคัญและดีที่สุดบริเวณห้าแยกลาดพร้าว เพียง 1 ก้าวจากรถไฟฟ้าสายสีเขียวช่วงหมอชิต-สะพานใหม่-คูคต สถานีห้าแยกลาดพร้าว และห่างเพียง 450 เมตร จากรถไฟฟ้า MRT สถานีพหลโยธิน ห่างเพียง 5 นาทีจากรถไฟฟ้า BTS สถานีหมอชิต ใกล้จุดขึ้น-ลงทางด่วน
การเดินทาง
การเดินทางมาโครงการทำได้สะดวกสบาย จากรถไฟฟ้า MRT สถานีพหลโยธิน ซึ่งห่างเพียง 450 เมตร โดยขอแนะนำการเดินทางดังนี้
รถประจำทาง
มีป้ายรถประจำทางอยู่บริเวณด้านหน้าเทสโก้ โลตัส ซึ่งห่างจากโครงการประมาณ 70 เมตร โดยรถประจำทางที่ผ่านโครงการมีดังนี้
รถประจำทาง ขสมก. สาย 24 ประชานิเวศน์ 3-อนุสาวรีย์ชัยสมรภูมิ
รถประจำทาง ขสมก. สาย 26 มีนบุรี-อนุสาวรีย์ชัยสมรภูมิ
รถเอกชนร่วมบริการ สาย 28 จตุจักร-ตลิ่งชัน
รถประจำทาง ขสมก. สาย 34 รังสิต-หัวลำโพง
รถประจำทาง ขสมก. สาย 39 ตลาดไท-อนุสาวรีย์ชัยสมรภูมิ
รถประจำทาง ขสมก. สาย 59 รังสิต-สนามหลวง
รถประจำทาง ขสมก. สาย 104 ปากเกร็ด-ถ.ติวานนท์-หมอชิต 2
รถประจำทาง ขสมก. สาย 107 บางเขน-ท่าเรือคลองเตย
รถประจำทาง ขสมก. สาย 129 บางเขน-สำโรง
รถประจำทาง ขสมก. สาย 136 อู่คลองเตย-หมอชิต 2
รถเอกชนร่วมบริการ สาย 157 อ้อมใหญ่-พรานนก-หมอชิต 2
โครงการในอนาคต
– รถไฟฟ้าสายสีเขียว ช่วงหมอชิต-สะพานใหม่-คูคต ระยะทางประมาณ 19 กิโลเมตร จำนวน 16 สถานี คาดว่าจะสามารถเปิดให้บริการได้ในปี 2563 สถานีที่ใกล้โครงการมากที่สุดคือ สถานีห้าแยกลาดพร้าว ห่างจากโครงการเพียง 1 ก้าว
– สถานีกลางบางซื่อ เนื้อที่รวม 2,325 ไร่ ศูนย์กลางการเปลี่ยนถ่ายระบบคมนาคมทางรางที่ใหญ่ที่สุดในอาเซียน โดยจะเป็นจุดเชื่อมต่อของรถไฟฟ้าหลากสี รถไฟความเร็วสูง และรถไฟรางคู่ นอกจากนี้ พื้นที่รอบสถานีกลางบางซื่อจะพัฒนาในเชิงพาณิชย์ บนเนื้อที่ 218 ไร่ ซึ่งจะมีทั้งสำนักงาน ห้างสรรพสินค้า ที่พักอาศัย และพื้นที่นันทนาการ
– เส้นทาง BRT เชื่อมต่อพื้นที่รอบสถานีกลางบางซื่อ โครงข่ายเชื่อมการเดินทางภายในย่านพหลโยธิน แนวเส้นทางวิ่งเป็นวงกลม จากสถานีกลางบางซื่อ ผ่านรถไฟฟ้า BTS และรถไฟฟ้า MRT ที่สถานีจตุจักร เซ็นทรัล ลาดพร้าว อาคารเอนเนอร์ยี่คอมเพล็กซ์ โครงการพัฒนาย่าน กม.11 มาสิ้นสุดที่สถานีจตุจักรของรถไฟฟ้าชานเมืองสายสีแดง ระยะทางรวม 10.3 กิโลเมตร แบ่งการพัฒนาเป็น 2 เฟส เฟสแรกเริ่มต้นสถานีกลางบางซื่อ-เซ็นทรัล ลาดพร้าว มี 6 สถานี จะเริ่มก่อสร้างปี 2560 และเฟสที่ 2 เริ่มจากเซ็นทรัล ลาดพร้าว-สถานีกลางบางซื่อ เริ่มก่อสร้างปี 2565
– เมกะโปรเจกต์ บีทีเอส-จีแลนด์ บริษัท บีทีเอส กรุ๊ป โฮลดิ้ง จำกัด (มหาชน) หรือบีทีเอส ร่วมทุนกับบริษัท แกรนด์ คาแนล แลนด์ จำกัด (มหาชน) หรือ จีแลนด์ สัดส่วน 50:50 จัดตั้งบริษัท เบย์วอเตอร์ จำกัด เตรียมพัฒนาพื้นที่ตรงข้ามแดนเนรมิตเดิม (โครงการบางกอกโดมเดิม) เนื้อที่ 48 ไร่ เป็นโครงการมิกซ์ยูส ทั้งห้างสรรพสินค้า ออฟฟิศ และคอนโดมิเนียม มูลค่าลงทุนกว่า 20,000 ล้านบาท ล่าสุดได้นำที่ดิน 10 ไร่ ก่อสร้างเป็นถนนกว้าง 30 เมตร ประมาณ 7-8 ช่องจราจร เชื่อมการเดินทางจาก ถ.พหลโยธิน ซ.19/1 ทะลุ ถ.วิภาวดีรังสิต ระยะทางกว่า 1 กิโลเมตร โดยจะเปิดให้ประชาชนใช้โดยไม่เก็บค่าผ่านทาง เพื่อเป็นเส้นทางลัดเลี่ยงรถติดบริเวณแยกรัชโยธิน
สถานที่สำคัญรอบโครงการ
– สวนสาธารณะขนาดใหญ่ 3 แห่ง ประกอบด้วย สวนสมเด็จพระนางเจ้าสิริกิติ์ เนื้อที่ 196 ไร่ สวนวชิรเบญจทัศ (สวนรถไฟ) เนื้อที่ 375 ไร่ และสวนจตุจักร เนื้อที่ 155 ไร่ สำหรับพักผ่อน ชมพิพิธภัณฑ์ และออกกำลังกาย อนาคตมีโครงการเชื่อม 3 สวนสาธารณะเป็น “อุทยานสวนจตุจักร” ตามพระราชดำรัสของพระบาทสมเด็จพระปรมินทรมหาภูมิพลอดุลยเดช โดยสวนสมเด็จพระนางเจ้าสิริกิติ์และสวนรถไฟ มีสะพานข้ามคูน้ำเชื่อมกันอยู่แล้ว 2 แห่ง คือสะพานชมนก และสะพานตัวเอส เหลือเพียงการเชื่อมโยงสวนจตุจักรกับสวนสมเด็จพระนางเจ้าสิริกิติ์ ซึ่งมี ถ.กำแพงเพชร 3 คั่นกลาง โดยวางแผนจะสร้างประตูสวนจตุจักรให้ตรงกับประตูสวนสมเด็จพระนางเจ้าสิริกิติ์ พร้อมกับทำทางลาด คาดว่าจะก่อสร้างแล้วเสร็จภายในปี 2560
ร้านอาหาร
– แหลมเกต อินฟินิต ซีฟู้ดบุฟเฟ่ต์ที่แรกและที่เดียวในโลกที่เสิร์ฟอาหารแบบ A la carte ด้วยคุณภาพความสดของวัตถุดิบที่ส่งตรงจากทะเลศรีราชาทุกวัน เมนูแนะนำ ได้แก่ หอยนางรมสด และปลากะพง ที่ทางร้านมีฟาร์มของตัวเอง พลาดไม่ได้กับโรตีแหลมเกต และเมนูอาหารอีกมากมายกว่า 24 เมนู เปิดให้บริการ 4 รอบต่อวัน เวลา 11.30-13.00 น., 13.30-15.00 น., 17.30-19.00 น. และ 19.30-21.00 น. หยุดทุกวันอังคาร ตั้งอยู่ในอาคารเอสเจ อินฟินิท วันบิสซิเนส คอมเพล็กซ์ ติดกับ ถ.วิภาวดีรังสิต ห่างจากโครงการประมาณ 1 กิโลเมตร
– ร้านอาหารขวัญจิตร ร้านอาหารมุมสวนร่มรื่นในบรรยากาศร่วมสมัยที่มีชื่อเสียงในเรื่องไส้กรอกมานานหลายสิบปี สืบทอดกันมาถึง 3 สมัย มีเมนูอาหารมากมายโดยนำเอารสชาติอาหารเอเชียและยุโรปมาผสมผสานกันได้อย่างลงตัว นอกจากไส้กรอกนานาชนิดแล้วทางร้านยังมีเค้กและขนมสูตรดั้งเดิม เมนูแนะนำ ได้แก่ ไส้กรอกขวัญจิตร พร้อมมันบด และซาวร์เคร้าท์ เปิดทุกวัน เวลา 08.30-22.00 น. ตั้งอยู่ใน ซ.พหลโยธิน 34 ห่างจากโครงการประมาณ 2.5 กิโลเมตร
อาคารสำนักงาน
ปัจจุบันบริเวณห้าแยกลาดพร้าว และพื้นที่ใกล้เคียง กลายเป็นแหล่งงานขนาดใหญ่ ที่มีบริษัทชั้นนำของประเทศหลายแห่งมาตั้งสำนักงานใหญ่ และอาคารสำนักงานขนาดใหญ่ตั้งอยู่ในทำเลนี้ โดยรวมแล้วจะมีคนที่ทำงานอยู่ในทำเลนี้กว่า 50,000 คน ซึ่งเป็นกลุ่มคนที่มีศักยภาพสูงทั้งสิ้น
ห้างสรรพสินค้าและแหล่งช้อปปิ้ง
เทสโก้ โลตัส ริม ถ.พหลโยธิน ห่างจากโครงการประมาณ 70 เมตร
เซ็นทรัล ลาดพร้าว ใกล้ห้าแยกลาดพร้าว ห่างจากโครงการประมาณ 250 เมตร
ยูเนี่ยนมอลล์ ซ.ลาดพร้าว 1 ริม ถ.พหลโยธิน ห่างจากโครงการประมาณ 400 เมตร
เมเจอร์รัชโยธิน ริม ถ.พหลโยธิน ห่างจากโครงการประมาณ 1.4 กิโลเมตร
บิ๊กซี ลาดพร้าว 2 ใกล้ ซ.ลาดพร้าว 9 ห่างจากโครงการประมาณ 1.5 กิโลเมตร
SCB Park ริม ถ.รัชดาภิเษก ห่างจากโครงการประมาณ 1.7 กิโลเมตร
ตลาดบางเขน ซ.พหลโยธิน 32/1 ห่างจากโครงการประมาณ 2.3 กิโลเมตร
ตลาดนัดสวนจตุจักร ถ.กำแพงเพชร 2 ห่างจากโครงการประมาณ 2.4 กิโลเมตร
บอง มาร์เช่ ถ.เทศบาลสงเคราะห์ ห่างจากโครงการประมาณ 4.5 กิโลเมตร
สถานพยาบาล
โรงพยาบาลเปาโลเกษตร ริม ถ.พหลโยธิน ห่างจากโครงการประมาณ 2.6 กิโลเมตร
โรงพยาบาลวิภาวดี ซ.วิภาวดีรังสิต 52 ห่างจากโครงการประมาณ 4 กิโลเมตร
โรงพยาบาลเกษมราษฎร์ ประชาชื่น ริม ถ.ประชาชื่น ห่างจากโครงการประมาณ 4.6 กิโลเมตร
สถานศึกษา
โรงเรียนหอวัง ริม ถ.หอวัง ห่างจากโครงการประมาณ 200 เมตร
โรงเรียนเซนต์จอห์นเทคโนโลยี ซ.วิภาวดีรังสิต 26 ห่างจากโครงการประมาณ 750 เมตร
โรงเรียนเซนต์จอห์น ริม ถ.วิภาวดีรังสิต ห่างจากโครงการประมาณ 850 เมตร
มหาวิทยาลัยเซนต์จอห์น ริม ถ.วิภาวดีรังสิต ห่างจากโครงการประมาณ 900 เมตร
มหาวิทยาลัยราชภัฏจันทรเกษม ริม ถ.รัชดาภิเษก ห่างจากโครงการประมาณ 2.7 กิโลเมตร
มหาวิทยาลัยเกษตรศาสตร์ ริม ถ.งามวงศ์วาน, ถ.พหลโยธิน ห่างจากโครงการประมาณ 3 กิโลเมตร
มหาวิทยาลัยศรีปทุม ริม ถ.พหลโยธิน ห่างจากโครงการประมาณ 4.9 กิโลเมตร
บทวิเคราะห์
วิเคราะห์อัตราผลตอบแทนที่จะได้รับ
| แบบห้องชุด | ขนาด (ตร.ม.) | ราคาปล่อยเช่า (บาท/ เดือน) |
| 1 ห้องนอน | 35 | 25,000 |
เนื่องจากในทำเลห้าแยกลาดพร้าว ตลอดจนพหลโยธิน และวิภาวดีรังสิต เป็นที่ตั้งของสำนักงานใหญ่และอาคารสำนักงานหลายแห่ง มีผู้ทำงานอยู่ในทำเลนี้กว่า 50,000 คน จึงเป็นโอกาสสำหรับตลาดเช่าด้วยเช่นกัน โดยส่วนใหญ่ห้องขนาด 1 ห้องนอน พื้นที่ใช้สอยประมาณ 35 ตารางเมตร สามารถปล่อยเช่าได้เดือนละ 25,000 บาท โดยมีผลตอบแทนจากการเช่า (Yield) ประมาณ 5.4%
เปรียบเทียบกับโครงการอื่น
| ชื่อโครงการ | ยูนิต | พื้นที่ใช้สอย(ตร.ม.) | ราคาเฉลี่ย(บาท/ตร.ม.) | ราคาขาย(ล้านบาท) |
| ไลฟ์ ลาดพร้าว | 1,615 | 26-342 | 140,000 | 2.9 |
| เอ็ม ลาดพร้าว | 286 | 30.08-157.83 | 168,000 | 6.2 |
| วิสซ์ดอม อเวนิว รัชดา-ลาดพร้าว | 497 | 27-141 | 146,000 | 3.95 |
เอ็ม ลาดพร้าว
เจ้าของโครงการ: บริษัท เมเจอร์ ดีเวลลอปเม้นท์ จำกัด (มหาชน)
ทำเลที่ตั้ง: ถ.พหลโยธิน เขตจตุจักร กรุงเทพฯ
โทร: 0-2116-1111
เว็บไซต์: www.mde.co.th
เนื้อที่โครงการ: 1-3-87 ไร่
รายละเอียดโครงการ: คอนโดมิเนียม สูง 44 ชั้น รวม 286 ยูนิต
ราคาเริ่มต้น: 6.2 ล้านบาท
สิ่งอำนวยความสะดวก: ล็อบบี้ สวนหย่อม สระว่ายน้ำ ฟิตเนส สปา โยคะ ห้องสมุด ห้องสตีม ห้องซาวน่า ห้องคาราโอเกะ เลาจน์
สถานะการก่อสร้าง: สร้างเสร็จพร้อมอยู่
มีแบบห้องให้เลือกขนาด 1-3 ห้องนอน และเพนท์เฮ้าส์ พื้นที่ใช้สอย 30.08-157.83 ตารางเมตร โครงการตั้งอยู่ริม ถ.พหลโยธิน ตรงข้ามกับเซ็นทรัลลาดพร้าว ใกล้รถไฟฟ้า MRT สถานีพหลโยธิน ประมาณ 400 เมตร ทำเลถือว่าใกล้เคียงกับโครงการไลฟ์ ลาดพร้าว แต่ในอนาคต ไลฟ์ ลาดพร้าว จะใกล้สถานีห้าแยกลาดพร้าวมากกว่า เพราะห่างเพียง 1 ก้าว ส่วนแบบห้อง ถือว่าไลฟ์ ลาดพร้าวมีจุดเด่นตรงที่สามารถปรับเปลี่ยนห้องได้ตามไลฟ์สไตล์ผู้อยู่อาศัยมากกว่า และราคาเริ่มต้นยังสูงกว่าไลฟ์ ลาดพร้าวค่อนข้างมาก
วิสซ์ดอม อเวนิว รัชดา-ลาดพร้าว
เจ้าของโครงการ: บริษัท แมกโนเลีย ควอลิตี้ ดีเวล็อปเม้นต์ คอร์ปอเรชั่น จำกัด (MQDC)
ทำเลที่ตั้ง: ถ.ลาดพร้าว เขตจตุจักร กรุงเทพฯ
โทร: 0-2789-9999
เว็บไซต์: www.mqdc.com
เนื้อที่โครงการ: 3-0-42 ไร่
รายละเอียดโครงการ: คอนโดมิเนียม สูง 27 ชั้น จำนวน 497 ยูนิต
ราคาเริ่มต้น: 3.95 ล้านบาท
สิ่งอำนวยความสะดวก: ล็อบบี้ สระว่ายน้ำแบบไร้ขอบ พร้อมสระเด็ก และจากุซซี่ ฟิตเนส เลาจน์ สวนหย่อม ห้องสมุด
สถานะการก่อสร้าง: คาดว่าจะแล้วเสร็จเดือนสิงหาคม 2560
มีแบบห้องให้เลือกขนาดสตูดิโอ 1-2 ห้องนอน ดูเพล็กซ์ และเพนท์เฮ้าส์ พื้นที่ใช้สอย 27-141 ตารางเมตร ตั้งอยู่ริม ถ.ลาดพร้าว ใกล้รถไฟฟ้า MRT สถานีลาดพร้าว เดินทางโดยใช้รถไฟฟ้า MRT ได้สะดวก แต่ในอนาคตหากต้องการเชื่อมต่อกับรถไฟฟ้าสายสีเขียว ช่วงหมอชิต-สะพานใหม่-คูคต จะเสียเวลาการเดินทางมากกว่าการอยู่อาศัยบนเส้น ถ.พหลโยธิน ส่วนเรื่องแบบห้อง โครงการไลฟ์ ลาดพร้าว มีจุดเด่นตรงที่สามารถปรับเปลี่ยนห้องได้ตามไลฟ์สไตล์ผู้อยู่อาศัยมากกว่า และราคาเริ่มต้นยังสูงกว่าไลฟ์ ลาดพร้าว
สรุป
โครงการไลฟ์ ลาดพร้าว ถือเป็นโครงการแนวหน้าที่กล้าบุกเบิกรูปแบบการอยู่อาศัยแบบใหม่ตอบรับยุคดิจิตอลเต็มรูปแบบที่เหนือกว่าบ้านแบบสมาร์ทโฮม แต่คือ Digital Community ที่สามารถสั่งการทำงานผ่านแอพพลิเคชั่น ตั้งแต่เปิด-ปิด ประตู ติดต่อนิติบุคคล จนถึงการจองสิ่งอำนวยความสะดวกภายในโครงการ เอาใจคนรุ่นใหม่ให้สามารถเชื่อมต่อสังคมออนไลน์ได้ตลอด 24 ชั่วโมงด้วย Wi-fi ทั่วทั้งโครงการ แม้จะอยู่ในสวน และห้องประชุม Co-working Space ทั้งแบบกลุ่มและส่วนตัว พร้อมอุปกรณ์ที่จะช่วยให้การนำเสนองานเป็นไปได้อย่างง่ายดาย รองรับกลุ่ม Startup หรือฟรีแลนซ์ ให้สามารถทำงานที่บ้านได้อย่างสะดวกสบาย เหนือล้ำมากยิ่งขึ้นด้วยระบบสั่งงานด้วยเสียงในพื้นที่ส่วนกลางของโครงการ
แตกต่างจากโครงการอื่นด้วยรูปแบบห้องที่ถูกออกแบบให้ตอบโจทย์ไลฟ์สไตล์ที่หลากหลายของผู้อยู่อาศัย สามารถปรับเปลี่ยนได้มากถึง 5 รูปแบบ เหมาะสำหรับคนโสดและครอบครัวขนาดเล็ก เสริมด้วยนวัตกรรมเพื่อชีวิตที่ดียิ่งขึ้น Corridor Window Innovation หน้าต่างพิเศษที่คิดค้นและพัฒนาเพื่อช่วยลดความร้อนและความอับชื้นภายในโถงทางเดินของคอนโดมิเนียม
โครงการตั้งอยู่ในทำเลศักยภาพเหมาะสำหรับผู้ที่ต้องการที่อยู่อาศัยที่ใกล้รถไฟฟ้า เพราะห่างจากรถไฟฟ้า MRT สถานีพหลโยธิน เพียง 450 เมตร และในอนาคตจะใกล้รถไฟฟ้ามากยิ่งขึ้น เพียง 1 ก้าว จากรถไฟฟ้าสายสีเขียว สถานีห้าแยกลาดพร้าว ชีวิตติดห้าง เพียงเดินไม่กี่ก้าวก็ถึงเซ็นทรัลลาดพร้าว ยูเนี่ยนมอลล์ และเทสโก้โลตัส รายล้อมด้วยแหล่งงานขนาดใหญ่ ทั้งสำนักงานใหญ่และอาคารสำนักงานหลายแห่ง
แม้จะเป็นโครงการใหม่แต่ราคาเริ่มต้นเพียง 110,000 บาท/ตร.ม. เท่านั้น ถือว่าถูกกว่าโครงการที่เปิดตัวมาก่อนหน้านี้ในทำเลเดียวกันที่ปัจจุบันราคาพุ่งไปเกือบ 170,000 บาท/ตารางเมตรแล้ว ดังนั้น โครงการไลฟ์ ลาดพร้าว จึงเป็นอีกหนึ่งโครงการสำหรับคนที่มองหาคอนโดมิเนียมที่ตอบโจทย์ทั้งปัจจุบันและอนาคตไม่ควรมองข้าม
สนใจ คอนโดฯ ในโครงการนี้? เลือกชม รายการประกาศ ราคาโดนใจ


































































