เคฟ ซี้ด เกษตร (Kave Seed Kaset) คอนโด Low Rise 8 ชั้น 3 อาคาร จำนวน 600 ยูนิต ออกแบบภาพใต้แนวคิด SYNC WITH THE NATURE เชื่อมต่อพื้นที่พักอาศัยและพื้นที่สำหรับทำกิจกรรมต่าง ๆ เข้าไว้ด้วยกันอย่างลงตัว มาพร้อมสิ่งอำนวยความสะดวกและพื้นที่ส่วนกลางแบบจัดเต็มกว่า 30 รายการ และระบบจอดรถอัตโนมัติ Auto Parking ในราคาเริ่มต้นเพียง 2.29 ล้านบาท
อนุสาวรีย์ชัยสมรภูมิ อีกหนึ่งทำเลในปัจจุบันที่เรียกได้ว่าได้รับความนิยมในการพัฒนาคอนโดมิเนียมโครงการใหม่อยู่ตลอด ที่ผ่านมาจะเห็นได้เลยว่ามีผู้พัฒนาชั้นนำ เข้าไปปักหมุดโครงการบริเวณ BTS อนุสาวรีย์ชัยสมรภูมิ ตลอดเวลาไม่ว่าจะเป็นผู้พัฒนาที่มีประสบการณ์ในการทำคอนโดมามากมายอย่างอนันดา หรือ เมเจอร์ ดีเวลลอปเมนท์ ที่เน้นจุดเด่นเรื่องความเป็นส่วนตัว ผู้พัฒนาเหล่านี้มีพอร์ทที่อยู่อาศัยคอนโดมิเนียมบริเวณอนุสาวรีย์ชัยเป็นที่เรียบร้อย ซึ่งแต่ละโครงการก็สามารถทำยอดขายได้เป็นที่น่าพอใจ
และในปีนี้เองพื้นที่อนุสาวรีย์ก็ยังคงได้รับความสนใจ และถึงเวลาเวลาของผู้พัฒนาชื่อดังอย่าง พฤกษา บ้างที่จะนำโครงการคอนโดมิเนียมแบรนด์เซกเมนต์กลางเข้ามาปักหมุดบนพื้นที่นี้กับโครงการ The Tree Victory Monument คอนโดมิเนียม High Rise 31 ชั้น บนถนนดินแดง ใกล้ BTS สถานีอนุสาวรีย์ชัยสมรภูมิ จัดเต็มส่วนกลางที่มาพร้อมกับที่จอดรถระบบ Auto Parking ในราคาเริ่มต้นที่ 3.59 ล้านบาทกับห้องชุดเพดานสูง 4.9 เมตร 1 ห้องนอนขนาด 22.75 ตร.ม. – ห้อง Duplex 1 bedroom Plus ขนาด 50.05 ตร.ม.
สามารถเลือกอ่านรีวิวหัวข้อต่าง ๆ ของโครงการ The Tree Victory Monument ได้ที่นี่
- 1.ข้อมูลคอนโด The Tree Victory Monument
- 2.ภาพรวมคอนโด The Tree Victory Monument
- 3.ทำเลและการเดินทางของคอนโด The Tree Victory Monument
- 4.บทวิเคราะห์คอนโด The Tree Victory Monument
- 5.โครงการคอนโด The Tree Victory Monument เหมาะกับใคร?
ข้อมูลโครงการคอนโด The Tree Victory Monument
- ผู้พัฒนาโครงการ: บริษัท พฤกษา เรียลเอสเตท จำกัด (มหาชน) : Pruksa
- ทำเลที่ตั้ง: ถนนดินแดง แขวงดินแดง เขตดินแดง กทม.
- เว็บไซต์: https://thetreecondo.pruksa.com
- โทร: 1739
รายละเอียดโครงการคอนโด The Tree Victory Monument
- พื้นที่โครงการ: 1-0-81 ไร่
- ลักษณะโครงการ: คอนโดมิเนียม High Rise 1 อาคาร สูง 31 ชั้น จำนวนห้องพักอาศัย 253 ยูนิต ร้านค้า 1 ยูนิต
- รูปแบบห้อง: Heighten 1 bedroom 22.75-31.75 ตร.ม., Heighten 1 bedroom Plus 29.70-34.35 ตร.ม., Duplex 1 bedroom 38.10-39.95 ตร.ม., Duplex 1 bedroom Plus 50.05 ตร.ม.
- สิ่งอำนวยความสะดวก: Elite Lobby, Mailbox, Serene Front Yard, Serene Backyard, Retail, Helical Sky Lounge, Helical Garden, Helical Relaxing Jacuzzi, Helical Track, Helical Working Space, Helical Track, Helical Track, Helical Terrace, Helical Fitness, Helical Bar, Helical Scenic Pool, Helical Rooftop Garden
- ลิฟต์: 2 ตัว
- ที่จอดรถ: ที่จอดรถระบบ Auto Parking 41%
- ค่าส่วนกลาง: 82/ ตร.ม./เดือน
- ค่ากองทุนสะสม: กองทุน 600/ ตร.ม. (ชำระครั้งเดียว)
- สถานะการก่อสร้าง: เริ่มก่อสร้างประมาณเดือนมกราคม 2563 และคาดว่าจะแล้วเสร็จประมาณเดือนธันวาคม 2565
- ราคาเริ่มต้น: 3.59 ล้านบาท
- ราคาเฉลี่ย: 130,000 บาท/ตร.ม.
ถ้าฉันสนใจโครงการนี้ ฉันจะสามารถกู้ได้สูงสุดเท่าไหร่? ค้นหาคำตอบได้ที่นี่
บทความที่เกี่ยวข้องกับการกู้ซื้อบ้าน คอนโดฯ
- เงินเดือนเท่านี้จะกู้ซื้อบ้าน คอนโดฯ ได้เท่าไหร่
- อัปเดตอัตราดอกเบี้ยสินเชื่อบ้าน กู้ซื้อบ้าน
- รวมเทคนิคการกู้ซื้อบ้านที่คนอยากมีบ้านต้องรู้
รายละเอียดโครงการ
ภาพรวมโครงการคอนโด The Tree Victory Monument
The Tree Victory Monument เป็นคอนโดมิเนียม High Rise สูง 31 ชั้น 1 อาคาร บนพื้นที่ขนาด 1 ไร่ ห้งอพักอาศัยจำนวน 253 ยูนิต ร้านค้าอีกหนึ่งยูนิต ไฮไลท์ของโครงการอยู่ที่ห้องเพดานสูงกว่า 4.9 เมตร และมีห้องพักอาศัยให้เลือกด้วยกันถึง 4 รูปแบบ คือ ห้องพักให้เลือก 4 แบบ Heighten 1 bedroom, Heighten 1 bedroom Plus, Duplex 1 bedroom และ Duplex 1 bedroom Plus ขนาดเริ่มต้น 22.75-50.05 ตร.ม.
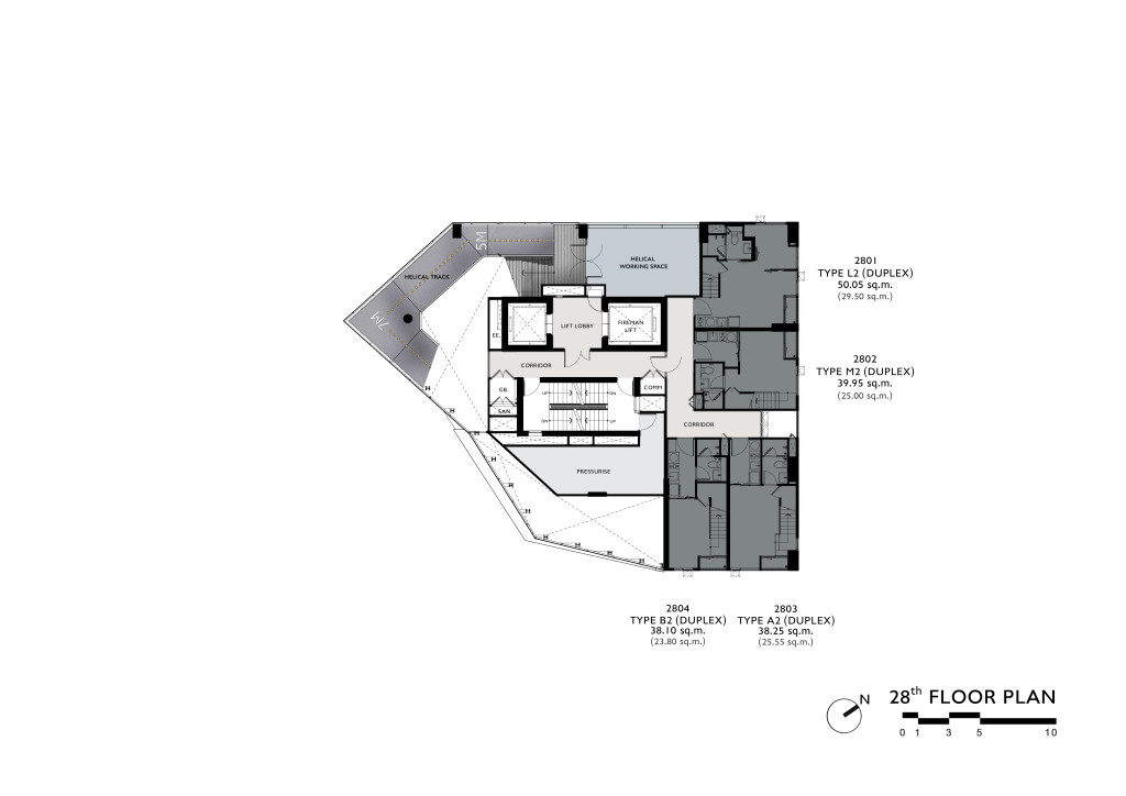
นอกจากนั้นยังประกอบไปด้วยสิ่งอำนวยความสะดวกครบครัน ไม่ว่าจะเป็น Elite Lobby, Mailbox, Serene Front Yard, Serene Backyard, Helical Sky Lounge, Helical Garden, Helical Relaxing Jacuzzi, Helical Track, Helical Working Space, Helical Terrace, Helical Fitness, Helical Bar, Helical Scenic Pool สระว่ายน้ำระบบเกลือ , Helical Rooftop Garden พร้อมที่จอดรถแบบ Auto Parking ถึง 41% ของโครงการ
Master Plan
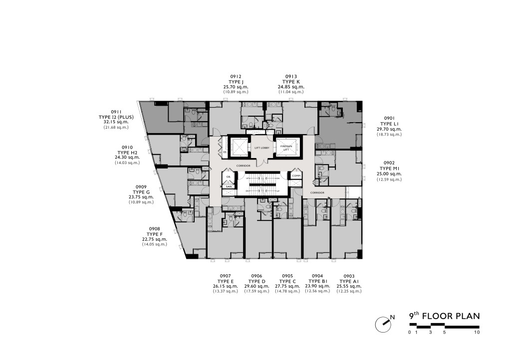
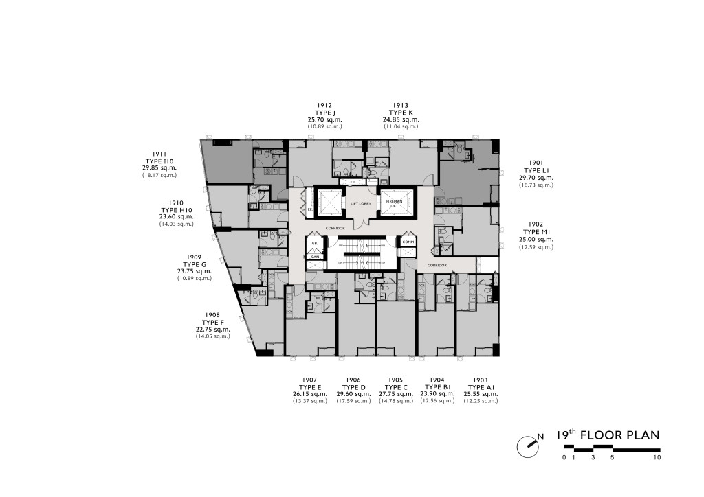
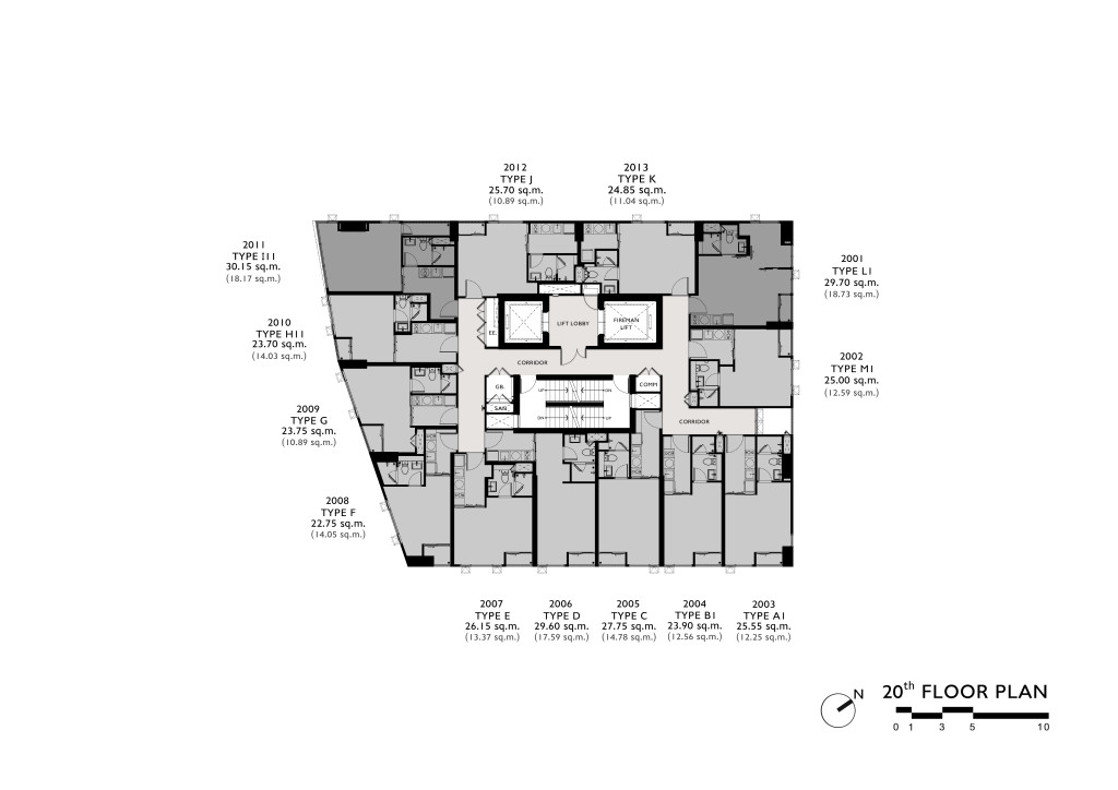
Floor Plan
รูปแบบห้อง
- Heighten 1 bedroom : ขนาดพื้นที่ใช้สอย 22.75-31.75 ตร.ม.
- Heighten 1 bedroom Plus : ขนาดพื้นที่ใช้สอย 29.70-34.35 ตร.ม.
- Duplex 1 bedroom : ขนาดพื้นที่ใช้สอย 38.10-39.95 ตร.ม.
- Duplex 1 bedroom Plus : ขนาดพื้นที่ใช้สอย 50.05 ตร.ม.
Unit Layout
สิ่งอำนวยความสะดวกภายในโครงการ The Tree Victory Monument
G Floor
- Elite Lobby
- Mailbox
- Serene Front Yard
- Serene Backyard
- Retail
27th Floor
- Helical Sky Lounge
- Helical Garden
- Helical Relaxing Jacuzzi
28th Floor
- Helical Track
- Helical Working Space
29th Floor
- Helical Track
30th Floor
- Helical Track
- Helical Terrace
- Helical Fitness
31th Floor
- Helical Bar
- Helical Scenic Pool
Rooftop
- Helical Rooftop Garden
ภาพจำลองสิ่งอำนวยความสะดวกในโครงการคอนโด The Tree Victory Monument
ทําเล & การเดินทาง
ทำเล & การเดินทางของโครงการคอนโด The Tree Victory Monument
ในอดีตมีเลอนุสาวรีย์ชัยมีเพียงตึกแถว ห้างร้าน ที่อยู่อาศัยจากชุมชนดั้งเดิมเท่านั้น จะมีคอนโดมิเนียมบางจุดเกิดขึ้นก็อยู่บริเวณซอยรางน้ำ ซึ่งเป็นซอยที่รวบรวมที่อยู่อาศัยให้เช่าหลายรูปแบบ ไม่ว่าจะเป็นเกรสเฮ้าส์ ห้องเช่า โรงแรม แต่ปัจจุบันนับตั้งแต่มีรถไฟฟ้าเข้ามาการขยายตัวของเมืองบริเวณสยามก็ค่อย ๆ กระจายตัวออกมาด้วย ทำให้อนุสาวรย์ชัยเป็นอีกหนึงทำเลที่ครบครันสะดวกเรื่องการเดินทาง และเหมาะที่จะเป็นทำเลที่อยู่อาศัยใกล้เมืองในเวลานี้
ตัวโครงการ The Tree Victory Monument ก็เป็นโครงการหนึ่งที่ตั้งอยู่ติดกับถนนดินแดง ใกล้กับ BTS อนุสาวรีย์ชัยสมรภูมิ ตอบโจทย์การเดินทางทั้งรถไฟฟ้าและรถยนต์ สามารถเชื่อมต่อกับทางพิเศษศรีรัช และยังรายล้อมไปด้วยพื้นที่ไลฟ์สไตล์ อาทิ King Power, Century Movie Plaza, Center One รวมไปถึง Life Style District บริเวณ Central World , Siam Paragon , MBK ก็สามารถเชื่อมต่อไปถึงด้วยรถไฟฟ้าไม่กี่สถานีเท่านั้น
สถานที่สำคัญใกล้เคียงโครงการคอนโด The Tree Victory Monument
สถานที่ไลฟ์สไตล์
- 7Eleven
- ตลาดศรีวนิช
- Center One
- Century Mall
- The Palladium
- ตลาดประตูน้ำ
- Platinum
- The Market
- BigC ราชดำริ
- Central World
- เกษร พลาซ่า
- Erawan
- Amarin Plaza
- Siam Paragon
- Siam Center
- Siam Discovery
- MBK
โรงเรียนและมหาวิทยาลัย
- รร.พิบูลประชาสรรค์
- ม.มหิดล
- รร.ราชานุกูล
- วิทยาลัยพยาบาลทหารผ่านศึก
- รร.พระแม่ฟาติมา
- วิทยาลัยดอนมอสโก
- รร.เซนต์ดอมินิก
- ม.ศรีนครินทร์วิโรฒ
- สาธิต มศว
- รร.วัฒนาวิทยาลัย
โรงพยาบาล
- รพ.พญาไท 1
- รพ.ราชวิถี
- สถาบันราชานุกูล
- รพ.พญาไท 2
- รพ.เวชศาสตร์เขตร้อน
- รพ.พระมงกุฏเกล้า
- รพ.ทหารผ่านศึก
- สถาบันโรคไต
- รพ.ตำรวจ
- รพ.รามาธิบดี
อาคารสำนักงาน
- สนง.ป.ป.ส.
- กรมพัฒนาฝีมือแรงงาน
- กระทรวงแรงงาน
- ศูนย์เยาวชน กทม.
- สนง.ประกันสังคม
- กรมกิจการเด็กและเยาวชน
- สนง.เขตดินแดง
- สน.พญาไท
- สนง.ตำรวจแห่งชาติ
บทวิเคราะห์
เปรียบเทียบโครงการอื่น
| ชื่อโครงการ | ยูนิต | พืนที่ใช้สอย | ราคาเฉลี่ย | ราคาขาย |
| เดอะ ทรี อนุสาวรีย์ชัยสมรภูมิ | 1 ห้องนอน | 22.75 ตร.ม. | 130,000 บาทต่อตร.ม. | 3.59 ล้านบาท |
| ริทึ่ม รางน้ำ | สตูดิโอ | 28 ตร.ม. | 170,000 บาทต่อตร.ม. | 4.76 ล้านบาท |
| เอ็ม พญาไท | 1 ห้องนอน | 42 ตร.ม. | 98,000 บาทต่อตร.ม. | 4.1 ล้านบาท |
โครงการ ริทึ่ม รางน้ำ (Rhythm Rangnam)
- ผู้พัฒนาโครงการ: บริษัท เอพี ไทยแลนด์ จำกัด (มหาชน)
- ทำเลที่ตั้ง: ถนนรางน้ำ แขวงพญาไท เขตราชเทวี กทม.
- พื้นที่โครงการ: 1-3-93 ไร่
- ลักษณะโครงการ: คอนโดมิเนียมไฮไรส์ 27 ชั้น จำนวน 1 อาคาร ห้องพักอาศัย 385 ยูนิต ยูนิตเพื่อการพาณิชย์ 1 ยูนิต
- ที่จอดรถ: 47% หรือจอดได้ 171 คัน
- ปีที่สร้างเสร็จ: ปี 2561
- รูปแบบห้อง: Studio 28 ตร.ม., 1 Bedroom 35 ตร.ม., 2 Bedroom 47-62 ตร.ม.
- ราคาเริ่มต้น: 4.76 ล้านบาท
- ราคาเฉลี่ย: 170,000 บาทต่อตร.ม.
โครงการ เอ็ม พญาไท (M Phyathai)
- ผู้พัฒนาโครงการ: บริษัท เมเจอร์ ดีเวลลอปเม้นท์ เอสเตท จำกัด
- ทำเลที่ตั้ง: ถนนพญาไท แขวงพญาไท เขตราชเทวี กทม.
- พื้นที่โครงการ: 1-2-23 ไร่
- ลักษณะโครงการ: คอนโดไฮไรส์ 1 อาคาร 35 ชั้น ยูนิตที่พักอาศัยทั้งหมด 213 ยูนิต
- ที่จอดรถ: 65%
- ปีที่สร้างเสร็จ: ปี 2557
- รูปแบบห้อง: 1 Bedroom – 2 Bedrooms – 3 Bedrooms พื้นที่ใช้สอย 42 – 75 ตารางเมตร, PentHouse 110 ตารางเมตร,
- ราคาเริ่มต้น: 4.1 ล้านบาท
- ราคาเฉลี่ย: 98,000 บาทต่อตร.ม.
สรุป
โครงการคอนโด The Tree Victory Monument เหมาะกับใคร?
เข้าประเด็นเรื่องทำเลที่ตั้งก่อนเล ต้องบอกว่าอนุสาวรีย์ชัยไม่ใช่ทำเลธรรมดา ๆ อีกต่อไป เพราะไม่ว่าโครงการไหนที่มาปักหมุดอยู่ในระแวกรถไฟฟ้านี้ก้ต้องมีราคาเฉลี่ยที่ 130,000 – 150,00 บาท แบรนด์ที่มาปกหมุดส่วนใหญ่ก้จะอยู่ในเซกเมนต์กลาง ๆ ค่อน ๆ ไปบนและที่ห้องนอนขนาดเริ่มต้นไม่เกิน 25 ตร.ม. ก็จะมีราคาเริ่มอยู่ที่ 3 ล้านบาทกลาง ๆ ซึ่งจุดนี้แสดงให้เห็นว่าพื้นที่ในการพัฒนาคอนโดมิเนียมบนทำเลอนุสาวรีย์ชัยเปลี่ยนไปแล้วจากที่ดินที่มีราคาสูงขึ้น ที่อยู่อาศัยต่าง ๆ ก็เลยต้องมีราคาสูงขึ้นตาม
ปัจจุบันทำเลนี้สามารถเลือกที่จะอยู่อาศัยเองก็ดี ลงทุนก็ได้ เพราะนอกจากชาวไทยที่หาคอนโดใกล้รถไฟฟ้า ใกล้แหล่งงานแล้ว บริเวณอนุสาวรีย์ชัยสมรภูมิยังเต็มไปด้วยนักท่องเที่ยวทั้งโซนยุโรป อเมริกา และชาวจีน ที่ต้องการหาที่อยู่อาศัยใกล้แหล่งชอปปิ้งของแบรนด์เนมอย่าง คิง พาวเวอร์ รวมไปถึงมีทางเลือกในการเดินทางไปยังสถานที่สำคัญต่าง ๆ ด้วยรถไฟฟ้า ส่วนใครที่ต้องการอยู่อาศัยเองก็เหมาะทั้งคนที่ทำงานอยู่ทางจตุจักร – ลาดพร้าว โซนสยาม – พญาไท รวมไปถึง CBD ในเมืองอย่าง อโศก ก็สามารถเชื่อมต่อไปได้ไม่ลำบากเลย
อัปเดต ข่าวอสังหาริมทรัพย์ และ อ่านคู่มือซื้อขาย พร้อม รีวิวโครงการคอนโดฯ ใหม่ บ้านใหม่ หลากหลายทำเลและราคา รวมถึง ทำความรู้จักกับทำเลฮอตทั่วกรุง เพื่อเพิ่มความมั่นใจในการซื้อ-ขาย-เช่า สนใจรับบทความดีดี กดติดตาม












































