โครงการเวนิว ฟอร์ม บางนา-ศรีวารี (Venue Form Bangna-Srivaree) โดยบริษัท เอสซี แอสเสท คอร์ปอเรชั่น จำกัด (มหาชน) โครงการบ้านเดี่ยว 2 ชั้น จำนวน 164 ครอบครัว โดดเด่นด้วยดีไซน์ Mid-Century Modern มาพร้อมฟังก์ชันใหม่ Vertical Form ที่ออกแบบโถงสูงโปร่งถึง 6 เมตร พื้นที่ใช้สอยสูงสุดถึง 310 ตารางเมตร รองรับทั้งครอบครัวขนาดเล็กและครอบครัวขยาย ด้วย 4 ห้องนอน 5 ห้องน้ำ และที่จอดรถ 3 คัน ตั้งอยู่บนทำเลศักยภาพที่เดินทางสะดวกเชื่อมต่อถนนเส้นหลักหลายสาย อาทิ ถนนเทพรัตน (บางนา–ตราด), ถนนลาดกระบัง อีกทั้งยังใกล้ท่าอากาศยานสุวรรณภูมิเพียง 15 นาที และยังใกล้ทางพิเศษบูรพาวิถี ราคาเริ่มต้น 6.99-12 ล้านบาท
“ลาดพร้าว 71″ เป็นซอยที่อยู่ช่วงกลางของถนนลาดพร้าวและใกล้กับทางด่วนเอกมัย-รามอินทรา ซึ่งหากพูดถึงซอยลาดพร้าว 71 หลายคนคงทราบดีว่าเป็นทำเลที่มีความคึกคักและมีทางลัดที่สามารถเชื่อมต่อถนนเส้นต่างๆมากมาย รวมไปถึงเป็นแหล่งที่พักอาศัยของคนทำงานย่านลาดพร้าว รามอินทรา หรือผู้ที่ต้องการใช้ทางด่วนในการคมนาคม ทำให้การใช้ชีวิตในย่านนี้มีความสะดวกสบายสูง ไม่ว่าจะเรื่องการเดินทาง ช้อปปิ้ง แหล่งไลฟ์สไตล์ ก็มีให้เลือกสรรมากมาย
ล่าสุดกับโครงการ Cherish Ladprao 71 บ้านแฝดบนทำเลศักยภาพใจกลางลาดพร้าว เอกสิทธิ์เพียง 4 ยูนิต พร้อมเชื่อมต่อทุกการเดินทาง บนพื้นที่ ทำเลศักยภาพ เดินทางสะดวก แต่ยังคงไว้ซึ่งความเป็นส่วนตัว กับทำเลศักยภาพนาคนิวาส 48, ลาดพร้าว 71 ศูนย์กลางการคมนาคมในอนาคต ในราคาเริ่ม 11.9 ล้านบาท* ซึ่งรายละเอียดโครงการจะเป็นอย่างไรนั้น ตามไปดูกันเลย
![]() |
อัปเดตอัตราดอกเบี้ยสินเชื่อบ้าน กู้ซื้อบ้าน ได้ที่นี่ อัตราดอกเบี้ยสินเชื่อกู้ซื้อบ้าน คือ ตัวกำหนดการผ่อนชำระค่างวดของการซื้อที่อนู่อาศัยสำหรับคนที่ทำการกู้ซื้อผ่านธนาคาร โดยทาง DDproperty ได้รวบรวมสินเชื่อจากหลายธนาคารมารวมไว้ ณ ที่นี่แล้ว |
ข้อมูลโครงการ Cherish Ladprao 71
- ชื่อโครงการ: เฌอริช ลาดพร้าว 71 (Cherish Ladprao 71)
- ผู้พัฒนาโครงการ: บริษัท เคนชิน พรอพเพอร์ตี้ จํากัด
- ทำเลที่ตั้ง: ซอยนาคนิวาส 48 แยก 14 แขวงลาดพร้าว เขตลาดพร้าว กทม.
- เนื้อที่โครงการ: 0-1-60 ไร่
- เบอร์โทรศัพท์: 090-951-9462
- รูปแบบโครงการ: บ้านแฝด 3.5 ชั้น
- จำนวนยูนิต: 4 ยูนิต
- จำนวนห้อง: 4 ห้องนอน 5 ห้องน้ำ
- จำนวนที่จอดรถ: 3 จอด
- สิ่งอำนวยความสะดวก: รั้วรอบบ้านสูง 2.2 เมตร, CCTV ทุกหลัง, Home Automation
- เส้นทางคมนาคม: ถนนลาดพร้าว, ถนนเกษตรนวมินทร์, ถนนเลียบทางด่วนรามอินทรา, รถไฟฟ้าฟ้า 3 สาย
- ราคาเริ่มต้น: 11.9 ล้านบาท
ค้นหาประกาศ บ้านเดี่ยวราคาไม่เกิน 10 ล้านบาท ได้ที่นี่
รายละเอียดโครงการ
ภาพรวมโครงการ Cherish Ladprao 71
โครงการ Cherish Ladprao 71 ดำเนินการโดย บริษัท เคนชิน พรอพเพอร์ตี้ จํากัด เป็นโครงการบ้านแฝด 3.5 ชั้น ในซอยนาคนิวาส ทำเลย่านลาดพร้าว 71 โดยตัวโครงการมีเพียง 4 ยูนิตเท่านั้น พร้อมพื้นที่ใช้สอยเริ่มต้น 313-328 ตร.ม. ประกอบด้วย 4 ห้องนอน 5 ห้องน้ำ 3 ที่จอดรถ มาพร้อมสิ่งอำนวยความสะดวกครบครัน ทั้ง Home Automation และ CCTV ให้ทุกหลัง ปลอดภัยด้วยรั้วรอบบ้านสูง 2.2 เมตร ในราคาเริ่มต้น 11.9 ล้านบาท
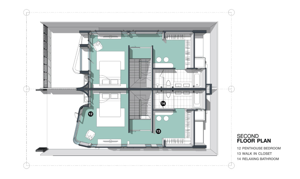
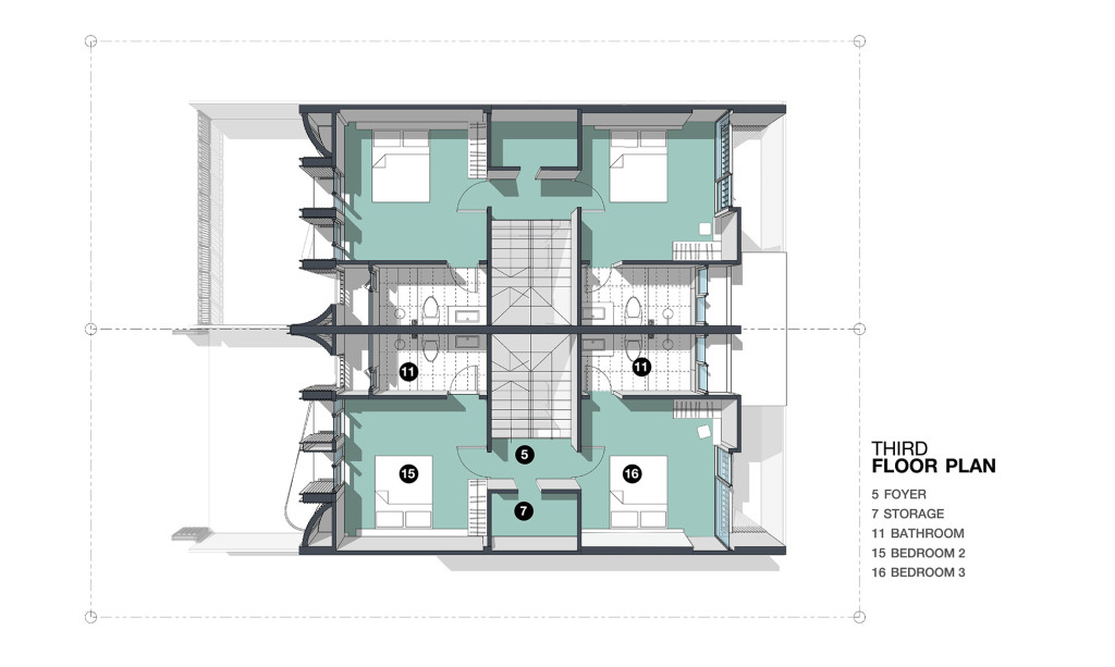
Floor Plan
Front Plan
Floor Plan ชั้น 1
Mezzanine Floor Plan
Floor Plan ชั้น 2
Floor Plan ชั้น 3
ทําเล & การเดินทาง
ทำเล & การเดินทางของโครงการ Cherish Ladprao 71
โครงการ Cherish Ladprao 71 ตั้งอยู่บนซอยนาคนิวาส 48 แยก 14 แขวงลาดพร้าว เขตลาดพร้าว กทม. สามารถเข้า-ออกโครงการได้หลายเส้นทาง ทั้งถนนลาดพร้าว , ถนนเกษตร-นวมินทร์, เลียบด่วนเอกมัยรามอินทราได้ และยังล้อมรอบไปด้วยรถไฟฟ้า 3 สาย ใกล้ทางด่วนเอกมัย-รามอินทรา และรายล้อมด้วยสิ่งอำนวยความสะดวกครบครัน เหมาะสมแก่การใช้ชีวิตได้อย่างสมบูรณ์
สถานที่สำคัญใกล้โครงการ
ห้างสรรพสินค้า
- เซ็นทรัล อีสต์วิลล์: 9 กม.
- เดอะคริสตัล: 8 กม.
- ซีดีซี: 9 กม.
- เดอะวอล์ค นวมินทร์: 4 กม.
- ตลาดนัดเลียบด่วน รามอินทรา: 7 กม.
- เมเจอร์ รัชโยธิน : 8 กม.
- ยูเนี่ยน มอลล์: 10 กม.
- เซ็นทรัล ลาดพร้าว: 5 กม.
สถานศึกษา
- รร. สตรีวิทยา 2: 2 กม.
- รร. เลิศหล้า : 5.9 กม.
โรงพยาบาล
- โรงพยาบาลเปาโล โชคชัย 4: 4.6 กม.
บทวิเคราะห์
เปรียบเทียบกับโครงการอื่น
|
ชื่อโครงการ |
จำนวนยูนิต |
พื้นที่โครงการ |
ราคาเริ่มต้น (ล้านบาท) |
|
Cherish Ladprao 71 |
4 ยูนิต |
0-1-60 ไร่ |
เริ่ม 11.9 ล้าน |
|
Neo Haus Ladprao 71 |
16 ยูนิต |
1-0-16 ไร่ |
เริ่ม 4.89 ล้าน |
|
Simantra Ladprao 71 |
58 ยูนิต |
12 ไร่ |
เริ่ม 5.5 ล้าน |
Neo Haus Ladprao 71 (นีโอ เฮ้าส์ ลาดพร้าว 71)
ผู้พัฒนาโครงการ: Neo Haus Group
- ทำเลที่ตั้ง: ซอยนาคนิวาส 32 แขวงลาดพร้าว เขตลาดพร้าว กทม.
- พื้นที่โครงการ: 1-0-16 ไร่
- ลักษณะโครงการ: ทาวน์โฮม 3.5 ชั้น
- รูปแบบห้อง: 4 ห้องนอน, 4 ห้องน้ำ, 2จอดรถ
- ราคาเริ่มต้น: 4.89 ล้านบาท
Simantra Ladprao 71 (ศิมันตรา เลียบด่วนรามอินทรา-ลาดพร้าว 71)
- ผู้พัฒนาโครงการ: บริษัท ควอลิตี้ คอนเซ็พท์ พลัส จำกัด
- ทำเลที่ตั้ง: ซ.นาคนิวาส 21 ถ.นาคนิวาส (ลาดพร้าว 71) แขวงลาดพร้าว เขตลาดพร้าว กรุงเทพฯ 10230
- พื้นที่โครงการ: 12 ไร่
- ลักษณะโครงการ: ทาวน์โฮม,บ้านเดี่ยว
- รูปแบบห้อง: 1 Bed / 24 , 27 ตร.ม. , 2 Bed / 45 ตร.ม.
- ราคาเริ่มต้น: 5.5 ล้านบาท
สรุป
โครงการ Cherish Ladprao 71 เหมาะสำหรับใคร?
โครงการ Cherish Ladprao 71 เป็นโครงการบ้านแฝด โดยบริษัท เคนชิน พรอพเพอร์ตี้ จํากัด ตั้งอยู่บนซอยนาคนิวาส 48 แยก 14 แขวงลาดพร้าว เขตลาดพร้าว กทม. มาพร้อมการออกแบบสไตล์โมเดิร์น ไม่ต้องมากมาย แต่ออกแบบมาให้มากเพียงพอ 4 ห้องนอน 5 ห้องน้ำและ 1 ห้องอเนกประสงค์ ให้คุณดีไซน์ได้เอง มีมิติของการออกแบบที่ทำให้บ้านโปร่ง โล่ง สบาย ก้าวข้ามสู่พื้นที่ส่วนตัวได้อย่างง่ายดาย เอกสิทธิ์เพียง 4 ยูนิต มาพร้อมรั้วรอบบ้านสูง 2.2 เมตร CCTV และ Home Automation ทุกหลัง
สำหรับโครงการ Cherish Ladprao 71 จัดเป็นโครงการที่มีความโดดเด่นในเรื่องของทำเลเป็นอย่างมาก เนื่องจากตัวโครงการอยู่บนซอยลาดพร้าว 71 ซึ่งเป็นทำเลที่สามารถเชื่อมต่อถนนได้หลายสาย ทั้งถนนลาดพร้าว , ถนนเกษตร-นวมินทร์, เลียบด่วนเอกมัยรามอินทราได้ และยังล้อมรอบไปด้วยรถไฟฟ้า 3 สาย อีกทั้งตัวโครงการยังรายล้อมด้วยสิ่งอำนวยความสะดวกครบครัน ตอบโจทย์การใช้ชีวิตได้อย่างเต็มที่
เพิ่มเติมความรู้ คู่มือซื้อ ขาย เช่าบ้าน-คอนโดฯ พร้อมส่งตรงถึงอีเมล์ของคุณฟรี สมัครได้ที่นี่ และสามารถเลือกชม โครงการใหม่ พร้อม รีวิวโครงการคอนโดใหม่ บ้านใหม่ หลากหลายทำเลและราคาได้เช่นกัน










