ให้เช่าโรงงานพร้อมโกดัง 5,508 ตารางเมตร บางนา-ตราด กม.23 ซอยวัดบัวรอง บางเสาธง, Samut Prakan

Bang Sao Thong, Bang Sao Thong, Samut Prakan

฿826,200 /mo

Negotiable

sqm (floor)

5,508

sqm (floor)


photo

Photos

map

Map View

Property details

home-open-o
Warehouse/Factory for rent
renovated-o
Bare
calendar-time-o
Listed on 9 Dec 2025
document-with-lines-o
Listing ID - 500013438
ruler-o
5,508 sqm floor area
asterisk-o
11,084 sqm / 6 rai 3 ngan 71 sqw land area

About this property

Rent: Factory/warehouse, Bangna Km. 23, land 6 rai, area 5,508 sqm.

Property Code: KD680013

Factory and warehouse for rent, purple zone for factories, legally required, Bangna-Trad Km. 23, Soi Wat Buarong, Bang Sao Thing Subdistrict, Bang Sao Thong District, Samut Prakan Province. Newly renovated and ready to operate.

Land Details
- Land area: 6-3-71 rai
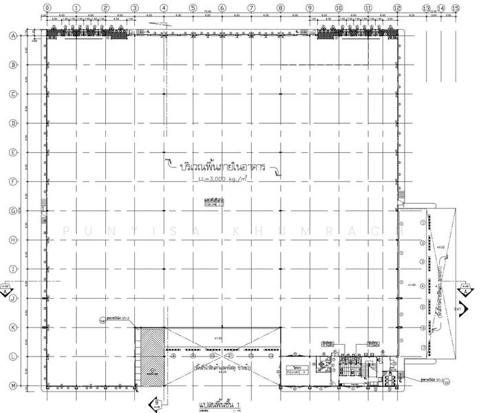
- Total building area: 5,508 sq m (ground floor: 5,364 sq m + upper floor: 144 sq m)
- First floor office space: 144 sq m
- Second floor office space: 144 sq m
- Total office space: 288 sq m

Building Specifications

- Floor load: 3 tons/sq m
- Ceiling height: 12 meters (Clear Height)
- 4 40-ft container docks (1.50 meter raised floor)
- 7 pickup truck docks

Rental Price: 150 baht/sq m
Total Rent: 826,200 baht/month

Conditions

• 3-month deposit + 1 month advance payment
• Minimum 3-year contract
• Ready to move in 15/01/2026 (under renovation)
Amenities
asterisk-o

24-hour access

aircon-o

Air-conditioning

asterisk-o

Backup generator

parking-o

Car parking

FAQs
There are 0 bedroom(s) with 0 bathroom(s) in this unit.
The rent of this unit at ให้เช่าโรงงานพร้อมโกดัง 5,508 ตารางเมตร บางนา-ตราด กม.23 ซอยวัดบัวรอง บางเสาธง is about ฿826,200 /mo.
The current rental PSM at ให้เช่าโรงงานพร้อมโกดัง 5,508 ตารางเมตร บางนา-ตราด กม.23 ซอยวัดบัวรอง บางเสาธง is about ฿150.00 / sqm.
ให้เช่าโรงงานพร้อมโกดัง 5,508 ตารางเมตร บางนา-ตราด กม.23 ซอยวัดบัวรอง บางเสาธง is located at Bang Sao Thong, Bang Sao Thong, Samut Prakan Bang Sao Thong Bang Sao Thong Samut Prakan.
Floor size of this unit at ให้เช่าโรงงานพร้อมโกดัง 5,508 ตารางเมตร บางนา-ตราด กม.23 ซอยวัดบัวรอง บางเสาธง is 5,508 sqm.