The River by Raimon Land, Bangkok
Soi Charoen Nakorn 13, Charoen Nakorn Road, Khlong Ton Sai, Khlong San, Bangkok
฿32,400,000
Baht2
Beds
3
Baths
131.26
sqm (floor)
฿ 246,838
/ sqm (floor)
580 m (7 mins) from G2 Charoen Nakhon BTS

Photos

Map View
About this property
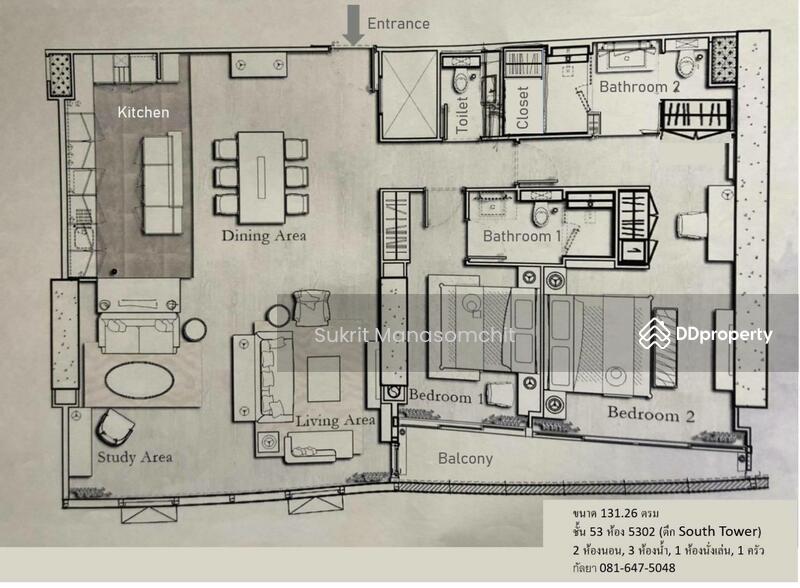
For sale, 50up floor 131.26 sq.m., 3 beds 3 baths
Project name: The River (เดอะ ริเวอร์)
“ recognized as ‘Best Condo Development South East Asia’ by South East Asia Property Awards “
ที่ตั้ง: ซอย 13 ถนนเจริญนคร ติดแม่น้ำเจ้าพระยา มี Vue community mall ด้านหน้าโครงการ และเรือประจำโครงการรับส่งข้ามไปฝั่ง BTS สะพานตากสิน, 750 ม.ถึงห้าง ICONSIAM, 3.2 กม. ถึงโรงพยาบาลเซ็นต์หลุยส์, 2.4 กม. ถึงโรงเรียนกรุงเทพคริสเตียนวิทยาลัย, 2.8 กม.ถึงโรบินสัน บางรัก
ROOM DETAIL
ขนาด: 131.26 sq.m.
ห้องนอน: 3 bedrooms
ห้องน้ำ: 3 bathrooms
ชั้น: 50++ floor
การตกแต่ง: เฟอร์นิเจอร์ครบ Fully Furnished
ราคาขาย: 32,400,000 THB
** มีอีกหลายยูนิตอื่นให้เลือก **
** Many other units to choose **
---------------------------------------------------------------------------------------------------------------
FOR PROPERTY VIEWING AND FURTHER INFORMATION PLEASE CONTACT
Mobile & Whatsapp: +66 (0)nine nine four five six five four six five / (0) เก้า เก้า สี่ ห้า หก ห้า สี่ หก ห้า
E-mail: sukritmns(at sign) www.g*****
Line(have sign @): @cproperty
Website: www.c*****
Amenities
Air-conditioning
Balcony
Cooker hob/hood
Renovated
Common facilities
24 hours security
Aircon facilities
Car park
Cctv
Estimated mortgage
The River by Raimon Land, Bangkok

High-rise condominium projects in Charoen Nakhon district starting price lower than 7 million. The riverside riverside condominium project with the best river views in Bangkok. Make the most comfortable and luxurious living experience possible. With easy access to the heart of the main business district. The River condo is just 120 meters from the river, offering a choice of 1-3 bedroom, duplex and penthouse units with a unique design. And not like All rooms are well-equipped with full amenities. The River condo is located on 13 Rai of land with a 120 meter long frontage on the Chao Phraya River. Entertaining with variety of entertainment and restaurants. Fully equipped fitness center Infinity Pool Near Waterfront And long-distance swimming pool. The River condo is considered to be one of the most beautiful rivers in Thailand. Raimon Land's largest luxury condominium and has been received. Excellent from customers. As a project Luxury living and perfect all things. In 2012, The River condo was awarded the "most luxurious condominium project. "Bangkok Condominium" and "Best Condominium Project in Thailand" at Thailand Property Awards. This property has been dubbed as "The best condominium project. (Southeast Asia) from the South East Asia Property Awards. The River condo is a panoramic view. This is a clear physical thing. The other one that is featured is the convenient way to travel all types of cars, BTS or even the boat (Sathorn Taksin about 780 meters) is also easy to use as well. The location of The River condo is located at the junction of Chareonnakorn 13, one of which is next to the Chao Phraya River. The opposite is a community mall called Vue, which has access to Charoen Nak Road. I will find many places to eat. Traveling to The River condo , there are many ways to travel by boat. The BTS is not far from the pier, the station and the main road. If you come by car from Krung Thon Buri Road, turn left and come across three intersections. Can not enter the project. Turn left to Charoennakorn Rd. And return to the front of the Peninsula Hotel about 200 meters to reach the River condo. The River condo project is located in Charoen Nakorn. Of course, there must be a variety of shops, including The Mall Tha Phra, Tesco Lotus Express 1.2 km (5 minutes drive), Sena Phase 400 meters (Walk 5 Minute, Royal Garden Plaza Shopping Center, Supermarket Shopping Center 530 meters (7 minutes walk), Tops Supermarket (Charoen Krung), The River condo project near the leading department store. The whole restaurant. supermarket Brand Name Products Fully equipped to live in a city full of luxury comforts. I have a single word that has everything ready to make life easier each day ever. Project Name: The River Condo Developer: Raimon Land - Raimon Land Plc. Location: Charoen Nakorn Road, Soi Charoennakorn 13 Tumbol / Khlong Ton Sai, Khlong San Bangkok 10600 Website: www.raimonland.com Project Area: 12-3-41 rai Project Type: South Tower 71 condominium, 519 condominium units, North Tower 41, 307 units and 3 storey buildings with 2 fronts totaling 826 units. Construction Status: Completed in 2012. Main Construction Company: Boygsa Thai Co., Ltd. Design Company: HB Design Co., Ltd. Facilities: Fitness, Playground, Public Park, Fitness (Multi-purpose lawn) and a swimming pool (50 meters in length and 33 meters in length along the river) Parking: Approximately 1,217 units Security: CCTV and 24-hour security guard. Common area: 70 baht / sq.m / month Starting Price: Approximately 6,200,000 - 270,000,000 Baht Average Price: 98,400 Baht / sq.m. Room Type: 1-3 bedroom suites, duplex rooms and penthouses. For those who are interested in The River condo condo project, please see The River condo condo listing or The River condo condo listing here. CASA CONDO Charoen Nakorn Supalai River Place (Supalai River Place) IVY River (Ivy River) Water Mark (Water Mark Chaophraya) Supalai River Resort Charoen Nakorn
View project details