ที่ดินนาดี สมุทรสาคร, Samut Sakhon
Na Di, Muang Samut Sakhon, Samut Sakhon
฿19,500,000
4,952.8
sqm (land)
฿ 3,937
/ sqm (land)

Photos

Map View
About this property
ขายที่ดินถมแล้ว เนื้อที่ 3 ไร่ 38.2 ตารางวา นาดี สมุทรสาคร
ที่ดิน : นาดี สมุทรสาคร
ที่ตั้ง : ซ.อยู่เจริญ 2 ต.นาดี อ.เมืองสมุทรสาคร จ.สมุทรสาคร
รหัสทรัพย์ : T-124821
ประเภท : ที่ดิน
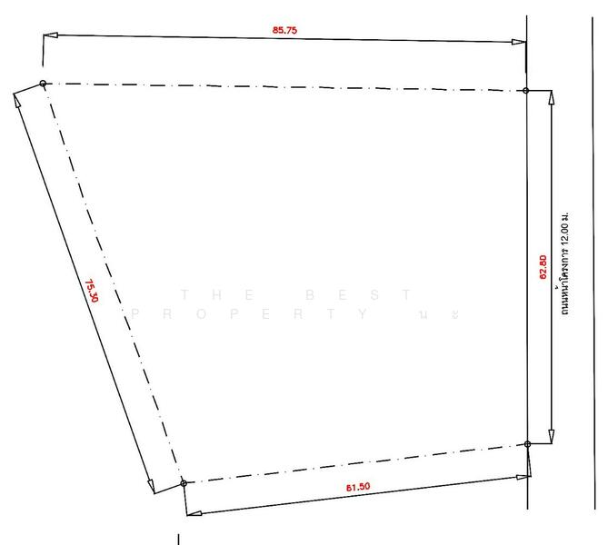
เนื้อที่ : 3 ไร่ 38.2 ตารางวา
กว้าง : 62.80 เมตร ลึก : 85.75 เมตร
รายละเอียดเพิ่มเติม :
ที่ดินถมแล้ว ในนิคมอุตสาหกรรมนาดีสมุทรสาคร
เหมาะสำหรับสร้างโรงงาน โกดัง และทำออฟฟิศ
พื้นที่สีม่วง ที่ดินประเภทอุตสาหกรรมและคลังสินค้า
ที่ดินถมแล้วสูงเท่ากับระดับถนน ถนนด้านหน้ากว้าง 12 เมตร
ใกล้ถนนใหญ่ ห้างสรรพสินค้า ตลาด หมู่บ้านจัดสรรหลายแห่ง
ราคา : 19,500,000 บาท
ลิงค์แผนที่ : www.h***** ,100. 3*****
**เรามีบริการจัดสินเชื่อให้ฟรี พร้อมยินดีให้คำปรึกษา มีให้เลือกทุกธนาคาร**
**พร้อมอัตราดอกเบี้ยพิเศษ และ วงเงินสูงสุด 90-100% ของราคาประเมิน**
สนใจสอบถามข้อมูลเพิ่มเติม หรือ นัดชมบ้านได้ที่
Tel : 0***** นะ (รหัสตัวแทน 2974)
Line ID : thank777
Tel : 0***** นก (รหัสตัวแทน 2974-1)
Line ID : radchada2456
Callcenter : 0*****
สนใจดูทรัพย์อื่นๆ เพิ่มเติม มากกว่า 3,000 รายการ
www.w*****
The Best Property Agent CO,.LTD. ผู้นำด้านธุรกิจนายหน้า ตัวแทนอสังหาริมทรัพย์ครบวงจร ด้วยความเป็นมืออาชีพ ใช้เทคโนโลยี และ นวัตกรรมที่สร้างสรรค์ เพื่อส่งมอบบริการที่ดีที่สุดเพื่อคุณ ให้บริการด้าน ซื้อ ขาย เช่า อสังหาริมทรัพย์
ที่ตั้ง : ซ.อยู่เจริญ 2 ต.นาดี อ.เมืองสมุทรสาคร จ.สมุทรสาคร
รหัสทรัพย์ : T-124821
ประเภท : ที่ดิน
เนื้อที่ : 3 ไร่ 38.2 ตารางวา
กว้าง : 62.80 เมตร ลึก : 85.75 เมตร
รายละเอียดเพิ่มเติม :
ที่ดินถมแล้ว ในนิคมอุตสาหกรรมนาดีสมุทรสาคร
เหมาะสำหรับสร้างโรงงาน โกดัง และทำออฟฟิศ
พื้นที่สีม่วง ที่ดินประเภทอุตสาหกรรมและคลังสินค้า
ที่ดินถมแล้วสูงเท่ากับระดับถนน ถนนด้านหน้ากว้าง 12 เมตร
ใกล้ถนนใหญ่ ห้างสรรพสินค้า ตลาด หมู่บ้านจัดสรรหลายแห่ง
ราคา : 19,500,000 บาท
ลิงค์แผนที่ : www.h***** ,100. 3*****
**เรามีบริการจัดสินเชื่อให้ฟรี พร้อมยินดีให้คำปรึกษา มีให้เลือกทุกธนาคาร**
**พร้อมอัตราดอกเบี้ยพิเศษ และ วงเงินสูงสุด 90-100% ของราคาประเมิน**
สนใจสอบถามข้อมูลเพิ่มเติม หรือ นัดชมบ้านได้ที่
Tel : 0***** นะ (รหัสตัวแทน 2974)
Line ID : thank777
Tel : 0***** นก (รหัสตัวแทน 2974-1)
Line ID : radchada2456
Callcenter : 0*****
สนใจดูทรัพย์อื่นๆ เพิ่มเติม มากกว่า 3,000 รายการ
www.w*****
The Best Property Agent CO,.LTD. ผู้นำด้านธุรกิจนายหน้า ตัวแทนอสังหาริมทรัพย์ครบวงจร ด้วยความเป็นมืออาชีพ ใช้เทคโนโลยี และ นวัตกรรมที่สร้างสรรค์ เพื่อส่งมอบบริการที่ดีที่สุดเพื่อคุณ ให้บริการด้าน ซื้อ ขาย เช่า อสังหาริมทรัพย์
Estimated mortgage
Mortgage breakdown
Est. monthly repayment
฿ 0 / mo
฿ 0 Principal
฿ 0 Interest
Upfront costs
Total downpayment
฿ 0
Downpayment
฿ 0 Loan amount at 0% Loan-to-value
Recommendations
FAQs
The sale price of this unit at ที่ดินนาดี สมุทรสาคร is ฿19,500,000.
Current PSM at ที่ดินนาดี สมุทรสาคร is about ฿3,937 / sqm.
The estimated loan repayment is ฿ 57,548 / mo.
ที่ดินนาดี สมุทรสาคร is located at Na Di, Muang Samut Sakhon, Samut Sakhon Na Di Muang Samut Sakhon Samut Sakhon.
Explore other options in and around Na Di
Based on the property criteria, you might be interested on the following
Land For Sale






















