Supalai Icon Sathorn is a 56-storey (not included rooftop) luxury condominium with 787 units. The project offers a variety of unit types, and is close to the BTS, MRT, BRT as well as the Rama 4 and Sathorn expressway entries. The starting price is 8.2 MB.
Thonglor is undoubtedly a desirable location for those looking for home at the heart of the city, as well as investors. The integration of upscale lifestyle venues and the BTS Sky train made Thonglor a coveted location among developers, one of whom recently launched a low-rise luxury project named La Citta Delre Thonglor 16. This developer is Hongnakorn Property Company Limited who succeeded with the previous project La Citta Penthouse Thonglor 8 and is now steering this project toward the same achievement. La Citta Delre Thonglor 16 consists of two eight-storey buildings with a total of 51 units and an average price at 250,000-280,000 baht per square metre.
Fast Facts about La Citta Delre Thonglor 16
Developer: Hongnakorn Property Company Limited
Address: Soi Thonglor 16, Sukhumvit 55 Road, Wattana, Wattana, Bangkok
Project Area: 1-2-8 rai
Project Type: Two 8-storey condominiums with 51 units
Elevator: 2 elevators per building
Parking: Over 200%
Facilities: Rooftop Swimming Pool & Jacuzzi, Fun & Family Zone, Health & Lifestyle Zone, CCTV, Security Guards
Unit Type: 1-4 Bedroom 74-380 Sq.m.
Construction Progress: Started in 2018, expected completion in 2020
Average Price/Sq.m.: 250,000-280,000 baht per sq.m.
Articles about buying house and condominium
How much can I borrow with current salary?
Making money from buying and selling property
Choosing best unit’s location in a condominium
Links related to La Citta Delre Thonglor 16
Project Details
PROJECT DETAILS
The mastermind behind La Citta Delre Thonglor 16’s captivating architecture is the Architects 49, whose principle is to create buildings with clean simple elegant lines that will last. The unit types include La Attico (Building A) which is a 3-bedroom unit for families with children or elders, and La Delre (Building B) which are 1-2 bedroom unit and Duplex unit suitable for medium-sized and small families. The total unit is limited to 51 only to provide ultimate privacy.
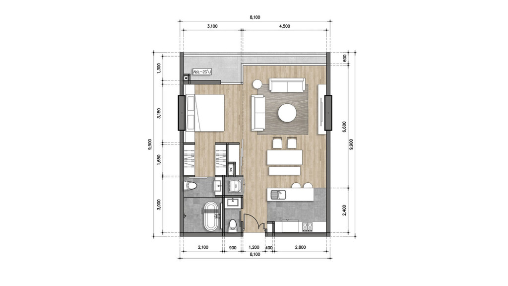
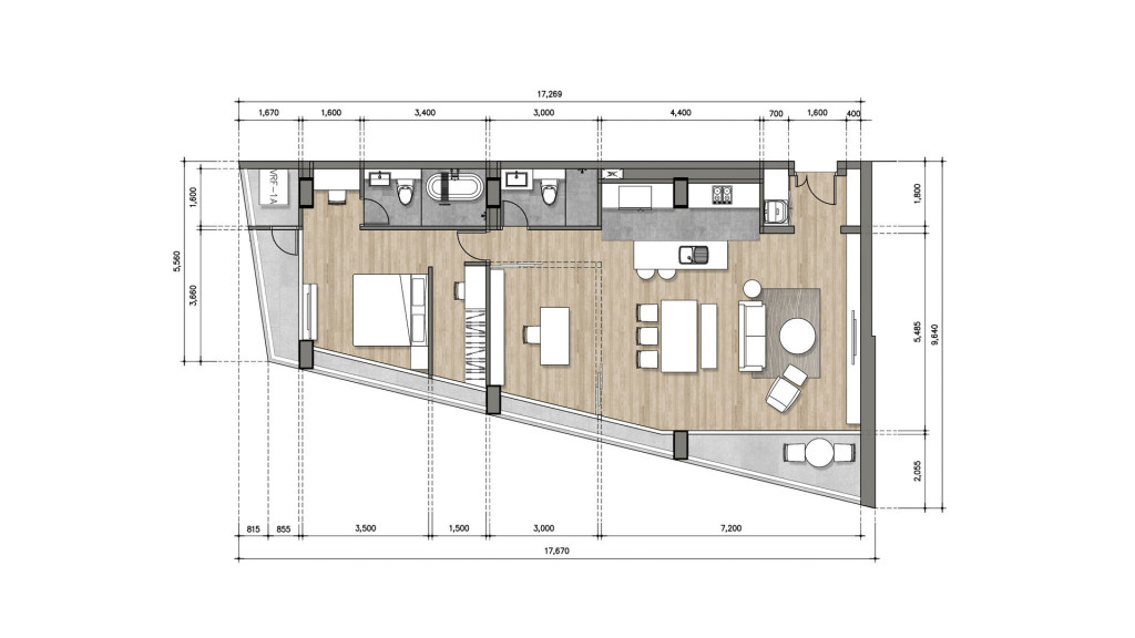
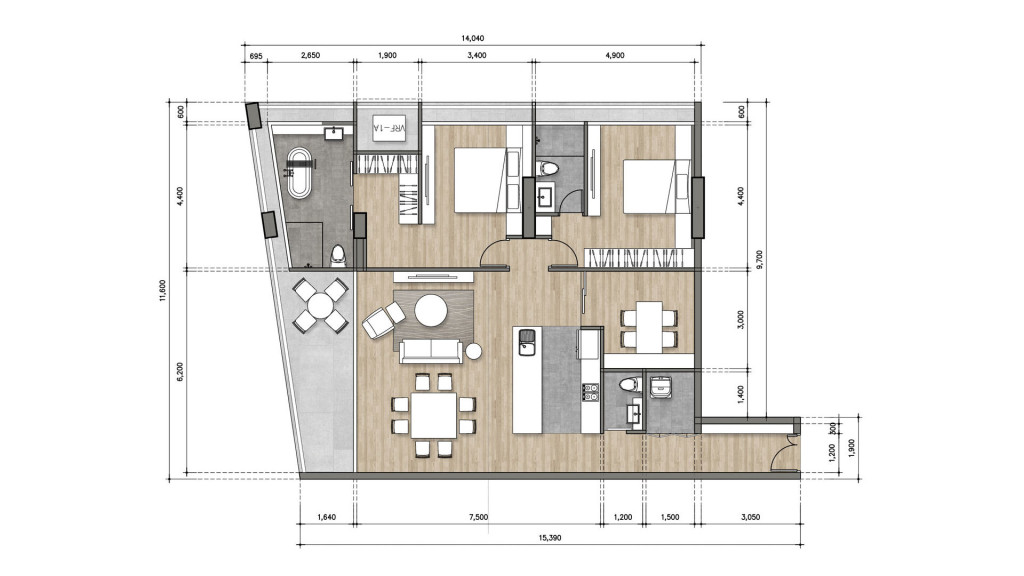
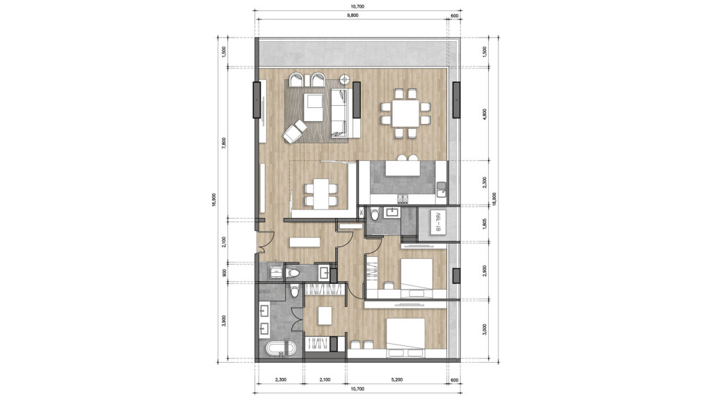
Floor Plan
In both buildings, residential units are located on 2nd-8th Floors, parking lots on basements, and facilities are on the rooftops.
Room Type
There are various unit types for different sizes and lifestyles.
La Attico Building
LA DELRE Building
A Glimpse Inside La Citta Delre Thonglor 16
Facilities
La Citta Delre Thonglor really puts emphasis on Green Space by planning to plant trees around the project and have the relaxation areas located on the rooftop of both buildings. These relaxation areas can be divided into two zones: Fun & Family Zone and Health & Lifestyle Zone; the first one is for families with children, while the second is for exercise lovers – as the zone comprises exercise machines, salt-water swimming pool and Jacuzzi. The tree fence around the project will provide shade and reduce noise and pollution which may disturb residents.
Location
Thonglor is famously the most vibrant hub in Bangkok. Flashy lifestyle, fashion, nightlife, trendy venues and upscale residences gravitate here, forming a buzzing hub locals and foreigners desire to live and revel in. Thonglor or Sukhumvit 55 also connects to major roads such as Sukhumvit Road, Petchaburi Road and Rama IV Road, and some small alleys including Soi Sukhumvit 49, 51, 53 and 71 for traffic avoidance. As Thonglor is infamous for its heavy traffic, the availability of BTS Thonglor, as well as motorcycle, taxi, and TukTuk is quite crucial, let alone the proposed Monorail Grey Line that’s coming. Thonglor is a hub that never sleeps, yet in its sleeplessness hides many top-class residences where absolute silence and tranquility can be found.
Getting There
Neighbourhood
Lifestyle Venues
Penny’s Balcony : 290 M
72 Courtyard : 350 M.
J Avenue : 350 M.
The Commons : 450 M.
The Taste Thonglor : 500 M.
The Eight Thonglor : 650 M.
Market Place Thonglor : 900 M.
Piman 49 : 1.3 KM.
Rain Hill : 2.1 KM.
The Emporium : 2.6 KM.
Thonglor Police Station : 500 M.
Hospitals
Camillian Hospital : 900 M.
Smitivej Sukhumvit : 1 KM.
Sukhumvit Hospotal : 2.5 KM.
Schools
Bangkok Prep International School : 1.2 KM.
Ekkamai International School : 1.7 KM.
Wells International School : 1.8 KM.
Analysis
Expected returns from La Citta Delre Thonglor 16
Data from Nexus Property reveals that Thonglor is still a sought-after location for both developers and buyers where annually rising land price pushes condominium price to rise accordingly. The starting price of condominiums in Thonglor ranges between 200,000-300,000 baht per square metre on average, with prospective tenants being expats such as Japanese and westerners whose workplaces might be at the heart of the city. In general, the rent price for a one-bedroom unit here ranges between 43,000-52,000 baht per month, and 65,000-82,000 baht per month for a two-bedroom unit.
Summary
For Whom is La Citta Delre Thonglor 16 Suitable?
With most units so sizable (the smallest unit is 74 sq.m.), La Citta Delre Thonglor 16 is ideal for families with elders or children, especially if one of the members’ daily life involves much activities in the city. However, the project is also practical for investors with deep pockets because the location is significantly sought-after. And the availability of only 51 units makes the project even more appealing. Despite being located in perhaps the most vibrant area of Bangkok, La Citta Delre Thonglor 16 will sit a fair distance from the main road (at the end of Soi Thonglor 16 Alley) and that positioning will provide some seclusion and privacy, not to mention the noise-insulated material and a heavy focus on greenery in the project.Figure out how much you can afford, how much you should borrow, and more





























